Bungalow Grundriss ~16x9.5m ( außen ) in 1000m² mit Altbestand

4,00 Stern(e) 11 Votes
Zuletzt aktualisiert 06.01.2026
Sie befinden sich auf der Seite 15 der Diskussion zum Thema: Bungalow Grundriss ~16x9.5m ( außen ) in 1000m² mit Altbestand
>> Zum 1. Beitrag <<

M

micric3

Planmässig Rechts. Osten planmässig unten ( Eingang ), gilt nur für den Grundriss.
Das 3D Bild - wie 11ant angemerkt - um 180 grad gedreht
 
M

micric3

Ein befreundeter Architekt, hat noch 2 Grundrissvarianten ( erste Vorschläge ). Zum Vergleich unser Favorit Variante 6

Lageplan eines Grundstücks mit grüner Umrandung; darüber liegt ein kleiner Gebäudegrundriss.


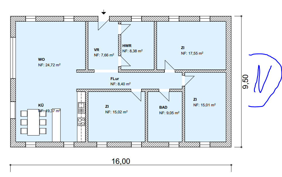
Grundriss einer Wohnung mit Wohnzimmer, Küche, Flur, Bad und drei Zimmern.


Grundriss einer Wohnung: Wohnzimmer, Küche, Flur, Bad, WC, Vorraum, Abstellraum, zwei Zimmer.


Grundriss: Küche, Essbereich, Wohnzimmer, 2 Kinderzimmer, Schlafzimmer (SZ), Bad, WC, Eingang.
 
M

micric3

Nein. Es wird keine Neue Zufahrt und wie du korrekt entnommen hast, muss der Weg um das Haus herum gehen. Das würde man in kauf nehmen, für eine "gefühlt bessere Ausrichtung" der Räume. Mir ist klar, dass dies mit Mehrkosten verbunden ist. Gäste können jedoch über die Zuwegung aus Westn empfangen werden bzw. über die Terrasse
 
kaho674

kaho674

Nein. Es wird keine Neue Zufahrt und wie du korrekt entnommen hast, muss der Weg um das Haus herum gehen. Das würde man in kauf nehmen, für eine "gefühlt bessere Ausrichtung" der Räume.
Hä?

Ich finde das ganze Projekt bisher völlig chaotisch, undurchdacht und die Grundrisse alle häßlich und ungeeignet. Sorry, ich sag Dir das ganz klar als Freund, der Dir helfen will. Das wirkt auf mich wie eine Baracke, in der man eine Notunterkunft einrichtet, nicht wie ein Traumhaus. Zudem kommen wichtige Infos über Wege und Zuleitungen nur tröpfchenweise und letztendlich weiß ich jetzt nicht mehr, wo denn nun das Gartentor für den Postboten ist und wo die Autos parken?

Ich denke, es wäre für Dich sehr wichtig, Dir einen richtigen Architekten zu nehmen (keine befreundeten Hobbyzeichner). Auf keinen Fall solltest Du eigene Entwürfe mitnehmen - am beste nur die Zimmeranzahl nennen. Dann machen lassen und mit dem Ergebnis wieder kommen. Ich denke, da ist jeder Euro Gold wert, den Du in den Profi investierst.
 
Zuletzt aktualisiert 06.01.2026
Im Forum Grundrissplanung / Grundstücksplanung gibt es 2565 Themen mit insgesamt 88751 Beiträgen


Ähnliche Themen zu Bungalow Grundriss ~16x9.5m ( außen ) in 1000m² mit Altbestand
Nr.ErgebnisBeiträge
14m Zufahrt ausreichend zur Garage? 13
2Stellplatz / Zufahrt Problem bei Hanglage (v. Straße ansteigend) - Seite 212
3Grundstücksteilung: Gemeinsame Zufahrt über separates Flurstück - Seite 229
4Zufahrt gestalten mit Rasenwaben 10
5Baulücke / Zufahrt für umliegende Grundstücke / §34 Nachbarbebauung 46
6Problem beim Hausverkauf: keine Zufahrt und ein Biotop vorhanden 31
7Zufahrt für geplantes Einfamilienhaus auf einem Hinterliegergrundstück 13
8Zufahrt zum Carport wird durch Laterne behindert 17

Oben