Bungalow Grundriss ~16x9.5m ( außen ) in 1000m² mit Altbestand

4,00 Stern(e) 11 Votes
Zuletzt aktualisiert 20.11.2025
Sie befinden sich auf der Seite 8 der Diskussion zum Thema: Bungalow Grundriss ~16x9.5m ( außen ) in 1000m² mit Altbestand
>> Zum 1. Beitrag <<

M

micric3

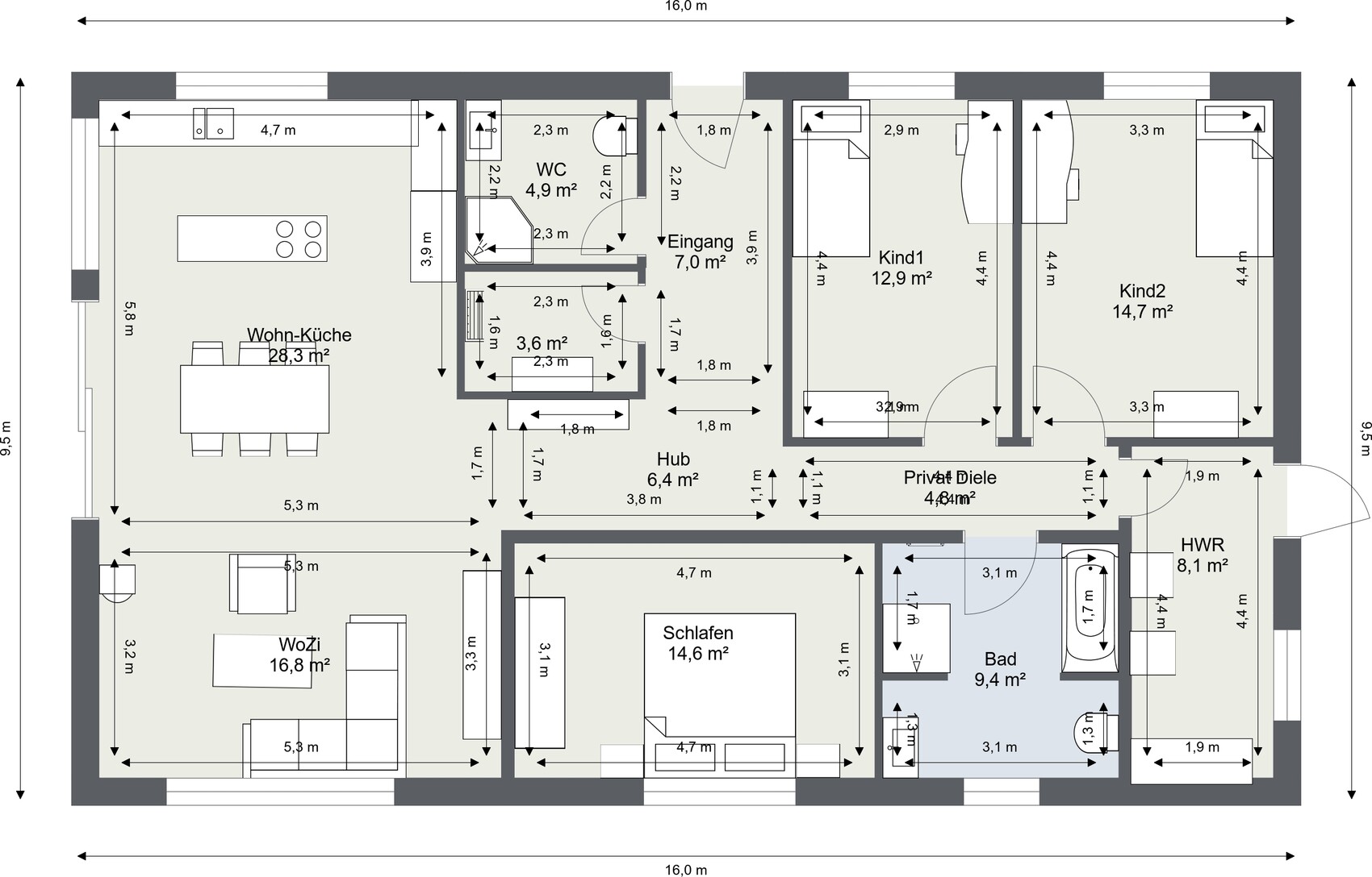
Der Unterschied ist der, dass Du hier den Ruhebereich als Durchgangsraum machst.
Ist ja bei einem offenen Design - in diesem falle - nicht anders möglich. theoretisch läuft aber niemand durch Wohnzimmer, da die Lauflinie hinterm Wohnbereich liegt

Ich könnte den aktuellen Grundriss auch mit Trennwand fürs Wohnzimmer machen ( würde hier dann aber die Sitzanordnung verändern und planmässig Süd noch ein Fenster reinnehmen.

PS: Glastür nur zur Veranschaulichung

Offener Wohn- und Essbereich mit Sofa, Esstisch, Küche und Balkonzugang.
 
11ant

11ant

Ich finde dieses 3D feauture gut, um ein Gefühl für die Räume zu bekommen.
Ich finde das 3D Feature schlecht, weil es das Gefühl für Räume erkennbar nicht verbessert: ich (als Preuße, also aus einer Kultur, in der das Fensterln unüblich ist) erkenne auch in 2D pfeilgerade sofort, daß das Schlafzimmer keine Tür hat *sauber Schenkel klopfen lach*

Und ebenfalls ist für mich ratzfatz erkennbar, warum es keine Tür hat: in der linken Ecke wäre sie ungünstig, in der rechten auch, und dazwischen schlüge sie am Bett an :-(
 
Zuletzt bearbeitet:
Zuletzt aktualisiert 20.11.2025
Im Forum Grundrissplanung / Grundstücksplanung gibt es 2535 Themen mit insgesamt 87977 Beiträgen


Ähnliche Themen zu Bungalow Grundriss ~16x9.5m ( außen ) in 1000m² mit Altbestand
Nr.ErgebnisBeiträge
1Doppelflügeltür / Pendeltür zum Wohnzimmer 13
2Zulüftung Kontrollierte-Wohnraumlüftung im Wohnzimmer durch Schiebetür verdeckt 17
3Wohnzimmer Grundrissplanungs-Ideen? 39
4Wohnzimmer Heimkino separat ? 21
5Planung Podest im Wohnzimmer 12
6Wohnzimmer: Wie Sofa, TV und Schränke stellen? 32
7Kombination Fliesen und Parkett im Wohnzimmer mit offener Küche - Seite 330
8Grundrissplanung Wohnzimmer-Küche 18
9Einfamilienhaus - Stadtvilla: Wohnzimmer L oder I Form? 25
10Grundriss für 150qm Einfamilienhaus mit Wohnzimmer nach Norden 21
113. Zimmer im 40qm Wohnzimmer unterkriegen. Ideen 74
12Wohnzimmer / Esszimmer gestalten. Ideen gesucht 10
13Treppe im Wohnzimmer als Hype - Pro & Contra? 26
14Verschattung der Dachfenster im Wohnzimmer - Erfahrungen / Tipps? 28
157,70m Glasfront Wohnzimmer Haus 11 auf 11 Meter 14
16Wohnküche und Wohnzimmer im DG oder im EG 13
17Stufe zwischen Wohnzimmer und Küche-Essbereich - Seite 214
18Grundrissplanung Wohnzimmer und Flur zu schmal? 21
19Nimmt eine Terrassenüberdachung viel Licht im Wohnzimmer weg? - Seite 214
20Standort Küche und Wohnzimmer - Seite 355

Oben