W
Mein Konto
Hausbau - Ratgeber
Bauherrenhilfe
- Bauherrenhilfe vor Vertragsabschluss
-- Warum einen unabhängigen Baubetreuer?
-- Vertragsgrundlagen
-- Bausumme
-- Zahlungsplan zur Kostenkontrolle
-- Pflichten des Bauherren vor Vertragsabschluss
-- Unterlagen beim Hausbau vor Vertragsabschluss
- Bauherrenhilfe nach Vertragsabschluss
-- Bauantrag bei Behörden
-- Bau-Genehmigungsverfahren bei Baubehörden
-- Bauspezifische Versicherungen
-- Bauzeitenplan
-- Baubeginn - die Letzten Pflichten der Bauherrschaft
- Bauherrenhilfe während der Bauzeit
- Gewährleistungsansprüche
- Bauabnahme
Baufinanzierung
- Baufinanzierung - Allgemeine Fragen
- Kreditarten
- Kredit-Konditionen
- Bausparen
- Staatliche Förderungen
- Verkehrswert
- Haushaltsrechnung und Bonität
Hausbau Planung
- Haustypen
- Hausbau Vorbereitungsarbeiten
- Das Baugrundstück
- Baugrund beim Hausbau
- Baurecht
- Gebäudeschutz
- Erdarbeiten und Wasserhaltung
- Stützmauern
- Einfriedung
- Untergeschoss
- Kanalisation
- Tragende Elemente
- Nichttragende Innenwände
- Fundation / Fundament
- Deckenkonstruktionen
- Dächer
- Kaminanlagen
- Treppen Rampen Leitern
- Dachbeläge und Spengler
- Fenster
- Sonnen und Wetterschutz
- Aussenputze
- Einbauten, Küchen, Türen
- Bodenbeläge und Unterlagsböden
- Parkett
- Gips, Wand, Decke
Haustechnik und Energie
- Heiztechnik
- Lüftung und Klimatechnik
- Sanitärtechnik
- Elektrotechnik
- Erneuerbare Energie
Whirlpools / Jacuzzi
Hausbau Magazin
- Baufinanzierung trotz Krise?
- Das Blockhaus
- Moderne Dämmstoffe im Vergleich
- Erker Vor- und Nachteile
- Glasflächen beim Hausbau
- Günstig ein Haus Bauen
- Mediterraner Hausbaustil
- Mehrgenerationenhaus
- Moderne Architektur
- Gartengestaltung leicht gemacht
- Traditioneller Ziegelbau
- Villa als höchster Traum
- Im Eigenheim Ruhestand geniessen
- Altbau sanieren
- Kauf einer Holzgarage
- Immobilienmakler
- Arbeitshandschuhe für den Winter
- Zuhause verschönern
- Outdoor-Plissees
- Schlafzimmer planen
- Terrassenüberdachung
- Wohngebäudeversicherung
- Zaunarten und Eigenschaften
- Hauseingang gestalten
- Der perfekte Grundriss
- Sparsamer heizen im Altbau
- Einfamilienhaus smart finanzieren
- Planung einer PV-Anlage
- Neues Haus
- Immobilienfinanzierung
- Installation einer Photovoltaikanlage
- Asbest erkennen und entfernen
- Sauna im Fokus - Wellness zuhause
- Erfolgreich vermieten
- Die perfekte Winterbekleidung
- Das Niedrigenergiehaus
- Der April und seine Stürme
- Architektonische Vielfalt
- Ökologisch und nachhaltig bauen
- Das perfekte Schlafzimmer
- Nachhaltige Energieversorgung
- Zukunftsorientiert bauen
- Nachhaltigkeit beim Hausbau
- Tiny Houses
- Wärmepumpen als nachhaltige Heizvariante
- Maßgeschneiderten Kleiderschrank
- Der richtige Baukredit
- Ratgeber für erfolgreichen Hausbau
- Haus als Altersvorsorge
Do-it-yourself Anleitungen
- Verlegeanleitung für Bodenbeläge und Parkett
- Bodenbeläge und Parkett reinigen und pflegen
- Malerarbeiten am Haus
- Garten Tipps
- Umzug und Reinigung

ᐅ Bungalow Grundriss ~16x9.5m ( außen ) in 1000m² mit Altbestand


Erstellt am: 25.06.19 09:14

micric325.06.19 09:14
Hallo Forengemeinde,

nachdem wir nun noch ein paar mehr Ideen sammeln konnten - und ich aus vorherigen Beiträgen gutes Feedback erhalten und versucht habe einzuarbeiten - bitte ich euch um euer Feedback zum aktuellen Grundriss bzw. einer generellen Meinung zum Bungalow in unserem 1000m² Grundstück mit Altbestand.

Der Grundriss wurde mit RoomSketche erstellt. Ich habe versucht relativ viele Möbel ( Küche fehlt ) soweit als Referenz einzuarbeiten. Fenster für Schlafzimmer und Bad sind noch nicht passgenau, habe dafür auch noch keine Ideen.

Im Anhang
1.) Bild Grundstück + Ausrichtung
2.) Original des BU nachdem ich dent Entwurf gestaltet/abgeändert habe
3.) Mein Entwurf ( mit RoomSketcher )


Bebauungsplan/Einschränkungen
Größe des Grundstücks: 1000m²
Außenmaße des Hauses: 15,87 m x 9,50 m ( die sind durch den BU vorgegeben um möglichst nahe am Preis zu bleiben )
Hang: Nein
Anzahl Stellplatz: 0
Geschossigkeit: Bungalow
Dachform: Walmdach oder Sateldach ( BU hat im Preiss Walmdach )
Ausrichtung: Eingang West, Wohnzimmer Südostausrichtung, Esszimmer Südwestausrichtung
Maximale Höhen/Begrenzungen
weitere Vorgaben: muss sich an Altbestand anpassen

Anforderungen der Bauherren
Anzahl der Personen, Alter: 4 Personen (2x 40Jahre, 2x 3Jahre)
Büro: Im Nebengebäude
Schlafgäste pro Jahr: Max. 2
offene oder geschlossene Architektur: unentschlossen
konservativ oder moderne Bauweise: egal
offene Küche, Kochinsel: Schiebetür, L oder U Küche vermutlich
Anzahl Essplätze: 4 in Küche ggf. 6-8 im Wohnzimmer
Kamin: ggf. Schwedenofen
Garage, Carport: Auf Zufahrtsweg

Hausentwurf
Von wem stammt die Planung: orientiert am Bungalow 131 Grundriss von Town & Country. Entwurf selbts geplant mit RoomSketcher
-Planer eines Bauunternehmens

Was gefällt besonders? Warum?
- Zugang über West
- schlicht & kompakt

Preisschätzung lt Architekt/Planer: 215.000

Persönliches Preislimit fürs Haus, inkl Ausstattung: 250.000

favorisierte Heiztechnik: Luft-Wasser-Wärmepumpe ( Entweder Vaillant aroSplit oder Vaillant recoCompact )

Wenn Ihr verzichten müsst, auf welche Details/Ausbauten
-könnt Ihr verzichten: Größe Wohnzimmer
-könnt Ihr nicht verzichten: 2tes Bad

Warum ist der Entwurf so geworden, wie er jetzt ist?
- Lage im Grundstücks
- Lage zum vorhandenen Nebengebäude

Was ist die wichtigste/grundlegende Frage zum Grundriss in 130 Zeichen zusammengefasst?
- Ist die Westausrichtung der Kinderzimmer sinnvoll gegenüber einer Ostausrichtung?
- Ist das Schlafzimmer zu schmal,da das Bett ~ 2x2m ist
- Küche mit eigenem kleinen Essplatz?
- Größe und Anzahl der Fenster für Wohnzimmer in Südostausrichtung
- Wie sollten die Möbel im Wohnzimmer gestellt werden?
- Sollte Wohnzimmer und Esszimmer getauscht werden? ( SO <-> SW Ausrichtung? )
--> Esszimmer hat Südwestausrichtung, damit man sieht wer kommt
- Ist es besser 1x bodentifes Fensters ( welche Größe ) in Kinderzimmer oder 2x Fenster ins Kinderzimmer?

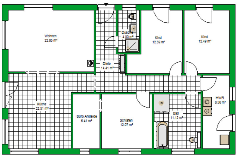
Luftbild eines Grundstücks mit roter Rechteckmarkierung, grüner Linie und blauen Richtungen.


Grundriss einer Wohnung: Küche, Wohnzimmer, Flur, zwei Kinderzimmer, Schlafzimmer, Bad, WC, HAR.


Grundriss eines Hauses mit Küche, Wohnzimmer, Schlafzimmer, Bad und Fluren mit Maßen.
11ant25.06.19 14:47
micric3 schrieb:

3.) Mein Entwurf ( mit RoomSketcher )
0) der Ursprung des Threads: https://www.hausbau-forum.de/threads/Ideen-Meinungen-zu-Bungalow-131-Grundriss-gefragt.31263/

Viererlei Murks, der mir sofort auffällt:
- der Esstisch im Wohnzimmer steht geradezu maximal im Weg
- der Esstisch in der Küche ist eine "Redundanz"
- daß die Küche sonst keinerlei Einrichtung hat, macht den Plan nahezu unbewertbar / unddiskutierbar
- die Badeinrichtung ist wohl auch sehr freundlich gesagt nur eine Skizze.
micric325.06.19 18:40
Danke für die Verlinkung zum Ursprungs Thread. Letztendlich stelle ich ja genau - diesen unfertigen Grundriss/Möblierung - ein, um Meinungen dazu zu bekommen.

Mir ist aber nicht klar, ob die generelle Idee an sich ok ist oder ob ich wirklich zuerst meine Küche planen muss, bevor ich einen Küchengrundriss erstellen kann ala "Design follows function".

Esstische sind doch fast überall redundant oder hat die Mehrheit hier wirklich nur 1x Esstisch, welcher für Anlässe\Besuch sowie täglich Brot verwendet wird?
Niloa25.06.19 18:42
micric3 schrieb:

Esstische sind doch fast überall redundant oder hat die Mehrheit hier wirklich nur 1x Esstisch, welcher für Anlässe\Besuch sowie täglich Brot verwendet wird?
Ich verstehe nicht, wieso man sich 2 Esstische direkt nebeneinander stellen sollte. Bei einem separaten Esszimmer ok, aber in dem Fall hier macht das meiner Meinung nach keinen Sinn.
micric325.06.19 18:46
verstanden. dh. ihr würdet euch für eine offene Küche in diesem Grundriss entscheiden?

wie sieht es generell mit der Ausrichtung aus?
- ist es iO die Kinderzimmer im Westen zu haben mit blick in den "Hof/Garten"?
11ant25.06.19 19:15
micric3 schrieb:

Esstische sind doch fast überall redundant
"Störend auffallen" tut es insbesondere, wenn die Doppelung schon in drei Metern Nähe folgt.
micric3 schrieb:

oder ob ich wirklich zuerst meine Küche planen muss, bevor ich einen Küchengrundriss erstellen kann ala "Design follows function".
Die Konstellation der Geräte und Flächen redet schon recht dominant mit, wie der Raum am besten dimensioniert sein sollte.
vaillanttown & countryroomsketcherküchewohnzimmergrundrissesstischeentwurfesszimmerkinderzimmer