Bauplatz 920 qm - Kreativität und Meinungen gefragt

4,00 Stern(e) 27 Votes
Zuletzt aktualisiert 24.11.2025
Sie befinden sich auf der Seite 8 der Diskussion zum Thema: Bauplatz 920 qm - Kreativität und Meinungen gefragt
>> Zum 1. Beitrag <<

Y

ypg

Symmetrie in der Höhe oder in der Vertikalen?
Horizontal: links ist der Kühlschrank, der ist 60cm breit, rechts die Tür zur Speis, und da muß ich auch vollbepackt und mit einem Blech durch kommen, da wären mir 60cm zu knapp, daher Max. mögliche Breite ausgenutzt.
Daher der Verzicht auf Symmetrie.
Ja, das meinte ich. Ich hab ja geschrieben, dass ich eine richtige Tür bevorzuge.
Deine Speiserür soll versteckt sein, also geschickt in die Hochschränke integriert. Und das ist nach meiner Meinung eben mit der Unsymmetrie von Wand zu Wand nicht gelungen. Gewollt, aber nicht gekonnt, würden böse Zungen sagen.
Dich scheint es nicht zu stören, ok so.

Ich halte Speisekammern für nicht so wichtig. Es braucht halt einen Abstellraum. Muss nicht zwingend neben der Küche sein.
So sehe ich das auch: das Raumwunder ist große Klasse.
Aber bevor ich Altpapier und gelben Sack noch weiter nach hinten stelle, kommt es bei mir in Richtung Ausgang, wenn der Behälter dort, wo der Müll anfällt, voll ist. Wo die jetzt große (für mich unpassende) Tür ist, hätte man auch den Gefrierschrank einbauen können und die Tür ggf (vorausgesetzt es ist Platz) um die Ecke planen können. Hätte, hätte... wichtig ist, dass Du glücklich damit bist. Wie schon gesagt: ich finde eine Backup-Küche auch klasse, aber die sieht in meinen Gedanken anders aus
 
S

sanftmut

Hi Ihr!

Der überarbeitete Entwurf liegt nun vor.
Siehe Bilder in Anlage!

Das Haus ist zwei Meter breiter (Nord-Süd) geworden.
Vor allem wegen des DGs, welches aufgrund der 1-Geschossigkeit und dem niedrigen Kniestock (von 0,8m) gefühlt "das planerische Nadelöhr" ist.

DG: Was sind Eure Gedanken, Änderungs-Tipps ?
Hinweis: wir sind wohl (wenn ich das richtig verstehe) sehr knapp an der 2/3 Regel vom Vollgeschoss dran). Also viel größer geht nur wenn wir das EG auch größer machen würden.

Ziel war im DG ein bisl n "offenes Gefühl" zu erreichen
-> daher auch der Luftraum als Versuch da etwas "Luft(igkeit)" rein zu bringen.

EG: Was denkt Ihr?
z.B. über die Fenster / Wände? Insbesondere bzgl. Wohn-Ess-Bereich.
Nicht lieber mehr "nach Westen aufmachen"? und dafür evtl. nach Süden (wo der Nachbar "recht nah sitzt") bisl. "mehr Wand" bringen?

Freue mich über Eure Meinungen, Gedanken und Tipps!

Bei Fragen gerne melden!!

LG u Danke!

Modernes weißes Haus mit braunem Satteldach, Balkon, Terrasse und grüner Umgebung.


Moderne weiße Villa mit Satteldach, Balkon mit Person, Terrasse und Grün.


Dachgeschoss-Grundriss mit Balkon, Zimmer 1/2, Dusche/WC, Bad, Schlafen, Galerie.


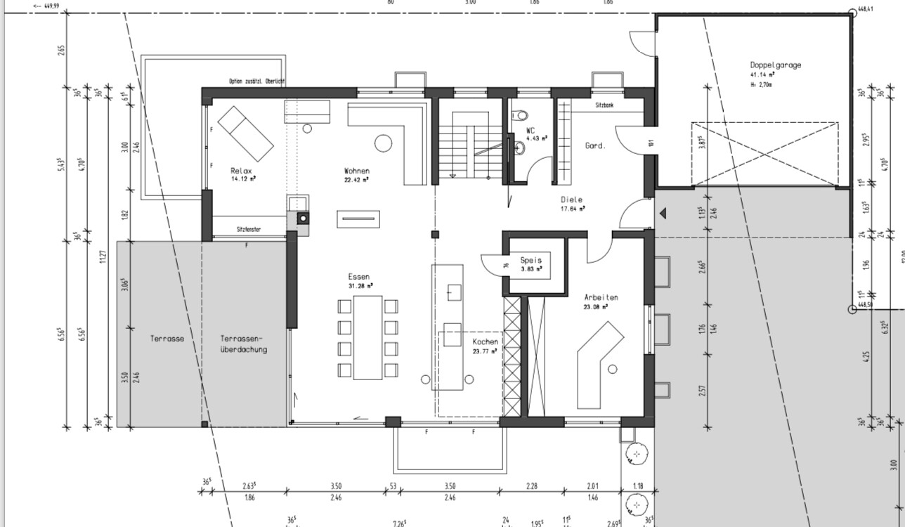
Grundriss eines Einfamilienhauses: Wohnen, Essen, Kochen, Terrasse, Doppelgarage


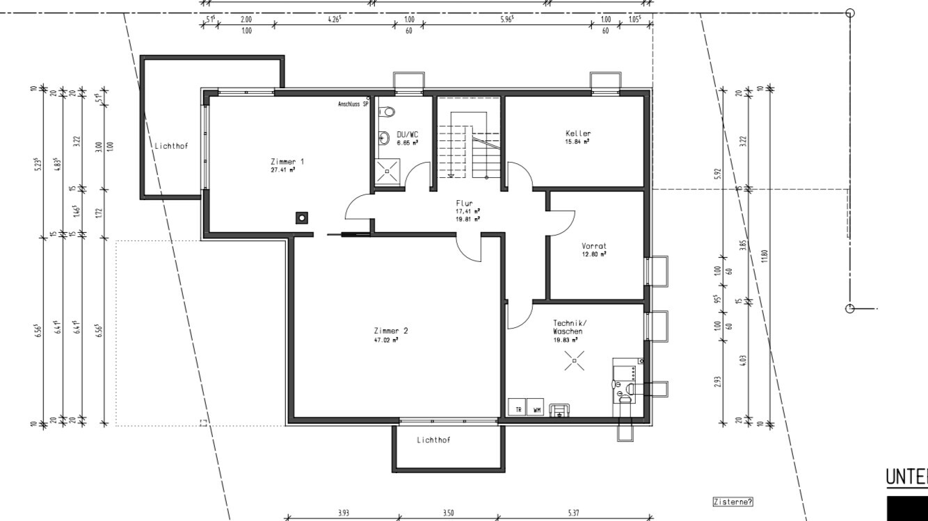
Grundriss eines Hauses: Zimmer 1, Zimmer 2, Flur, Keller, Vorrat, Technik/Waschen.


Modernes weißes Einfamilienhaus mit braunem Satteldach, grünem Rasen und Baumreihen im Hintergrund.


Moderne weiße Hausfront mit Garage, davor Auto; Person am Eingang, Rasen und Baumreihe.


Modernes weißes Einfamilienhaus mit braunem Satteldach, Glasfront, Terrasse und Auto im Hof.


Modernes weißes Einfamilienhaus mit Balkon, Terrasse und Garten, Person auf dem Balkon.
 
kaho674

kaho674

Oha, nicht schlecht. Mal abgesehen davon, dass es monströs ist.

Mir persönlich gefallen die riesigen Lichtschächte für den Keller ja nicht. Macht den Garten kaputt. Ich bräuchte auch die Zimmer da unten nicht. Deswegen gäbe es die bei mir nicht. Aber das ist ja individuell bei jedem anders.
Das Bad find ich irgendwie noch nicht perfekt. Man läuft fast gegen die Waschbecken.
Wäscheschacht würde ich noch einplanen. Aber sonst.

Sagst Du noch mal, was es kosten soll?
 
11ant

11ant

Die Nordfassade besticht durch eine Kakophonie an Fensterformaten. Den Blick durch das große Fenster hinter der Relaxliege wird man nicht ungetrübt genießen: Schuld ist nicht der Bossa Nova, sondern ganz banal die Absturzsicherung am Rand des Lichthofes. Ansonsten kann man es meinetwegen so lassen. Im Hof darf nichts herumliegen, der wird als "Wischfeld" von Rangiervorgängen komplett ausgenutzt.
 
Zuletzt bearbeitet:
Y

ypg

Ich hab jetzt zwar nicht mehr den Bedarf angeschaut, wofür jetzt Kellerräume Wohnräume werden müssen, aber so ein bissel quer gelesen, denn: ich mag es überhaupt nicht.
Die Gauben bringen nmM keinen Mehrwert, denn ob es nun 19qm oder „nur“ 16... auch mit 14qm hätte man schöne Kinderzimmer oder Büros oder was auchimmerfürzimmer... Statt dessen stattet man das Einfamilienhaus mit unnötigen Firlefanz wie Gauben aus... zudem dieses noch zwei Lichtschächte im Keller bekommt. Irgendwie fleucht es mich, dass Ihr Panik und Ängste habt, dass der Wohnraum zu knapp werden könnte. Leider gewinnt mM nach das Haus eben nicht, weil es groß noch größer macht.

Mal ehrlich: ü27qm Badfläche im OG braucht keiner.
Im EG (ich bin ja bekanntlich wahrer Fan von ausreichend! Garderobenfläche für reichlich Familienmitglieder, aber auch dieser quadratisch wohlgeformter Bereich stellt eher das Chaos in den Mittelpunkt... ggf schließen, aber dabei die Breite des Flures berücksichtigen.
Speis liegt gut (endlich mal geplant und nicht nur in Reihe angehängt), Küche finde ich viel zu groß, um praktisch kochen zu können, WZ ist leider kein Raum mehr, sondern nur eine freie Ecke. Wenn ich es entspannter betrachte, wäre mir der WZ-Bereich im Vergleich zum Essbereich zu unterdrückt.
 
Zuletzt aktualisiert 24.11.2025
Im Forum Grundrissplanung / Grundstücksplanung gibt es 2536 Themen mit insgesamt 87999 Beiträgen


Ähnliche Themen zu Bauplatz 920 qm - Kreativität und Meinungen gefragt
Nr.ErgebnisBeiträge
1Lichtschächte bei Wasserdichtem Keller 10
2Grundriss Einfamilienhaus mit Keller - Eure Meinungen bitte - Seite 316
3Grundrissfrage, Treppe, Fenster, Ausrichtung 12
4Grundrissentwurf Stadtvilla mit Keller Verbesserungsvorschlag? - Seite 577
5Grundriss Einfamilienhaus ~165m² plus Keller - Seite 18165
6Schalter für Rollläden am Fenster oder an der Tür? 38
7Grundriss Einfamilienhaus - Problemfall Küche 20
8Einfamilienhaus Grundriss mit Keller, Version 2 23
9Grundriss 180qm plus Keller - 12,40mx9,04m - Seite 221
10Planung/Grundriss Einfamilienhaus (ca. 140 qm, Keller, EG, DG) - Seite 530
11Erster Entwurf Einfamilienhaus 150m² mit Keller 38
12Grundriss Einfamilienhaus, 140 qm mit Keller 40
13Planungsbeginn neue Küche - Seite 222
14Unsere neue erste Ikea Küche - Planung und Vorbereitung - Seite 369
15Wann ist ein Hang ein Hang? Keller vs. Bodenplatte - Seite 319
16Grundriss Neubau Einfamilienhaus: Fenster/Türen/Innenwände Größe/Anordnung ok? - Seite 220
17Entwurf / Verbesserung Einfamilienhaus 150-175m² mit Walmdach und Keller 39
18Bungalow 135qm: Grundriss + Fenster - Seite 10104
19Heizung in Küche "notwendig"? - Seite 435
20OG Stadtville optimieren. Fenster Bodentief - Seite 16104

Oben