Bauplatz 920 qm - Kreativität und Meinungen gefragt

4,00 Stern(e) 27 Votes
Zuletzt aktualisiert 24.11.2025
Sie befinden sich auf der Seite 11 der Diskussion zum Thema: Bauplatz 920 qm - Kreativität und Meinungen gefragt
>> Zum 1. Beitrag <<

S

sanftmut

Ok - Danke schon mal an alle!!!

Melde mich wenn ich wieder eine Runde weiter bin.

Das Wohnzimmer werden wir definitiv im Verhältnis / zu Küche/Essen vergrößern. Danke an ypg dafür!

Melde mich !!

LG
 
S

sanftmut

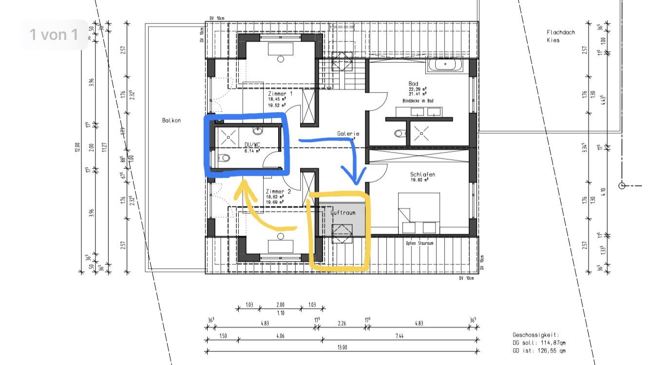
Da ja auch gesagt wurde, der Luftraum sei nicht optimal positioniert:

Was denkt Ihr:
Kinderbad und Luftraum „Position tauschen“ lassen? Siehe „Foto“

Vorteil wäre dass man die Westseite „offen am Luftraum“ hätte - Nachteil: Kinderbad nah an Elternschlaftimmer

Freue mich über Meinungen hierzu....!
Danke und liebe Grüße

2D-Grundrissplan eines Hauses mit Balkon, Flur und Bad
 
S

sanftmut

Danke - Bin ja kritikfähig

Aber: ich dachte eher dass der Luftraum hier sein sollte / wäre.


Grundriss eines Hauses mit offenem Wohnzimmer, Essbereich, Küche, Terrasse und Garage, gelb markierter Essbereich

Siehe Bild - vielleicht war das in meiner „Laien“Skizze nicht ausreichend klar

Aber gut - evtl war es auch eine dumme Idee....
 
Y

ypg

Im EG ist der Luftraum dort besser aufgehoben, aber Du liest nicht richtig: der Schall lässt oben alles lauter erscheinen.
Wenn mein Mann unten noch schaut und ich oben, höre ich seinen TV von unten, aber nicht meinen im Schlafzimmer (unter bestimmten Voraussetzungen) Wenn man zu Zwei ist, geht das, aber nicht mit Kindern.
 
11ant

11ant

Aber: ich dachte eher dass der Luftraum hier sein sollte / wäre.
Siehe Bild - vielleicht war das in meiner „Laien“Skizze nicht ausreichend klar
Ähm, dann muß ich wohl beinahe alles zurücknehmen und fast das Gegenteil behaupten - ja, da habe ich mich in der kleinen Bilddarstellung verlesen. Allerdings ...
evtl war es auch eine dumme Idee....
... trifft leider dennoch zu, siehe Yvonnes Erläuterung in #66.

Ich glaube allerdings inzwischen erkannt zu haben, woran Dein Entwurf krankt, d.h. seine Übergröße herbezieht: mir scheint, Dein Leitgedanke ist nicht, wie plant man das Haus "bedürfnisgerecht", sondern "baufensterausreizend". Mach´ diese "Loudness" Taste mal raus
 
Zuletzt aktualisiert 24.11.2025
Im Forum Grundrissplanung / Grundstücksplanung gibt es 2536 Themen mit insgesamt 87999 Beiträgen


Ähnliche Themen zu Bauplatz 920 qm - Kreativität und Meinungen gefragt
Nr.ErgebnisBeiträge
1Absturzsicherung Luftraum mittels Netz (Katamaran) 28
2Stadtvilla Fensterfront - Viel Luftraum und reisen Fenster! 24
3Einfamilienhaus mit großem Luftraum - Meinungen erbeten 42
4Luftraum über Küchenbereich 10
5Grundriss mit Vordach trotz Luftraum bei einer Stadtvilla 10
6"Kinderbad" - Grosses Becken oder zwei kleinere? 23
7Positionierung von WC und Waschtisch im Kinderbad 22
8Grundrissplanung: Elternbad und Kinderbad - ja oder nein? 52
9Badplanung: Gästebad mit Kinderbad zusammenlegen? 28
10Elternbad+Kinderbad Anordnungen 101
11Badplanung in Neubau (Eltern+Kinderbad) 35

Oben