Bauplatz 920 qm - Kreativität und Meinungen gefragt

4,00 Stern(e) 27 Votes
Zuletzt aktualisiert 24.11.2025
Sie befinden sich auf der Seite 15 der Diskussion zum Thema: Bauplatz 920 qm - Kreativität und Meinungen gefragt
>> Zum 1. Beitrag <<

J

j.bautsch

ja die raumwirkung ist gemeint. wenn dein Raum sehr groß ist (m²) und die decke sehr niedrig dann wirkt der Raum gedrungen und nicht wirklich großzügig. das gegenteilige hat man zb bei kleinen schmalen räumen. wenn diese dann zb beim Altbau sehr hohe decken haben wirken sie sehr unproportioniert hoch und schlauchig. also man muss die richtige "Balance" zwischen Raumgröße und Raumhöhe finden
 
T

TACiboy

Genau so wie j.bautsch es zusammengefasst hat. Ich sehe bei der (Riesen)Größe die "Gefahr", dass die Räume durch "Standard" Deckenhöhe sehr gedrückt wirken. Daher unbedingt auf die Höhe achten! Oder alternativ skalieren und das Haus etwas kompakter Planen - das schont Geldbeutel und bringt gleichzeitig mehr Gemütlichkeit (wer will schon in einem Tanzsaal wohnen)
 
S

sanftmut

Hm.... wir haben im EG 2,75 Rohbau-Höhe.
Ist nicht ganz die von Dir empfohlene Höhe, aber denke es sollte „reichen“...oder?
 
S

sanftmut

Liebe Forenmitglieder und Bau-Erfahrene:

Anbei nun unser ganz aktueller Entwurf (kurz vor Einreichung des Bauantrags).

Hauptänderung:
- Es wurde nun doch eine "Einliegerwohnung erschlossen" (daher der Treppen-Kubus im Süd-Osten).
- diverse "kleinere" Grundriss-Änderungen

Wer Lust hat nochmals darauf zu schauen ist herzlich eingeladen.

Herzlichen Dank nochmals für all Eure Ideen / Vorschläge.

LG und viel Freude allerseits

Architekturzeichnung: modernes Einfamilienhaus mit Garage, Ansichten Süden und Westen.


Architekturpläne: Front- und Nordansicht eines modernen Hauses mit Fenstern, Türen und Maßlinien.


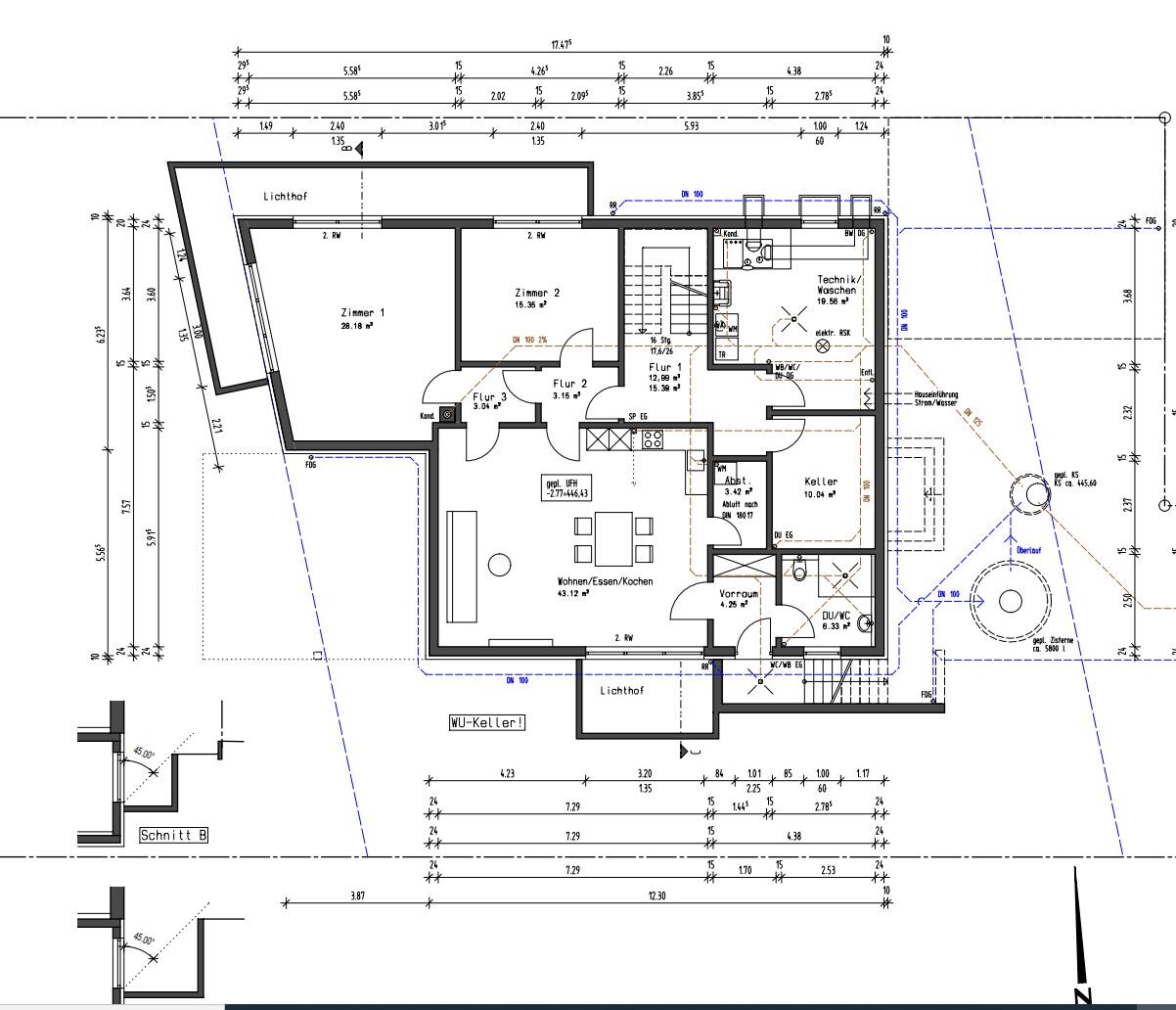
Grundriss eines Wohnhauses: Wohnzimmer, Küche, Flur, Zimmer 1, Zimmer 2, Keller, Technik/Wäsche


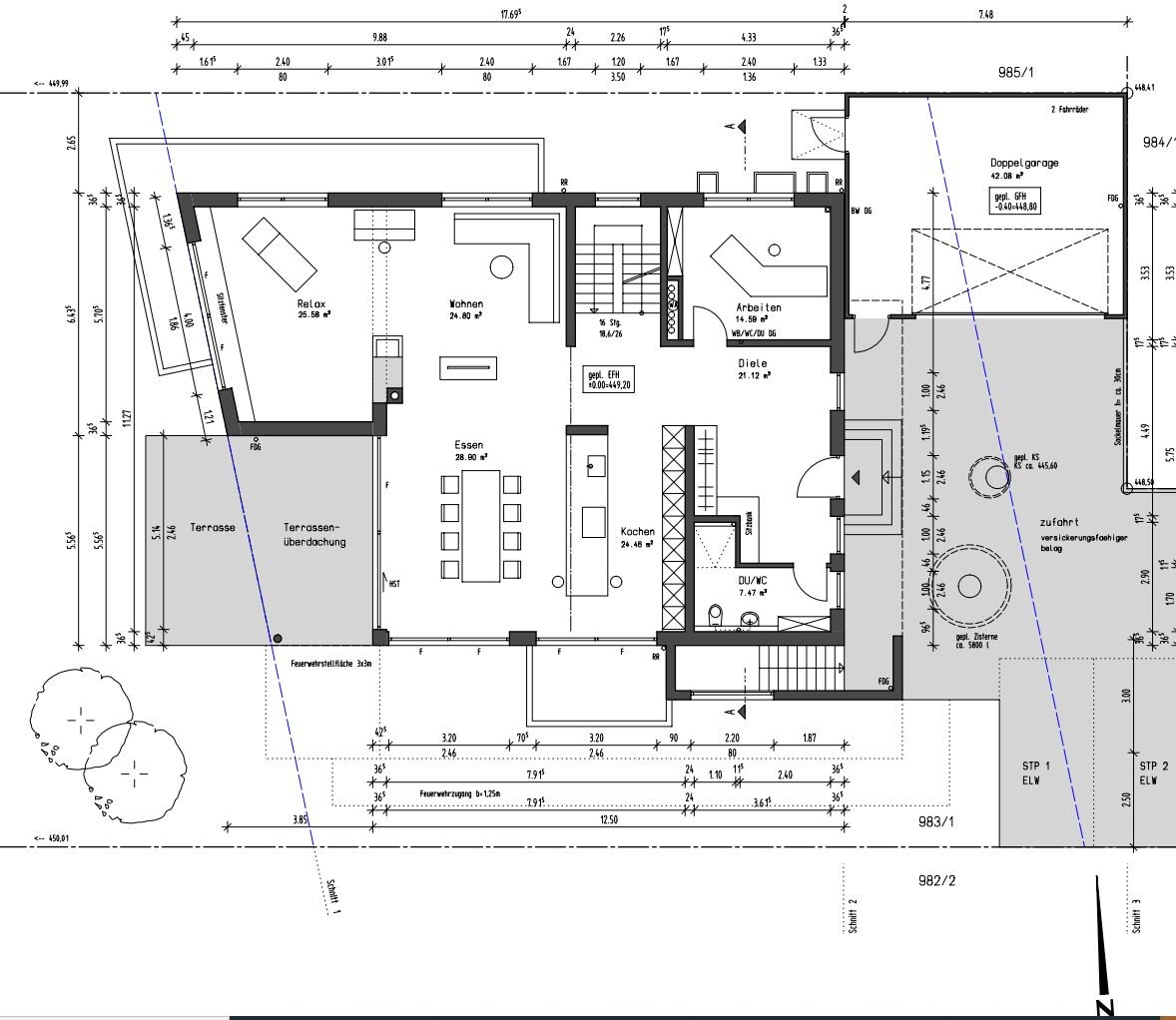
Grundriss eines Hauses: Wohnzimmer, Essen, Kochen, Terrasse, Arbeiten, Diele, Dusche/WC, Garage.


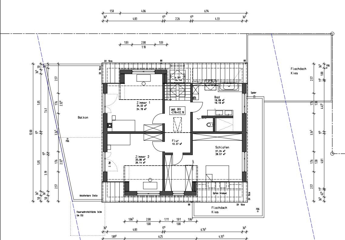
Dachgeschoss-Grundriss mit Balkon, Flur, zwei Zimmer, Schlafzimmer und Bad.


Schnitt A-A: Mehrstöckiges Haus mit Keller, Dachstuhl, Schlafen, Diele, Bad.
 
Zuletzt aktualisiert 24.11.2025
Im Forum Grundrissplanung / Grundstücksplanung gibt es 2536 Themen mit insgesamt 87999 Beiträgen
Oben