Bauplatz 920 qm - Kreativität und Meinungen gefragt

4,00 Stern(e) 27 Votes
Zuletzt aktualisiert 24.11.2025
Sie befinden sich auf der Seite 4 der Diskussion zum Thema: Bauplatz 920 qm - Kreativität und Meinungen gefragt
>> Zum 1. Beitrag <<

S

sanftmut

Ich würde wohl die Doppelgarage in den Osten setzen.
Haus mittig. Ihr habt Hang. Schon überlegt, wie das Hauskonzept (Größe) jetzt ausfallen wird? Keller zum Osten offen, ggf dort schon eine Schlaf-Etage (oder Büro, Hobby) zusätzlich zu Nutzräumen, EG als Aufenthalt mit Terrasse zum Westgarten, OG Schlaf-Etage.
Ziemlich genau so sind unsere Pläne.

220 qm zzgl Keller

Zur Westseite ist jetzt halt die Frage, ob wir lieber unser Haus so weit wie möglich nach Westen setzen um dadurch eventuell einen Sichtschutz zu haben.
Eventuell mit Pergola? Mauerverlängerung oder L Form oder oder oder ...

Danke für Eure Ideen dazu....

GlG
 
S

sanftmut

Ich denke auch dass Wohn UG nichts wird - dazu ist das Grundstück zu „flach“.
Ich denke es ist
ca 1,5 m abwärts West n Ost auf ca 39 m
und ca 0,7 m abwärts Nord n Süd auf 20 m

Danke ✊
 
Y

ypg

Zur Westseite ist jetzt halt die Frage, ob wir lieber unser Haus so weit wie möglich nach Westen setzen um dadurch eventuell einen Sichtschutz zu haben.
Ich weiß jetzt nicht, was Du glaubst, wie viel Spielraum ihr habt?
Mit 3 Metern zum Nachbarn verbleibt bei der Hausgröße nicht viel mit „nach Westen schieben“. Und wenn es sich jetzt um 2 Meter handelt, muss man jetzt nicht darüber diskutieren, Sichtschutz ergibt das jedenfalls nicht.
Die schräge Baugrenze ist nicht von Vorteil.

Der Hang sieht immer flacher aus, als er ist. Wenn Du mit Keller baust und nicht gegen den Hang, wirst Du mit etwas Modellierung schon Dein richtiges Fenster im Osten fürs Büro bekommen.

Ich würd mal mit definitiven Zahlen und einem Plan ankommen, alles andere ergibt sich.
 
S

sanftmut

Danke!
Ein Gedanke war unter anderem ob man zB mit einer oben (Norden) möglichst weit nach West auslaufenden L-Form des EG-Grundrisses (untergeordnetes Bauteil) etwas erreicht (zB mit Ballon oben darauf). Mit dem Ziel, sich so „gegen“ den nördlichen und damit auch etwas höher gelegenen Nachbarn (der vermutlich nach Südwest ausrichten wird) einen besseren Sichtschutz zu machen ....

Nur als Idee.... was meint Ihr?

Ich werde mal was hier reinstellen sobald ich was in der nächsten Runde habe...

LG ✊
 
S

sanftmut

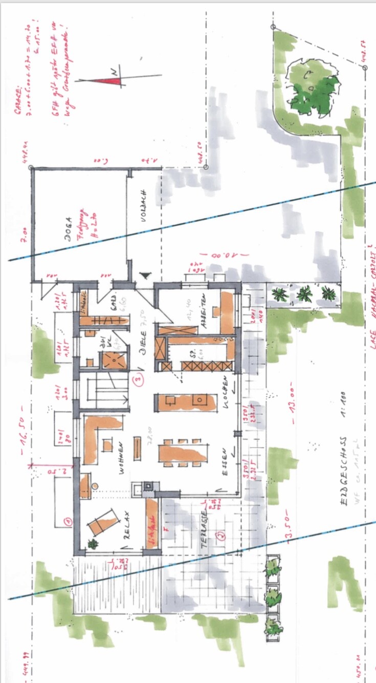
So die Herrschaften,

uns liegt nun der erste Entwurf des Architekten vor.

Anbei die Ersten „Vor-Entwürfe“ des Architekten.

Wir haben natürlich bereits erste Änderungswünsche/Ideen kommuniziert. Aber das ist der aktuelle Stand auf Papier.

Wer Lust hat, ist natürlich herzlich eingeladen seine Gedanken dazu zu sagen!

Sind nicht ganz sicher was wir davon halten - insbesondere DG.
Und ob nicht ein 2m breiteres Haus also 12 statt 10 m (Nord-Süd) die Raumplanung erleichtern und „großzügig“ wirken lassen...

Danke im Voraus und
GlG

Grundriss einer Wohnung mit drei Zimmern, Küche, Bad, Flur und Balkon.

Skizzenhafter Grundriss eines Hauses mit Wohn- und Essbereich, Küche, Flur und Garten.

Grundriss eines Dachgeschosses mit zwei Zimmern, Flur, Treppe und Möbeln

Architektur-Skizze eines Gebäudes mit rechteckigem Grundriss und schrägem Anbau rechts.
 
Zuletzt aktualisiert 24.11.2025
Im Forum Grundrissplanung / Grundstücksplanung gibt es 2536 Themen mit insgesamt 87999 Beiträgen


Ähnliche Themen zu Bauplatz 920 qm - Kreativität und Meinungen gefragt
Nr.ErgebnisBeiträge
1Doppelhaushälfte am Hang mit Keller Grundriss suche. 17
2Wann ist ein Hang ein Hang? Keller vs. Bodenplatte 19
3Erste Grundrissplanung auf Karopapier: Hang, Keller + 2 Geschosse. 80
4Grundriss-Optimierung Neubau, Einfamilienhaus 2 Vollgeschosse ohne Keller am Hang - Seite 333
5Grundriss: Bauen leichten Hang - nicht genug für Keller wegen Aushub? 22
6Meinungen zum Grundstück am Hang. - Seite 222
7Vorschläge vom Architekten enttäuschend - Wie weiter? - Seite 232
8Grundrissplanung einer Stadtvilla mit Staffelgeschoss am Hang 13
9Einfamilienhaus-Planung am Hang (2.700qm Grundstück) - Erfahrungen / Diskussion 42
10Grundstück am Hang im Münchner Umland - wie entscheiden? - Seite 754
11Keller ursprünglich zum teil in Beton, nun ggf. komplett gemauert - Seite 528
12Besonderer Grundriss oder langweilig mit Keller? - Seite 220
13Keller aus WU Beton oder Poroton? 17
14Grundstück am Hang; Aufschüttung- Abfangung- Kosten? 10
15Baukosten bei Bau mit Architekten. Was sagt eure Erfahrung? 18
16Architekten finden - aber wie? - Seite 326
17Muss ein außenliegender Kamin bis in den Keller gehen 12
18Ohne Keller gebaut & bereut? - Seite 1277
19Für welchen Keller habt ihr euch entschieden? 13
20Grundriss Einfamilienhaus, ~180m², Keller mit Satteldach - Seite 681

Oben