Baukosten Grobabschätzung, realistisch oder nicht?

4,40 Stern(e) 5 Votes
M

mrjinks

Liebe Forumsmitglieder,

da ich den Eindruck habe, dass hier einiges an Fachkompetenz vorhanden ist möchte ich Euch gerne um Eure Einschätzung zu folgendem Sachverhalt bitten.
Meine Frau und ich würden gerne ein Heim für unsere kleine Familie bauen. Grundstück haben wir unabhängig erworben. Wir haben auch bereits einen GÜ gefunden, der uns von mehreren Seiten empfohlen wurde. Nach mehreren Gesprächen haben wir den Eindruck gewonnen den absolut richtigen Partner gefunden zu haben. Zum einen weil wir uns auf mehreren Baustellen einen Eindruck über die Arbeit verschaffen konnten zum anderen, weil er auf diverse Fragen stets eine Antwort lieferte die mir schlüssig erschien und auch nach querlesen diverser Foren bestätigt wurden. Der GÜ arbeitet ausschließlich mit Handwerkern aus der Region zusammen. Menschlich stimmts ebenfalls. Das einzige was mich noch etwas verunsichert sind die doch überraschend hohen Baukosten.

Daher wäre meine Bitte, mir ein kurzes Feedback zu den Gesamtkosten zu geben, eine Kostenaufschlüsselung kann ich leider nicht vorweisen.

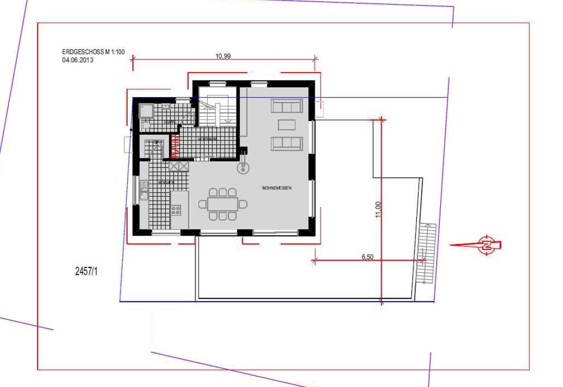
Die letzten Grundrisse habe ich angefügt, hier überlegen wir jedoch gerade noch wo Einsparpotenzial möglich ist. Außenmaße sind 11m x 9,36m Die Überdachung des Eingangs und das Dach der Garage soll als teilweise begrünte Dachterrasse genutzt werden, die ebenerdig in den dann begradigten Hang übergeht.

Wir bauen in BW in direktem Einzugsgebiet dreier großer Konzerne der Automobilbranche.

Hier einige Details aus der Beschreibung des Bauvorhabens, ich denke dass wir KfW 70 erreichen werden, für KfW 55 wird's eher eng.

Ca. 185qm Wohnfläche inkl. der Zimmer im UG mit Fenstern nach vorne raus
Hanglage
Massivbauweise mit MZ8 Thermoziegel
Satteldach, Pfettenkonstruktion, Dachdämmung 220mm
zentrale Kontrollierte-Wohnraumlüftung mit Wärmerückgewinnung
Fußbodenheizung in allen Räumen auch im UG im Hobbyraum, Abstellraum und Windfang
Luftwasser Wärmepumpe
Attika auf Dach Garage und Überdachung Eingang
Baunebenkosten im Angebot enthalten (Ausnahme Baugenehmigung, Baustrom und Bauwasser)
3fach Verglasung, Schüco Fenster mit Roto Beschlägen
Ausbau Dachgeschoss bis unter den Giebel
Ausbau Schlüsselfertig inkl. Fliesen, Maler, Parkett, Sektionaltor etc.

Das Angebot beläuft sich aktuell auf 450k€, hinzu kommt Küche, evtl. neue Möbel und Außenanlage wofür ich 80k€ beiseite lege. Frage nun ob sich die Baukosten im plausiblen Bereich befinden oder eher zu hoch gegriffen sind. Laut Baupreisindex sind die Baukosten in BW seit 2005 um ca. 20% gestiegen sind.

Vielen Dank für die Unterstützung vorab,
Grüße

Dachgeschoss-Grundriss: Bad, Schlafen, KIND 1, KIND 2, Treppe, Flur


Grundriss Erdgeschoss: offener Wohn-/Essbereich, Küche, Treppe, Außenmaße.


Untergeschoss-Grundriss mit mehreren Räumen, Türen, Treppen, Maßlinien und Wänden.
 
M

mrjinks

kurzer Nachtrag:

Da ich nicht vom Fach bin bitte ich um Entschuldigung, falls wesentliche Informationen fehlen und eine Grobbewertung so nicht möglich ist. Sofern dem so ist bitte mich einfach wissen lassen.

Grüße
 
B

Bauexperte

Hallo,

... Das einzige was mich noch etwas verunsichert sind die doch überraschend hohen Baukosten.
Mich nicht wirklich, denn Du gedenkst einen ordentlichen Brocken Steine in die Landschaft zu stellen.

Die letzten Grundrisse habe ich angefügt, hier überlegen wir jedoch gerade noch wo Einsparpotenzial möglich ist.
Das kann ich vlt. beantworten, wenn Du mir den Schnitt, eine Außenansicht (Eingang) zur Verfügung stellst und Auskunft zu nachfolgender Frage gibst.

Baunebenkosten im Angebot enthalten (Ausnahme Baugenehmigung, Baustrom und Bauwasser)
Was verbirgt sich hinter dieser Position? Anders gefragt - was ist/soll in diesen Baunebenkosten enthalten sein?

Laut Baupreisindex sind die Baukosten in BW seit 2005 um ca. 20% gestiegen sind.
Ein Haus zu bauen ist überall in der Republik teurer geworden; nicht nur in BW.

Grüße, Bauexperte
 
M

mrjinks

Hallo Bauexperte,

in den Baunebenkosten enthalten sind die folgenden Positionen:
- Geometerleistung
- Baustromkasten
- Baustelleneinrichtung/Baukran
- Humusabbau
- Aushub
- Abfuhr bis zu 2/3 des Aushubs
- Deponiegebühren
- Kanalaushub/Kanalrohr/Anschluss Kanal
- Kontrollschacht
- Anschieben
- Ringdrainage an den erdüberdeckten Stellen


Nach unseren Infos fallen noch die folgenden Positionen zusätzlich an, die nicht abgedeckt sind:
Genehmigungsgebühr 2.000
Gebäudebrandversicherung 150
Bauwasser/Strom 1.000
Frischwasseranschluss 800
Stromanschluss 3.000
Telekom 350
Auskoffern der Einfahrt 1.500
Entwurzeln Deponie 35,7€/Stk 1.250
(wir haben mehrere Bäume, Fällen übernimmt der Verkäufer des Grundstücks)

Eine Außenansicht des Gebäudes haben wir leider noch nicht, das wäre dann Umfang der Werksplanung und steht in Kürze bevor. Wir haben allerdings bereits Geländeschnitte machen lassen um den Aushub und die Übereinstimmung unseres Vorhabens bzgl. Bebauungshöhe etc. überprüfen zu können (siehe Anhang)

Die Veränderungen, die wir an den gezeigten Entwürfen gemacht haben sind marginal. Die Garage 1m kürzer, dafür das hintere rechte Eck ausgebaut, die Überdachung statt 4m 3,5m und das Außenmaß von 11m auf 10,75m reduziert. Die Tür zwischen Garage und überdachtem Bereich gedenken wir entfallen zu lassen. Wir ringen gerade noch mit uns ob wir den Kamin wirklich brauchen, da wir den Kaminofen "nur" fürs Ambiente anmachen würden, die kleinsten aber schon so viel Heizleistung haben, dass wahrscheinlich zwei Holzscheite reichen umd das Wohnzimmer aufzuheizen.

Vielen Dank und Gruß zurück in die rheinische Heimat,

Technische Zeichnung einer Seitenansicht eines Hauses mit Geländeprofil und Fundamenten
 
Zuletzt aktualisiert 15.11.2025
Im Forum Baukosten / Baunebenkosten / Baupreise gibt es 872 Themen mit insgesamt 29471 Beiträgen


Ähnliche Themen zu Baukosten Grobabschätzung, realistisch oder nicht?
Nr.ErgebnisBeiträge
1Sanierung & DG-Ausbau: KfW? Wirtschaftlichkeit vs. Neubau? 18
2Grundstück - Baufenster - Lage von Haus und Garage - Seite 344
3Stadtvilla 160-170 m², Problematik Anschluss Windfang mit Garage - Seite 332
4Baunebenkosten und allgemeine Kosten für Neubau Doppelhaushälfte 14
5Einschätzung Baukosten (und Baunebenkosten) 11
6Baukosten ca. 400K - Baufinanzierung so machbar? 11
7Baukosten Schätzung für unseren Traum vom Haus 12
8Grundstück da - Baunebenkosten, Hausnebenkosten, Finanzierung? - Seite 234
9Baufinanzierung - was können wir uns leisten? - Seite 2104
10Garage konstruktiv eigenständig - Was bedeutet das konkret? - Seite 215
11KD-Überdachung Erfahrungen. Wer hat mit denen gearbeitet? - Seite 114766
12Hanghaus 235 qm mit Garage im Keller auf 3600 qm Grundstück 15
13Überdachung Hauseingang wie Ausführen 16
14Hausbau: Eigenkapital / Baunebenkosten realistisch? 14
15Baunebenkosten und Baunebenkosten realistisch? - Seite 321
16Baukosten in Süddeutschland - Erste grobe Kostenabschätzung 15
17Grundriss mit Garage auf Grundstück realisierbar? - Seite 229
18Doppelhaushälfte mit 2 Wohneinheiten KFW 10
19Bau Garage auf Grenze geht lt. Architekt nicht. - Seite 211
20Grundriss Einfamilienhaus mit Garage, eigenplanung 17

Oben