S
Samantheus
Hallo zusammen,
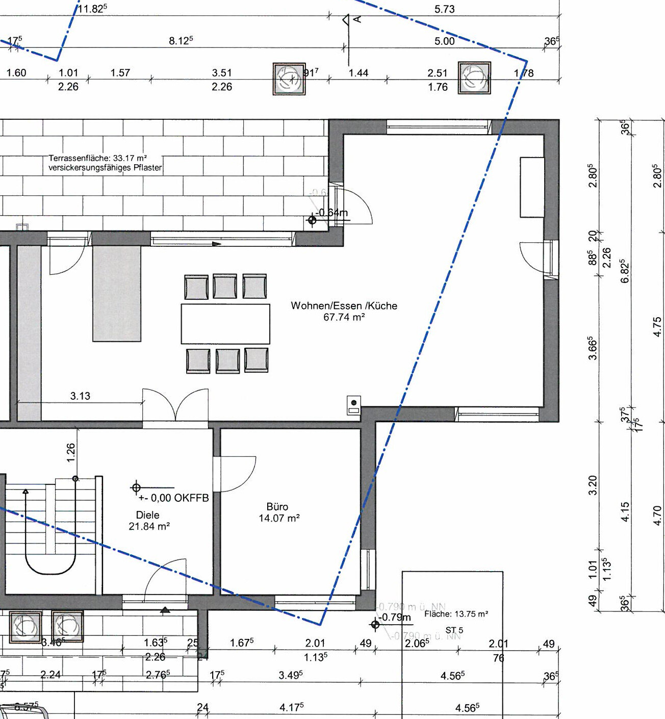
wir sind gerade bei der Planung eines Neubauvorhabens und finden noch so keine wirklich ideale Möglichkeit das Wohnzimmer ideal einzurichten. Da wir noch in einer Phase sind wo man Fenster ggf. verändern kann, bin ich mal gespannt ob ihr noch eine gute Idee habt. Den Grundriss habe ich unten angehängt. Es geht also um den rechten Teil in dem Anbau.
Prinzipiell sollen folgende Objekte mindestens rein:
Die grundlegende Idee ist vom Kamin unten eine Wand (ggf. halbhoch) als Raumtrenner zum Essbereich einzuziehen. Die Wand soll nach aktueller Planung insgesamt vom Wohnzimmer aus gesehen ca. 2.8m lang sein und enden mit einem Gaskamin mit 3 Scheiben, wobei die Scheiben an den langen Seite je 75cm sind. Das Fenster oben soll eine Art Panorama-Sitz-Fenster werden mit einer Holzbank anstatt einer klassischen Fensterbank.
Unsere erste Idee zur Einrichtung war:
Variante 1
Sofa: Ins Eck unten rechts
Sessel: Mittig im Raum
Fernseher: Links neben dem Gaskamin an der eingezogenen Wand
Klavier: Rechts oben, knapp über dem Fenster an der rechten Wand
Boxen: Links und Rechts vom Sitzfenster an der oberen Wand
Tipi: Oben links im Eck
Was wir uns jetzt bei der Variante gefragt haben ist ob die eingezogene Wand nicht etwas klein dafür ist. Auf 2.8m Breite müsste dann der Kamin mit ca. 75cm Sichtfenster und der Fernseher mit ca. 167cm Breite untergebracht werden, das könnte dann vielleicht etwas "gedrängt" wirken. Aber der Vorteil ist man kann vom Sofa aus sowohl den Kamin, den Fernseher und den Garten gut sehen. Der Sessel kann sowohl zum Kamin, zum Fernseher als auch zum Klavier oder zum Garten ausgerichtet werden und ist darum sehr flexibel.
Darum haben wir uns alternativ eine andere Variante überlegt:
Variante 2
Sofa: Beginnend unter dem Fenster auf der rechten Seite mit mit Blick nach unten und nach links.
Sessel: fällt weg
Fernseher: An der Wand unten (Fenster müsste umgeplant werden und würde dann an die rechte Wand wandern)
Klavier: Wie Variante 1
Boxen: Entweder wie Variante 1 oder links und rechts vom Fernseher
Tipi: Wie Variante 1
Vorteil wäre hier das die Kaminwand nicht so gedrängt wäre und man flexibel wäre was die Fernsehergröße angeht. Auch wenn in 20 Jahren mal 3m Fernseher der Standard sind wäre das dann noch problemlos umsetzbar. Insgesamt hätte man dann eher eine abgeschlossene Sitzecke und nicht mehr so den offenen Charakter. Nachteil wäre das der Blick zu Garten und Klavier von der Couch nicht mehr so ideal ist. Man könnte dann die Kaminwand ggf. auch etwas kürzer gestalten sodass der Durchgang zum Essbereich etwas größer wäre.
Variante 3
Sofa: An der Kaminwand und an der unteren Wand lang (Kaminseite müsste kleiner sein, max 2m dort)
Sessel: Wie Variante 1
Fernseher: An der rechten Wand unterhalb des Fensters
Klavier: Wie Variante 1
Boxen: Entweder wie Variante 1 oder links und rechts vom Fernseher
Tipi: Wie Variante 1
Hier hätte man auch die Flexibilität mit dem Fernseher, müsste aber ein deutlich kleineres Sofa nehmen. Der Blick auf dem Kamin wäre nicht so ideal, dafür wäre wieder Platz für den Sessel und der Blick in den Garten durch das Panorama Fenster sowie auf das Klavier gut möglich.
Also es haben gefühlt alle Varianten so ihre Vor- und Nachteile.... da jedoch auch die Fensterplanung davon abhängt, müssen wir uns leider sehr bald entscheiden. Übersehen wir vielleicht die beste Variante auf die wir noch gar nicht gekommen sind? Habt ihr noch eine gute Idee oder einen Tipp? Welche Variante würdet ihr nehmen?
Und noch eine extra Frage: Ich habe in anderen Threads hier so schöne Visualisierungen gesehen. Könnt ihr ein Freeware Programm empfehlen in dem ich den Grundriss und die Möbel einzeichnen kann und mir das dann mal ansehen?
Vielen Dank vorab!
Grundriss
wir sind gerade bei der Planung eines Neubauvorhabens und finden noch so keine wirklich ideale Möglichkeit das Wohnzimmer ideal einzurichten. Da wir noch in einer Phase sind wo man Fenster ggf. verändern kann, bin ich mal gespannt ob ihr noch eine gute Idee habt. Den Grundriss habe ich unten angehängt. Es geht also um den rechten Teil in dem Anbau.
Prinzipiell sollen folgende Objekte mindestens rein:
- sofa (aktuelle Planung Eckcouch, ca. 3m x 3m)
- Sessel
- Fernseher (65"-75")
- Klavier
- 2 große Standboxen
- Gaskamin
- Tipi (Kinderspielzelt, ca. 1.2m x 1.2m)
Die grundlegende Idee ist vom Kamin unten eine Wand (ggf. halbhoch) als Raumtrenner zum Essbereich einzuziehen. Die Wand soll nach aktueller Planung insgesamt vom Wohnzimmer aus gesehen ca. 2.8m lang sein und enden mit einem Gaskamin mit 3 Scheiben, wobei die Scheiben an den langen Seite je 75cm sind. Das Fenster oben soll eine Art Panorama-Sitz-Fenster werden mit einer Holzbank anstatt einer klassischen Fensterbank.
Unsere erste Idee zur Einrichtung war:
Variante 1
Sofa: Ins Eck unten rechts
Sessel: Mittig im Raum
Fernseher: Links neben dem Gaskamin an der eingezogenen Wand
Klavier: Rechts oben, knapp über dem Fenster an der rechten Wand
Boxen: Links und Rechts vom Sitzfenster an der oberen Wand
Tipi: Oben links im Eck
Was wir uns jetzt bei der Variante gefragt haben ist ob die eingezogene Wand nicht etwas klein dafür ist. Auf 2.8m Breite müsste dann der Kamin mit ca. 75cm Sichtfenster und der Fernseher mit ca. 167cm Breite untergebracht werden, das könnte dann vielleicht etwas "gedrängt" wirken. Aber der Vorteil ist man kann vom Sofa aus sowohl den Kamin, den Fernseher und den Garten gut sehen. Der Sessel kann sowohl zum Kamin, zum Fernseher als auch zum Klavier oder zum Garten ausgerichtet werden und ist darum sehr flexibel.
Darum haben wir uns alternativ eine andere Variante überlegt:
Variante 2
Sofa: Beginnend unter dem Fenster auf der rechten Seite mit mit Blick nach unten und nach links.
Sessel: fällt weg
Fernseher: An der Wand unten (Fenster müsste umgeplant werden und würde dann an die rechte Wand wandern)
Klavier: Wie Variante 1
Boxen: Entweder wie Variante 1 oder links und rechts vom Fernseher
Tipi: Wie Variante 1
Vorteil wäre hier das die Kaminwand nicht so gedrängt wäre und man flexibel wäre was die Fernsehergröße angeht. Auch wenn in 20 Jahren mal 3m Fernseher der Standard sind wäre das dann noch problemlos umsetzbar. Insgesamt hätte man dann eher eine abgeschlossene Sitzecke und nicht mehr so den offenen Charakter. Nachteil wäre das der Blick zu Garten und Klavier von der Couch nicht mehr so ideal ist. Man könnte dann die Kaminwand ggf. auch etwas kürzer gestalten sodass der Durchgang zum Essbereich etwas größer wäre.
Variante 3
Sofa: An der Kaminwand und an der unteren Wand lang (Kaminseite müsste kleiner sein, max 2m dort)
Sessel: Wie Variante 1
Fernseher: An der rechten Wand unterhalb des Fensters
Klavier: Wie Variante 1
Boxen: Entweder wie Variante 1 oder links und rechts vom Fernseher
Tipi: Wie Variante 1
Hier hätte man auch die Flexibilität mit dem Fernseher, müsste aber ein deutlich kleineres Sofa nehmen. Der Blick auf dem Kamin wäre nicht so ideal, dafür wäre wieder Platz für den Sessel und der Blick in den Garten durch das Panorama Fenster sowie auf das Klavier gut möglich.
Also es haben gefühlt alle Varianten so ihre Vor- und Nachteile.... da jedoch auch die Fensterplanung davon abhängt, müssen wir uns leider sehr bald entscheiden. Übersehen wir vielleicht die beste Variante auf die wir noch gar nicht gekommen sind? Habt ihr noch eine gute Idee oder einen Tipp? Welche Variante würdet ihr nehmen?
Und noch eine extra Frage: Ich habe in anderen Threads hier so schöne Visualisierungen gesehen. Könnt ihr ein Freeware Programm empfehlen in dem ich den Grundriss und die Möbel einzeichnen kann und mir das dann mal ansehen?
Vielen Dank vorab!
Grundriss