Planung unseres Einfamilienhaus - Was meint ihr zum Entwurf?

4,30 Stern(e) 3 Votes
Zuletzt aktualisiert 21.11.2025
Sie befinden sich auf der Seite 5 der Diskussion zum Thema: Planung unseres Einfamilienhaus - Was meint ihr zum Entwurf?
>> Zum 1. Beitrag <<

H

Hausbau Re

Die Säulen vom Vordach sind auch erst mal weggekommen und ist somit freitragend.
Die frage ist bei mir nur wie sich der Preis verändert und ob man da was einsparen kann.
Da mir die Optik eigentlich mit gefallen hat aber mein dad Zimmermann ist und mir dann eventuell selber welche dahin macht.
Kommt halt wie alles immer auf den Preis an.
 
kbt09

kbt09

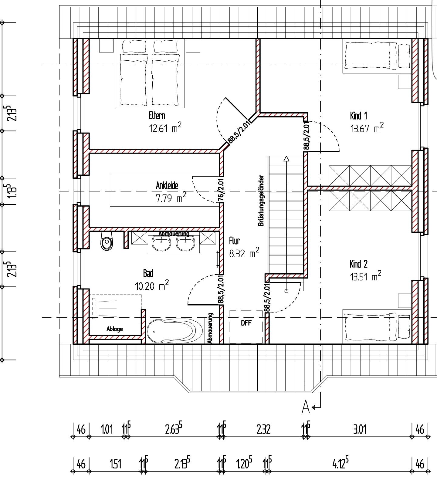
Sorry, das ist eine bescheuerte Badplanung. Besser kann ich es nicht ausdrücken.

Grundriss eines Dachgeschosses: Elternzimmer, zwei Kinderzimmer, Ankleide, Bad, Flur, Treppenhaus.

Die Dusche beginnt ohne Not noch unter der Dachschräge.

Die Reinkommsituation ins Kinderzimmer 2 ist immer noch gegen die Dachschräge laufen.

Tja .. da ist wohl bereits alles fest im Hirn verzahnt, so dass Alternativen noch nicht mal entsprechend bemerkt werden.

P.S:
Sei doch mal so gut und beschneide deine Bilder auf das Wesentlich vor dem Hochladen. Für das OG deiner letzten Planung habe ich es mal gemacht.
 
Y

ypg

@Hausbau Re
Ich denke, dass die erfragte Reaktion von @kbt09 sich auf ihre Mühe und Gedanken beziehen.
Das ist hier im Forum und in normalen Kreisen auch ein Selbstgänger, auf eine Reaktion einer eigenen Frage zu antworten, wenn nicht sogar es mit dankbaren Worten zu honorieren
Auch wenn ihre Alternative Dich nicht so recht berühren mag, so hat sie sicherlich einige kostenfreie Zeit für Deine Planung investiert.
 
kbt09

kbt09

@ypg .. danke .. so gar keine Reaktion ist halt schon recht ungewöhnlich

Jetzt bin ich noch am überlegen ob ich die Mauer an der Garderobe und im Wohnzimmer wo die tv Möbel stehen noch länger laufen lasse bis auf Höhe der Möbel.
(jetzt auch den EG-Plan beschnitten)

Grundriss eines Einfamilienhauses: Garage mit Auto, Wohn- und Essbereich, Küche, Büro.


Du meinst den Gang ins Wohnzimmer noch länger? Sind doch jetzt schon 2m und irgendwie eine Art Tunnel mit 3 Türen.
 
H

Hausbau Re

Ja ich dachte ob es nicht vlt. Besser ist eine Nische für die Garderobe zu haben aber jetzt wo du es sagst ist es offen besser und man hat auch mehr Spielraum
 
H

Hausbau Re

Und noch mal vielen Dank für deine mühe.
Das mit der Bauplanung ist Geschmacksache und diese gefällt uns besser und macht auch keine Probleme in der ankleide.
Das reinkommen in dem 2 Kinderzimmer finde ich jetzt nicht so tragisch weil man ja gut 1,40m hat an breite um rein zukommen.
Mann muss halt bei allem Kompromisse machen.
 
Zuletzt aktualisiert 21.11.2025
Im Forum Grundrissplanung / Grundstücksplanung gibt es 2535 Themen mit insgesamt 87978 Beiträgen


Ähnliche Themen zu Planung unseres Einfamilienhaus - Was meint ihr zum Entwurf?
Nr.ErgebnisBeiträge
1Größe Kinderzimmer/Grundriss 12
2Position der Badewanne unter Dachschräge - Seite 222
3Sauna selbst bauen mit Dachschräge - Anregungen/Hinweise/Planungen - Seite 3220
4Regal für Dachboden - Dachschräge ohne Kniestock 35
5Badgrundriss mit Dachschräge Dachgeschoss - Seite 222
6Optimierung Grundriss und Badezimmerplanung mit Dachschräge - Seite 319
7Renovieren von Kinderzimmer 11
8Jalousien in Kinderzimmer und Bad auf der Südseite 12
9Größe vom Schlafzimmer und Kinderzimmer 38
10Kinderzimmer in Dachgeschoss zu klein geplant? - Seite 233
11Kinderzimmer im Obergeschoss bis zum Dach offen 25
12Ups...! Wir brauchen jetzt doch ein Kinderzimmer... 19
13Umbau Kinderzimmer - Fenster in zwei Fenster aufteilen? 20
14Kinderzimmer mit bodentiefen Fenstern 22
15Kork oder Bambus für Kinderzimmer? 41
16Grundrissplanung Hanghaus mit 5 Kinderzimmer 370
17Kinderzimmer und Schlafzimmer - Welche Größe ist zu empfehlen? 56
18Einrichtung Kinderzimmer - Wie sollen wir die gestalten? 15
1912x9,6m 2 Vollgeschosse, Keller, DG, 4 Kinderzimmer - Seite 14153
20Schallschutz Kinderzimmer 12

Oben