Planung unseres Einfamilienhaus - Was meint ihr zum Entwurf?

4,30 Stern(e) 3 Votes
Zuletzt aktualisiert 21.12.2025
Sie befinden sich auf der Seite 10 der Diskussion zum Thema: Planung unseres Einfamilienhaus - Was meint ihr zum Entwurf?
>> Zum 1. Beitrag <<

kbt09

kbt09

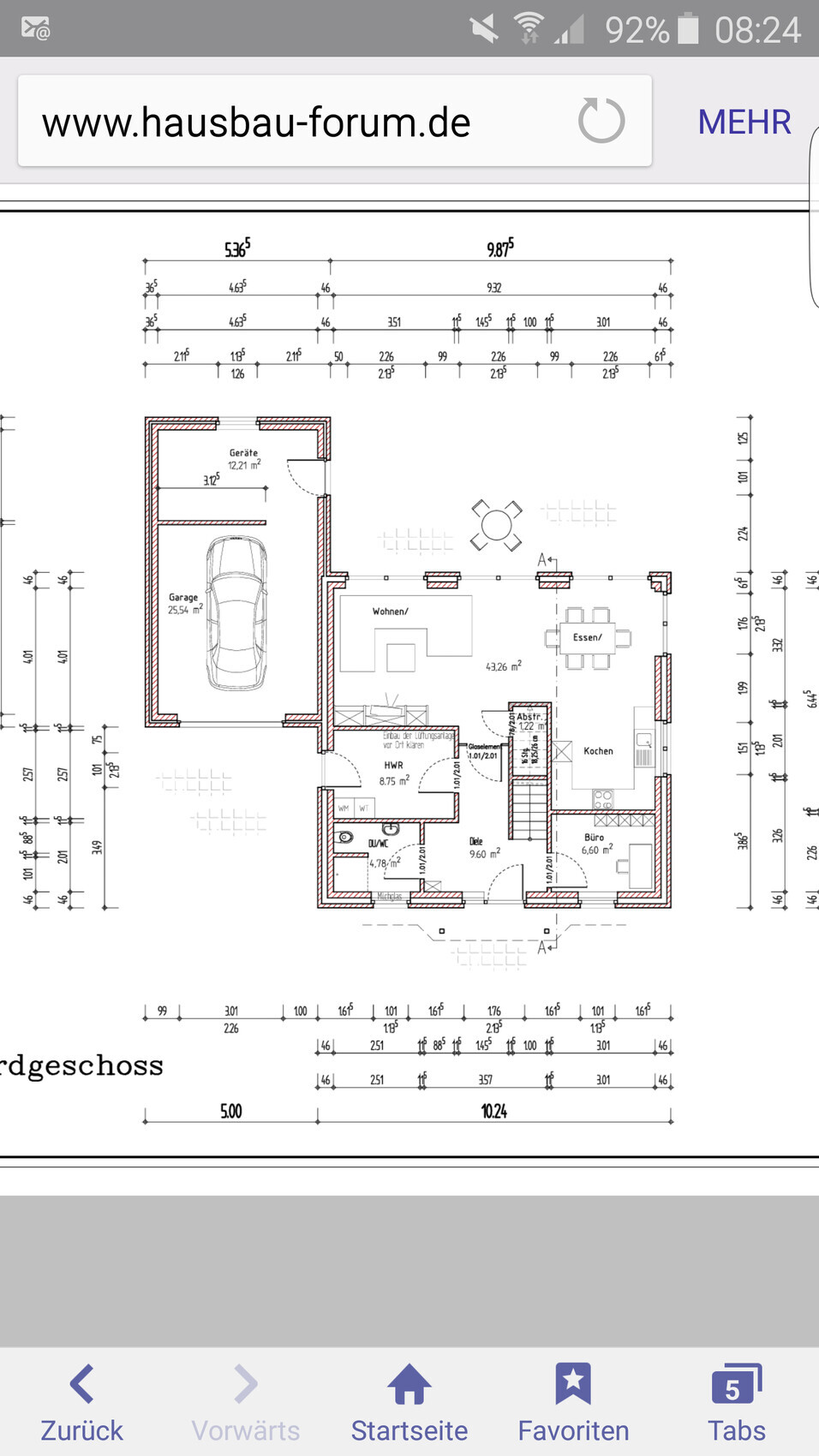
Der von @RobsonMKK verlinkte Grundriss stammt von dir, @Hausbau Re

Bei dem Grundriss:


sehe ich aber keine echte Chance im Alter komplett ins EG zu ziehen ... es sei denn, man macht aus dem Wohnbereich dann einen Schlafbereich. Generell ist auch das Bad so nicht geeignet für barrierefrei .. siehe Toilettennische. Zumindest müsste die Badezimmertür im EG nach außen öffnen.
 
H

Hausbau Re

Hallo ich habe mir jetzt mal die Ratschläge von kbt 09 und den anderen durch den Kopf gehen lassen.gleichzeitig habe ich mit fliesenlegern und Malern gesprochen und diese rieten mir auch von der Dusche ab unter der schräge.
Somit habe ich mal einen neuen Bad Plan erstellt und wollte mal fragen ob man an diesem noch was verbessern könnte.
Die dusche auf dem Bild ist 1m x 1m da der online Katalog nicht mehr her gab. wir werden diese aber auf 90 x 120 oder 90 x 140 vergrößern.

Badezimmer-Layout von oben: Waschbecken oben, Toilette unten links, Badewanne unten rechts, Pflanze.
 
Zuletzt aktualisiert 21.12.2025
Im Forum Grundrissplanung / Grundstücksplanung gibt es 2552 Themen mit insgesamt 88539 Beiträgen


Ähnliche Themen zu Planung unseres Einfamilienhaus - Was meint ihr zum Entwurf?
Nr.ErgebnisBeiträge
1Grundriss über 200qm - Was haltet die Experten davon? 13
2Meinung zum Grundriss eines geplanten Bauhauses 23
3Eure Meinungen zu unserem Grundriss und Angebot - Seite 322
4Meinungen f. Grundriss Einfamilienhaus ca. 160qm - Seite 229
5Planung Grundriss / Erster Entwurf für erstes Feedback - Seite 332
6Anregung - Kritik Grundriss Einfamilienhaus 320qm 29
7Ideenfindung für Grundriss 120m2 Einfamilienhaus - Seite 212
8Wie findet ihr den Grundriss? Habt ihr Vorschläge? - Seite 226
9Gestaltung Grundriss. Was sind eure Meinungen / Vorschläge? 15
10Ideen zum Grundriss und evtl. noch Tipps? 45
11Grundriss. Meinungen, Ideen und konstruktive Kritiken. - Seite 424
12Meinungen zum Grundriss Bungalow - Seite 342
13Einfamilienhaus auf ca. 160qm Grundriss 23
14Meinung zu Grundriss - 2-geschossiges Einfamilienhaus - Seite 438
15Grundriss mit KG auf Hanggrundstück 32
16Grundriss Einfamilienhaus mit Keller 19
17Grundriss Einfamilienhaus geplant, Fenster gefallen uns 43
18Grundriss Entwurfspläne - Was meint ihr dazu? - Seite 229
19Grundriss in optimierter Form - eure Meinung ist gefragt! 10
20Grundriss 150 m²-Hauses optimieren - Tipps 42

Oben