Planung unseres Einfamilienhaus - Was meint ihr zum Entwurf?

4,30 Stern(e) 3 Votes
Zuletzt aktualisiert 19.11.2025
Sie befinden sich auf der Seite 4 der Diskussion zum Thema: Planung unseres Einfamilienhaus - Was meint ihr zum Entwurf?
>> Zum 1. Beitrag <<

kbt09

kbt09

@ypg .. ich stutzte auch und habe glatt meinen Spiegelungsvorschlag gesucht .. aber, das war eine andere Planung.

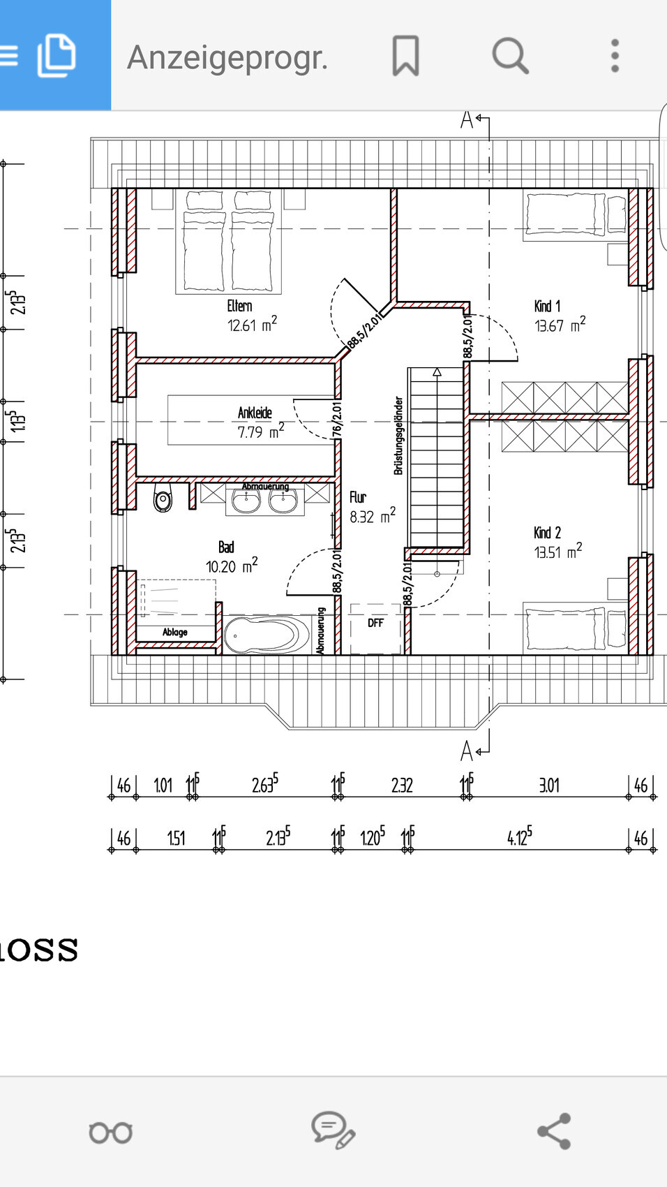
Spiegelung der Treppe bietet sich hier auch an, denn insbesondere im OG ist die Hochkommsituation ja nicht besonders gelungen.

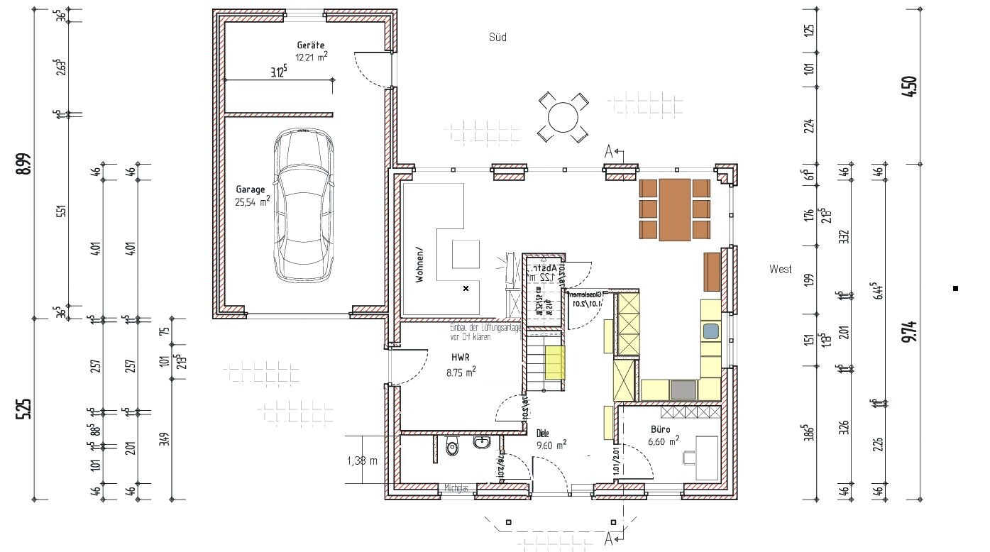
Auch finde ich, die Situation im Wohnzimmer .. ein Riesensofa vor bodentiefen Fenstern um in einen dunklen WZ-Bereich zu schauen nicht so toll und dann die Abstellkammer im Wohnbereich öffnen. Auch etwas wenig sinnvollen Garderobenplatz.

Daher mal EG die Treppe gespiegelt, den Hauswirtschaftsraum nach unten etwas vergrößert, Gästebad breiter aber schmaler und in der Wand zur Küche eine 120 cm breite Garderobennische. Daneben jeweils noch Platz für Garderobenhaken und unter der Treppe noch eine eingebaute Schukommode .. eher stufenartig wird das dann.

Im OG planoben (im Süden?) das Doppelflügelfenster, darunter noch mal Stauraumkommode. Planunten die Ecke dann einfach abgetrennt, da hat dann vielleicht noch ein Staubsauger und etwas Klopapiervorrat oder so Platz.

Die Ankleide mit 250 cm raumhohen Schrank und 350 cm Schrank in Kniestockhöhe, nach vorne oben kann evtl. noch etwas Platz entstehen. Hier nur ein sehr schmales Fenster.
Zum Schlafbereich eine Schiebetür, evtl. auch eine richtige Tür, müßte man dann mal genau ausprobieren.

Im Bad eine richtig schön große Dusche, auch hier wieder die Nischen noch für Stauraum gedacht.

Außerdem wird die Treppe nicht so sehr überschnitten, so dass auch durchgehend eine angenehme Kopffreiheit sein wird.

Grundriss einer Wohnungs-Etage: zwei Schlafzimmer, Bad, Treppe, Flur und Möbel.

Grundriss eines Hauses: Garage mit Auto, offener Wohn-/Essbereich, Küche, Büro, HWR.
 
H

Hausbau Re

Doch es kommt eine Reaktion und auch Bilder wenn alles fertig geplant ist.

Ich werde im WZ das Fenster hinter der Couch nicht bodentief machen.
Die Tür im Hauswirtschaftsraum kommt auch raus für ein normales Fenster wegen Stellfläche.
Das Gäste Bad wurde ein Stück verkleinert für die Garderobe.
Oben wurde die Dusche getauscht mit der Toilette da ich aus einem badstudio eine Planung erhalten hatte die uns auf Anhieb besser gefiel.
 
H

Hausbau Re

Jetzt bin ich noch am überlegen ob ich die Mauer an der Garderobe und im Wohnzimmer wo die tv Möbel stehen noch länger laufen lasse bis auf Höhe der Möbel.
 
Zuletzt aktualisiert 19.11.2025
Im Forum Grundrissplanung / Grundstücksplanung gibt es 2536 Themen mit insgesamt 87981 Beiträgen


Ähnliche Themen zu Planung unseres Einfamilienhaus - Was meint ihr zum Entwurf?
Nr.ErgebnisBeiträge
1Grundriss. Meinungen, Ideen und konstruktive Kritiken. 24
2Grundrissfrage, Treppe, Fenster, Ausrichtung 12
3 2 Vollgeschosse, Durchgang Garage, Hauswirtschaftsraum unter Treppe 25
4Grundrissfrage, Garage, Treppe 33
5Fenster / Türen / Garderobe 13
6Kleinstmögliches Fenster für Lüftung Hauswirtschaftsraum 22
7Platzierung der Möbel im Wohnzimmer im Grundriss 10
8OG Stadtville optimieren. Fenster Bodentief - Seite 7104
9Grundrissplanung: Badezimmer Dusche - Seite 347
10Treppe im Wohnzimmer als Hype - Pro & Contra? - Seite 426
11Bodengleiche Dusche mit Fenster in der Nähe 13
12Schalter für Rollläden am Fenster oder an der Tür? 38
13Hauswirtschaftsraum Raum ohne Fenster - Lüftungsanlage ausreichend? 26
14Dusche direkt am Fenster - kompatibel oder inkompatibel? - Seite 422
15Nicht-bodentiefe Fenster im Wohnzimmer unmodern? Welche Vorhänge? - Seite 217
16Schrank für Hauswirtschaftsraum 21
17Walk-In Dusche, Spritzwasser, brauche ich eine Tür? 35
18Treppe im Flur, Grundriss steht eigentlich schon :o( - Seite 320
19Dusche auf Podest und Schubfach 13
20Grundriss für 150qm Einfamilienhaus mit Wohnzimmer nach Norden 21

Oben