Neubau Einfamilienhaus - Begleitet uns dabei!

4,90 Stern(e) 15 Votes
Zuletzt aktualisiert 06.10.2025
Sie befinden sich auf der Seite 53 der Diskussion zum Thema: Neubau Einfamilienhaus - Begleitet uns dabei!
>> Zum 1. Beitrag <<

M

Myrna_Loy

Bei Projekten in dieser Größenordnung ist es doch fast normal, dass der Architekt erst mal ausloten muss, wie weit die Baubehörde mitgeht. Da der Architekt nicht aus der Region kommt, kennt er auch das Bauamt nicht und kann nicht auf Erfahrungswerte zurückgreifen, wie flexibel die sind. Ärgerlich sind die negativen Bescheide aber unnormal ist das nicht, wenn man versucht, den B Plan maximal auszureizen.
 
S

SoL

Ich habe aus dem Rendering ein paar Screenshots geschossen: Anhang anzeigen 76087
Anhang anzeigen 76088

Anhang anzeigen 76089

Unserem Geschmack nach ist die Galerie und dieser Innenraum gelungen - gefällt uns.
Puuh...
Das erste Bild sieht für meinen Geschmack schon arg nach Konferenzzentrum aus.
Ich habe nichts gegen Galerien, aber einfach nur die Raumdecke weg zu lassen, erschafft keine Traumhausatmosphäre.

Unabhängig von der Galerie: Viel Erfolg und Glück bei der weiteren Planung / Umsetzung.
 
G

gregman22

Hi zusammen,

ein neuer Meilenstein ist erreicht und es hat sich viel getan:
  • Es gab mehrere Gespräche zwischen Architekten, dem Bauamt und uns
  • Es wurden vorab mit dem Bauamt die gewünschten Abweichungen durchgesprochen und, in der jetzigen Fassung, bereits ein mündliches "ok" der Beamtin eingeholt
  • Es gab einige Feedbackschleifen zwischen uns und dem Architekt -> die Pläne für die Genehmigung sind fertig (siehe Anhang)
  • Wir werden vor 20.01. die Genehmigungspläne einreichen, sodass wir auf die Agenda der Sitzung am 06.02. kommen (bereits abgesprochen)
  • Wir haben uns nach einigen Gesprächen für eine Innenarchitektin & Einrichtungsberaterin entschieden, mit der wir die Arbeit noch nicht begonnen haben, die uns aber bei der Innengestaltung helfen wird und auch nochmal Impulse für den Grundriss gibt -> Änderungen, die keine essentiellen Eigenschaften beeinflussen (Baukörper, Deckenhöhen,...), werden wir noch nachträglich einfließen lassen können
  • Ihr werdet im Grundriss die neuen Deckenhöhen (EG 3m, OG 2,5m) sehen, was somit keine vollen Wohnräume im Dach generiert wie ursprünglich erhofft
  • Altbestand ist abgerissen; Im Januar folgen Bodengutachten & Vermessungsplanung
  • Wir mussten schmerzhafte Schleifen drehen zwecks Hochwasserschutz. Letztendlich müssen wir das EG auf kein Podest (50-60cm) heben, sondern die Version des Plans ist gemäß Experten in Ordnung.
Die folgenden Änderungen, die teils/hauptsächlich von euch (vielen Dank) kamen, sind ggf. noch nicht im finalen Grundriss eingebaut. Wir möchten zuerst alle Anpassungen sammeln, bevor wir finalisieren:

  1. Einliegerwohnung
    • Dusche im Bad natürlich plus normale Türe Richtung Schlafzimmer
    • Wir akzeptieren den von euch bemängelten Komfort (bspw Küchenzeile) in der Einliegerwohnung, da wir nichts in unser "Haupthaus" schieben wollen - es gefällt uns jetzt zu gut
    • Die Innenarchitektin hat schon angekündigt, sie nimmt sich dessen an
  2. EG
    • Zweite Türe nach draußen an der Küche wird es geben
    • Glasfront von Wohnzimmer zu Garderobe wird geschlossen
    • Keine weitere Türe und Wand im Gäste-WC
  3. OG
    • Haupt Bad: Tausch WC und Dusche
    • Kinder Bad: Möglicherweise wollen wir den identischen T-Grundriss des Hauptbads in das Kinder Bad spiegeln, weil wir die lange Dusche in Kombination mit dem versteckten WC schön finden. Alles natürlich ein wenig kleiner
    • Vergrößerung Raum Kind 1 zulasten von Kund 2 -> sehr valide -> wird noch mit Innenarchitektin & Architekt besprochen
    • Ankleide: Wie ihr seht haben wir uns eure Anregung zu Herzen genommen und erneut Schlafzimmer & Ankleide getauscht. Nun kommt man mittig in der Ankleide an -> gefällt uns; Mal sehen ob man in die Mitte der Ankleide vll. noch eine Kommode bekommt für zusätzlichen Stauraum

Ein Thema, das uns derzeit noch beschäftigt: Wie nutzen wir den Dachboden bestmöglich?
Es ist klar, dass wir dort keine vollen Wohnräume mehr erzeugen. Allerdings würden wir gerne trotzdem das Beste daraus machen und mit dem Raum spielen.

Ideen:
a) Wir streichen teils die Decken und haben Zimmer (bspw. Elterntrakt), wo man in den Dachspitz blicken kann -> davon sind wir nicht überzeugt
b) Wir behalten die Decken so bei und schaffen von der Galerie Zugang ins Dach für Stauraum
c) Wir binden den Raum aktiv mit in das Wohnen ein, speziell mittig, wo die Stehhöhe am größten ist. Dementsprechend über Ankleide und über Kind 1. Diese beiden "Galerien" machen wir von jeweils angrenzenden Zimmern zugänglich.

c1) Lese-Galerie über Ankleide, erreichbar vom Schlafzimmer
c2a) Galerie erreichbar von Büro
c2b) Galerie erreichbar von Kind II
c2c) Galerie "öffentlich zugänglich" und offen in Richtung Mitteltrakt / Hauptgalerie; Zugang über Treppe von Haupt-Galerie

Es gibt jeweils noch die Herausforderung der Treppenaufgänge. Wegen der Dachschrägen ist es wahrscheinlich, dass man nicht aufrecht die Treppe in die Galerien hochgehen kann. Dafür müssen wir noch Lösungen finden - ggf. Spiraltreppen, die leider Platz wegnehmen

Ich bin sehr gespannt auf eure Meinungen zum allgemeinen Stand (oben) und zu den Galerie-Ideen.

Vielen Dank - wie immer!

Gesamtes Bauvorhaben in Holzbauweise mit Grundrissen, Ansichten und Schnitten
 
S

Sunshine387

Ich würde diesen Dachboden streichen und mir die höhere Deckenhöhe gönnen. Denn da ihr oben nur 2,5m habt wirkt der Galeriebereich im OG sonst sicherlich zu erdrückend (bei der Raumgröße). Und im Keller habt ihr aus meiner Sicht ausreichend Möglichkeiten zum Abstellen. Und bei einer Höhe von 1,95m am höchsten Punkt ist eine dauernder Aufenthalt bei so einem schönen großen Haus mit viel besseren Räumen sicherlich nicht attraktiv. Denn man muss dann oben auch mit 1,8m immer gebückt gehen, da man sich an Dachbalken an der Seite stößt. Deswegen nutzt die volle Deckenhöhe lieber damit ihr sonst nicht mit 2,5m Mietwohnungsflair auskommen müsst sondern ihr euch wirklich wie in einem großzügigen Haus fühlt.
 
kbt09

kbt09

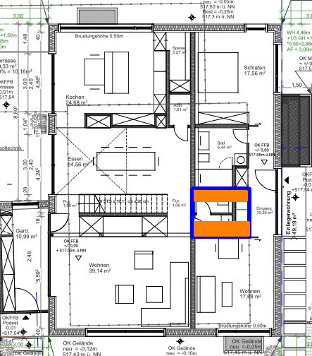
Was ich nicht verstehe, warum das WC im EG nicht irgendwie an der Treppe integrieren und dafür der Einliegerwohnung eine benutzbare Küchenecke spendieren. Wenn da jemand auch mal länger wohnen soll und etwas autark sein soll, kann man mit diesen knapp 3 m Kombination Garderobe / Küche nicht wirklich etwas anfangen.


Architektur-Grundriss einer Wohnung mit orange und blau markierten Bereichen.
 
Zuletzt aktualisiert 06.10.2025
Im Forum Bauplanung gibt es 5061 Themen mit insgesamt 100646 Beiträgen


Ähnliche Themen zu Neubau Einfamilienhaus - Begleitet uns dabei!
Nr.ErgebnisBeiträge
1Durchbruch Bad und Ankleide ohne Türe? 12
2Grundriss Haus mit Einliegerwohnung - Verbesserungsvorschläge? - Seite 33221
3Grundriss Einfamilienhaus mit 240m² mit Einliegerwohnung 75m² und Garage 39
4Meinungen zum Haus-Grundriss erwünscht 71
5Grundrissplanung - Zweifamilienhaus / Einfamilienhaus mit Einliegerwohnung 14
6Grundriss - Haus mit Einliegerwohnung 23
7Grundriss-Tipps Einfamilienhaus mit Einliegerwohnung gewünscht 49
8Detailplanung Grundriss Einfamilienhaus mit Keller und Einliegerwohnung 28
9Grundriss-Entwurf Einfamilienhaus in Hanglage, Einliegerwohnung, Doppelgarage - Seite 271
10Grundriss, Hausanordnung EFW 150m2, Keller + Einliegerwohnung - Feedback erwünscht - Seite 967
11Grundriss Einfamilienhaus mit optionaler Einliegerwohnung 44
12Meinung zu Grundriss - 2-geschossiges Einfamilienhaus - Seite 438
13Planung Grundriss / Erster Entwurf für erstes Feedback - Seite 332
14Anregungen zum Grundriss Einfamilienhaus ca. 175 qm, Satteldachhaus - Seite 11167
15Grundrissentwurf Einfamilienhaus Stadtvilla mit Einliegerwohnung KFW40+ 49
16Grundriss 160m² Bungalow - Seite 546
17Meinungen zum Grundriss Bungalow - Seite 342
18Grundriss 2 Vollgeschosse - Feedback / Kritik? - Seite 1276
19Grundrissplanung für Einfamilienhaus mit Einliegerwohnung - Seite 551
20Grundriss mit KG auf Hanggrundstück - Seite 332

Oben