Neubau eines Doppelhaushälfte Vollkeller mit Abriss

4,80 Stern(e) 4 Votes
Zuletzt aktualisiert 13.12.2025
Sie befinden sich auf der Seite 3 der Diskussion zum Thema: Neubau eines Doppelhaushälfte Vollkeller mit Abriss
>> Zum 1. Beitrag <<

Z

ZonnyNg

Ich habe einige Unterlagen von Immobilien erhalten, werde im laufenden Tag hochladen.

Ich habe im Gelbeseiten einige Abbruchfirmen in der Nähe gefunden, kann aber nicht bewerten. Könnt ihr mir Rat geben? Ich würde gern zwei Angeboten holen.

- abbruch-oberndoerfer
- vandenberg-gruppe
- koenigabbruch
- bundrock

herzlichen Dank
 
Z

ZonnyNg

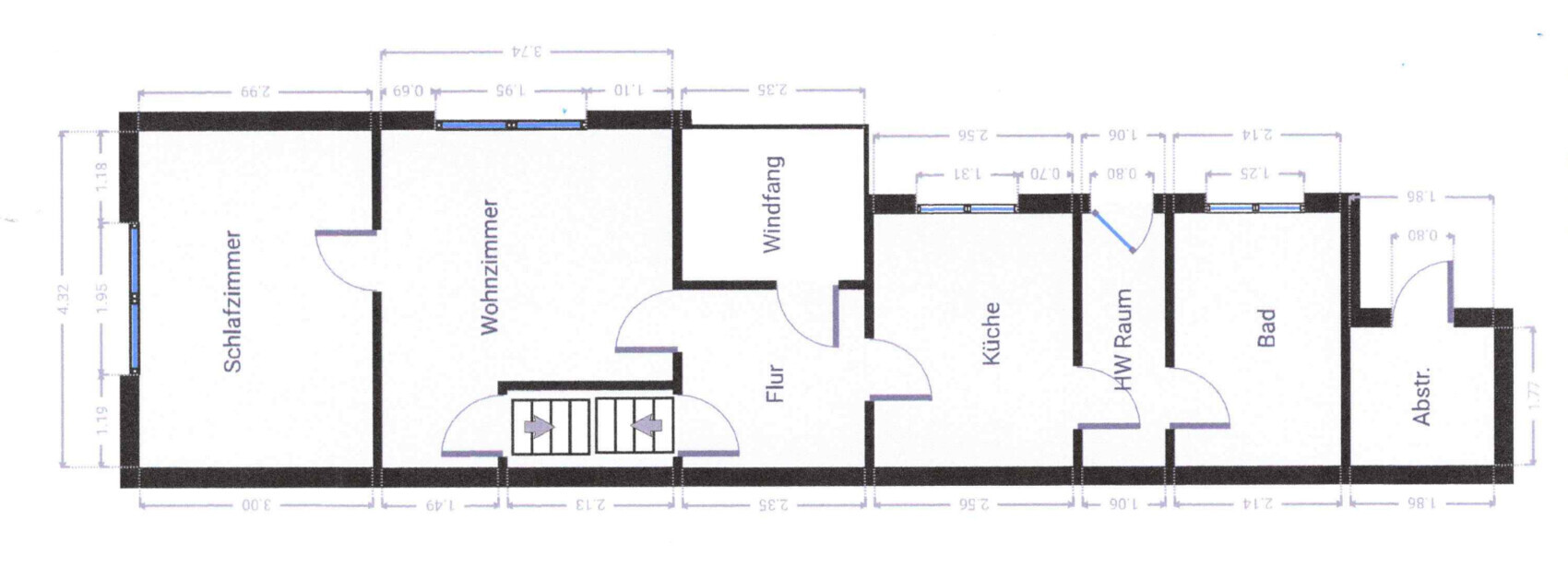
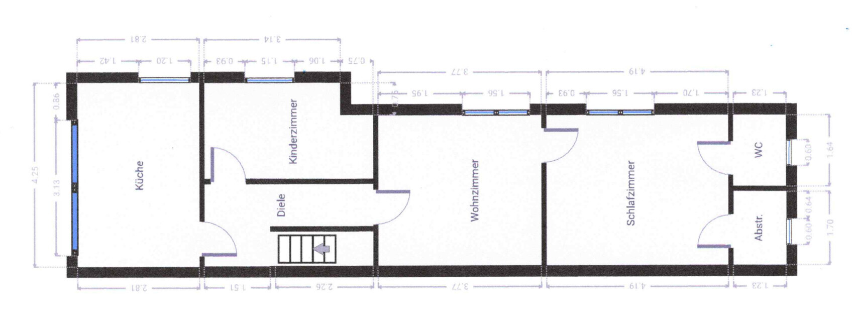
Das sind alles, was ich von dem Immobilien bekommen habe. Auf dem Bebauungsplan, wo orange markiert ist, ist das Baufenster. Das kleine Bereich drin ist jetziges Haus.

Lageplan: Zwei Häuser (Mein Haus, Nachbarhaus) mit Grenzlinien und blau markierter Baufläche.


Grundriss eines Kellergeschosses mit zwei Räumen: Kellerraum 1, Kellerraum 2, Treppe links.


Grundriss eines Apartments: Schlafzimmer, Wohnzimmer, Flur, Windfang, Küche, Bad, Abstellraum.


Grundriss eines Hauses: Küche, Kinderzimmer, Diele, Wohnzimmer, Schlafzimmer, Abstellraum und WC.


Architekturzeichnung eines Hauses mit Westansicht, Schnitt A-B und Dachgeschoss.
 
11ant

11ant

Y

ypg

Laut dem Bebauungsplan dürfen wir 17x7,5m bauen.
Bist Du sicher, dass Du die Größe darfst?
Das Baufenster zeigt Dir die Ausdehnung auf dem Grundstück an, allerdings sieht es so aus, als wenn eine Grundflächenzahl verhindert, zu viel zuzubauen.., oder eine andere Einschränkung hinsichtlich der Breite des Hauses einschränkt. Nicht umsonst sind die Häuser so schmal.
 
Z

ZonnyNg

Ach, jetzt verstehe ich ... warst Du vorher in Frankreich ? - der Beruf heißt auf Deutsch "Makler".
Ich nicht verstehen:), einfache Deutsch bitte.

Bist Du sicher, dass Du die Größe darfst?
Das Baufenster zeigt Dir die Ausdehnung auf dem Grundstück an, allerdings sieht es so aus, als wenn eine Grundflächenzahl verhindert, zu viel zuzubauen.., oder eine andere Einschränkung hinsichtlich der Breite des Hauses einschränkt. Nicht umsonst sind die Häuser so schmal.
Ich habe mit Bauberatung gesprochen. Ja, also 3m Abstand zu dem anderen Nachbargrenze muss gehalten werden, fast 7,5m breit. Nachhintern dann wie im dem Baufenster, also ca. 17m tief. Die Herren von zwei Baufirmen haben auch so gesagt. Aber ja, es ist immer noch nicht 100% sicher. Ich bin auch zufrieden mit 7x14m, hauptsache machbar und mit Keller.
 
Zuletzt aktualisiert 13.12.2025
Im Forum Bauplanung gibt es 5073 Themen mit insgesamt 100817 Beiträgen


Ähnliche Themen zu Neubau eines Doppelhaushälfte Vollkeller mit Abriss
Nr.ErgebnisBeiträge
1Grundstück - Baufenster - Lage von Haus und Garage - Seite 244
2Kleines Grundstück und Winkelbungalow 26
3Bauen ohne Baufenster NRW 13
4130 m² Bungalow mit Doppelcarport bei 600m² Grundstück? 64
5Baufenster auf der Flurkarte - Genehmigung - Seite 639
6Fragen/vernachlässigtes Grundstück/Wiese, Baumaßnahmen eruieren - Seite 344
7Keller ja oder nein bei großem Baufenster? - Seite 212
8Grundstück Hanglage, Höhenunterschied ca. 4 Meter 12
9Grundstück zuerst Kaufen dann Bauen - Erfahrungen / Tipps? - Seite 526
10Einfamilienhaus bauen mit/ohne Keller bei kleinem Grundstück - Seite 765
11Stadtvilla 170m² auf 567 m² Grundstück - Seite 777
12Grundrissoptimierung Einfamilienhaus mit Keller auf kleinem Grundstück - Seite 5178
13Neubau als Doppelhaushälfte (an Bestand) auf Mini-Grundstück mit Gefälle - Seite 216
14Grundstück vorbereiten für Bodenplatte bei leichter Hanglage 15
15Preisbewertung Grundstück für Reihenendhaus - Seite 219
16Grundriss Einfamilienhaus mit Flachdach auf 600m² Grundstück 19
17Grundstück real teilen aber beide das gleiche Baurecht haben - Seite 869
18Flächennutzungsplan verbindlich? Evtl Baufenster auf Waldgebiet?! 31
19Einfamilienhaus 160qm erste Überlegung zur Lage auf dem Grundstück 22
20Grenzbebauung bei nicht rechtwinkligem Grundstück (NRW) 35

Oben