ᐅ Neubau einer ca. 8x11 Doppelhaushälfte, Einschätzung Grundriss und Fenster
Erstellt am: 18.05.18 12:56
E
espressionistE
espressionist18.05.18 12:56Hallo zusammen,
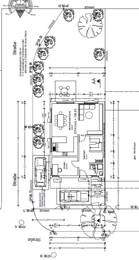
wir planen derzeit eine 8x11m Doppelhaushälfte auf einem 289 qm großen Grundstück in einem Neubaugebiet (das Nachbarhaus steht auch noch nicht, da derzeit das Gebiet noch erschlossen wird).
Wir würden uns freuen, wenn Ihr die bisherige Grundrisse kommentieren könntet und uns ggf. Tipps hinsichtlich der Fensterplanung geben könntet!
Vielen Dank!
Bebauungsplan/Einschränkungen
Größe des Grundstücks: 289 qm, ca. 10,3 x 29 m (im südlichen Bereich leicht abgeschrägt)
Hang: nein
Grundflächenzahl: 0,35
Geschossflächenzahl: 0,6
Baufenster, Baulinie und -grenze: Baufenster beginnt 3 m südlich der nördlichen Straße und ist 14 m lang. Es liegt eine Anbaubaulast vor (Doppelhaushälfte) und das Baufenster endet 2,5 m vor der östlichen Stich-StraßeAnzahl Stellplatz: 2
Ausrichtung: Nord-Süd
weitere Vorgaben: Dachform (Satteldach), Dachneigung (34 Grad) und Traufhöhe (6 m) wurden mit den Nachbarn bereits vereinbart.
Anforderungen der Bauherren
Stilrichtung, Dachform, Gebäudetyp: klassisch-modern, Satteldach, Doppelhaushälfte
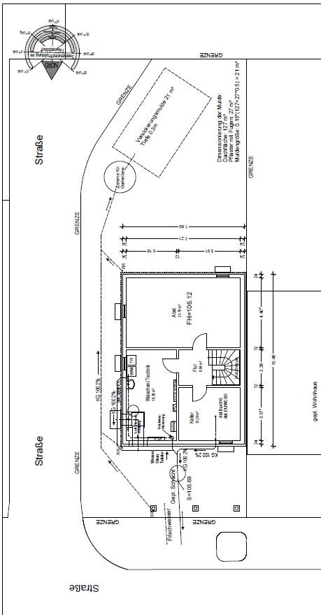
Keller, Geschosse: Keller, EG + OG als Vollgeschoss
Anzahl der Personen, Alter: 4 (40, 40, 5, 1)
Raumbedarf im EG: Küchen, Essbereich, Wohnzimmer, Arbeitszimmer (für zeitweises Home Office), WC+Dusche, Garderobe
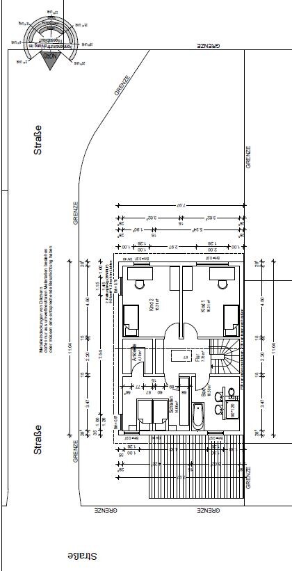
Raumbedarf im OG: Bad, Elternschlafzimmer, 2 Kinderzimmer (möglichst ähnlich groß)
Büro: Homeoffice
Schlafgäste pro Jahr: vermutlich eher selten (2-3 Mal für 2-3 Tage)
offene oder geschlossene Architektur: Im EG gerne offen (Küche, Ess- und Wohnbereich), da ansonsten die Räume vermutlich zu klein werden/wirken
offene Küche, Kochinsel: offene Küche mit Halbinsel
Anzahl Essplätze: regulär 6 mit unserem derzeitigen Tisch (kann ausgezogen werden für bis zu 4 weitere Plätze)
Kamin: nein
Musik/Stereowand: im Wohnzimmer bei der Fernsehwand
Balkon, Dachterrasse: nein
Garage, Carport: Carport (6,5x4)auf Nordseite. Momentan ist auf der Westseite im Carport ein 2x2,5 m Schuppen geplant (Fahrräder,…). Der Carport dient auch als Eingangsüberdachung
Nutzgarten, Treibhaus: Wir würden gerne ein klein wenig anpflanzen (z.B. Hochbeet), es soll aber nicht in Stress ausarten
weitere Wünsche/Besonderheiten/Tagesablauf, gern auch Begründungen, warum dieses oder das nicht sein soll:
Unsere Anforderung im OG war, dass der Eltern- und Kind Bereich zumindest geringfügig getrennt ist (keine gemeinsame Wand).
Dies wurde vom Architekten durch eine Ankleide zwischen Elternschlafzimmer und Kinderzimmer erreicht.
Auf einen Keller können wir wohl kaum verzichten, da wir auf dem Grundstück keine Garage unterbringen (aufgrund er Abstandsanforderungen im Bebauungsplan, müssten wir dann das Haus schmaler machen, oder zu viel vom Garten aufgeben), und auch sonst eher wenig Platz für Vorräte oder Haustechnik hätten.
Da sich hierdurch ein schön großer Hobbyraum im Keller ergibt, würden wir auf den Ausbau des DG verzichten (das DG wäre somit lediglich ein Spitzboden) da wir ansonsten alles denken unterbringen zu können.
Ein ausgebautes DG wäre zwar sicherlich nett (Gästezimmer, Medienzimmer, Bibliothek,…) aber bei geschätzten zusätzlichen Kosten von 30K würden wir da eher darauf verzichten.
Hausentwurf
Von wem stammt die Planung: Architekt unseres Fertig-Haus Unternehmens
Was gefällt besonders? Warum? Kinderzimmer und Schlafzimmer von angemessener Größe (wir hatten andere Pläne, da waren die Kinderzimmer bei 13 qm), Büro im EG (dann ist es nicht weit in die Küche zum Kaffee kochen), heller Essbereich
Was gefällt nicht? Warum? Fenster, die Architektenplanung gefällt uns in den Kinderzimmern, im Schlafzimmer (Fenster an Nordseite, da steht dann teilweise das Bett darunter), Büro (an die Nordseite würden wir gerne ein Regal stellen, Schreibtisch an die Südseite, damit kein Licht direkt auf den Monitor fällt; an der Ostseite ist ein Stellplatz geplant, womit dann ein Auto direkt vorm Fenster steht) und Bad/WC (Brüstungshöhe zu niedrig?) nicht so ganz.
Preisschätzung lt Architekt/Planer: 370 K (schlüsselfertig, mit bereits von uns gewählten Böden etc. – wir hatten eine Vorbemusterung gemacht)
Persönliches Preislimit fürs Haus, inkl Ausstattung: ca. 400 K
favorisierte Heiztechnik: Luft-Wasser-Wärmepumpe, Fußbodenheizung
Wenn Ihr verzichten müsst, auf welche Details/Ausbauten
-könnt Ihr verzichten: statt Schiebetür zur Terrasse eine normale Tür, statt wie bisher geplant Aluminium-Kunststoff-Fenster nur Kunststoff (4 K Unterschied), einkalkulierter Aufpreis für eine andere Treppe (7 K), Verzicht auf teilweise Holzfassade (1,5 K einkalkuliert)
-könnt Ihr nicht verzichten: Hausgröße (kleiner sollte es nicht werden)
Warum ist der Entwurf so geworden, wie er jetzt ist?
Wir haben zunächst mehrere Stunden mit einem (sehr netten) Berater des Unternehmens einen Entwurf ausgearbeitet, der auf unseren Anforderungen (Büro im EG, Eltern-Kind-Bereich leicht „getrennt“, Dusche im EG, Keller, Carport) entsprechend eingegangen ist.
Eine befreundete Architektin hat dann einige Anmerkungen gemacht und der Architekt des Unternehmens hat dann, nach einem ausführlichen Gespräch mit uns, den angehängten Grundriss erarbeitet.
Uns gefällt der Grundriss soweit schon ganz gut (uns ist klar, dass man in einer Doppelhaushälfte natürlich eingeschränkter in der Planung ist), aber die Fensterplanung finden wir zum Teil etwas „altbacken“.
Was ist die wichtigste/grundlegende Frage zum Grundriss in 130 Zeichen zusammengefasst?
Sind im Grundriss „gravierende“ Schnitzer, die uns bisher nicht aufgefallen sind?
Was würdet Ihr ggf. optimieren?
Was haltet Ihr von der Fensterplanung und unseren Vorschlägen bzgl. der Fensterplanung?
Vielen Dank für Eure Hilfe und die Zeit, die Ihr hier im Forum opfert.
Wir freuen uns über jegliches Feedback!

wir planen derzeit eine 8x11m Doppelhaushälfte auf einem 289 qm großen Grundstück in einem Neubaugebiet (das Nachbarhaus steht auch noch nicht, da derzeit das Gebiet noch erschlossen wird).
Wir würden uns freuen, wenn Ihr die bisherige Grundrisse kommentieren könntet und uns ggf. Tipps hinsichtlich der Fensterplanung geben könntet!
Vielen Dank!
Bebauungsplan/Einschränkungen
Größe des Grundstücks: 289 qm, ca. 10,3 x 29 m (im südlichen Bereich leicht abgeschrägt)
Hang: nein
Grundflächenzahl: 0,35
Geschossflächenzahl: 0,6
Baufenster, Baulinie und -grenze: Baufenster beginnt 3 m südlich der nördlichen Straße und ist 14 m lang. Es liegt eine Anbaubaulast vor (Doppelhaushälfte) und das Baufenster endet 2,5 m vor der östlichen Stich-StraßeAnzahl Stellplatz: 2
Ausrichtung: Nord-Süd
weitere Vorgaben: Dachform (Satteldach), Dachneigung (34 Grad) und Traufhöhe (6 m) wurden mit den Nachbarn bereits vereinbart.
Anforderungen der Bauherren
Stilrichtung, Dachform, Gebäudetyp: klassisch-modern, Satteldach, Doppelhaushälfte
Keller, Geschosse: Keller, EG + OG als Vollgeschoss
Anzahl der Personen, Alter: 4 (40, 40, 5, 1)
Raumbedarf im EG: Küchen, Essbereich, Wohnzimmer, Arbeitszimmer (für zeitweises Home Office), WC+Dusche, Garderobe
Raumbedarf im OG: Bad, Elternschlafzimmer, 2 Kinderzimmer (möglichst ähnlich groß)
Büro: Homeoffice
Schlafgäste pro Jahr: vermutlich eher selten (2-3 Mal für 2-3 Tage)
offene oder geschlossene Architektur: Im EG gerne offen (Küche, Ess- und Wohnbereich), da ansonsten die Räume vermutlich zu klein werden/wirken
offene Küche, Kochinsel: offene Küche mit Halbinsel
Anzahl Essplätze: regulär 6 mit unserem derzeitigen Tisch (kann ausgezogen werden für bis zu 4 weitere Plätze)
Kamin: nein
Musik/Stereowand: im Wohnzimmer bei der Fernsehwand
Balkon, Dachterrasse: nein
Garage, Carport: Carport (6,5x4)auf Nordseite. Momentan ist auf der Westseite im Carport ein 2x2,5 m Schuppen geplant (Fahrräder,…). Der Carport dient auch als Eingangsüberdachung
Nutzgarten, Treibhaus: Wir würden gerne ein klein wenig anpflanzen (z.B. Hochbeet), es soll aber nicht in Stress ausarten
weitere Wünsche/Besonderheiten/Tagesablauf, gern auch Begründungen, warum dieses oder das nicht sein soll:
Unsere Anforderung im OG war, dass der Eltern- und Kind Bereich zumindest geringfügig getrennt ist (keine gemeinsame Wand).
Dies wurde vom Architekten durch eine Ankleide zwischen Elternschlafzimmer und Kinderzimmer erreicht.
Auf einen Keller können wir wohl kaum verzichten, da wir auf dem Grundstück keine Garage unterbringen (aufgrund er Abstandsanforderungen im Bebauungsplan, müssten wir dann das Haus schmaler machen, oder zu viel vom Garten aufgeben), und auch sonst eher wenig Platz für Vorräte oder Haustechnik hätten.
Da sich hierdurch ein schön großer Hobbyraum im Keller ergibt, würden wir auf den Ausbau des DG verzichten (das DG wäre somit lediglich ein Spitzboden) da wir ansonsten alles denken unterbringen zu können.
Ein ausgebautes DG wäre zwar sicherlich nett (Gästezimmer, Medienzimmer, Bibliothek,…) aber bei geschätzten zusätzlichen Kosten von 30K würden wir da eher darauf verzichten.
Hausentwurf
Von wem stammt die Planung: Architekt unseres Fertig-Haus Unternehmens
Was gefällt besonders? Warum? Kinderzimmer und Schlafzimmer von angemessener Größe (wir hatten andere Pläne, da waren die Kinderzimmer bei 13 qm), Büro im EG (dann ist es nicht weit in die Küche zum Kaffee kochen), heller Essbereich
Was gefällt nicht? Warum? Fenster, die Architektenplanung gefällt uns in den Kinderzimmern, im Schlafzimmer (Fenster an Nordseite, da steht dann teilweise das Bett darunter), Büro (an die Nordseite würden wir gerne ein Regal stellen, Schreibtisch an die Südseite, damit kein Licht direkt auf den Monitor fällt; an der Ostseite ist ein Stellplatz geplant, womit dann ein Auto direkt vorm Fenster steht) und Bad/WC (Brüstungshöhe zu niedrig?) nicht so ganz.
Preisschätzung lt Architekt/Planer: 370 K (schlüsselfertig, mit bereits von uns gewählten Böden etc. – wir hatten eine Vorbemusterung gemacht)
Persönliches Preislimit fürs Haus, inkl Ausstattung: ca. 400 K
favorisierte Heiztechnik: Luft-Wasser-Wärmepumpe, Fußbodenheizung
Wenn Ihr verzichten müsst, auf welche Details/Ausbauten
-könnt Ihr verzichten: statt Schiebetür zur Terrasse eine normale Tür, statt wie bisher geplant Aluminium-Kunststoff-Fenster nur Kunststoff (4 K Unterschied), einkalkulierter Aufpreis für eine andere Treppe (7 K), Verzicht auf teilweise Holzfassade (1,5 K einkalkuliert)
-könnt Ihr nicht verzichten: Hausgröße (kleiner sollte es nicht werden)
Warum ist der Entwurf so geworden, wie er jetzt ist?
Wir haben zunächst mehrere Stunden mit einem (sehr netten) Berater des Unternehmens einen Entwurf ausgearbeitet, der auf unseren Anforderungen (Büro im EG, Eltern-Kind-Bereich leicht „getrennt“, Dusche im EG, Keller, Carport) entsprechend eingegangen ist.
Eine befreundete Architektin hat dann einige Anmerkungen gemacht und der Architekt des Unternehmens hat dann, nach einem ausführlichen Gespräch mit uns, den angehängten Grundriss erarbeitet.
Uns gefällt der Grundriss soweit schon ganz gut (uns ist klar, dass man in einer Doppelhaushälfte natürlich eingeschränkter in der Planung ist), aber die Fensterplanung finden wir zum Teil etwas „altbacken“.
Was ist die wichtigste/grundlegende Frage zum Grundriss in 130 Zeichen zusammengefasst?
Sind im Grundriss „gravierende“ Schnitzer, die uns bisher nicht aufgefallen sind?
Was würdet Ihr ggf. optimieren?
Was haltet Ihr von der Fensterplanung und unseren Vorschlägen bzgl. der Fensterplanung?
Vielen Dank für Eure Hilfe und die Zeit, die Ihr hier im Forum opfert.
Wir freuen uns über jegliches Feedback!
E
espressionist18.05.18 14:13Noch ein Nachtrag:
Momentan denken wir darüber nach, vom Flur aus auch einen Zugang (Schiebetür?) direkt in die Küche zu machen, damit man mit Einkäufen nicht erst durchs Wohnzimmer muss. Außerdem hätte man in der Küche dann einen direkteren Weg in den Keller zum Vorratsraum.
Damit würden wir zwar in der Küche auf der Flurseite etwas Stellfläche verlieren, könnten aber ggf. dann die komplette Wand zum Büro hin nutzen und würden dort dann links keine tote Ecke habe.
Was denkt Ihr?
Momentan denken wir darüber nach, vom Flur aus auch einen Zugang (Schiebetür?) direkt in die Küche zu machen, damit man mit Einkäufen nicht erst durchs Wohnzimmer muss. Außerdem hätte man in der Küche dann einen direkteren Weg in den Keller zum Vorratsraum.
Damit würden wir zwar in der Küche auf der Flurseite etwas Stellfläche verlieren, könnten aber ggf. dann die komplette Wand zum Büro hin nutzen und würden dort dann links keine tote Ecke habe.
Was denkt Ihr?
Hallo expressionist,
vielen Dank für den vorbildlich erstellten Thread, das macht Lust auf antworten und du bekommst bestimmt einige Rückmeldungen. Von mir hier nur eine Frage:
Ist die andere Doppelhaushälfte schon gebaut, in Planung.? Evtl. gibt es ja gestalterisch hier noch etwas zu bedenken.
vielen Dank für den vorbildlich erstellten Thread, das macht Lust auf antworten und du bekommst bestimmt einige Rückmeldungen. Von mir hier nur eine Frage:
Ist die andere Doppelhaushälfte schon gebaut, in Planung.? Evtl. gibt es ja gestalterisch hier noch etwas zu bedenken.
E
espressionist18.05.18 17:41Hallo Jansens,
vielen Dank für die Rückfrage.
Nein, die andere Doppelhaushälfte (westlich von uns) ist noch nicht gebaut: Die Grundstücke liegen in einem Neubaugebiet, das derzeit noch erschlossen wird (Baufreigabe ab Mitte Juni - ganz so eilig haben wir es aber nicht).
Mit unseren zukünftigen Nachbarn sind wir im Austausch und haben uns bzgl. Traufhöhe und Dachneigung schon auf gemeinsame Werte (s.o.) abgestimmt - einheitliche Werte für Dachneigung und Traufhöhe sind vom Bebauungsplan vorgeschrieben. Firsthöhe und Hauslänge dürfen sich jedoch unterscheiden. Die Häuser dürfen auch versetzt gebaut werden - was nach derzeitiger Planung auch so sein wird:
Unsere Nachbarn planen ein 6,5x10,3 m Haus (mit Keller & ausgebautem DG, deren Grundstück ist schmaler).
Ihr Haus wird im Norden 4 m von der Grenze beginnen. Damit haben wir im Süden, auf der Gartenseite, ca. 1,3 m Versatz (unsere Hälfte läuft also etwas weiter Richtung Süden).
Eine weitere Verschiebung unseres Hauses in Richtung Süden würden wir nicht wollen, da dann einerseits wieder ein Teil vom Garten abhanden kommt und andererseits unsere Nachbarn damit ein Problem hätten (diese würden dann auf der Terrasse auf eine recht breite Wand schauen).
Viele Grüße
vielen Dank für die Rückfrage.
Nein, die andere Doppelhaushälfte (westlich von uns) ist noch nicht gebaut: Die Grundstücke liegen in einem Neubaugebiet, das derzeit noch erschlossen wird (Baufreigabe ab Mitte Juni - ganz so eilig haben wir es aber nicht).
Mit unseren zukünftigen Nachbarn sind wir im Austausch und haben uns bzgl. Traufhöhe und Dachneigung schon auf gemeinsame Werte (s.o.) abgestimmt - einheitliche Werte für Dachneigung und Traufhöhe sind vom Bebauungsplan vorgeschrieben. Firsthöhe und Hauslänge dürfen sich jedoch unterscheiden. Die Häuser dürfen auch versetzt gebaut werden - was nach derzeitiger Planung auch so sein wird:
Unsere Nachbarn planen ein 6,5x10,3 m Haus (mit Keller & ausgebautem DG, deren Grundstück ist schmaler).
Ihr Haus wird im Norden 4 m von der Grenze beginnen. Damit haben wir im Süden, auf der Gartenseite, ca. 1,3 m Versatz (unsere Hälfte läuft also etwas weiter Richtung Süden).
Eine weitere Verschiebung unseres Hauses in Richtung Süden würden wir nicht wollen, da dann einerseits wieder ein Teil vom Garten abhanden kommt und andererseits unsere Nachbarn damit ein Problem hätten (diese würden dann auf der Terrasse auf eine recht breite Wand schauen).
Viele Grüße
E
espressionist18.05.18 18:22Pumbaa schrieb:
Grundflächenzahl 0,35 bei 289 qm und einer Hausgröße von 8x11 m - das wird aber eng mit 2 Stellplätzen und Terrasse.....Stimmt, das ist knapp. Aber der Architekt meinte, so wie derzeit geplant würde es passen (gerade so).
Ähnliche Themen