ᐅ Grundriss für schmale Doppelhaushälfte - Keller + 2 Viel Glück+ DG ohne Kniestock
Erstellt am: 26.05.21 11:30
M
mrtnsbrHallo zusammen, ich lese hier seit langer Zeit und wir suchen seit Jahren im Raum Stuttgart nach einem passen Haus / Grundstück. Jetzt soll es bald soweit sein.
- Wird eine Doppelhaushälfte und die äußere Form und die Außenwandstärke ist quasi gesetzt. Innen kann ich fast alles ändern.
- Die Möbel im Plan sind eher zum planen (entsprechen aber unseren aktuellen Möbeln).
- Die Küche ist in 5min kurz reingeplant - das kann auch komplett anders werden.
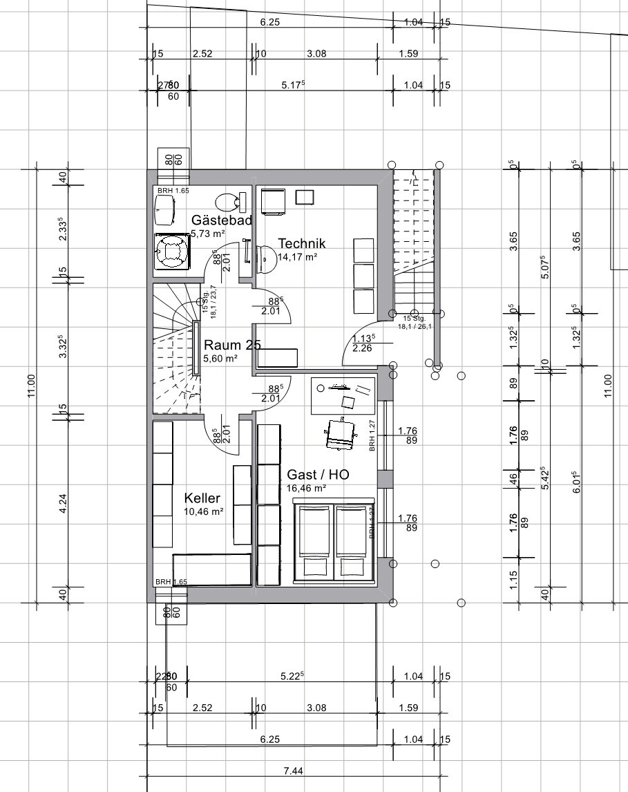
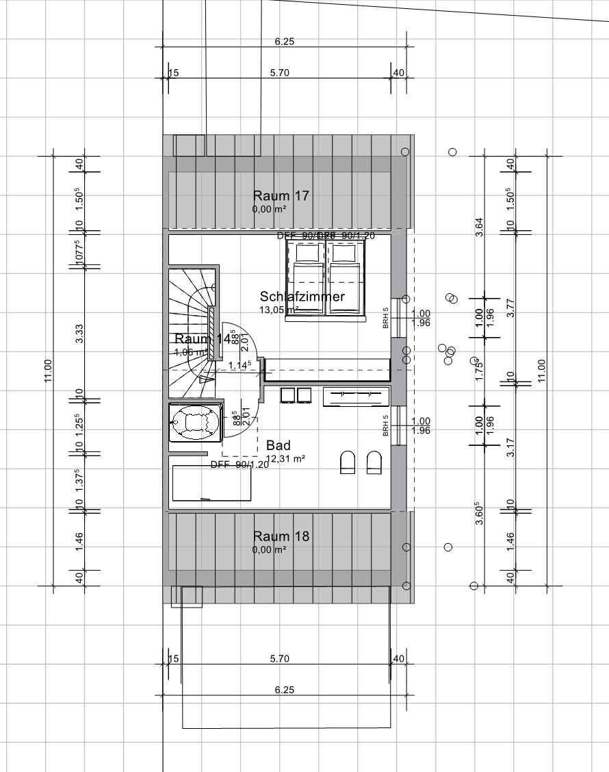
- Das DG (Elternschlafzimmer und Elternbad) ist WIP. Wer mir Tipps hat, wie man das Bad da schön unterbringt: gern her damit. Ich kämpfe aktuell insbesondere mit der Planung der Fallrohre.
- Im DG -> Die Mauern stehen genau auf der 1m Höhe. Die Mauer im Bad die das so komisch neben der Dusche steht ist auf der 2m Linie.
- Wir planen an vielen Stellen Glastüren - das Treppenhaus wird sonst arg dunkel
- auf die Südseite soll Photovoltaik -> wenige Dachfenster gewünscht
So ein paar Fragen:
- Treppe aus dem EG ins OG -> 1/4 gewendelt. Sonst 1/2 gewendelt. Hat das jemand und würde davon abraten bzw ist das ok so?
- Ich habe grad die Idee die Treppe beidseitig zu mauern. Die Nische im Treppenloch U würde ich dann als Versorgungsschacht (z.B. für die Fußbodenheizung) verwenden. Geht das? Macht das jemand? Also quasi ein Rigipstunnel vom UG bis ins DG (mit entsprechender Befestigung an jeder Geschossplate - Rigips kann ich so natürlich nicht über 4 Geschosse türmen).
Bebauungsplan/Einschränkungen
Größe des Grundstücks: 320 qm
Hang: nein
Grundflächenzahl / Geschossflächenzahl / Baufenster, Baulinie und -grenze: exakt vorgegeben. Das Haus steht genau im Baufenster des Bebauungsplan. Die Außenmaße können nicht angepasst werden.
Randbebauung: West Doppelhaushälfte Partner, im Süden Durchfahrtsstraße, im Norden Sackgasse, im Osten städtische Grünanlage
Anzahl Stellplatz: wir haben ein Auto und ca. 8 Fahrräder - Doppelgarage ist möglich, werden wir auch so machen. Wird dann eher Radwerkstatt.
Geschossigkeit - DG ohne Kniestock, Gauben nicht möglich
Dachform - Sattel, 35 Grad - nichts anderes möglich
Stilrichtung - eher modern / 08/15
Ausrichtung - vorgegeben
Maximale Höhen/Begrenzungen - vorgegeben da Doppelhaushälfte
Anforderungen der Bauherren
Anzahl der Personen, Alter - 4 - 2 Erwachsene, 2 Grundschüler
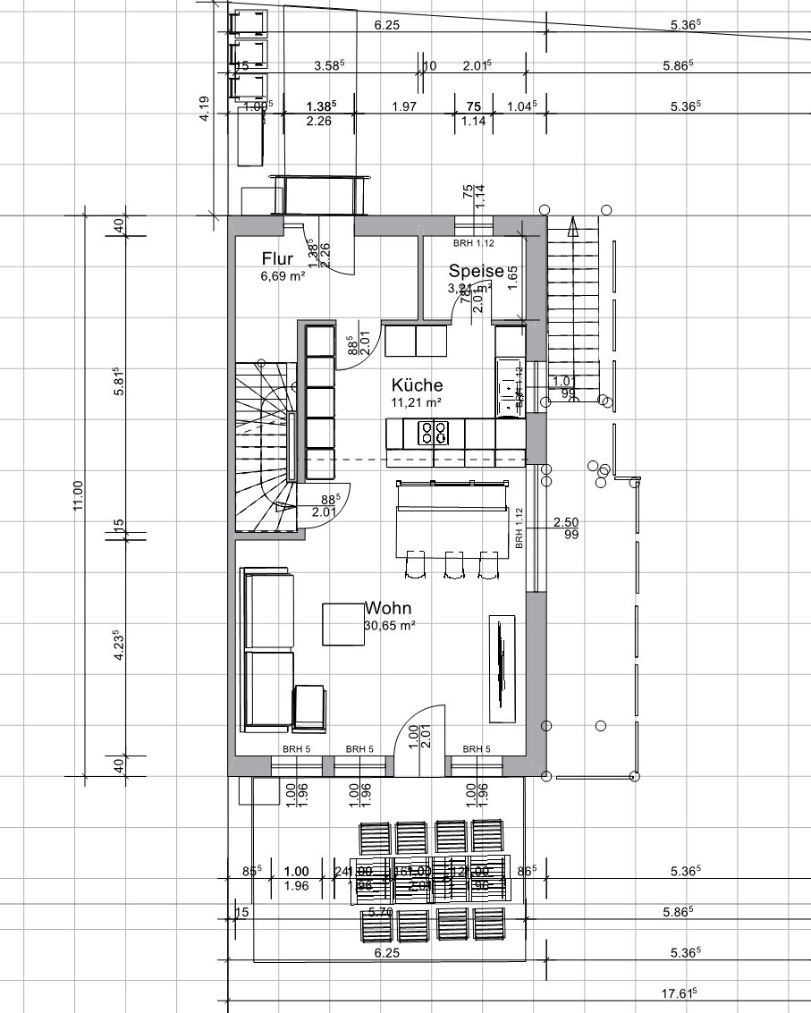
Raumbedarf im EG, OG - großes Wohnbereich auf einem Stockwerk, dann Kinderetage, dann Elternetage
Büro: Familiennutzung oder Homeoffice? Viel Homeoffice, wir arbeiten beide zu mindestens 50% im HO (auch ohne Corona)
Schlafgäste pro Jahr - Oma / Opa regelmäßig bis zu einer Woche da
offene oder geschlossene Architektur - der Wohnbereich sollte klar getrennt sein vom Kindergeschoß
konservativ oder moderne Bauweise - gute Frage - ich glaube wir sind eher konservativ
offene Küche, Kochinsel - gerne auch geschlossen, im aktuellen Plan offen
Anzahl Essplätze - 6
Kamin - wär schön, aber absolutes nice to have. Wird eher zu eng
Balkon, Dachterrasse - nö
Garage, Carport - ist geplant
Nutzgarten, Treibhaus - nö
Hausentwurf
Von wem stammt die Planung:
-Do-it-Yourself
Was gefällt besonders? Warum?
- Die Abtrennung vom Wohnzimmer zur Treppe: aktuell nervt uns die offene Bauweise jeden Abend -> Kinder.
- Die Speisekammer (so klein sie auch ist).
- Die Treppe in den Keller: wir fahren alle viel Fahrrad und das auch gern im Schlamm. Zugang über Keller und extra Dusche im Keller ist super.
- Elternschlafzimmer im Dach ist auf Nordseite (etwas kühler und weg von der Durchgangsstraße)
Was gefällt nicht? Warum?
- Die Seite mit der Kellertreppe und den Lichthöfen ist nützlich, aber so richtig schön wir das mit dem Geläder etc. nicht
Preisschätzung lt Architekt/Planer: 850.000
Persönliches Preislimit fürs Haus, inkl Ausstattung: weiß noch nicht so recht.
favorisierte Heiztechnik: Wärmeepumpe. Lüftungsanlage wollten wir ggf. haben, macht der GU aber ungern und ich traue ihm die Planung nicht zu. Ich selber hab zu wenig Ahnung dafür.
Wenn Ihr verzichten müsst, auf welche Details/Ausbauten
-könnt Ihr verzichten:
offene Küche
-könnt Ihr nicht verzichten:
abgeschlossenes Wohnzimmer
Warum ist der Entwurf so geworden, wie er jetzt ist? ZB
Es gibt einen Standard Doppelhaushälfte Plan für schmale Häuser, also 1/2 gewendelte Treppe in allen Geschossen, Schmale Küche und daneben der Hauszugang.
Das ist jetzt von mir mit einem Tool geplant. Wir wohnen bereits in einem ähnlichen Grundriss (Reihenhaus) nur mit einem Stockwerk weniger. Daher wusste ich zumindest was ich nicht mehr will (alles offen übers Treppenhaus).
Was ist die wichtigste/grundlegende Frage zum Grundriss in 130 Zeichen zusammengefasst?
Gibt es offensichtlichen Blödsinn, den man so nicht machen kann / sollte?






- Wird eine Doppelhaushälfte und die äußere Form und die Außenwandstärke ist quasi gesetzt. Innen kann ich fast alles ändern.
- Die Möbel im Plan sind eher zum planen (entsprechen aber unseren aktuellen Möbeln).
- Die Küche ist in 5min kurz reingeplant - das kann auch komplett anders werden.
- Das DG (Elternschlafzimmer und Elternbad) ist WIP. Wer mir Tipps hat, wie man das Bad da schön unterbringt: gern her damit. Ich kämpfe aktuell insbesondere mit der Planung der Fallrohre.
- Im DG -> Die Mauern stehen genau auf der 1m Höhe. Die Mauer im Bad die das so komisch neben der Dusche steht ist auf der 2m Linie.
- Wir planen an vielen Stellen Glastüren - das Treppenhaus wird sonst arg dunkel
- auf die Südseite soll Photovoltaik -> wenige Dachfenster gewünscht
So ein paar Fragen:
- Treppe aus dem EG ins OG -> 1/4 gewendelt. Sonst 1/2 gewendelt. Hat das jemand und würde davon abraten bzw ist das ok so?
- Ich habe grad die Idee die Treppe beidseitig zu mauern. Die Nische im Treppenloch U würde ich dann als Versorgungsschacht (z.B. für die Fußbodenheizung) verwenden. Geht das? Macht das jemand? Also quasi ein Rigipstunnel vom UG bis ins DG (mit entsprechender Befestigung an jeder Geschossplate - Rigips kann ich so natürlich nicht über 4 Geschosse türmen).
Bebauungsplan/Einschränkungen
Größe des Grundstücks: 320 qm
Hang: nein
Grundflächenzahl / Geschossflächenzahl / Baufenster, Baulinie und -grenze: exakt vorgegeben. Das Haus steht genau im Baufenster des Bebauungsplan. Die Außenmaße können nicht angepasst werden.
Randbebauung: West Doppelhaushälfte Partner, im Süden Durchfahrtsstraße, im Norden Sackgasse, im Osten städtische Grünanlage
Anzahl Stellplatz: wir haben ein Auto und ca. 8 Fahrräder - Doppelgarage ist möglich, werden wir auch so machen. Wird dann eher Radwerkstatt.
Geschossigkeit - DG ohne Kniestock, Gauben nicht möglich
Dachform - Sattel, 35 Grad - nichts anderes möglich
Stilrichtung - eher modern / 08/15
Ausrichtung - vorgegeben
Maximale Höhen/Begrenzungen - vorgegeben da Doppelhaushälfte
Anforderungen der Bauherren
Anzahl der Personen, Alter - 4 - 2 Erwachsene, 2 Grundschüler
Raumbedarf im EG, OG - großes Wohnbereich auf einem Stockwerk, dann Kinderetage, dann Elternetage
Büro: Familiennutzung oder Homeoffice? Viel Homeoffice, wir arbeiten beide zu mindestens 50% im HO (auch ohne Corona)
Schlafgäste pro Jahr - Oma / Opa regelmäßig bis zu einer Woche da
offene oder geschlossene Architektur - der Wohnbereich sollte klar getrennt sein vom Kindergeschoß
konservativ oder moderne Bauweise - gute Frage - ich glaube wir sind eher konservativ
offene Küche, Kochinsel - gerne auch geschlossen, im aktuellen Plan offen
Anzahl Essplätze - 6
Kamin - wär schön, aber absolutes nice to have. Wird eher zu eng
Balkon, Dachterrasse - nö
Garage, Carport - ist geplant
Nutzgarten, Treibhaus - nö
Hausentwurf
Von wem stammt die Planung:
-Do-it-Yourself
Was gefällt besonders? Warum?
- Die Abtrennung vom Wohnzimmer zur Treppe: aktuell nervt uns die offene Bauweise jeden Abend -> Kinder.
- Die Speisekammer (so klein sie auch ist).
- Die Treppe in den Keller: wir fahren alle viel Fahrrad und das auch gern im Schlamm. Zugang über Keller und extra Dusche im Keller ist super.
- Elternschlafzimmer im Dach ist auf Nordseite (etwas kühler und weg von der Durchgangsstraße)
Was gefällt nicht? Warum?
- Die Seite mit der Kellertreppe und den Lichthöfen ist nützlich, aber so richtig schön wir das mit dem Geläder etc. nicht
Preisschätzung lt Architekt/Planer: 850.000
Persönliches Preislimit fürs Haus, inkl Ausstattung: weiß noch nicht so recht.
favorisierte Heiztechnik: Wärmeepumpe. Lüftungsanlage wollten wir ggf. haben, macht der GU aber ungern und ich traue ihm die Planung nicht zu. Ich selber hab zu wenig Ahnung dafür.
Wenn Ihr verzichten müsst, auf welche Details/Ausbauten
-könnt Ihr verzichten:
offene Küche
-könnt Ihr nicht verzichten:
abgeschlossenes Wohnzimmer
Warum ist der Entwurf so geworden, wie er jetzt ist? ZB
Es gibt einen Standard Doppelhaushälfte Plan für schmale Häuser, also 1/2 gewendelte Treppe in allen Geschossen, Schmale Küche und daneben der Hauszugang.
Das ist jetzt von mir mit einem Tool geplant. Wir wohnen bereits in einem ähnlichen Grundriss (Reihenhaus) nur mit einem Stockwerk weniger. Daher wusste ich zumindest was ich nicht mehr will (alles offen übers Treppenhaus).
Was ist die wichtigste/grundlegende Frage zum Grundriss in 130 Zeichen zusammengefasst?
Gibt es offensichtlichen Blödsinn, den man so nicht machen kann / sollte?
V
vonBYnachSH26.05.21 11:45Du schreibst: im Süden Durchfahrtsstraße, im Osten Grünanlage. Seid Ihr Euch sicher, dass Ihr die Terrasse im Süden (wo möglicherweise auch die Nachbarn ihre Terrasse hin bauen werden) haben wollt? Wir hatten im alten Doppelhaus eine ähnliche Situation und eigentlich so gut wie immer die Ostterrasse genutzt. Wenn Ihr die totalen Sonnenanbeter seid, ok. Ansonsten sitzt es sich im Sommer im Osten perfekt, finde ich. Zumindest die Möglichkeit einer schönen Sitzgelegenheit würde ich im Auge behalten.
H
Hausbautraum2026.05.21 11:50Das einzige was mir wirklich absolut überhaupt nicht gefallen würde, dass es kein WC im EG gibt?
Wollt ihr jedes Mal Treppen laufen??
Gäste sollen das Bad im Keller nutzen oder?
Und ansonsten Preisschätzung 850k??
Ist das mit Grundstück?
Da kann ja wohl sonst was nicht stimmen...
Wollt ihr jedes Mal Treppen laufen??
Gäste sollen das Bad im Keller nutzen oder?
Und ansonsten Preisschätzung 850k??
Ist das mit Grundstück?
Da kann ja wohl sonst was nicht stimmen...
vonBYnachSH schrieb:
Du schreibst: im Süden Durchfahrtsstraße, im Osten Grünanlage. Seid Ihr Euch sicher, dass Ihr die Terrasse im Süden (wo möglicherweise auch die Nachbarn ihre Terrasse hin bauen werden) haben wollt? Wir hatten im alten Doppelhaus eine ähnliche Situation und eigentlich so gut wie immer die Ostterrasse genutzt. Wenn Ihr die totalen Sonnenanbeter seid, ok. Ansonsten sitzt es sich im Sommer im Osten perfekt, finde ich. Zumindest die Möglichkeit einer schönen Sitzgelegenheit würde ich im Auge behalten.Cool 🙂 Genau darüber haben wir gestern geredet: Lichthof in den Süden, Terrasse in den Osten. Meine Frau will das nicht so wirklich. Aber da werde ich glaub nochmal einen Plan machen für. Dann ist der Abstand zur Straße auch nicht so wichtig (Apropo: Das ist zwar eine Durchgangsstraße, aber dafür relativ schwach befahren. Außerdem hat es da erstmal Grünstreifen, dann Rad / Gehweg, dann Grünstreifen mit Bäumen und dann die Straße. Ist also noch ok).Hausbautraum20 schrieb:
Das einzige was mir wirklich absolut überhaupt nicht gefallen würde, dass es kein WC im EG gibt?
Wollt ihr jedes Mal Treppen laufen??
Gäste sollen das Bad im Keller nutzen oder?
Und ansonsten Preisschätzung 850k??
Ist das mit Grundstück?
Da kann ja wohl sonst was nicht stimmen...Ja, ist mit Grundstück. Und Abriss Vorgebäude. Haus selbst ist bei ca. 450k. Ist das hier nur für das Haus? Dann pass ich das gleich an.Zum Klo: eine klare Schwachstelle erkannt. Da haben wir schon ewig geplant und geschoben und sonstwas. Am Ende war uns die Speisekammer und die Garderobe für uns 4 wichtiger. Aber definitiv: wir hätten gern ein Klo wenn es geht - ich bekomms nur nicht rein.
Und ja: Gäste sollen das kleine Bad im Keller nutzen.
M
Myrna_Loy26.05.21 12:03Ich bin etwas erstaunt über die unglaubliche Menge an Schränken in der Küchenzone - braucht man da echt noch eine Speisekammer???
Ähnliche Themen