ᐅ Grundriss-Optimierung | Doppelhaushälfte am Hang mit 192m² Wohnfläche
Erstellt am: 07.06.20 21:28
E
erazorlll07.06.20 21:28Liebes Forum,
ich hatte in den letzten Wochen über meine Erfahrungen bei der Suche und Auswahl eines Bauunternehmens berichtet. Vielen Dank noch mal für eure Hilfe und Diskussionen!
Wie versprochen stelle ich unsere aktuellen Pläne hier ein und bitte euch um Kommentare und Verbesserungen.
Kleinigkeiten sind nicht ganz optimal, aber voraussichtlich nicht anders zu lösen - habe ich unten entsprechend beschrieben.
Bebauungsplan/Einschränkungen
Größe des Grundstücks: 340m²
Hang: ja, ca. 2m Unterschied auf 17m Länge
Grundflächenzahl: 0,4
Geschossflächenzahl: keine
Baufenster, Baulinie und -grenze:
Max. Baufenster Doppelhaushälfte: 8x13m
Max. Baufenster Garage: 5x9m
Baugrenzen dürfen je Gebäudeseite um Max. 5m Breite und 1,5m Tiefe überschritten werden sowie durch untergeordnete Bauteile
Anzahl Stellplatz: 2x KFZ und 2x Fahrrad
Geschossigkeit: keine direkte Vorgabe, sondern Gesamthöhen über Normalnull
Dachform: Satteldach 30-40°
Stilrichtung: -
Ausrichtung: Süd-Ost
Maximale Höhen/Begrenzungen:
Die maximalen Höhen für Traufe und First sind als Höhen über Normalnull angegeben.
Nach Norden sind keine Dachaufbauten zulässig.
weitere Vorgaben:
Zisterne ist vorgeschrieben. Die maximale Höhe der Garage im dafür vorgesehenen Baufenster ist vorgegeben.
Anforderungen der Bauherren
Stilrichtung, Dachform, Gebäudetyp: Modern, Satteldach, Doppelhaushälfte
Keller, Geschosse: als Anforderung mind. 2 Geschosse, der offene Keller ergibt sich durch das Gelände
Anzahl der Personen, Alter: 2 Erwachsene Anfang/Mitte 30, geplant sind 1-2 Kinder
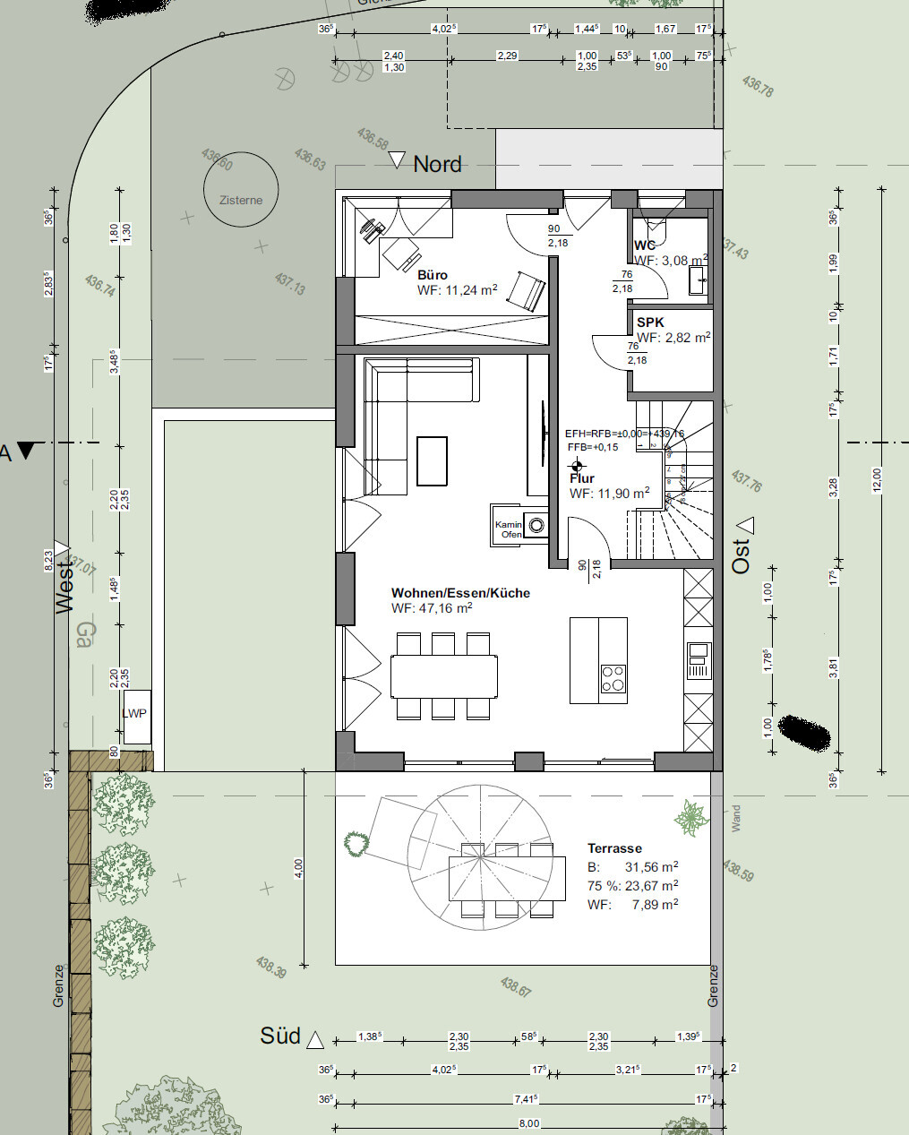
Raumbedarf im EG, OG:
EG: Büro, Wohnzimmer, Esszimmer, Küche, Speisekammer und DU/WC
OG: Schlafzimmer, Ankleide, Bad und zwei Kinderzimmer
Büro: Familiennutzung oder Homeoffice?: ein Büro zwingend notwendig
Schlafgäste pro Jahr: 2-3mal
offene oder geschlossene Architektur: gute Mischung. Küche, Essen und Wohnen eher offen, der Rest eher geschlossen
konservativ oder moderne Bauweise: moderne Bauweise gewünscht
offene Küche, Kochinsel: offene Küche mit Kochinsel
Anzahl Essplätze: 4-6
Kamin: ja, wenn umsetzbar
Musik/Stereowand: ?
Balkon, Dachterrasse: nein, nicht benötigt
Garage, Carport: Doppelgarage auf Grund Vorgaben Bebauungsplan nicht möglich. Daher etwas breitere Einzelgarage mit Platz für Mülleimer und Fahrräder.
Nutzgarten, Treibhaus: nein
weitere Wünsche/Besonderheiten/Tagesablauf, gern auch Begründungen, warum dieses oder das nicht sein soll
Elternschlafzimmer kann gerne kleiner sein, hier wird nur geschlafen und dann sollte der Raum lieber den anderen Räumen zugute kommen
Großes Bad, was eher einen "luftigen" Eindruck erwirkt
siehe auch Text unten
Hausentwurf
Von wem stammt die Planung: Gespräche mit GU und Umsetzung durch Architekten
Was gefällt besonders? Warum?
Bad - relativ groß, breiter waschtisch, WC etwas versteckt und begehbare Dusche ohne Abtrennung
Treppe - für ein Doppelhaushälfte nicht so stark gewendelt
Kinderzimmer - gleich groß, aber nicht komplett gespiegelt, sondern leicht anderer Grundriss
Was gefällt nicht? Warum?
Speisekammer - leider nicht direkt hinter der Küche, sondern die Treppe dazwischen
WC im EG - eigentlich war hier ein Dusch-WC vorgesehen, aus Platzgründen aber nicht möglich und ist daher ins UG gewandert
Preisschätzung lt Architekt/Planer: ca. 2.400 Euro pro m²
Persönliches Preislimit fürs Haus, inkl Ausstattung:
favorisierte Heiztechnik: Luft-Wasser-Wärmepumpe als Splitgerät - Vorschlag war "Weishaupt Luft/Wasser-Wärmepumpe Biblock (WWP LB)"
Wenn Ihr verzichten müsst, auf welche Details/Ausbauten
-könnt Ihr verzichten: Kamin, Einliegerwohnung, Größe des Flurs im UG, Drempelbereich im Elternschlafzimmer
-könnt Ihr nicht verzichten: großes Bad, Speisekammer und WC im EG, Büro
Warum ist der Entwurf so geworden, wie er jetzt ist?
Wir hatten unsere Wünsche pro Etage mit dem GU besprochen und er hatte darauf hin zusammen mit dem Architekten einen Entwurf erstellt.
Diesen haben wir dann mehrfach besprochen und angepasst, um unsere Wünsche umzusetzen.
Der Vorschlag die Küche direkt an die Terrasse zu setzen und das Wohnzimmer nach innen kam vom GU.
Zusätzliche Anmerkungen:
Wir haben ein Grundstück für eine Doppelhaushälfte bekommen und uns dann nach langer Suche auf einen Massivbauanbieter festgelegt.
Grundsätzlich benötigen wir neben den Standard-Räumen zwei Kinderzimmer und ein Büro für die Arbeit. Auf Grund der Hanglage hat sich die Bauweise mit drei Etagen und einem nach vorne offenen UG ergeben. Wichtig für uns ist ein offener Koch-Ess-Wohnbereich mit eventuell einer kleinen Trennung zum Wohnzimmer durch einen Kamin.
Der Vorschlag vom GU war die Küche direkt an die Gartenseite zu legen, damit man gerade im Sommer kurze Wege zwischen Garten und Küche/Kühlschrank hat. Und den Wohnbereich eher nach innen, um dort etwas mehr "Privatsphäre" zu haben. Wir fanden es am Anfang etwas komisch, weil es auch in den meisten Grundrissen anders herum ist. Mittlerweile finden wir es eigentlich ganz interessant.
Nach dem ersten Entwurf gab es zwei Probleme: die Küche war zu schmal für unsere Vorstellungen. Wir wünschen uns eine offene Küche mit einem großen Block in der Mitte. Und im OG war die Ankleide auf Grund der Anordnung und 2m Linie nicht wirklich nutzbar. Wir haben dann noch mal sehr lange an dem Plan gearbeitet und mussten die Treppe verschieben. Dadurch haben sich natürlich auch die Anordnungen auf den anderen Stockwerken geändert. Den Ankleidebereich finden wir mittlerweile ganz ok bzw. er ist nutzbar. Leider hatte die Änderung zur Folge, dass im EG sowohl die Speisekammer nicht mehr hinter der Küche ist, als auch das WC die Dusche verloren hat. Gerade das mit der Speisekammer ist schade, jedoch sehen wir aktuell keine Möglichkeit das zu ändern, ohne wieder andere Probleme zu bekommen.
Eine Einliegerwohnung benötigen wir eigentlich nicht. Auf Grund der Bauweise mit offenem UG ist hier jedoch ein zusätzlicher Raum entstanden. Ursprünglich wollten wir diesen als Hobbyraum nutzen. Da vom EG die Dusche raus musste und wir zur Sicherheit eine zweite Dusche haben wollten, ist jetzt im UG eine Einliegerwohnung entstanden. Ich denke das ist gar nicht so schlecht aus mehreren Gründen: 1) wenn wir alt sind, hätten wir zur Not unten und im EG alles was man braucht | 2) falls mal ein Kind runterziehen möchte, hat es WC und Dusche | 3) hätten wir eine zweite Dusche im Haus (falls mal 3 Frauen im Haus sind)
Und falls die Frage kommen sollte, warum so groß und warum 192m² Wohnfläche:
Wir hatten nie mit so viel Fläche geplant, sondern hat sich ergeben. Die Breite von 8m wollen wir nicht verändern, weil es sonst zu schmal wird. Bei der Länge von 12m könnten wir theoretisch noch reduzieren, jedoch sehe ich aktuell nur im UG den einzigen Bereich, wo die Fläche zu viel ist. Im EG hatten wir schon Schwierigkeiten mit der Speisekammer und Dusche und im OG mit der Anordnung der Ankleide.
Soviel aber zu den Ideen und Plänen, ich freue mich auf eure Anmerkungen und Fragen.
Was ist die wichtigste/grundlegende Frage zum Grundriss in 130 Zeichen zusammengefasst?
Uns würde die allgemeine Meinung zu dem Grundriss interessieren.
Haben wir irgendwas nicht bedacht, was einem erst im Alltag auffällt?
Gibt es vielleicht "schlauere" Ideen wie man etwas anders umsetzen könnte?
Was sagt ihr zu der Anordnung und Größe der Küche?
Was sagt ihr zu der Größe der Garage? Ich bin mir hier unsicher ob eher Breite oder Länge wichtiger ist.
Was sagt ihr zu der Ordnung der Türen? Manche gehen nach innen auf und manche nach außen, auf Grund des Platzes. Stört das im Alltag oder kann man das so machen?
Falls irgendwas fehlt, einfach Bescheid sagen.
PS: die Außengestaltung des Hauses und der Garage (Farbe, Holz zwischen den Fenstern, etc.) sowie die Art der Türen im Esszimmer (Schiebe/Tür/Fest) ist noch nicht getroffen und daher erst mal irgendwie eingezeichnet. Also bitte nicht berücksichtigen.
Danke!
//Edit: falls sich jemand fragt warum im Entwurf eine TH Max steht und die TH der Gebäudes leicht höher ist: war eine nachträgeliche Änderung des B-Planes und hat seine Richtigkeit.







ich hatte in den letzten Wochen über meine Erfahrungen bei der Suche und Auswahl eines Bauunternehmens berichtet. Vielen Dank noch mal für eure Hilfe und Diskussionen!
Wie versprochen stelle ich unsere aktuellen Pläne hier ein und bitte euch um Kommentare und Verbesserungen.
Kleinigkeiten sind nicht ganz optimal, aber voraussichtlich nicht anders zu lösen - habe ich unten entsprechend beschrieben.
Bebauungsplan/Einschränkungen
Größe des Grundstücks: 340m²
Hang: ja, ca. 2m Unterschied auf 17m Länge
Grundflächenzahl: 0,4
Geschossflächenzahl: keine
Baufenster, Baulinie und -grenze:
Max. Baufenster Doppelhaushälfte: 8x13m
Max. Baufenster Garage: 5x9m
Baugrenzen dürfen je Gebäudeseite um Max. 5m Breite und 1,5m Tiefe überschritten werden sowie durch untergeordnete Bauteile
Anzahl Stellplatz: 2x KFZ und 2x Fahrrad
Geschossigkeit: keine direkte Vorgabe, sondern Gesamthöhen über Normalnull
Dachform: Satteldach 30-40°
Stilrichtung: -
Ausrichtung: Süd-Ost
Maximale Höhen/Begrenzungen:
Die maximalen Höhen für Traufe und First sind als Höhen über Normalnull angegeben.
Nach Norden sind keine Dachaufbauten zulässig.
weitere Vorgaben:
Zisterne ist vorgeschrieben. Die maximale Höhe der Garage im dafür vorgesehenen Baufenster ist vorgegeben.
Anforderungen der Bauherren
Stilrichtung, Dachform, Gebäudetyp: Modern, Satteldach, Doppelhaushälfte
Keller, Geschosse: als Anforderung mind. 2 Geschosse, der offene Keller ergibt sich durch das Gelände
Anzahl der Personen, Alter: 2 Erwachsene Anfang/Mitte 30, geplant sind 1-2 Kinder
Raumbedarf im EG, OG:
EG: Büro, Wohnzimmer, Esszimmer, Küche, Speisekammer und DU/WC
OG: Schlafzimmer, Ankleide, Bad und zwei Kinderzimmer
Büro: Familiennutzung oder Homeoffice?: ein Büro zwingend notwendig
Schlafgäste pro Jahr: 2-3mal
offene oder geschlossene Architektur: gute Mischung. Küche, Essen und Wohnen eher offen, der Rest eher geschlossen
konservativ oder moderne Bauweise: moderne Bauweise gewünscht
offene Küche, Kochinsel: offene Küche mit Kochinsel
Anzahl Essplätze: 4-6
Kamin: ja, wenn umsetzbar
Musik/Stereowand: ?
Balkon, Dachterrasse: nein, nicht benötigt
Garage, Carport: Doppelgarage auf Grund Vorgaben Bebauungsplan nicht möglich. Daher etwas breitere Einzelgarage mit Platz für Mülleimer und Fahrräder.
Nutzgarten, Treibhaus: nein
weitere Wünsche/Besonderheiten/Tagesablauf, gern auch Begründungen, warum dieses oder das nicht sein soll
Elternschlafzimmer kann gerne kleiner sein, hier wird nur geschlafen und dann sollte der Raum lieber den anderen Räumen zugute kommen
Großes Bad, was eher einen "luftigen" Eindruck erwirkt
siehe auch Text unten
Hausentwurf
Von wem stammt die Planung: Gespräche mit GU und Umsetzung durch Architekten
Was gefällt besonders? Warum?
Bad - relativ groß, breiter waschtisch, WC etwas versteckt und begehbare Dusche ohne Abtrennung
Treppe - für ein Doppelhaushälfte nicht so stark gewendelt
Kinderzimmer - gleich groß, aber nicht komplett gespiegelt, sondern leicht anderer Grundriss
Was gefällt nicht? Warum?
Speisekammer - leider nicht direkt hinter der Küche, sondern die Treppe dazwischen
WC im EG - eigentlich war hier ein Dusch-WC vorgesehen, aus Platzgründen aber nicht möglich und ist daher ins UG gewandert
Preisschätzung lt Architekt/Planer: ca. 2.400 Euro pro m²
Persönliches Preislimit fürs Haus, inkl Ausstattung:
favorisierte Heiztechnik: Luft-Wasser-Wärmepumpe als Splitgerät - Vorschlag war "Weishaupt Luft/Wasser-Wärmepumpe Biblock (WWP LB)"
Wenn Ihr verzichten müsst, auf welche Details/Ausbauten
-könnt Ihr verzichten: Kamin, Einliegerwohnung, Größe des Flurs im UG, Drempelbereich im Elternschlafzimmer
-könnt Ihr nicht verzichten: großes Bad, Speisekammer und WC im EG, Büro
Warum ist der Entwurf so geworden, wie er jetzt ist?
Wir hatten unsere Wünsche pro Etage mit dem GU besprochen und er hatte darauf hin zusammen mit dem Architekten einen Entwurf erstellt.
Diesen haben wir dann mehrfach besprochen und angepasst, um unsere Wünsche umzusetzen.
Der Vorschlag die Küche direkt an die Terrasse zu setzen und das Wohnzimmer nach innen kam vom GU.
Zusätzliche Anmerkungen:
Wir haben ein Grundstück für eine Doppelhaushälfte bekommen und uns dann nach langer Suche auf einen Massivbauanbieter festgelegt.
Grundsätzlich benötigen wir neben den Standard-Räumen zwei Kinderzimmer und ein Büro für die Arbeit. Auf Grund der Hanglage hat sich die Bauweise mit drei Etagen und einem nach vorne offenen UG ergeben. Wichtig für uns ist ein offener Koch-Ess-Wohnbereich mit eventuell einer kleinen Trennung zum Wohnzimmer durch einen Kamin.
Der Vorschlag vom GU war die Küche direkt an die Gartenseite zu legen, damit man gerade im Sommer kurze Wege zwischen Garten und Küche/Kühlschrank hat. Und den Wohnbereich eher nach innen, um dort etwas mehr "Privatsphäre" zu haben. Wir fanden es am Anfang etwas komisch, weil es auch in den meisten Grundrissen anders herum ist. Mittlerweile finden wir es eigentlich ganz interessant.
Nach dem ersten Entwurf gab es zwei Probleme: die Küche war zu schmal für unsere Vorstellungen. Wir wünschen uns eine offene Küche mit einem großen Block in der Mitte. Und im OG war die Ankleide auf Grund der Anordnung und 2m Linie nicht wirklich nutzbar. Wir haben dann noch mal sehr lange an dem Plan gearbeitet und mussten die Treppe verschieben. Dadurch haben sich natürlich auch die Anordnungen auf den anderen Stockwerken geändert. Den Ankleidebereich finden wir mittlerweile ganz ok bzw. er ist nutzbar. Leider hatte die Änderung zur Folge, dass im EG sowohl die Speisekammer nicht mehr hinter der Küche ist, als auch das WC die Dusche verloren hat. Gerade das mit der Speisekammer ist schade, jedoch sehen wir aktuell keine Möglichkeit das zu ändern, ohne wieder andere Probleme zu bekommen.
Eine Einliegerwohnung benötigen wir eigentlich nicht. Auf Grund der Bauweise mit offenem UG ist hier jedoch ein zusätzlicher Raum entstanden. Ursprünglich wollten wir diesen als Hobbyraum nutzen. Da vom EG die Dusche raus musste und wir zur Sicherheit eine zweite Dusche haben wollten, ist jetzt im UG eine Einliegerwohnung entstanden. Ich denke das ist gar nicht so schlecht aus mehreren Gründen: 1) wenn wir alt sind, hätten wir zur Not unten und im EG alles was man braucht | 2) falls mal ein Kind runterziehen möchte, hat es WC und Dusche | 3) hätten wir eine zweite Dusche im Haus (falls mal 3 Frauen im Haus sind)
Und falls die Frage kommen sollte, warum so groß und warum 192m² Wohnfläche:
Wir hatten nie mit so viel Fläche geplant, sondern hat sich ergeben. Die Breite von 8m wollen wir nicht verändern, weil es sonst zu schmal wird. Bei der Länge von 12m könnten wir theoretisch noch reduzieren, jedoch sehe ich aktuell nur im UG den einzigen Bereich, wo die Fläche zu viel ist. Im EG hatten wir schon Schwierigkeiten mit der Speisekammer und Dusche und im OG mit der Anordnung der Ankleide.
Soviel aber zu den Ideen und Plänen, ich freue mich auf eure Anmerkungen und Fragen.
Was ist die wichtigste/grundlegende Frage zum Grundriss in 130 Zeichen zusammengefasst?
Uns würde die allgemeine Meinung zu dem Grundriss interessieren.
Haben wir irgendwas nicht bedacht, was einem erst im Alltag auffällt?
Gibt es vielleicht "schlauere" Ideen wie man etwas anders umsetzen könnte?
Was sagt ihr zu der Anordnung und Größe der Küche?
Was sagt ihr zu der Größe der Garage? Ich bin mir hier unsicher ob eher Breite oder Länge wichtiger ist.
Was sagt ihr zu der Ordnung der Türen? Manche gehen nach innen auf und manche nach außen, auf Grund des Platzes. Stört das im Alltag oder kann man das so machen?
Falls irgendwas fehlt, einfach Bescheid sagen.
PS: die Außengestaltung des Hauses und der Garage (Farbe, Holz zwischen den Fenstern, etc.) sowie die Art der Türen im Esszimmer (Schiebe/Tür/Fest) ist noch nicht getroffen und daher erst mal irgendwie eingezeichnet. Also bitte nicht berücksichtigen.
Danke!
//Edit: falls sich jemand fragt warum im Entwurf eine TH Max steht und die TH der Gebäudes leicht höher ist: war eine nachträgeliche Änderung des B-Planes und hat seine Richtigkeit.
erazorlll schrieb:
Wir haben ein Grundstück für eine Doppelhaushälfte bekommen und uns dann nach langer Suche auf einen Massivbauanbieter festgelegt.Ich hoffe, mit dem Doppel-Partner zusammen ?https://www.instagram.com/11antgmxde/
https://www.linkedin.com/company/bauen-jetzt/
E
erazorlll07.06.20 22:34ypg schrieb:
Wo geht es denn rein? Im UG oder EG?
Zeig doch mal das Grundstück.Was suchst du genau?
Auf dem Bild "1-Gesamtsicht" siehst du die Baufenster und auch die Nachbargrundstücke mit deren Baufenster. Dort siehst du auch den Eingang ("UG Eingang"). Falls du den Bebauungsplan sucht, habe ich dir mal den relevanten Ausschnitt angehängt. Unser Grundstück ist mit dem roten X markiert und eingerahmt.
Auf dem Bild "2-UG" ist der Eingang und die Eingangstüre eingezeichnet. Eingang ist einmal von der Straße im UG sowie über die Garage möglich. Im EG ist nur der Zugang zur Terrasse und zum Garten.
11ant schrieb:
Ich hoffe, mit dem Doppel-Partner zusammen ?Ach 11ant, das ist ein leidiges Thema und ich glaube wir hatten in dem anderen Thread schon mal dazu geschrieben.
Es gab einen Interessenten für das Nachbargrundstück, der ist jedoch abgesprungenauf Grund der Kosten. Jetzt gibt es einen neuen Interessenten und wir hatten uns mal kurz ausgetauscht. Könnte also machbar sein, wir müssen aber noch auf den Verkauf des Grundstücks warten.
Generell und falls er jetzt auch abspringt wollen wir nicht auf einen Nachbar warten. Ich weiß das hat viele Nachteile, aber es kann niemand sagen ob und wann danach ein Nachbar kommt. Der Bau auf Bodenplatte ist auf Grund des Hanges nicht empfohlen und daher quasi ausgeschlossen. Beim Angleichen der Gebäude kann ich dann auch nichts mehr machen, wenn unsere Hälfte schon steht. Der größte Nachteil ist die Trennwand. Wenn niemand kommt, müsste ich die zusätzlich dämmen und verputzen und dann später wieder komplett entfernen und entsorgen = deutliche Mehrkosten.
Aber wie gesagt, es gibt aktuell einen Interessenten, mal schauen wie sich das entwickelt.
P
Pinky030108.06.20 07:41Im Großen und Ganzen gefällt mir der Grundriss! Finde es auch gut, dass ihr "nicht-Standard" mit der Küche an der Terrasse und gemütlicher Sofaecke plant. Finde es soherum viel besser und logischer.
Was mich etwas stört, ist eine Einliegerwohnung zu planen, obwohl ihr sie gar nicht wollt/braucht. Als Alterswohnsitz kann ich sie mir nicht vorstellen. Und bis die geplanten Kinder groß genug sind, steht sie 10 Jahre+ leer? Kann man den Platz nicht noch sinnvoller nutzen? Z. B. das Büro ins UG, dann habt ihr im EG auch mehr Platz für ein Bad mit Dusche.
Was mich etwas stört, ist eine Einliegerwohnung zu planen, obwohl ihr sie gar nicht wollt/braucht. Als Alterswohnsitz kann ich sie mir nicht vorstellen. Und bis die geplanten Kinder groß genug sind, steht sie 10 Jahre+ leer? Kann man den Platz nicht noch sinnvoller nutzen? Z. B. das Büro ins UG, dann habt ihr im EG auch mehr Platz für ein Bad mit Dusche.
Pinky0301 schrieb:
Was mich etwas stört, ist eine Einliegerwohnung zu planen, obwohl ihr sie gar nicht wollt/braucht. Ich seh das als Gästezimmer Mir gefällt er auch. Im UG Eingang mit viel Garderobenfläche, das ist gut.
Ähnliche Themen