Lage Stadtvilla oder Einfamilienhaus auf 500 m2 Grundstück-Rechteck

4,90 Stern(e) 37 Votes
Zuletzt aktualisiert 05.10.2025
Sie befinden sich auf der Seite 23 der Diskussion zum Thema: Lage Stadtvilla oder Einfamilienhaus auf 500 m2 Grundstück-Rechteck
>> Zum 1. Beitrag <<

kaho674

kaho674

Ok, ich kann ja verstehen, warum bei "Connections" auch so eine Negativassoziation nicht weit weg ist. Aber jetzt mal im ernst, Klüngelei impliziert ja, dass die sich irgendwie zu meinem Nachteil Absprechen, um daraus einen Vorteil zu ziehen. Was soll denn in diesem Fall der gedachte unterstellte Vorteil auf deren Seite sein?
So dramatisch seh ich das jetzt auch nicht. Es hat meist nur Vorteile, wenn der Kontakt zum Amt gut ist. Auf der anderen Seite ist es u.U. so ein eingeschworenes Team geworden, dass Dein GU im vorauseilenden Gehorsam Deine Wünsche gar nicht erst forciert, sondern gleich immer die Amtsmeinung vertritt. Das erweckt den Eindruck, als würden die zwei sich "ihr" Städtchen bauen, wie es ihnen gefällt.

Wenn eine Straßenausrichtung bzw. Baulinie in keinem Bebauungsplan formuliert ist, dann gibt es auch erst mal keine. Ok, der 34er soll sich an der Nachbarbebauung orientieren. Aber ob da die Ausrichtung des Hauses dazu gehört, darüber könnte man sich streiten - notfalls sogar vor Gericht. Wem das jetzt extrem wichtig wär, der würde da vielleicht ein Faß aufmachen. Wenn es Dir relativ Wurst ist, würd ich deswegen allerdings auch nicht schon vor Beginn das Amt verklagen.
 
Tolentino

Tolentino

Ich ruf da jetzt trotzdem an, die Sachbearbeiterin am Telefon erzählt ja nicht unbedingt brühwarm, dass der komische Tolentino seinem Bauleiter nicht vertraut. Und ihr habt insofern Recht, als dass ich mich bei einem Vorhaben für über eine halbe Million nicht durch einen Telefonanruf abschrecken lassen sollte.
So, hab da angerufen und mein Anliegen erklärt. Die Antwort war im Wortlaut ungefähr wie oben angegeben. Das Bild der nachbarschaftlichen Bebauung sei einzuhalten und die Nachbarn hätten sich alle an der Straße ausgerichtet an der ihre Flurstücke liegen.
Wenn ich da nicht parken könne, müssw ich den Stellplatz halt woanders hin machen. Hätten die Nachbarn ja dort auch vorm oder neben dem Haus.

Einen Rechtsstreit ist mir das ganze nicht wert.

Gibt's irgendjemand, der was zu den Schächten sagen kann (#122 f.)?
Kann man das Haus da einfach drüber und Leitungen rein/drunter, bzw. im Falle des Brunnens dran vorbei raus legen?
Oder muss man es abreißen und zuschütten? Sind aus Beton, jeweils, ca. 1,5m tief.
Wirklich niemand?


Lieben (Oster)Gruß

Tolentino
 
Tolentino

Tolentino

Hallo noch mal,

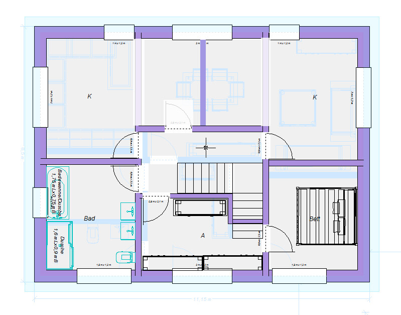
ich wollte hier noch mal Grundrisse zur Disposition stellen.

Variante 4 ist im wesentlichen von @kaho674 übernommen, nur auf die Möblierung, wie wir sie planen, kalibriert.

Variante 3 ist mein Versuch, den Eingang auf die Stellplatzseite zu bringen.

Ich finde, beides hat Vor- und Nachteile.

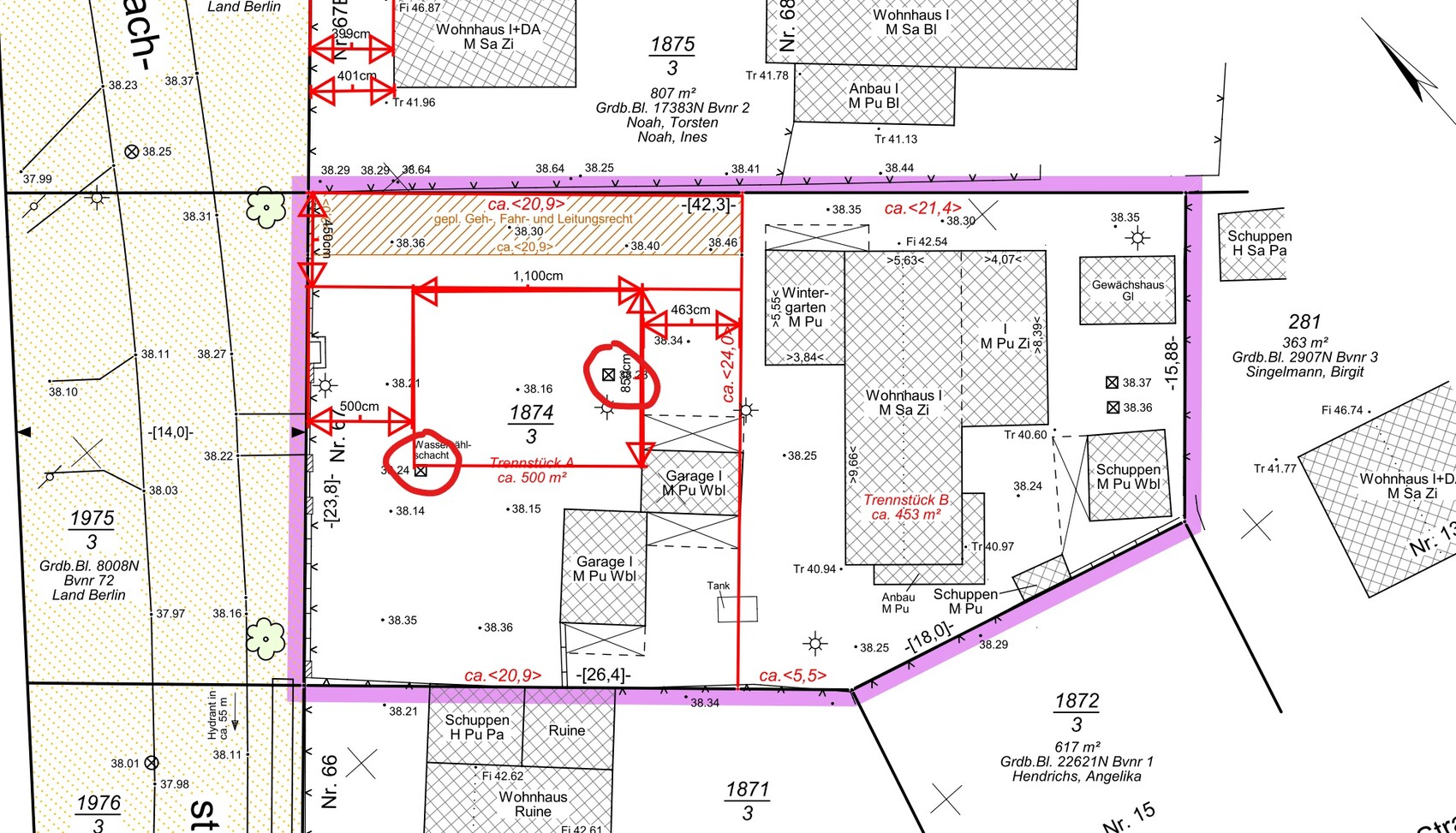
Habe hier außerdem den Vorablageplan vom Vermesser noch mal reingestellt.

Grundfragen sind im Beitrag #79 beantwortet.

Vielen Dank für eure Beiträge...

Lieben Gruß

Tolentino

Detaillierter Grundriss eines Mehrzimmer-Hauses mit Wohnzimmer, Küche, Bad und Schlafzimmer


Detaillierter Grundriss einer Wohnung mit Schlafzimmern, Küche, Bad und Wohnzimmer.


Grundriss einer Wohnung: Wohnzimmer, Küche/Essbereich, Schlafzimmer, Bad und Garderobe mit Möbeln.


Grundriss eines Apartments mit Schlafzimmern, Wohn-/Essbereich, Küche und Bad


Lageplan eines Grundstücks mit Gebäuden, Wegen, Grenzlinien und Maßen.
 
kaho674

kaho674

Wenn ich da nicht parken könne, müssw ich den Stellplatz halt woanders hin machen. Hätten die Nachbarn ja dort auch vorm oder neben dem Haus.
Hä? Ich denke, Auto vorm Haus verboten, untersagt, illegal, gesetzwidrig, tabu, ordnungswidrig, nicht erlaubt, irregulär, nicht gewünscht usw. ? Geht da vielleicht doch was?

das Kopfhöhenproblem bei überbauten Treppenantritten illustriert.
Kann jetzt nicht für die Entwürfe des TE sprechen. Aber ich hatte den natürlich berechnet. (Jetzt bin ich schon etwas enttäuscht - was denkst Du von mir? ) Die Deckenhöhe / Geschosshöhe ist angenommen mit 2,60m / 2,90m und die Kopffreiheit liegt bei über 2,10m.

Was ich jetzt nicht so richtig verstehe: Du wolltest unbedingt 3 Kinderzimmer und jetzt baust Du nur 2, die man später trennen kann?

Falls das der Wunsch ist, wäre es ja wesentlich eleganter, die Kinderzimmer 100% gerecht in der Mitte aufzuteilen und später 2 Wände zu setzen. Störende Fenster kann man ja aufsplitten in 2 kleinere, statt einem großen. Man muss nur gut aufpassen, wie man die Elektrik und Heizung verlegt.



Grundriss eines Hauses mit Küche, Bad, Schlafzimmer, Flur und Treppe

Einen Schrank in den Flur im OG zu stellen, halte ich allerdings für Quark. Da ist es eh schon zu eng. Auch andere Änderungen fallen bei mir alle durch (klar - ). Vor allem die WZ-Tür muss ins WZ aufschlagen - gibt ja sonst sofort Türen-Chaos. Garderobe kann man teilweise unter die Treppe stellen usw.

Eingang von der Seite gefällt mir leider gar nicht - aber da gibt es vielleicht noch andere Lösungen.
 
kbt09

kbt09

@kaho674 ... es geht um die Überbauung der unteren Aufgangsstufen im EG, die im OG notwendig wird, um das Elternschlafzimmer zu erreichen.


Für Menschen ab 180 cm Größe ist da Treppab gehen unangenehm. Deshalb sollte man insbesondere bei Geschosshöhen bis 295, also in aller Regel lichte Raumhöhe bis 260 cm das vielleicht nicht schon in der Skizzenplanung nutzen. Denn erfahrungsgemäß ist dann bei der Realplanung meist noch etwas mehr Überbauung notwendig.
 
Zuletzt aktualisiert 05.10.2025
Im Forum Grundrissplanung / Grundstücksplanung gibt es 2510 Themen mit insgesamt 87156 Beiträgen


Ähnliche Themen zu Lage Stadtvilla oder Einfamilienhaus auf 500 m2 Grundstück-Rechteck
Nr.ErgebnisBeiträge
1Einfamilienhaus mit seitlichem Eingang -Grundrissdiskussion? 17
2Vordach über Eingang zu dunkel? - Seite 220
3Eingang Grundriss welche Treppenvariante - Seite 231
4Knifflige Grundstücksplanung: Garage + Eingang nach SW oder NO? 21
5Rückspringender Eingang beim Fertighaus: mit Bodenplatte oder ohne 11
6Größe Kinderzimmer/Grundriss 12
7Wanddicke Kinderzimmer / Bad 35
8Jalousien in Kinderzimmer und Bad auf der Südseite 12
9Größe vom Schlafzimmer und Kinderzimmer 38
10Kinderzimmer in Dachgeschoss zu klein geplant? - Seite 233
11Kinderzimmer im Obergeschoss bis zum Dach offen 25
12Ups...! Wir brauchen jetzt doch ein Kinderzimmer... 19
13Umbau Kinderzimmer - Fenster in zwei Fenster aufteilen? 20
14Kinderzimmer mit bodentiefen Fenstern 22
15Kork oder Bambus für Kinderzimmer? 41
16Grundrissplanung Hanghaus mit 5 Kinderzimmer 370
17Kinderzimmer und Schlafzimmer - Welche Größe ist zu empfehlen? 56
18Einrichtung Kinderzimmer - Wie sollen wir die gestalten? 15
1912x9,6m 2 Vollgeschosse, Keller, DG, 4 Kinderzimmer - Seite 14153
20Schallschutz Kinderzimmer 12

Oben