Küche: geschlossen oder offen? Welche Raumaufteilung?

4,20 Stern(e) 5 Votes
Zuletzt aktualisiert 20.11.2025
Sie befinden sich auf der Seite 13 der Diskussion zum Thema: Küche: geschlossen oder offen? Welche Raumaufteilung?
>> Zum 1. Beitrag <<

A

Alex85

Sehe ich auch so.

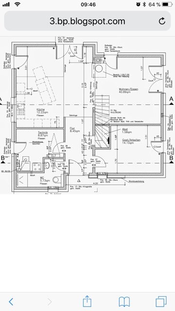
Die Bereiche um den Tisch ... ist der 1m tief gezeichnet?
Den Abstand zum Glas finde ich nicht schlimm, sofern es Festglas ist.
Der Abstand zur Insel ist schon eng, das geht nur mit heran geschobenen Stühlen bzw. wenn es solche sind, die wirklich dicht unter den Tisch passen. Wir haben so lümmelige "Sessel" am Esstisch, die ragen auch heran geschoben 60cm hervor. Muss man wissen, was man da haben will. Komfortabel zum Hinsetzen sind die 1m aber auf jeden Fall, aber als Durchgang fällt dieser Weg flach, wenn da jemand sitzt.
Die 36cm an der linken Stirnseite zu dem grauen Objekt sind natürlich eine Qual. Was ist der graue Kasten? Wichtig/stark frequentiert? (Vorweg genommen: Wenn dies der Kühlschrank sein soll, fände ich das sehr unglücklich sowohl für den Kühlschrank selbst als auch für die umliegenden Sitzplätze).
Wenn der Tisch voll besetzt ist, kommst du an deine Gäste kaum mehr heran. Weder von oben noch von unten. Die A-Karte hat die Person an der linken Stirnseite, da sitzt niemand mehr freiwillig.
 
kbt09

kbt09

Wenn das noch dazu ein Side By Side Kühlschrank sein soll, dann ist auch die Öffnungsrichtung von dem Kühlschrank, dem Kühlteil, mehr als unpraktisch, da nicht einmal der Küche zugerichtet. Der Side By Side Kühlschrank würde daher als erstes in der Zeile besser positioniert sein.

Und Insel-Zeile, da sollten auch 100 cm reichen.
 
S

steija1

danke für die Antworten, alles absolut nachvollziehbar.
Unsere Stühle verschwinden fast komplett unter dem Tisch da ist somit sofern da keiner sitzt Platz. Wenn Kochevent ist, dann organisiert man die sitzende Fraktion auf die Stühle nicht direkt an der Insel, denke das passt. Der Tisch ist 90cm tief, der graue Kasten in der Tat der Kühlschrank.
Idee, sowohl beim Tisch decken als auch beim Kochen lange Wege zu vermeiden.
Glaube aber was wichtig ist, der Tisch ist hier ausgezogen gezeichnet und wird sicherlich noch ein wenig nach rechts gerückt, der Stuhl an der Stirnseite ist dort eher wenn er nicht genutzt wird „geparkt“. Man kann auch 3 oben 3 unten stellen, aber das wird sich zeigen wenn das Häuschen steht.
Bedenken hatte ich beim Platz Kochinsel - Glasfront
 
77.willo

77.willo

Ich würde Insel und Zeile exakt so dicht stellen, dass genau zwei Auszüge aufgehen ohne sich zu berühren.
Allerdings wäre mir die Insel zu klein. Neben dem Kochfeld brauchen wir deutlich mehr Platz.
Die Ecke mit den 36cm würde ich so nicht lassen.
 
Y

ypg

Der Kühlschrank steht völlig abseits von der Essenszubereitung und ist dann tatsächlich sehr störend, wenn man am Tisch sitzt. Der gehört in den Arbeitsbereich. Zwischen Küchenzeile und Tresen würde ich Max. 100 cm machen.
 
Y

ypg

Wie tief ist Eure Küche genau?
Wir haben nur 5,70 gehabt und ich konnte da planerisch nicht die Küche unterbringen, wie Willo sie hat.
Wir mussten kreativer sein , und jetzt bin ich um den Umstand sehr glücklich.
Da es bei Euch auch gerade mal nach 550 aussieht, was nach meiner Meinung zu eng für eine schöne Insel plus tollem Esstisch ist , stell ich sie hier mal rein.


Zweidimensionaler Grundriss einer Kuche mit Insel und Zeilenkueche im Raumplan


Nicht wundern: planoben ist der Kühlschrank, die Insel hat planrechts noch einen Stehbereich


2d-grundriss-eines-wohnhauses-mit-zimmern-und-maßen


Hier siehst Du den Essbereich
 
Zuletzt bearbeitet:
Zuletzt aktualisiert 20.11.2025
Im Forum Küchenplanung und Küchenbau gibt es 1074 Themen mit insgesamt 12736 Beiträgen


Ähnliche Themen zu Küche: geschlossen oder offen? Welche Raumaufteilung?
Nr.ErgebnisBeiträge
1Esstisch in einer kleinen Küche 49
2Geplanter Küche Ideen oder Anmerkungen? - Seite 442
3Kücheninsel und Esstisch - Welchen Grundriss wählen? 21
4Küche ohne Griffe bestellen ist mit Aufpreis verbunden - Seite 432
5Neue Küche wird eine von Ikea - Seite 214
6Erste Küche geplant - Fragen zum Entwurf 14
7Kühlschrank freistehend aufstellen oder integriert? 69
8Küche & Preis - Schnelle Einschätzung erwünscht!! - Seite 6165
9Kühlschrank Side by Side - Entscheidungshilfe - Seite 212
10Heizung in Küche "notwendig"? - Seite 435
11Erster Schritt in die neue offene Küche! Planung so machbar? - Seite 534
12Schimmelproblem in neuer Küche - wie in Zukunft verhindern? 76
13Erstentwurf Nolte Küche - Meinungen und Verbesserungsvorschläge - Seite 330
14Next 125 Küche Planung / Preis Erfahrungen? - Seite 576
15Offene Küche bereut oder doch das Non plus Ultra? - Seite 4104
16Festwasseranschluss für Side by Side Kühlschrank? 41
17Vollintegration Side-by-Side/French - Kühlschrank - Seite 313
18Nobilia Küche Erfahrungen, Preise? - Seite 279
19Küche und Abstellraum Etagenwohnung Grundriss optimieren 34
20Küche - Grifflos oder Aufsatzsschienen? - Seite 222

Oben