Hallo zusammen,
wir haben ein recht schwieriges Grundstück am Hang gekauft und jetzt den ersten Entwurf von unserem Architekten zurück. Diesen habe ich selbst nochmal modifiziert und ein paar Schwächen ausgebügelt, die Aufgrund meiner geäußerten Wünsche entstanden sind. Die Außenmaße sind relativ fix. Ich bin schon relativ zufrieden, hätte aber gern noch ein paar mehr Augen darauf, bevor ich es zum Architekten zurückgebe.
Bebauungsplan/Einschränkungen
Größe des Grundstücks: 731qm
Hang: Ja starker Hang, die Straße führt Richtung Norden ins Tal und der Garten ist Richtung Osten erhöht auf dem Berg
Baufenster, Baulinie und -grenze: 3m zum Nachbarn/Straße
Ausrichtung: Garten im Osten, Straße im Westen
Maximale Höhen/Begrenzungen: noch fraglich. Laut Bauvoranfrage etwa 9,50m ab Bodenplatte Keller
weitere Vorgaben: nach § 34
Anforderungen der Bauherren
Stilrichtung, Dachform, Gebäudetyp: Modern, Flachdach
Keller, Geschosse: Keller und 2 Vollgeschosse
Anzahl der Personen, Alter: 4 Personen (41J, 29J, 3J, 1J), mögliches späteres 3. Kind
Raumbedarf im EG: Wohn-Ess-Kochbereich, Abstellraum/Speis, Gäste-WC, Büro
Raumbedarf im OG: Schlafzimmer, Ankleide, Elternbad, Hauswirtschaftsraum, 2 Kinderzimmer, Kinderbad
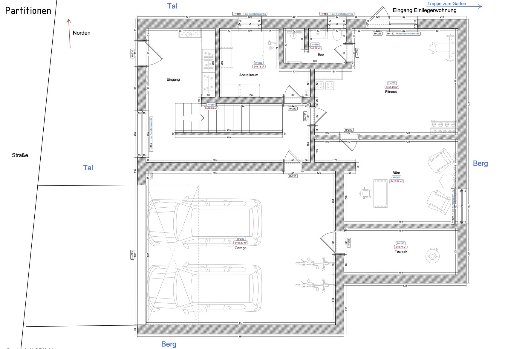
Raumbedarf im Keller: Einliegerwohnung als Büro und Fitnessbereich, Technik, Eingang/Garderobe, Abstellraum, Technik, Garage
Büro: Familiennutzung oder Homeoffice? 2 Home-Office Räume
Schlafgäste pro Jahr: 2 Wochen im Jahr
offene oder geschlossene Architektur: Wohn-Ess-Kochraum sehr offen, der Rest eher geschlossen
konservativ oder moderne Bauweise: ?
offene Küche, Kochinsel: beides gewünscht
Anzahl Essplätze: 8-10
Kamin: eher nein
Musik/Stereowand: nach Möglichkeit
Balkon, Dachterrasse: nein
Garage, Carport: Großraumgarage mit Doppeltor
Nutzgarten, Treibhaus: nein
weitere Wünsche/Besonderheiten/Tagesablauf, gern auch Begründungen, warum dieses oder das nicht sein soll: sehr unterschiedlicher Tagesrhytmus, Mann geht spät ins Bett und schläft entsprechend lange. Büro im Keller für störungsfreies Arbeiten.
Wir würden gerne mit dem Gartengeschoss möglichst hoch über Straßenniveau kommen, da das Grundstück an eine schöne Wiese anschließt die aktuell etwa 1-2 Meter über dem Gartenniveau liegt. Zu hoch können wir das Haus allerdings nicht setzen weil sonst die Einfahrt in die Garage zu steil wird.
Hausentwurf
Von wem stammt die Planung: Architekt - von mir innen nochmal angepasst
Was gefällt besonders? Warum? Offener großzügiger Wohnbereich, Erker
Was gefällt nicht? Warum? Ungünstige Garderoben-Situation wenn man aus der Garage kommt. Langer Schmutzbereich durch den man aber ins Büro muss..
Preisschätzung laut Architekt: > 1 Mio
Persönliches Preislimit fürs Haus, inkl. Ausstattung: Eigentlich schon ziemlich ausgereizt bei 1 Mio, evtl sind auch 1,1-1,2 möglich.
favorisierte Heiztechnik: Wärmepumpe, Fußbodenheizung
Wenn Ihr verzichten müsst, auf welche Details/Ausbauten
-könnt Ihr verzichten: Einrichtung des Kellerbüros als Einliegerwohnung, aber erwünscht wegen steuerlichen Aspekten.
-könnt Ihr nicht verzichten: Im Grunde ist alles irgendwie gewünscht/wichtig
Warum ist der Entwurf so geworden, wie er jetzt ist? ZB
Durch die schwierige Hanglage des Grundstücks ist vieles bereits mehr oder weniger vorgegeben. Es existierte bereits ein genehmigter Bauantrag von einem anderen Architekten und der ähnelt diesem unabhängig voneinander stark.
Ich habe mich in einem Musterhaus in diesen Küchenerker verliebt, was allerdings zur Folge hat, dass die Speisekammer nicht wie ursprünglich gewollt als direkte Ergänzung der Küche genutzt werden kann... Da die Küche jedoch sehr groß ist, wird der Raum dann wohl eher Abstellkammer.
Im OG liegt das 2. Kinderzimmer im Nordwesten und nicht Südwesten, da im Süden direkt das höhere Nachbarhaus steht und Richtung Norden hat man einen tollen Ausblick ins grüne Tal.




wir haben ein recht schwieriges Grundstück am Hang gekauft und jetzt den ersten Entwurf von unserem Architekten zurück. Diesen habe ich selbst nochmal modifiziert und ein paar Schwächen ausgebügelt, die Aufgrund meiner geäußerten Wünsche entstanden sind. Die Außenmaße sind relativ fix. Ich bin schon relativ zufrieden, hätte aber gern noch ein paar mehr Augen darauf, bevor ich es zum Architekten zurückgebe.
Bebauungsplan/Einschränkungen
Größe des Grundstücks: 731qm
Hang: Ja starker Hang, die Straße führt Richtung Norden ins Tal und der Garten ist Richtung Osten erhöht auf dem Berg
Baufenster, Baulinie und -grenze: 3m zum Nachbarn/Straße
Ausrichtung: Garten im Osten, Straße im Westen
Maximale Höhen/Begrenzungen: noch fraglich. Laut Bauvoranfrage etwa 9,50m ab Bodenplatte Keller
weitere Vorgaben: nach § 34
Anforderungen der Bauherren
Stilrichtung, Dachform, Gebäudetyp: Modern, Flachdach
Keller, Geschosse: Keller und 2 Vollgeschosse
Anzahl der Personen, Alter: 4 Personen (41J, 29J, 3J, 1J), mögliches späteres 3. Kind
Raumbedarf im EG: Wohn-Ess-Kochbereich, Abstellraum/Speis, Gäste-WC, Büro
Raumbedarf im OG: Schlafzimmer, Ankleide, Elternbad, Hauswirtschaftsraum, 2 Kinderzimmer, Kinderbad
Raumbedarf im Keller: Einliegerwohnung als Büro und Fitnessbereich, Technik, Eingang/Garderobe, Abstellraum, Technik, Garage
Büro: Familiennutzung oder Homeoffice? 2 Home-Office Räume
Schlafgäste pro Jahr: 2 Wochen im Jahr
offene oder geschlossene Architektur: Wohn-Ess-Kochraum sehr offen, der Rest eher geschlossen
konservativ oder moderne Bauweise: ?
offene Küche, Kochinsel: beides gewünscht
Anzahl Essplätze: 8-10
Kamin: eher nein
Musik/Stereowand: nach Möglichkeit
Balkon, Dachterrasse: nein
Garage, Carport: Großraumgarage mit Doppeltor
Nutzgarten, Treibhaus: nein
weitere Wünsche/Besonderheiten/Tagesablauf, gern auch Begründungen, warum dieses oder das nicht sein soll: sehr unterschiedlicher Tagesrhytmus, Mann geht spät ins Bett und schläft entsprechend lange. Büro im Keller für störungsfreies Arbeiten.
Wir würden gerne mit dem Gartengeschoss möglichst hoch über Straßenniveau kommen, da das Grundstück an eine schöne Wiese anschließt die aktuell etwa 1-2 Meter über dem Gartenniveau liegt. Zu hoch können wir das Haus allerdings nicht setzen weil sonst die Einfahrt in die Garage zu steil wird.
Hausentwurf
Von wem stammt die Planung: Architekt - von mir innen nochmal angepasst
Was gefällt besonders? Warum? Offener großzügiger Wohnbereich, Erker
Was gefällt nicht? Warum? Ungünstige Garderoben-Situation wenn man aus der Garage kommt. Langer Schmutzbereich durch den man aber ins Büro muss..
Preisschätzung laut Architekt: > 1 Mio
Persönliches Preislimit fürs Haus, inkl. Ausstattung: Eigentlich schon ziemlich ausgereizt bei 1 Mio, evtl sind auch 1,1-1,2 möglich.
favorisierte Heiztechnik: Wärmepumpe, Fußbodenheizung
Wenn Ihr verzichten müsst, auf welche Details/Ausbauten
-könnt Ihr verzichten: Einrichtung des Kellerbüros als Einliegerwohnung, aber erwünscht wegen steuerlichen Aspekten.
-könnt Ihr nicht verzichten: Im Grunde ist alles irgendwie gewünscht/wichtig
Warum ist der Entwurf so geworden, wie er jetzt ist? ZB
Durch die schwierige Hanglage des Grundstücks ist vieles bereits mehr oder weniger vorgegeben. Es existierte bereits ein genehmigter Bauantrag von einem anderen Architekten und der ähnelt diesem unabhängig voneinander stark.
Ich habe mich in einem Musterhaus in diesen Küchenerker verliebt, was allerdings zur Folge hat, dass die Speisekammer nicht wie ursprünglich gewollt als direkte Ergänzung der Küche genutzt werden kann... Da die Küche jedoch sehr groß ist, wird der Raum dann wohl eher Abstellkammer.
Im OG liegt das 2. Kinderzimmer im Nordwesten und nicht Südwesten, da im Süden direkt das höhere Nachbarhaus steht und Richtung Norden hat man einen tollen Ausblick ins grüne Tal.
N
nordanney14.01.25 12:51Schönes Haus. Kinderankleide ist in dieser Art und Größe Unsinn.
Skya2020 schrieb:Teuren Wohnraum generieren für welche steuerlichen Aspekte, die das ernsthaft rechtfertigen?
-könnt Ihr verzichten: Einrichtung des Kellerbüros als Einliegerwohnung, aber erwünscht wegen steuerlichen Aspekten.
nordanney schrieb:
Teuren Wohnraum generieren für welche steuerlichen Aspekte, die das ernsthaft rechtfertigen?Ach so ich glaube da habe ich mich missverständlich ausgedrückt. Der Wohnraum entsteht ja ohnehin aufgrund der Hanglage und das Büro im Keller wird auch gebraucht (das einzige wär der Fitnessraum, der ist nicht zwingend nötig, nehmen wir aber natürlich gerne wenn wir schon mit Keller bauen). Aber damit es steuerlich als Einliegerwohnung anerkannt wird, müssen ja ein paar Vorschriften eingehalten werden so wie ich das verstanden habe. Wenn diese Aspekte aber irgendwie zu kompliziert oder teuer würden (wie zb separater Eingang, Rettungsweg oder sowas), dann würden wir es eben nur als Wohnkeller planen.
Als Einliegerwohnung könnte ich es meinem Mann als Gesamtfläche als Büro vermieten. Sonst kann man nur den einen Raum als Arbeitszimmer absetzen.
nordanney schrieb:
Kinderankleide ist in dieser Art und Größe Unsinn.Es mag sein, dass es nicht das sinnvollste oder praktischste ist. Es ist aber tatsächlich ein persönlicher Wunsch von mir, weil ich schon immer diese Wandschränke nach amerikanischem Vorbild ziemlich cool fand.
H
hanghaus202314.01.25 14:44Büro ohne Fenster vermieten??
Gibt es einen Lageplan vom Grundstück mit eingezeichneten Haus? Am besten mit Höhenangaben.
Das soll wirklich ein Architekt geplant haben? Oder ist Deine Abzeichnen etwas fehlgeschlagen?
Wie hoch sind die Häuser der Nachbarn?
Gefälle geht Richtung NW?
Die Nachbarbauwerke sehen niedriger aus.
Gibt es einen Lageplan vom Grundstück mit eingezeichneten Haus? Am besten mit Höhenangaben.
Das soll wirklich ein Architekt geplant haben? Oder ist Deine Abzeichnen etwas fehlgeschlagen?
Wie hoch sind die Häuser der Nachbarn?
Gefälle geht Richtung NW?
Die Nachbarbauwerke sehen niedriger aus.
N
nordanney14.01.25 14:55Skya2020 schrieb:
Aber damit es steuerlich als Einliegerwohnung anerkannt wird,... musst Du auch vermieten. Und zwar dauerhaft. Wenn das geht, ist es ok.Skya2020 schrieb:
Es mag sein, dass es nicht das sinnvollste oder praktischste ist. Es ist aber tatsächlich ein persönlicher Wunsch von mir, weil ich schon immer diese Wandschränke nach amerikanischem Vorbild ziemlich cool fand.ok. Dagegen kann man nicht argumentieren.hanghaus2023 schrieb:
Büro ohne Fenster vermieten??Ich vermiete es ja an meinen Mann ;D Und ihm wäre ein Raum ohne Fenster lieber für seine Zwecke. Zudem haben wir das Problem mit einem Fenster in diesem Raum, dass das Fenster dann oben auf der Terrasse liegt. Aktuell ist aber eins eingezeichnet.hanghaus2023 schrieb:
Das soll wirklich ein Architekt geplant haben? Oder ist Deine Abzeichnen etwas fehlgeschlagen?Also die Außenmaße sollten bis auf ein paar cm ungefähr hinkommen. Was genau lässt dich Zweifeln? Ich habe zb sowas gemacht, wie die Treppe 60cm verschoben und im Obergeschoss einige Wände verändert.
hanghaus2023 schrieb:
Gibt es einen Lageplan vom Grundstück mit eingezeichneten Haus? Am besten mit Höhenangaben.
Wie hoch sind die Häuser der Nachbarn?
Gefälle geht Richtung NW?
Die Nachbarbauwerke sehen niedriger aus.hanghaus2023 schrieb:
Ich habe mal grob die Höhenlinien eingetragen.

Du hast dich tatsächlich schonmal mit dem Grundstück beschäftigt 😉 https://www.hausbau-forum.de/threads/fertighausbau-mit-massivhaus-grundriss-sinnvoll.48133/page-10Ähnliche Themen