ᐅ Grundriss, Hausanordnung EFW 150m2, Keller + Einliegerwohnung - Feedback erwünscht
Erstellt am: 29.12.24 00:08
N
njAiiiiHallo liebes Forum,
wir lesen schon länger still mit im Wissen, dass wir irgendwann selbst bauen werden. Danke im Voraus an alle, die hier regelmäßig posten und ihr Wissen teilen. Das ist für Laien wie uns super hilfreich. Wir sind Euch jetzt schon dankbar, dass ihr Euch unserem Projekt widmet und es kritisch beäugt. Das rückt jetzt immer näher. Das Grundstück ist vorhanden. Es liegt in der Nähe eines Landschaftsschutzgebietes mit leichtem Hang. Das Bodengutachten weist zeitweise drückendes Wasser aus.
Wie gehen wir vor?
Was wollen wir bauen?
Bebauungsplan/Einschränkungen
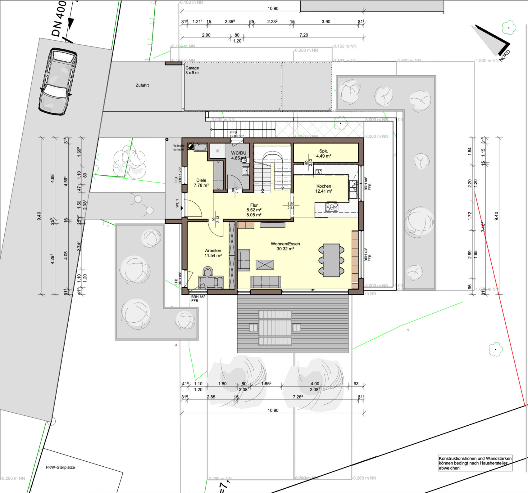
Größe des Grundstücks: 650m2
Hang: Ja, leicht (Maßstab 1:250 s. Höhen im Anhang, 1m über knapp 10x11m)
Grundflächenzahl: kein Bebauungsplan, keine formelle Vorgabe, rund 220qm Grundfläche möglich nach Rücksprache mit Bauamt
Geschossflächenzahl: kein Bebauungsplan, rund 220qm Grundfläche möglich
Baufenster, Baulinie und -grenze:
- 5m zur Straße
- 3m zur Nachbarbebauung
Randbebauung: Jeweils an den Seiten und gegenüber an der Straße;
Anzahl Stellplatz: wahrscheinlich 3 benötigt (könnten das Haus noch nach hinten platzieren, damit die direkt vor dem Haus sind)
Geschossigkeit:
- technisch 2,
- soll aber optisch an die Umgebungsbebauung angeglichen werden und deswegen 1.5er Optik haben
Dachform: Satteldach, 30-40cm Überstand
Stilrichtung: Modern
Ausrichtung: SO, allerdings mit sehr viel historischem Baumbestand ringsherum von Osten nach Westen an der Grundstücksgrenze
Maximale Höhen/Begrenzungen: Nachbarbebauung, s. Straßenabwicklung
weitere Vorgaben: Bei Flachdach 1m Rücksprung zur Straße sowie an den Seiten
Anforderungen der Bauherren
Stilrichtung: Modern
Dachform:
- Satteldach zwischen 25-33°
- Ursprünglich mal Flachdach wg. Nachbar zur Linken, jetzt Satteldach vorrangig wg. Budget, Wartung und den vorgegebenen Rücksprüngen
Gebäudetyp: Einfamilienhaus + Einliegerwohnung
Keller: Ja
Geschosse: "1.5"
Kniestock: 1,90m (keine Vorgabe), wir wollen so wenig Schrägen wie nötig
Anzahl der Personen: 4 (2 Erwachsene 40, 2 Kids (4, 1) + 1 Familienmitglied für die Einliegerwohnung
Raumbedarf im EG, OG:
- ursprünglich 141m2 nach reinem Nettobedarf ohne Verkehrsflächen
EG
- Offener Wohn-/Essbereich mit Speisekammer
- Arbeitszimmer (später ggf. Schlafzimmer im Alter)
- Duschbad
- Diele
OG
- 2 KZ ab 13m2
- Schlafzimmer so klein wie nötig + Ankleide mit Standardschränken
- Bad mit T-Lösung, Dusche, Wanne, WC
- zweiter Arbeitsplatz
Büro: Familiennutzung oder Homeoffice?
- Homeoffice x2 an 3 bis 4 von 5 Tagen
Schlafgäste pro Jahr: 1x / Quartal
offene oder geschlossene Architektur: offen
konservativ oder moderne Bauweise: "modern"
offene Küche, Kochinsel: Ja
Anzahl Essplätze: 4-6 ausziehbar auf 10 (2m Tisch auf 3m ausziehbar)
Kamin: nein
Musik/Stereowand: nein
Balkon, Dachterrasse: nein
Garage, Carport: Fertiggarage 3x7, ggf. 3x9
Nutzgarten, Treibhaus: ja (Gemüse, Obst, Zisterne)
weitere Wünsche/Besonderheiten/Tagesablauf, gern auch Begründungen, warum dieses oder das nicht sein soll
Hausentwurf
Von wem stammt die Planung:
Persönliches Preislimit fürs Haus, inkl. Ausstattung: 750k + Baunebenkosten
favorisierte Heiztechnik: nachhaltig + Fußbodenheizung (Komfort); Erdwärme wäre vorstellbar, aber rechnet nicht mit all den Infos, die wir bisher recherchieren konnten
Wenn Ihr verzichten müsst, auf welche Details/Ausbauten
-könnt Ihr nicht verzichten:
Warum ist der Entwurf so geworden, wie er jetzt ist? ZB
Standardentwurf vom Planer? Nein; Vom Architekt
- Wir haben all unsere Vorstellungen und Präferenzen mit dem Architekten geteilt und vorbesprochen
- Die Version ist die zweite Iteration; oben gab es eine Option mit Flachdachgaube mit Kinderzimmer Richtung SW, haben wir mittlerweile verworfen; sowie Dach 25° (nehmen wir wahrscheinlich)
Entsprechende/Welche Wünsche wurden vom Architekten umgesetzt?
Meldet Euch gerne bei Rückfragen.
Wir sind gespannt auf Euer Feedback und danken Euch im Voraus.










wir lesen schon länger still mit im Wissen, dass wir irgendwann selbst bauen werden. Danke im Voraus an alle, die hier regelmäßig posten und ihr Wissen teilen. Das ist für Laien wie uns super hilfreich. Wir sind Euch jetzt schon dankbar, dass ihr Euch unserem Projekt widmet und es kritisch beäugt. Das rückt jetzt immer näher. Das Grundstück ist vorhanden. Es liegt in der Nähe eines Landschaftsschutzgebietes mit leichtem Hang. Das Bodengutachten weist zeitweise drückendes Wasser aus.
Wie gehen wir vor?
- Grundstück kaufen, Bodengutachten machen
- Haus mit Architekten auf Grundstück ausrichten und planen (Phasen 1-3)
- Ausschreibung an GU sowie Einzelgewerke für Innenausbau mit anschließendem Vergleich
- Bau mit Sachverständiger
Was wollen wir bauen?
- Einfamilienhaus + Einliegerwohnung (für Familie und aus steuerlichen Gründen, vorrangig wg. der ganzen Afa-Möglichkeiten und deswegen auch mit QNG)
- Warum der Keller? Gartenfläche maximieren, Abstellfläche mitnehmen, Hang "vermeintlich ausnutzen"
Bebauungsplan/Einschränkungen
Größe des Grundstücks: 650m2
Hang: Ja, leicht (Maßstab 1:250 s. Höhen im Anhang, 1m über knapp 10x11m)
Grundflächenzahl: kein Bebauungsplan, keine formelle Vorgabe, rund 220qm Grundfläche möglich nach Rücksprache mit Bauamt
Geschossflächenzahl: kein Bebauungsplan, rund 220qm Grundfläche möglich
Baufenster, Baulinie und -grenze:
- 5m zur Straße
- 3m zur Nachbarbebauung
Randbebauung: Jeweils an den Seiten und gegenüber an der Straße;
Anzahl Stellplatz: wahrscheinlich 3 benötigt (könnten das Haus noch nach hinten platzieren, damit die direkt vor dem Haus sind)
Geschossigkeit:
- technisch 2,
- soll aber optisch an die Umgebungsbebauung angeglichen werden und deswegen 1.5er Optik haben
Dachform: Satteldach, 30-40cm Überstand
Stilrichtung: Modern
Ausrichtung: SO, allerdings mit sehr viel historischem Baumbestand ringsherum von Osten nach Westen an der Grundstücksgrenze
Maximale Höhen/Begrenzungen: Nachbarbebauung, s. Straßenabwicklung
weitere Vorgaben: Bei Flachdach 1m Rücksprung zur Straße sowie an den Seiten
Anforderungen der Bauherren
Stilrichtung: Modern
Dachform:
- Satteldach zwischen 25-33°
- Ursprünglich mal Flachdach wg. Nachbar zur Linken, jetzt Satteldach vorrangig wg. Budget, Wartung und den vorgegebenen Rücksprüngen
Gebäudetyp: Einfamilienhaus + Einliegerwohnung
Keller: Ja
Geschosse: "1.5"
Kniestock: 1,90m (keine Vorgabe), wir wollen so wenig Schrägen wie nötig
Anzahl der Personen: 4 (2 Erwachsene 40, 2 Kids (4, 1) + 1 Familienmitglied für die Einliegerwohnung
Raumbedarf im EG, OG:
- ursprünglich 141m2 nach reinem Nettobedarf ohne Verkehrsflächen
EG
- Offener Wohn-/Essbereich mit Speisekammer
- Arbeitszimmer (später ggf. Schlafzimmer im Alter)
- Duschbad
- Diele
OG
- 2 KZ ab 13m2
- Schlafzimmer so klein wie nötig + Ankleide mit Standardschränken
- Bad mit T-Lösung, Dusche, Wanne, WC
- zweiter Arbeitsplatz
Büro: Familiennutzung oder Homeoffice?
- Homeoffice x2 an 3 bis 4 von 5 Tagen
Schlafgäste pro Jahr: 1x / Quartal
offene oder geschlossene Architektur: offen
konservativ oder moderne Bauweise: "modern"
offene Küche, Kochinsel: Ja
Anzahl Essplätze: 4-6 ausziehbar auf 10 (2m Tisch auf 3m ausziehbar)
Kamin: nein
Musik/Stereowand: nein
Balkon, Dachterrasse: nein
Garage, Carport: Fertiggarage 3x7, ggf. 3x9
Nutzgarten, Treibhaus: ja (Gemüse, Obst, Zisterne)
weitere Wünsche/Besonderheiten/Tagesablauf, gern auch Begründungen, warum dieses oder das nicht sein soll
- wir sind Lärche + Eule, stehen also getrennt auf; mit zwei Kids (ggf. irgendwann 3), erachten wir das 2. Duschbad als Pflicht
- Offener Wohn-/ Essbereich als Herzstück: Wir kochen viel und gerne, sozialer Mittelpunkt im Haus
- wo möglich Standards (Schrankbreiten, Türen, Fenster, Hausform etc.)
- wenn sinnvoll, dann mit Keller
- Überdachung von Hauseingang zur Garage (aktuell noch in Klärung, wie wir das darstellen können / wollen, da diese mit großer Wahrscheinlichkeit in der Höhe > 3m mit Attika sein müsste und das wohl eine Baulast an der Grenzbebauung benötigen würde
- werden die Terrasse sehr wahrscheinlich mit "Glasmarkise" im Nachgang versehen
- Photovoltaikanlage
- Luftwasserwärmepumpe
- Lüftungsanlage
- Offener Wohn-Essbereich (in L-Form)
- Lichtdurchflutete Räume
- Höchstmöglicher Kniestock
- Lichte Raumhöhe maximieren EG/OG
- Wohn-Essbereich mit bodentiefen Fenstern
- Tageslichtbäder
- Esstisch mit 2m Länge (ausziehbar auf 3m)
- Moderne Optik mit individuellen Akzenten
- Geringe Dachneigung
- Innentüren min. 1m breit
- Duschbad unten
- Ankleide
- Speis auch als Abstellkammer
- Treppe nicht direkt an Eingangstür (Schmutzkorridor)
- Arbeitszimmer perspektivisch als Schlafzimmer nutzbar
- Kochinsel (min. 2m breite)
- Flachdachgaube u./o. Erker
- Zweiter Arbeitsplatz (Schlafzimmer, Empore, ö.Ä.)
- Bad T-Lösung
- Tageslicht in Empore
- Souterrain Wohnung
- Separater Eingang zu Souterrain Wohnung
- Hebe-Schiebe-Element
- Süd-West Gartenfläche maximieren
- Terrasse (Teil-) überdacht
- Sichtachse Flur-Garten
- Tageslicht in Ankleide
- Zugang zum Keller von Außen
- Wäscheabwurfschacht
- Sitzfenster
- SmartHome Basics
Hausentwurf
Von wem stammt die Planung:
- Architekt, Leistungsphasen 1-3
- Das EG grundsätzlich, sehr viele unserer Wünsche abgebildet, ein paar Highlights
- Schlafzimmer+Ankleide, da kommt wahrscheinlich noch eine Tür zwischen
- Podesttreppe, Sichtachse, Fenster in der Küche, Diele
- EG: Arbeitszimmer in Richtung SW statt Osten oder Südosten ausgerichtet
- EG-WZ: Die Festverglasung im EG Richtung SW ist scheinbar noch zu klein
- EG-WZ:: Hebe-Schiebe-Element ist noch zu groß, da Couch nicht gut hinpasst
- EG-WZ: Überlegung die gesamte Wand mit Fenster auszustatten
- EG: Flur ziemlich lang
- OG ist eine Funktion des EGs und deswegen sind die Zimmer bis auf Schlafzimmer+Ankleide relativ groß
- OG-Schlafzimmer in Richtung SW statt Norden
- OG ist noch die Überlegung alle Fenster bodentief zu machen (außer Treppe, Empore); Grund Lichteinfall + Optik
- Garage wg. Durchgang zur Einliegerwohnung nicht direkt am Haus
- Einliegerwohnung ziemlich aufwändig
- Am Anfang haben wir mit einem Haus a la "L" selbst gezeichnet ähnlich dem Post hier, die Verkehrsflächen haben wir dann aber nicht hinbekommen und sehen diese aktuell als "notwendiges Übel" an.
Persönliches Preislimit fürs Haus, inkl. Ausstattung: 750k + Baunebenkosten
favorisierte Heiztechnik: nachhaltig + Fußbodenheizung (Komfort); Erdwärme wäre vorstellbar, aber rechnet nicht mit all den Infos, die wir bisher recherchieren konnten
Wenn Ihr verzichten müsst, auf welche Details/Ausbauten
-könnt Ihr nicht verzichten:
- Einliegerwohnung (wg. Familie + steuerliche Vorteilen)
- Arbeitszimmer (benötigen ein festes Setup zumindest für eine Person, wollen Gäste unterbringen können, auch mal Rückzugsort im Haus)
- zwei Kinderzimmer
Warum ist der Entwurf so geworden, wie er jetzt ist? ZB
Standardentwurf vom Planer? Nein; Vom Architekt
- Wir haben all unsere Vorstellungen und Präferenzen mit dem Architekten geteilt und vorbesprochen
- Die Version ist die zweite Iteration; oben gab es eine Option mit Flachdachgaube mit Kinderzimmer Richtung SW, haben wir mittlerweile verworfen; sowie Dach 25° (nehmen wir wahrscheinlich)
Entsprechende/Welche Wünsche wurden vom Architekten umgesetzt?
- sehr viel von oben; aber nicht alles möglich
- Eigentlich ist unser Platzbedarf geringer, kriegen wir aber im EG nicht so abgebildet, dass das OG passt (Differenz aktuell gute 10-15 m2; KZ könnten alle was kleiner sein, Verkehrsflächen und Empore ebenso)
- Noch nicht optimal ist die Fensterfläche im Wohn-/ Essbereich, Arbeitszimmer und die relativ große Wohnfläche oben; Wir denken an 1,10m Festverglasung und 2,50m Hebe-Schiebe-Element
- Haus ist noch relativ "vergraben"; Gedanke: Haus insgesamt oder zumindest EG+OG um 40-80cm aus dem Boden zu heben
- Das gesamte Thema "Haus/ Garage abfangen", Erdarbeiten und Grundstücksmodellierung ist sehr komplex und aufwändig
- Kein Raffstore an Empore möglich wg. Kniestock + Dach
- Schmutzkorridor + Treppe getrennt; eventuell. kleiner Nachteil im Alter, man wird das OG zukünftig nicht separat vermieten können
Meldet Euch gerne bei Rückfragen.
Wir sind gespannt auf Euer Feedback und danken Euch im Voraus.
njAiiii schrieb:
+ Einliegerwohnung (für Familie und aus steuerlichen GründenZumindest ehrlich in der Aussage, dass der Grund ist, dass es sich steuerlich lohnen soll. Aber dennoch müsste ja der Ausbau etc. bezahlt werden. . ist das nicht eine falsche bzw. naive Rechnung? Erst einmal müssen ja Rechnungen vorhanden sein, um sie steuerlich absetzen zu können ?! Eine Einliegerwohnung bzw. einen ausgebauten Keller mit den Schächten bekommt man ja nicht für lau!Für eine Vermietung eignet sie sich ja weniger, da sie sehr präsent ist im Garten.
Zumindest ehrlich in der Aussage, dass der Grund ist, dass es sich steuerlich lohnen soll. Aber dennoch müsste ja der Ausbau etc. bezahlt werden. . ist das nicht eine falsche bzw. naive Rechnung? Erst einmal müssen ja Rechnungen vorhanden sein, um sie steuerlich absetzen zu können ?! Eine Einliegerwohnung bzw. einen ausgebauten Keller mit den Schächten bekommt man ja nicht für lau!Hey ypg, danke für die zügige Antwort.Der Gedankengang ist wie folgt: Einliegerwohnung soll mit rein, damit die ältere Generation zunächst mit den Kids aufwächst und später nicht "alleine" dasteht. Aktuell ist es auf der einen Seite bereits nur noch eine Person. Auch wenn man es nicht super planen kann, ist es wahrscheinlich, dass es auf der anderen Seite zeitversetzt analog geschieht. Ist alles weit weg, aber einer der Gründe.
Klar: Bezahlt werden muss jetzt. Von dem, was wir bisher an Baukosten + Nebenkosten antizipieren können, "lohnt" sich langfristig für uns und in der Kombi Family, Kids, Emotions + Abschreibung. Deswegen ist die Einliegerwohnung für uns nicht ganz so einfach wegzudiskutieren. Aber wir sind offen für alle Sichtweisen und Argumente. Unser Architekt hat grob angedeutet, was da an Aufwänden hinzukäme. Wir haben unsere Annahmen für das gesamte Bauvorhaben abgeglichen.
Für eine Vermietung eignet sie sich ja weniger, da sie sehr präsent ist im Garten.In den nächsten 20 Jahren wird es sehr wahrscheinlich nur an die Familie gehen. Wie man sich für die Fremdvermietung danach den Garten abtrennt, haben wir bisher nicht abschließend besprochen. Wege finden sich bestimmt. Zur Not würde "nur" die Wohnung vermietet werden.Noch als Nachtrag, warum wir den Weg bis Leistungsphase 3 bisher gehen und nicht weiter und wie lange der "Teig" schon ruht.
Als Laien sind wir erst relativ spät auf das Forum hier aufmerksam geworden. Da haben wir uns anderweitig bis Leistungsphase 3 gut beraten gefühlt. Der Teig ruht schon einigen Wochen. Das war auch von "Wunschkonzert" aufstellen und reduzieren sowie zwischen den ersten Iterationen der Entwürfe so. Theoretisch könnten wir Leistungsphase 4 auch noch mit dem Architekten gehen.
Ggf. hilft noch etwas mehr Kontext zu den Iterationen der Entwürfe:
Entwurf 1 hatte im EG an der Wohnwand noch eine Tür, sodass man wahlweise ins WZ bzw. in die Küche kommt. Dann wäre uns die Stellfläche für Möbel im WZ nahezu komplett abhanden gekommen. Wir haben keinen mega TV und nutzen den auch nur sporadisch. Aber die Türen direkt nebeneinander waren für uns eher etwas sinnfrei. Die Sichtachse aus dem WZ dann in Richtung Kellertreppe fanden wir auch semi-gut. Der Kompromiss ist somit "durch die Küche" zu gehen. Lieber hätten wir eine cleane Sichtachse - klar. Dann wäre die Küche aber zu klein.
Es gab mal den Gedankengang Wohnzimmer + Küche zu tauschen und den Speis an die Rückwand vom Arbeitszimmer zu setzen. Das hat uns auch nicht final überzeugt.
Im OG gab es den Gedanken mit der Gaube wegen und Ausrichtung der Kinderzimmer. Das war mit dem EG aber maximal unstimmig.
Als Laien sind wir erst relativ spät auf das Forum hier aufmerksam geworden. Da haben wir uns anderweitig bis Leistungsphase 3 gut beraten gefühlt. Der Teig ruht schon einigen Wochen. Das war auch von "Wunschkonzert" aufstellen und reduzieren sowie zwischen den ersten Iterationen der Entwürfe so. Theoretisch könnten wir Leistungsphase 4 auch noch mit dem Architekten gehen.
Ggf. hilft noch etwas mehr Kontext zu den Iterationen der Entwürfe:
Entwurf 1 hatte im EG an der Wohnwand noch eine Tür, sodass man wahlweise ins WZ bzw. in die Küche kommt. Dann wäre uns die Stellfläche für Möbel im WZ nahezu komplett abhanden gekommen. Wir haben keinen mega TV und nutzen den auch nur sporadisch. Aber die Türen direkt nebeneinander waren für uns eher etwas sinnfrei. Die Sichtachse aus dem WZ dann in Richtung Kellertreppe fanden wir auch semi-gut. Der Kompromiss ist somit "durch die Küche" zu gehen. Lieber hätten wir eine cleane Sichtachse - klar. Dann wäre die Küche aber zu klein.
Es gab mal den Gedankengang Wohnzimmer + Küche zu tauschen und den Speis an die Rückwand vom Arbeitszimmer zu setzen. Das hat uns auch nicht final überzeugt.
Im OG gab es den Gedanken mit der Gaube wegen und Ausrichtung der Kinderzimmer. Das war mit dem EG aber maximal unstimmig.
Guten Morgen, ich frage mal nach den Fensterhöhen! Die sind mir wichtig. Wir haben sie vergeigt und jeder, der noch in der Planung steckt, kann verhindern, dass ein Sturz überproportional große die Optik stört. Mit welcher Raumhöhe wurde geplant? Ist es richtig, dass die Fenster eine Höhe von 2,08m haben!?
njAiiii schrieb:
Anzahl der Personen: 4 (2 Erwachsene 40, 2 Kids (4, 1) + 1 Familienmitglied für die EinliegerwohnungWie alt ist denn die ältere Person?Ähnliche Themen