ᐅ Erste Planung Einfamilienhaus mit Einliegerwohnung auf 600 m2
Erstellt am: 02.01.21 15:34
Hallo zusammen,
wir haben nach längerer Suche ein Grundstück mit Altbestand erworben und sind nun ganz am Anfang der Planungen. Übergabe des Hauses ist am 4.01. .
Ein Gespräch mit einem Architekten ist in 2 Wochen eingeplant, aber es ist ja von Vorteil, wenn man sich davor schon ein wenig seine Gedanken macht 😉.
Der Vermesser soll auch demnächst kommen, um einen Lageplan mit Höhenpunkte zu erstellen.
Hier die Fakten:
Bebauungsplan/Einschränkungen
Größe des Grundstücks: ca. 600 m2 (13 m x 47 m) im Moment mit abrisswürdigen Altbestand.
Hang: Ja, Gefälle von Ost nach West. (EG komplett im Hang, 1. OG teilweise.
Es gibt keinen Bebauungsplan, die Häuser im Bestand sind aber alle mit 3 Vollgeschossen.
Auf der Westseite verläuft die alte Haupstraße. Ein wenig weiter weg die Bundesstraße.
Nordseite ist ein Nachbarsgebäude, Südseite Garten des Grundstücks. Wunsch ist nach Abriss ca. 5m nach Süden zu rücken, damit man ein wenig Abstand zum Nachbar, sowie Stellplätze und eine Terrasse für die Einliegerwohnung gewinnt.
Die Sonne ist den ganzen Tag auf dem Grundstück. Verschattung soviel ich weiß, keine vorhanden.
Anforderungen der Bauherren
Stilrichtung, Dachform, Gebäudetyp: Normales Einfamilienhaus mit Einliegerwohnung und Satteldach
Keller, Geschosse: kein Keller, 3 Vollgeschosse
Anzahl der Personen, Alter: Im Moment 2 Erwachsene (30 und 25 Jahre), 2 Kinder geplant. Vermietete Einliegerwohnung (max. 2 Personen). Die Einliegerwohnung soll als Altersruhesitz dienen und deshalb ebenerdig im EG sein.
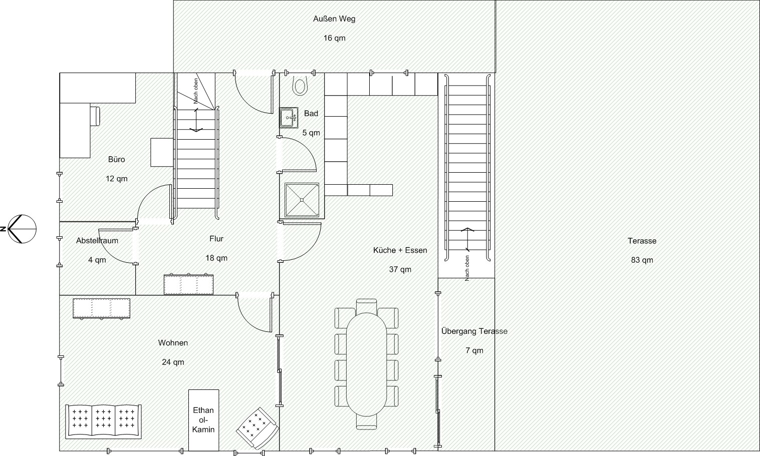
Raumbedarf im EG, OG: Siehe Entwurf
Büro: Homeoffice sowie Familie denkbar
Schlafgäste pro Jahr: Immer mal wieder. Durchschnittlich alle 2 Monate für eine Übernachtung (im Moment Schlafsofa im Wohnzimmer)
offene oder geschlossene Architektur: Guter Mix
konservativ oder moderne Bauweise: Eher konservativ
offene Küche, Kochinsel: Küche und Esszimmer gemeinsam, Wohnen getrennt.
Anzahl Essplätze: 8-10
Kamin: eher nein, macht bei KFW55 und Wärmepumpe mit Fußbodenheizung nicht soviel Sinn. Evtl. Ethanolkamin?
Musik/Stereowand: Ja.
Terrasse: Ja, im EG neben Stellplatz Einliegerwohnung und im 1. OG auf Doppelgarage. (Hier ist die Frage, ob man wirklich die komplette Doppelgarage als Terrasse nimmt, oder evtl. noch den Essbereich ein wenig rauszieht)
Garage, Carport: Doppelgarage und Doppelstellplatz:
Nutzgarten, Treibhaus: Evtl. später.
weitere Wünsche/Besonderheiten/Tagesablauf, gern auch Begründungen, warum dieses oder das nicht sein soll:
Getrennter Wohnbereich, damit bei Besuch einer Hälfte oder später der Kinder keine Beeinträchtigung da ist.
Hausentwurf
Von wem stammt die Planung: von mir selbst.
Was gefällt besonders? Warum?
Kein großer verschwendeter Flurbereich. In unser jetzigen Wohnung haben wir einen großen fast ungenutzten Flus.
Was gefällt nicht? Warum?
-Grundriss der Einliegerwohnung. Bin mir hier noch komplett unsicher wo das Bad platziert werden sollte. Bei Kontrollierte-Wohnraumlüftung könnte es ja eig. Ohne Fenster auskommen, was ich aber gerne hätte. Je nachdem wo das Bad ist, kann dann auch erst der Bereich Küche/Wohnen/Essen vernünftig eingeplant werden.
Die beiden L-Grundrisse der Kinderzimmer im 2. OG. Ist im Moment ein Kompromiss, damit der Flur nicht zu groß wird.
Preisschätzung: eigene Schätzung 650.000€
Persönliches Preislimit fürs Haus, inkl Ausstattung: müsste ich erst noch mit der Bank abklären. Das Grundstück mit Altbestand wurde mit Eigenkapital erworben.
favorisierte Heiztechnik: Sole-Wärmepumpe mit Tiefenbohrung und Fußbodenheizung. Photovoltaik auf beiden Dachhälften (Ost-West-Ausrichtung). Kontrollierte-Wohnraumlüftung mit Wärmerückgewinnung. Zur Verschattung sollen Jalousien eingeplant werden.
Wenn Ihr verzichten müsst, auf welche Details/Ausbauten
-könnt Ihr verzichten:
-könnt Ihr nicht verzichten:
Warum ist der Entwurf so geworden, wie er jetzt ist?
Erste Entwürfe nach unseren Vorstellungen um den Raumbedarf und Anforderungen für das erste Gespräch mit dem Architekten zu definieren.
Was ist die wichtigste/grundlegende Frage zum Grundriss in 130 Zeichen zusammengefasst?
Zum derzeitigen Planungsstand:
Begutachtung der Grundrisse und Tipps nach Erfahrungen von den Usern. Evtl. falsche Haus- und Raumplatzierung aufdecken. Auf No-GOs hinweisen. Keine detailierte und tiefe Bewertungen notwendig, da nach dem Architektenentwurf die ganze Sache wieder anders aussehen kann.
Zur Erläuterung des Grundrisses:
Die Wände sind noch nicht richtig dargestellt. Von dem her werden die Räume real noch kleiner. Fenster und Möbel sind im Moment noch rein willkürlich gesetzt. Hier könntet ihr evtl. auch noch mit Tipps weiterhelfen.
EG: Hier soll eine massive gebaute Einliegerwohnung + Technikraum im Haus sowie eine Doppelgarage mit Keller und kleiner Werkstatt entstehen.
Zwischen Haus und DGG soll eine außenliegende Treppe zum 1. OG führen. Dort soll der Hauseingang dann Hangseitig erfolgen.
1. OG: Hier soll ein 2 vollgeschössiges Einfamilienhaus in Holzbauweiße entstehen. Die Doppelgarage soll als Terrasse dienen.
Untergebracht sein sollen: Großzügiger Küchen-Essbereich, getrenntes Wohnzimmer, Büro und kleines Bad mit Dusche.
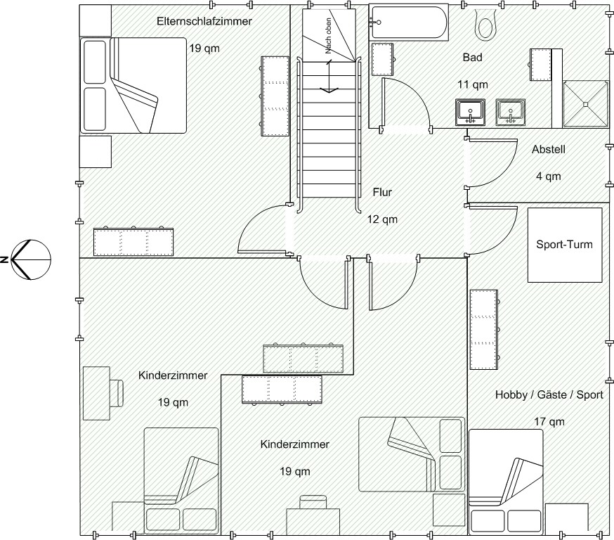
2. OG: Hier sollen die Schlafräume, das Hauptbad sowie ein Hobbyraum/Gästezimmer untergebracht sein.
Offen ist auch noch die Grundfläche, die das Haus haben darf. Ggf. müssen auch noch Baulasten von den Nachbarn eingeholt werden. Aber ich denke, das man auch mit 8 x 12,5 m auskommen könnte.
Falls ihr noch weitere Infos benötigt, lasst es mich wissen 😉.
Gerne könnt ihr auch Bedenken äußern. Bin da für alle Meinungen und Tipps offen, wir sind von der Planung her ja noch nahezu bei 0.
Danke und Viele Grüße
Florian








wir haben nach längerer Suche ein Grundstück mit Altbestand erworben und sind nun ganz am Anfang der Planungen. Übergabe des Hauses ist am 4.01. .
Ein Gespräch mit einem Architekten ist in 2 Wochen eingeplant, aber es ist ja von Vorteil, wenn man sich davor schon ein wenig seine Gedanken macht 😉.
Der Vermesser soll auch demnächst kommen, um einen Lageplan mit Höhenpunkte zu erstellen.
Hier die Fakten:
Bebauungsplan/Einschränkungen
Größe des Grundstücks: ca. 600 m2 (13 m x 47 m) im Moment mit abrisswürdigen Altbestand.
Hang: Ja, Gefälle von Ost nach West. (EG komplett im Hang, 1. OG teilweise.
Es gibt keinen Bebauungsplan, die Häuser im Bestand sind aber alle mit 3 Vollgeschossen.
Auf der Westseite verläuft die alte Haupstraße. Ein wenig weiter weg die Bundesstraße.
Nordseite ist ein Nachbarsgebäude, Südseite Garten des Grundstücks. Wunsch ist nach Abriss ca. 5m nach Süden zu rücken, damit man ein wenig Abstand zum Nachbar, sowie Stellplätze und eine Terrasse für die Einliegerwohnung gewinnt.
Die Sonne ist den ganzen Tag auf dem Grundstück. Verschattung soviel ich weiß, keine vorhanden.
Anforderungen der Bauherren
Stilrichtung, Dachform, Gebäudetyp: Normales Einfamilienhaus mit Einliegerwohnung und Satteldach
Keller, Geschosse: kein Keller, 3 Vollgeschosse
Anzahl der Personen, Alter: Im Moment 2 Erwachsene (30 und 25 Jahre), 2 Kinder geplant. Vermietete Einliegerwohnung (max. 2 Personen). Die Einliegerwohnung soll als Altersruhesitz dienen und deshalb ebenerdig im EG sein.
Raumbedarf im EG, OG: Siehe Entwurf
Büro: Homeoffice sowie Familie denkbar
Schlafgäste pro Jahr: Immer mal wieder. Durchschnittlich alle 2 Monate für eine Übernachtung (im Moment Schlafsofa im Wohnzimmer)
offene oder geschlossene Architektur: Guter Mix
konservativ oder moderne Bauweise: Eher konservativ
offene Küche, Kochinsel: Küche und Esszimmer gemeinsam, Wohnen getrennt.
Anzahl Essplätze: 8-10
Kamin: eher nein, macht bei KFW55 und Wärmepumpe mit Fußbodenheizung nicht soviel Sinn. Evtl. Ethanolkamin?
Musik/Stereowand: Ja.
Terrasse: Ja, im EG neben Stellplatz Einliegerwohnung und im 1. OG auf Doppelgarage. (Hier ist die Frage, ob man wirklich die komplette Doppelgarage als Terrasse nimmt, oder evtl. noch den Essbereich ein wenig rauszieht)
Garage, Carport: Doppelgarage und Doppelstellplatz:
Nutzgarten, Treibhaus: Evtl. später.
weitere Wünsche/Besonderheiten/Tagesablauf, gern auch Begründungen, warum dieses oder das nicht sein soll:
Getrennter Wohnbereich, damit bei Besuch einer Hälfte oder später der Kinder keine Beeinträchtigung da ist.
Hausentwurf
Von wem stammt die Planung: von mir selbst.
Was gefällt besonders? Warum?
Kein großer verschwendeter Flurbereich. In unser jetzigen Wohnung haben wir einen großen fast ungenutzten Flus.
Was gefällt nicht? Warum?
-Grundriss der Einliegerwohnung. Bin mir hier noch komplett unsicher wo das Bad platziert werden sollte. Bei Kontrollierte-Wohnraumlüftung könnte es ja eig. Ohne Fenster auskommen, was ich aber gerne hätte. Je nachdem wo das Bad ist, kann dann auch erst der Bereich Küche/Wohnen/Essen vernünftig eingeplant werden.
Die beiden L-Grundrisse der Kinderzimmer im 2. OG. Ist im Moment ein Kompromiss, damit der Flur nicht zu groß wird.
Preisschätzung: eigene Schätzung 650.000€
Persönliches Preislimit fürs Haus, inkl Ausstattung: müsste ich erst noch mit der Bank abklären. Das Grundstück mit Altbestand wurde mit Eigenkapital erworben.
favorisierte Heiztechnik: Sole-Wärmepumpe mit Tiefenbohrung und Fußbodenheizung. Photovoltaik auf beiden Dachhälften (Ost-West-Ausrichtung). Kontrollierte-Wohnraumlüftung mit Wärmerückgewinnung. Zur Verschattung sollen Jalousien eingeplant werden.
Wenn Ihr verzichten müsst, auf welche Details/Ausbauten
-könnt Ihr verzichten:
-könnt Ihr nicht verzichten:
Warum ist der Entwurf so geworden, wie er jetzt ist?
Erste Entwürfe nach unseren Vorstellungen um den Raumbedarf und Anforderungen für das erste Gespräch mit dem Architekten zu definieren.
Was ist die wichtigste/grundlegende Frage zum Grundriss in 130 Zeichen zusammengefasst?
Zum derzeitigen Planungsstand:
Begutachtung der Grundrisse und Tipps nach Erfahrungen von den Usern. Evtl. falsche Haus- und Raumplatzierung aufdecken. Auf No-GOs hinweisen. Keine detailierte und tiefe Bewertungen notwendig, da nach dem Architektenentwurf die ganze Sache wieder anders aussehen kann.
Zur Erläuterung des Grundrisses:
Die Wände sind noch nicht richtig dargestellt. Von dem her werden die Räume real noch kleiner. Fenster und Möbel sind im Moment noch rein willkürlich gesetzt. Hier könntet ihr evtl. auch noch mit Tipps weiterhelfen.
EG: Hier soll eine massive gebaute Einliegerwohnung + Technikraum im Haus sowie eine Doppelgarage mit Keller und kleiner Werkstatt entstehen.
Zwischen Haus und DGG soll eine außenliegende Treppe zum 1. OG führen. Dort soll der Hauseingang dann Hangseitig erfolgen.
1. OG: Hier soll ein 2 vollgeschössiges Einfamilienhaus in Holzbauweiße entstehen. Die Doppelgarage soll als Terrasse dienen.
Untergebracht sein sollen: Großzügiger Küchen-Essbereich, getrenntes Wohnzimmer, Büro und kleines Bad mit Dusche.
2. OG: Hier sollen die Schlafräume, das Hauptbad sowie ein Hobbyraum/Gästezimmer untergebracht sein.
Offen ist auch noch die Grundfläche, die das Haus haben darf. Ggf. müssen auch noch Baulasten von den Nachbarn eingeholt werden. Aber ich denke, das man auch mit 8 x 12,5 m auskommen könnte.
Falls ihr noch weitere Infos benötigt, lasst es mich wissen 😉.
Gerne könnt ihr auch Bedenken äußern. Bin da für alle Meinungen und Tipps offen, wir sind von der Planung her ja noch nahezu bei 0.
Danke und Viele Grüße
Florian
Da bis jetzt durch den evtl. zu langen und undurchsichtigen Text niemand geantwortet hat, hier die Fragen im Klartext:
1. Gibt es noch einen besseren Ort für die Platzierung des Hauses und Doppelgarage? (durch das schlauchartige Grundstück glaube ich es aber nicht)
2. Hat jemand für den Grundriss der Einliegerwohnung im EG eine bessere Idee, wie das Bad platziert werden könnte?
3. Passt im 1. OG und 2. OG (Einfamilienhaus) die Raumaufteilung mit den Himmelsrichtungen?
Fehlt noch etwas oder ist es einfach zum jetzigen Planungsstand zu früh damit Antworten kommen könnten?
Danke und Gruß
Florian
1. Gibt es noch einen besseren Ort für die Platzierung des Hauses und Doppelgarage? (durch das schlauchartige Grundstück glaube ich es aber nicht)
2. Hat jemand für den Grundriss der Einliegerwohnung im EG eine bessere Idee, wie das Bad platziert werden könnte?
3. Passt im 1. OG und 2. OG (Einfamilienhaus) die Raumaufteilung mit den Himmelsrichtungen?
Fehlt noch etwas oder ist es einfach zum jetzigen Planungsstand zu früh damit Antworten kommen könnten?
Danke und Gruß
Florian
Na ja, wenn man halt irgendetwas gescheit zuordnen könnte. Und, wenn man wüßte warum ein 10 m breites Haus auf ein 13 m breites Grundstück passen kann. Was ist mit den sonst mind. je 3m Abstand? Kann die Garage so nah zur Straße stehen?
Und, wenn man wüßte wer in so einer dunklen Einliegerwohnung wohnen soll. Schlafzimmer ohne Fenster? Bad vom Wohnzimmer aus betretbar? Nur Westlicht? Wer soll das mieten?
Ich habe doch richtig verstanden, dass das EG im Osten quasi im Hang eingebuddelt ist.
Warum nicht einfach Werkstatt, Lager, Technik ins EG in den Bereich ohne Fenster und dann Eingang mit großzügiger Garderobe und Gäste/Hobby-Sportzimmer mit Westfenster?
Und dann eben großzügige Etagen obendrüber.
Und, wenn man wüßte wer in so einer dunklen Einliegerwohnung wohnen soll. Schlafzimmer ohne Fenster? Bad vom Wohnzimmer aus betretbar? Nur Westlicht? Wer soll das mieten?
Ich habe doch richtig verstanden, dass das EG im Osten quasi im Hang eingebuddelt ist.
Warum nicht einfach Werkstatt, Lager, Technik ins EG in den Bereich ohne Fenster und dann Eingang mit großzügiger Garderobe und Gäste/Hobby-Sportzimmer mit Westfenster?
Und dann eben großzügige Etagen obendrüber.
P
Pinkiponk07.01.21 18:43Ich würde den Architekten bitten, größere Fenster einzuplanen. Sie erscheinen mir auf dem Hausbild zu klein.
Grand90 schrieb:
im Moment mit abrisswürdigen Altbestand.Grand90 schrieb:
Da bis jetzt durch den evtl. zu langen und undurchsichtigen Text niemand geantwortet hat, hier die Fragen im Klartext:Die scheinen mir die Verwirrung aber nicht zu klären - ich vermute den wesentlichen Grund für die schwache Beteiligung in der Verständlichkeit der Projektdarstellung. Die Zeichnungen lassen an ein Ensemble aus zwei Gebäuden denken, die quasi locker miteinander verbunden sind. Ein Altbestand wird dabei als abrißwürdig bezeichnet, aber in den Zeichnungen dann ein Gebäude dargestellt, das der Gestalt nach von vor mindestens dem zweiten Weltkrieg stammt, selbst 70/71 schlösse ich nicht garantiert aus.https://www.instagram.com/11antgmxde/
https://www.linkedin.com/company/bauen-jetzt/
Entschuldigung für die Verwirrung. Die beiden Gebäudeansichten sind das Abrissgebäude und sollten nur den Hangverlauf wiederspiegeln.
Habe leider nicht gesehen, dass die Bilder beim Hochladen umbenannt worden sind.
Bild 1 = 1. OG Einfamilienhaus (bzw. vom Hang her EG)
Bild 2= 2. OG Einfamilienhaus
Bild 3 = EG mit Einliegwohrung, Technikraum und DG
Bild 4 = Grundstück
Bild 5 = Luftbild mit Maße Grundstück
Bild 6 = Ansichten Altbau Norden+Osten
Bild 7 = Ansicht Altbau Süden
Bild 8 = Lageplan Altbau (Flurstücksnummern 64, 65 und 66 gehören dazu)
Habe leider nicht gesehen, dass die Bilder beim Hochladen umbenannt worden sind.
Bild 1 = 1. OG Einfamilienhaus (bzw. vom Hang her EG)
Bild 2= 2. OG Einfamilienhaus
Bild 3 = EG mit Einliegwohrung, Technikraum und DG
Bild 4 = Grundstück
Bild 5 = Luftbild mit Maße Grundstück
Bild 6 = Ansichten Altbau Norden+Osten
Bild 7 = Ansicht Altbau Süden
Bild 8 = Lageplan Altbau (Flurstücksnummern 64, 65 und 66 gehören dazu)
Ähnliche Themen