ᐅ Grundriss Einfamilienhaus / Hanglage innerorts
Erstellt am: 01.12.16 14:26
Nach über 1 Jahr suche nach einem Abbruchunternehmen haben wir eine Firma gefunden, die
a) ein Angebot im Rahmen der Kostenschätzung vom Architekten vorgelegt hat
b) das Angebot auch alles umfaßt
c) die keine Angst vor Innerorts und Hang hat
Das Grundstück ist zur Zeit bebaut und wird weitestgehend abgerissen. Das neue Wohnhaus soll auf der Linie der alten Stützmauer gebaut werden, so dass kein weiterer Abtrag notwendig wird.
Hoffe ihr versteht was ich meine.
Foto von der derzeitigen Bebauung füge ich bei.
Bebauungsplan/Einschränkungen
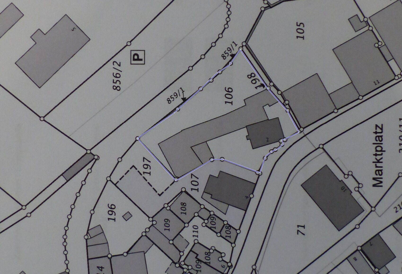
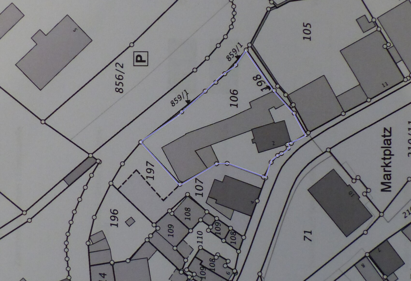
Größe des Grundstücks 1227 m²
Hang ja siehe Foto
Grundflächenzahl
Geschossflächenzahl
Baufenster, Baulinie und -grenze
Randbebauung
Anzahl Stellplatz
Geschossigkeit
Dachform
Stilrichtung
Ausrichtung
Maximale Höhen/Begrenzungen
weitere Vorgaben 3 Meter Grenzabstand - Bestandsgebäude dürfen bleiben
keine weiteren Vorgaben von der Gemeinde, kein Bebauungsplan. Die Vorstellungen wo das Haus gestellt werden soll und wie hoch es ungefähr wird wurden mit der Gemeinde besprochen
Anforderungen der Bauherren
Stilrichtung, Dachform, Gebäudetyp - Satteldach
Keller, Geschosse - kein Keller 2 Vollgeschosse
Anzahl der Personen, Alter - 2 Erwachsene 38, 1 Kind 1, evtl. 2. Kind
Raumbedarf im EG, OG - EG, Haustechnik, Garderobe, Duschbad, Küche, Essen, Wohnen
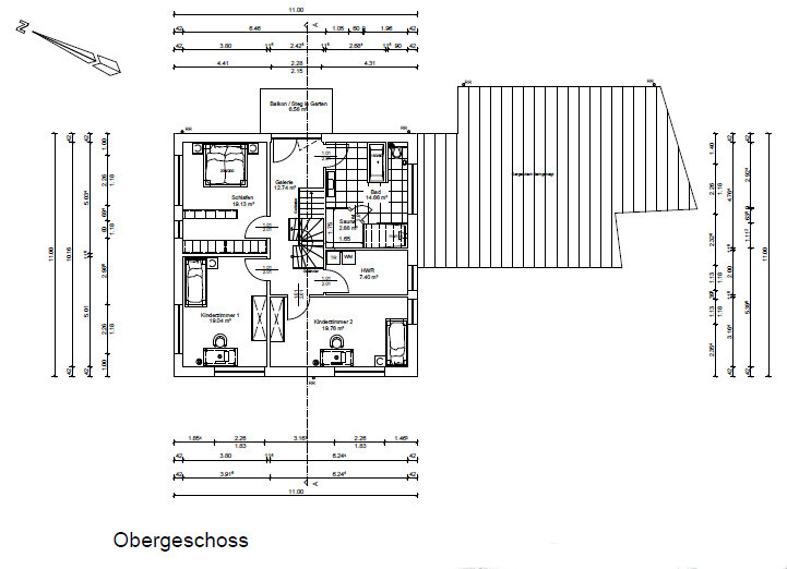
OG Schlafzimmer, Ankleide, 2 Kinderzimmer (eines wird evlt. als Allzweckraum genutzt) Bad mit Dampfbad und Hauswirtschaftsraum
Büro: Familiennutzung oder Homeoffice? Nein
Schlafgäste pro Jahr 2-3
offene oder geschlossene Architektur offen Wohnen, Essen, Kochen
konservativ oder moderne Bauweise würde sagen ehr konservativ
offene Küche, Kochinsel offene Küche
Anzahl Essplätze 8-10 erweiterbar auf 12
Kamin - nein
Musik/Stereowand - nein
Balkon, Dachterrasse OG Übergang zum Garten (Hanglage)
Garage, Carport - Doppelgarage mit Abstellraum Garage neu, Abstellraum Bestand
Nutzgarten, Treibhaus - nein später mal Outdoorküche
weitere Wünsche/Besonderheiten/Tagesablauf
EG barrierefrei, Bad rollstuhltauglich, gerade Treppe
Hausentwurf
Von wem stammt die Planung:
-Planer eines Bauunternehmens ja
-Architekt
-Do-it-Yourself von Euch
Was gefällt besonders?
Was gefällt nicht? Treppe Spitzboden - geht gar nicht
Preisschätzung lt Architekt/Planer: Angebot 380.000 Euro + Abriss
Persönliches Preislimit fürs Haus, inkl Ausstattung:
favorisierte Heiztechnik: Luftwärmepumpe oder ähnliches. Wird Weihnachten mit dem Schwager festgelegt
Wenn Ihr verzichten müsst, auf welche Details/Ausbauten
-könnt Ihr verzichten:
-könnt Ihr nicht verzichten:
Warum ist der Entwurf so geworden, wie er jetzt ist? ZB
Standardentwurf vom Planer?
Entsprechende/Welche Wünsche wurden vom Architekten umgesetzt?
Ein Gemisch aus vielen Beispielen aus div. Magazinen...
Was macht ihn in Euren Augen besonders gut oder schlecht?
Der Entwurf wurde ein paar mal schon geändert. Architekt hat den Raumbedarf mit uns erstellt, Grundrisse wurde eingerichtet und die Hanglage muß berücksichtigt werden. Wünsche wurden berücksichtigt hinsichtlich Räume und Größe.
Einrichtung Küche und Bad steht noch nicht fest - wurde so vom Architekten eingezeichnet
Stören tut die Treppe zum Spitzboden. Wollen eine gut begehbare Treppe.
Nachbarn: Flurnummer 107 Bank und Arzt, Flurnummer 105 Pfarramt
Hoffentlich habe ich nichts vergessen. Wenn mein Mann von der Dienstreise zurück ist wollen wir uns mit dem Architekten treffen. Wäre nett, wenn ihr uns ein paar Hinweise oder Vorschläge geben könntet.









a) ein Angebot im Rahmen der Kostenschätzung vom Architekten vorgelegt hat
b) das Angebot auch alles umfaßt
c) die keine Angst vor Innerorts und Hang hat
Das Grundstück ist zur Zeit bebaut und wird weitestgehend abgerissen. Das neue Wohnhaus soll auf der Linie der alten Stützmauer gebaut werden, so dass kein weiterer Abtrag notwendig wird.
Hoffe ihr versteht was ich meine.
Foto von der derzeitigen Bebauung füge ich bei.
Bebauungsplan/Einschränkungen
Größe des Grundstücks 1227 m²
Hang ja siehe Foto
Grundflächenzahl
Geschossflächenzahl
Baufenster, Baulinie und -grenze
Randbebauung
Anzahl Stellplatz
Geschossigkeit
Dachform
Stilrichtung
Ausrichtung
Maximale Höhen/Begrenzungen
weitere Vorgaben 3 Meter Grenzabstand - Bestandsgebäude dürfen bleiben
keine weiteren Vorgaben von der Gemeinde, kein Bebauungsplan. Die Vorstellungen wo das Haus gestellt werden soll und wie hoch es ungefähr wird wurden mit der Gemeinde besprochen
Anforderungen der Bauherren
Stilrichtung, Dachform, Gebäudetyp - Satteldach
Keller, Geschosse - kein Keller 2 Vollgeschosse
Anzahl der Personen, Alter - 2 Erwachsene 38, 1 Kind 1, evtl. 2. Kind
Raumbedarf im EG, OG - EG, Haustechnik, Garderobe, Duschbad, Küche, Essen, Wohnen
OG Schlafzimmer, Ankleide, 2 Kinderzimmer (eines wird evlt. als Allzweckraum genutzt) Bad mit Dampfbad und Hauswirtschaftsraum
Büro: Familiennutzung oder Homeoffice? Nein
Schlafgäste pro Jahr 2-3
offene oder geschlossene Architektur offen Wohnen, Essen, Kochen
konservativ oder moderne Bauweise würde sagen ehr konservativ
offene Küche, Kochinsel offene Küche
Anzahl Essplätze 8-10 erweiterbar auf 12
Kamin - nein
Musik/Stereowand - nein
Balkon, Dachterrasse OG Übergang zum Garten (Hanglage)
Garage, Carport - Doppelgarage mit Abstellraum Garage neu, Abstellraum Bestand
Nutzgarten, Treibhaus - nein später mal Outdoorküche
weitere Wünsche/Besonderheiten/Tagesablauf
EG barrierefrei, Bad rollstuhltauglich, gerade Treppe
Hausentwurf
Von wem stammt die Planung:
-Planer eines Bauunternehmens ja
-Architekt
-Do-it-Yourself von Euch
Was gefällt besonders?
Was gefällt nicht? Treppe Spitzboden - geht gar nicht
Preisschätzung lt Architekt/Planer: Angebot 380.000 Euro + Abriss
Persönliches Preislimit fürs Haus, inkl Ausstattung:
favorisierte Heiztechnik: Luftwärmepumpe oder ähnliches. Wird Weihnachten mit dem Schwager festgelegt
Wenn Ihr verzichten müsst, auf welche Details/Ausbauten
-könnt Ihr verzichten:
-könnt Ihr nicht verzichten:
Warum ist der Entwurf so geworden, wie er jetzt ist? ZB
Standardentwurf vom Planer?
Entsprechende/Welche Wünsche wurden vom Architekten umgesetzt?
Ein Gemisch aus vielen Beispielen aus div. Magazinen...
Was macht ihn in Euren Augen besonders gut oder schlecht?
Der Entwurf wurde ein paar mal schon geändert. Architekt hat den Raumbedarf mit uns erstellt, Grundrisse wurde eingerichtet und die Hanglage muß berücksichtigt werden. Wünsche wurden berücksichtigt hinsichtlich Räume und Größe.
Einrichtung Küche und Bad steht noch nicht fest - wurde so vom Architekten eingezeichnet
Stören tut die Treppe zum Spitzboden. Wollen eine gut begehbare Treppe.
Nachbarn: Flurnummer 107 Bank und Arzt, Flurnummer 105 Pfarramt
Hoffentlich habe ich nichts vergessen. Wenn mein Mann von der Dienstreise zurück ist wollen wir uns mit dem Architekten treffen. Wäre nett, wenn ihr uns ein paar Hinweise oder Vorschläge geben könntet.
haydee schrieb:
Das neue Wohnhaus soll auf der Linie der alten Stützmauer gebaut werden, so dass kein weiterer Abtrag notwendig wird.
Hoffe ihr versteht was ich meine.beim zweiten Lesen ja, die Höhe ist gemeint.
haydee schrieb:
Was gefällt nicht? Treppe Spitzboden - geht gar nicht[...] Stören tut die Treppe zum Spitzboden. Wollen eine gut begehbare Treppe.Das wäre auch mein Kritikpunkt: unnötiger Form-Mischmasch ohne Notwendigkeit.
https://www.instagram.com/11antgmxde/
https://www.linkedin.com/company/bauen-jetzt/
Haben die Treppe um 180° gedreht, so geht eine vernünftige Treppe ohne Formmischmasch in den Spitzboden.
Muß zwar jeder durch das Wohnzimmer, um in die oberen Räume zu kommen, finde das nicht schlimm. Solange das Kind/Kinder kleiner sind sieht man wenigsten wie sie kommen und gehen und Teenager können dann später oben über den Hang raus.
Fällt dir sonst noch was auf. Irgendwann sieht man den Wald vor lauter Bäumen nicht mehr. Keine Ahnung wie oft der Grundriss schon geändert wurde.
Muß zwar jeder durch das Wohnzimmer, um in die oberen Räume zu kommen, finde das nicht schlimm. Solange das Kind/Kinder kleiner sind sieht man wenigsten wie sie kommen und gehen und Teenager können dann später oben über den Hang raus.
Fällt dir sonst noch was auf. Irgendwann sieht man den Wald vor lauter Bäumen nicht mehr. Keine Ahnung wie oft der Grundriss schon geändert wurde.
J
j.bautsch21.02.17 09:41zu bedenken ist aber wenn die treppe in den wohnraum offen ist das sich geräusche stärker ins OG übertragen was bei kleinen kindern auch negative auswirkungen haben kann.
Ähnliche Themen