ᐅ Grundriss Einfamilienhaus mit 240m² mit Einliegerwohnung 75m² und Garage
Erstellt am: 13.11.24 19:36
K
KoehlerHallo zusammen,
wir möchte uns ein Haus bauen. Das Grundstück konnte ich von meiner Mutter bekommen, dafür erhält Sie in dem Haus eine eigene Wohnung(Einliegerwohnung), es sollen für den Fall aller Fälle, aber zwei separate Eingangstüren fürs Haus geben. Mein alter Beitrag war hier wurde aber durch persönliche, politische und das Bauamt nun stark verzögert, dadurch hat es sich teils positiv und teils negativ verändert.
Bebauungsplan/Einschränkungen (Wünsche vom Bauamt da kein Bebauungsplan)
Größe des Grundstücks: ca. 1300 (mindestens 1/4 für die Einliegerwohnung )
Hang: nein
Grundflächenzahl: kein Bebauungsplan
Geschossflächenzahl: kein Bebauungsplan
Baufenster, Baulinie und -grenze: kein Bebauungsplan, aber Bauamt wünscht sich mindestens 3 Meter von der Straße
Randbebauung: maximal 9,0 m für Garagen bis 3.0m höhe
Anzahl Stellplatz: 2
Geschossigkeit: Zweigeschossig ohne ausgebauten Dachgeschoss
Dachform: Bauvoranfrage war mit Satteldach und nun ohne Dachgauben, laut Bauamt maximal 35° Dachneigung
Stilrichtung: keine Vorgabe
Ausrichtung: keine Vorgabe
Maximale Höhen/Begrenzungen: 10,20 m (im Gespräch mit dem Bauamt bitte nicht Höher als 10,5 m)
weitere Vorgaben: Wohngebäude soll nicht großer werden
Anforderungen der Bauherren
Stilrichtung, Dachform, Gebäudetyp: Satteldach
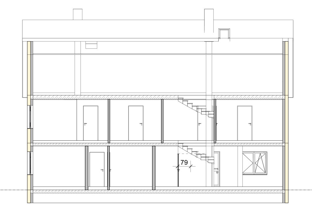
Keller, Geschosse: 2 Vollgeschosse
Anzahl der Personen, Alter: bisher 1+1 Personen, 36 (ich) und Mutter 60 (Einliegerwohnung selbst)
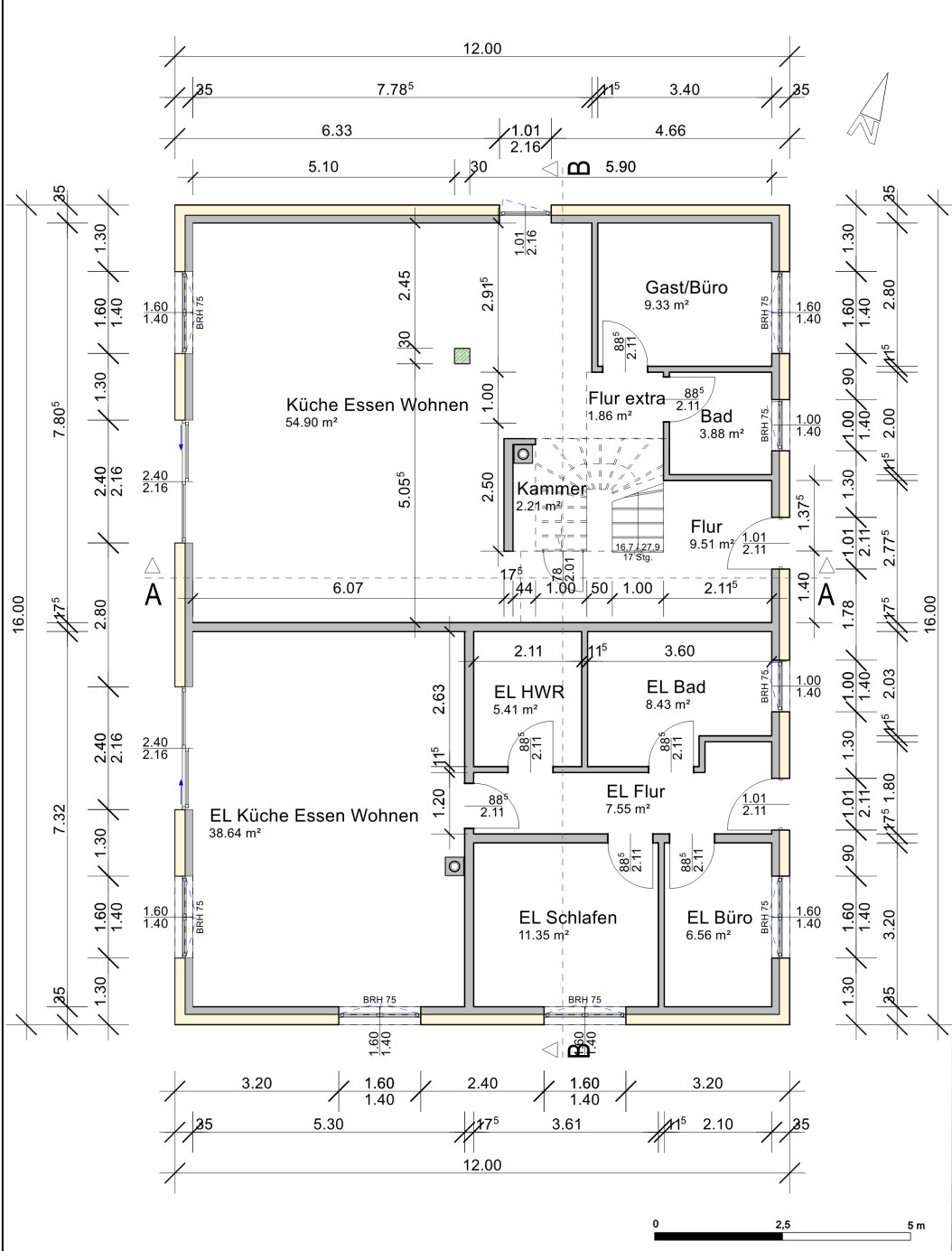
Raumbedarf im EG, OG: selbst: 240m² + Einliegerwohnung: 75m²
Büro: Familiennutzung oder Homeoffice? jeweils Homeoffice
Schlafgäste pro Jahr: manchmal 2 +2 Kinder
offene oder geschlossene Architektur offene Architektur
konservativ oder moderne Bauweise: eher moderne Bauweise
offene Küche, Kochinsel: in beiden eine offene Küche und Kochinsel
Anzahl Essplätze: 6 eigene + 4 in der Einliegerwohnung
Kamin: ja in beiden Wohnungen
Musik/Stereowand: nein
Balkon, Dachterrasse: nicht nötig
Garage, Carport: Garage, Einliegerwohnung keine Garage oder Carport
Nutzgarten, Treibhaus: nein
weitere Wünsche/Besonderheiten/Tagesablauf, gern auch Begründungen, warum dieses oder das nicht sein soll:
Hausentwurf
Von wem stammt die Planung: Do-it-Yourself (mir), wurde nun vom Architekten konkretisiert
Was gefällt besonders? Warum? Großteil der Wände überlappen sich
Was gefällt nicht? Warum? Nur noch der Schornstein in der Einliegerwohnung, bzw. im Obergeschoss
Preisschätzung lt Architekt/Planer: noch nicht vorhanden
Persönliches Preislimit fürs Haus, inkl Ausstattung: (gesamt) 700.000 + sehr viel in Eigenleistung und mit Familie
favorisierte Heiztechnik: Kamin und Luftwärmepumpe
Wenn Ihr verzichten müsst, auf welche Details/Ausbauten
-könnt Ihr verzichten: 2. Etage und die Garage werden später gebaut
-könnt Ihr nicht verzichten: Kamin in beiden Wohnungen
Warum ist der Entwurf so geworden, wie er jetzt ist? ZB
Standardentwurf vom Planer? Plan von Virtus, Team Massivhaus und eigene Ideen
Entsprechende/Welche Wünsche wurden vom Architekten umgesetzt?
meine Wohnung:
Einliegerwohnung:
Wünsche:
Was macht ihn in Euren Augen besonders gut oder schlecht?
Was ist die wichtigste/grundlegende Frage zum Grundriss in 130 Zeichen zusammengefasst?










wir möchte uns ein Haus bauen. Das Grundstück konnte ich von meiner Mutter bekommen, dafür erhält Sie in dem Haus eine eigene Wohnung(Einliegerwohnung), es sollen für den Fall aller Fälle, aber zwei separate Eingangstüren fürs Haus geben. Mein alter Beitrag war hier wurde aber durch persönliche, politische und das Bauamt nun stark verzögert, dadurch hat es sich teils positiv und teils negativ verändert.
Bebauungsplan/Einschränkungen (Wünsche vom Bauamt da kein Bebauungsplan)
Größe des Grundstücks: ca. 1300 (mindestens 1/4 für die Einliegerwohnung )
Hang: nein
Grundflächenzahl: kein Bebauungsplan
Geschossflächenzahl: kein Bebauungsplan
Baufenster, Baulinie und -grenze: kein Bebauungsplan, aber Bauamt wünscht sich mindestens 3 Meter von der Straße
Randbebauung: maximal 9,0 m für Garagen bis 3.0m höhe
Anzahl Stellplatz: 2
Geschossigkeit: Zweigeschossig ohne ausgebauten Dachgeschoss
Dachform: Bauvoranfrage war mit Satteldach und nun ohne Dachgauben, laut Bauamt maximal 35° Dachneigung
Stilrichtung: keine Vorgabe
Ausrichtung: keine Vorgabe
Maximale Höhen/Begrenzungen: 10,20 m (im Gespräch mit dem Bauamt bitte nicht Höher als 10,5 m)
weitere Vorgaben: Wohngebäude soll nicht großer werden
Anforderungen der Bauherren
Stilrichtung, Dachform, Gebäudetyp: Satteldach
Keller, Geschosse: 2 Vollgeschosse
Anzahl der Personen, Alter: bisher 1+1 Personen, 36 (ich) und Mutter 60 (Einliegerwohnung selbst)
Raumbedarf im EG, OG: selbst: 240m² + Einliegerwohnung: 75m²
Büro: Familiennutzung oder Homeoffice? jeweils Homeoffice
Schlafgäste pro Jahr: manchmal 2 +2 Kinder
offene oder geschlossene Architektur offene Architektur
konservativ oder moderne Bauweise: eher moderne Bauweise
offene Küche, Kochinsel: in beiden eine offene Küche und Kochinsel
Anzahl Essplätze: 6 eigene + 4 in der Einliegerwohnung
Kamin: ja in beiden Wohnungen
Musik/Stereowand: nein
Balkon, Dachterrasse: nicht nötig
Garage, Carport: Garage, Einliegerwohnung keine Garage oder Carport
Nutzgarten, Treibhaus: nein
weitere Wünsche/Besonderheiten/Tagesablauf, gern auch Begründungen, warum dieses oder das nicht sein soll:
- Keine Dachfenster
- später Solar
- später die Option für eine Ferienwohnung
Hausentwurf
Von wem stammt die Planung: Do-it-Yourself (mir), wurde nun vom Architekten konkretisiert
Was gefällt besonders? Warum? Großteil der Wände überlappen sich
Was gefällt nicht? Warum? Nur noch der Schornstein in der Einliegerwohnung, bzw. im Obergeschoss
Preisschätzung lt Architekt/Planer: noch nicht vorhanden
Persönliches Preislimit fürs Haus, inkl Ausstattung: (gesamt) 700.000 + sehr viel in Eigenleistung und mit Familie
favorisierte Heiztechnik: Kamin und Luftwärmepumpe
Wenn Ihr verzichten müsst, auf welche Details/Ausbauten
-könnt Ihr verzichten: 2. Etage und die Garage werden später gebaut
-könnt Ihr nicht verzichten: Kamin in beiden Wohnungen
Warum ist der Entwurf so geworden, wie er jetzt ist? ZB
Standardentwurf vom Planer? Plan von Virtus, Team Massivhaus und eigene Ideen
Entsprechende/Welche Wünsche wurden vom Architekten umgesetzt?
meine Wohnung:
- Schlafzimmer Eltern (nur eine Tür) + Ankleide + eigenes Bad (Dusche und große Badewanne)
- 3x Kinderzimmer (min 16m²) mit extra Bad (Dusche + Badewanne)
- 2x Büros
- Wohnzimmer (min 20m²) mit Kamin
- Küche (min 15m²) + Kücheninsel
- Esszimmer für 5 Personen
- Bad unten + Dusche
- 1 Sauna innen auf dem Dachboden (oder außen)
Einliegerwohnung:
- Standard mit Büro
Wünsche:
- Zwischen Bad und Aufenthaltsräumen muss ein extra Raum/Flur liegen
- Alle Räume mit Fenster (zumindest die Bäder)
- Wäschezimmmer (oben, bzw. Dachboden)
- Zugang zum Garten (Westen und Norden)
Was macht ihn in Euren Augen besonders gut oder schlecht?
- Gut: Fast eine symmetrische Anordnung der Fenster und Türen.
- Abtrennung in bis zu 4 Partien später im Notfall möglich
- Schlafzimmer und Wäschezimmer oben, damit die Wäsche nicht immer durch die ganze Wohnung getragen werden muss
- keine Dachfenster
- alle Bäder haben ein Fenster.
- Büro unten ist für ein Schlafzimmer nur möglich wenn die Schränke unter der Treppe sind.
- Da die Zufahrt im Süden liegt wurde das Haus nun gedreht.
Was ist die wichtigste/grundlegende Frage zum Grundriss in 130 Zeichen zusammengefasst?
- Wurde etwas im Plan übersehen?
- Wo soll der Schornstein in der Einliegerwohnung hin?
- Ankleide zu groß?
- Sollte die Garage gedreht werden?
G
Gerddieter13.11.24 20:40Eieiei - das hat dir ein Architekt (?) "konkretisiert" - da weiß man gar nicht wo man anfangen soll.
Brauchst gar nicht über den Grundriss diskutieren. Da stimmt schon so viel in den Basics gar nicht, angefangen beim Budget für das 315qm Häuschen.
Brauchst gar nicht über den Grundriss diskutieren. Da stimmt schon so viel in den Basics gar nicht, angefangen beim Budget für das 315qm Häuschen.
N
nordanney13.11.24 20:55Gerddieter schrieb:
Budget für das 315qm Häuschen.Mit sehr viel Eigenleistung - also fast alles - machbar.Gerddieter schrieb:
Eieiei - das hat dir ein Architekt (?) "konkretisiert" - da weiß man gar nicht wo man anfangen soll.
Brauchst gar nicht über den Grundriss diskutieren. Da stimmt schon so viel in den Basics gar nicht, angefangen beim Budget für das 315qm Häuschen.Hallo Gerddieter, vielen Dank für dein Kommentar, aber mich würde interessieren was du am Grundriss ändern würdest ohne das Budget zu betrachten. Das Budget sollte für den Rohbau und die untere Etage gut reichen. Mit Eigenleistungen wie nordanney schon schreibt ist vieles möglich. Bei den Generalunternehmen wären wir fürs komplette Haus bei 580K gelandet, also ist ein Teil des Hauses für 700k wohl gut möglich.N
nordanney13.11.24 22:37Koehler schrieb:
Bei den Generalunternehmen wären wir fürs komplette Haus bei 580K gelandet, also ist ein Teil des Hauses für 700k wohl gut möglich.Du meinst wohl, dass das Haus, so wie es jetzt geplant ist, hätte beim GU locker ne Mio. € gekostet.G
Gerddieter13.11.24 22:57Koehler schrieb:
Hallo Gerddieter, vielen Dank für dein Kommentar, aber mich würde interessieren was du am Grundriss ändern würdest ohne das Budget zu betrachten. Das Budget sollte für den Rohbau und die untere Etage gut reichen. Mit Eigenleistungen wie nordanney schon schreibt ist vieles möglich. Bei den Generalunternehmen wären wir fürs komplette Haus bei 580K gelandet, also ist ein Teil des Hauses für 700k wohl gut möglich.Hi - ich kann dir zu dem "Grundriss" leider nix sagen, da ich keinen Grundriss sehe, auf den man mit Veränderungen oder Nachbesserung irgendwie aufbauen könnte.
Was ich sehe ist eine Aneinanderreihung von charakterlosen Räumen, die sich alle mit ihrer Türe irgendwie in einem möglichst kleinen und dunklen Flur treffen.
Ein Grundriss besteht aus Sichtachsen, Laufwegen, Ausrichtung, Lichteinfall etc, etc etc. Fenster werden nicht einfach in einen Raum geklatscht, sie bilden das Hauptelement der Fassade - idealerweise mit "Spannung ".
Das ist alles alles nicht zu erkennen - nehme es nicht übel, sei froh das ich es so sage bevor du irgendwas unterschreibst und glaube mir es werden von anderen noch mehr so Kommentare kommen.
Ähnliche Themen