Grundrissplanung: wer hat das Elternschlafzimmer im Erdgeschoss?

4,70 Stern(e) 7 Votes
Zuletzt aktualisiert 20.11.2025
Sie befinden sich auf der Seite 4 der Diskussion zum Thema: Grundrissplanung: wer hat das Elternschlafzimmer im Erdgeschoss?
>> Zum 1. Beitrag <<

Y

ypg

hängt euch bitte nicht an meinem erwähnten Sunshine 210 auf - uns hat dabei nur der EG-Grundriss im ersten Googleversuch ganz gut gefallen. Mehr nicht.
Vorweg: wir sind bereits in Kontakt mit einem Architekten welcher uns hierfür eine Vorplanung erstellen wird,
Vielleicht solltet Ihr Euch nicht zu sehr an Typenhäuser halten, sondern einfach dem Architekten Eure Wünsche und Bedürfnisse nennen. Der hat den Lageplan, der hat es gelernt und studiert. So seid ihr offen für das, was sein kann. Ob jmd hier gut oder schlecht oben oder unten schläft, sollte ihn oder Dich nicht interessieren.
 
P

Pfefferfisch


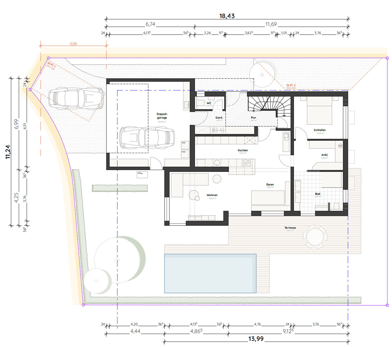
Grundriss eines Hauses mit Doppelgarage, Wohnen, Essen, Kochen, Schlafen, Bad, Terrasse und Pool.



Moderne Hausansicht: Süd- und Westseite mit großen Fenstern und Holzlamellen



Moderne Wohnhaus-Ansichten: Nord mit Flachdach-Überbau, Ost mit Satteldach.


Hallo zusammen,

falls dieses Thema noch jemanden interessiert: nach vielen Planungsrunden sind wir nun gemeinsam mit unserem Architekten bei diesem Planungsentwurf gelandet, welcher uns ganz gut gefällt.
Nochmal zur Erinnerung falls jemand nach der Lage fragt: unser Bauplatz ist ziemlich genau eingenordet mit sehr leichtem Gefälle in Südrichtung.

Der Keller wird ein reines "Technikgeschoss" mit Wasch-, Vorrats- und Technikräumen.
Das DG mit Kniestock 1,40m wird sich in ein Büro, 2 potentielle Kinderzimmer und ein weiteres Bad aufteilen.

Gerade überlegen wir, ob wir im DG alle Fenster bodentief auslegen oder nur die der Süd-Gaube und an den Giebelseiten auf normale Fenster gehen.
 
11ant

11ant

falls dieses Thema noch jemanden interessiert: nach vielen Planungsrunden sind wir nun gemeinsam mit unserem Architekten bei diesem Planungsentwurf gelandet, welcher uns ganz gut gefällt :) ]...]
Der Keller wird ein reines "Technikgeschoss" mit Wasch-, Vorrats- und Technikräumen.
Das DG mit Kniestock 1,40m wird sich in ein Büro, 2 potentielle Kinderzimmer und ein weiteres Bad aufteilen.
Gerade überlegen wir, ob wir im DG alle Fenster bodentief auslegen oder nur die der Süd-Gaube und an den Giebelseiten auf normale Fenster gehen...
Mich interessieren sogar die anderen beiden Stockwerke.
 
andimann

andimann

Moin,
ihr habt ja lange mit dem Architekten über dem Entwurf gebrütet, also wird er euch wohl genau so gefallen, auch wenn ich vieles nicht so machen würde. Just my50 Cents:
  • Die Garage ist außerhalb des Baufensters? Bekommt ihr das genehmigt?​
  • Die versiegelte Fläche scheint mir extrem groß, habt ihr eine Grundflächenzahl von 0,7-0,8? Die werdet ihr brauchen....​
  • Wenn man schon das Elternschlafzimmer nach unten legt (ist für die Nutzung im Alter sehr gut) dann legt auch die Türenbreiten auf 0,9-1m aus, damit man da mit Rollator / Rollstuhl durchkommt.​
  • Bodentiefe Fenster mit Glasabsicherung außen sehen zwar auf den ersten Blick nett aus, sind aber imho die Kombination aller nur möglichen Nachteile. Eine zusätzliche Fensterfläche zum reinigen, Reinigen nur mit Lebensgefahr möglich, bringt beim Lüften auch nicht mehr Frischluft als ein normales Fenster und die Stellflächen im Raum werden eingeschränkt.​
  • Viele Grüße, Andreas​
 
A

Arauki11

Leider sieht mam keine Maße. Sind das tatsächlich 15qm für WZ und ebenso Esszimmer, dagegen 22qm für Küche oder sehe ich das falsch? Falls das so ist sehe ich den (Vor-)Platz auf der anderen Seite beim Eingang zum Schlafzimmer als unnötig groß.
Das Bad ist dagegen sehr groß und dennoch klemmt es zwischen Waschbecken und Tür bzw. muss deswegen offenbar eine unnötig teure und weniger komfortable Schiebetür ins Bad, was mir nicht gefallen würde.
Da würde ich mir den Pool liebe wegdenken und dem Allraum etwas mehr Raum schenken so wie es der Bereich um die Küche schon hat, ohne dies unbedingt zu brauchen.
Grundsätzlich kann ich mir das sehr schick vorstellen, wenn spärlich und schlicht möbliert aber zum großzügigen Küchen-/Übergangsvereich gesellen sich dann eher kleines Wohn- und Esszimmer. Man hat das Gefühl, dass da irgendwo die Luft ausgegangen ist, was sich auch noch in Schiebetür, nach außen öffnende Schlafzimmer-Tür, engem Badzugang und die von @andimann zurecht benannten Türgrößen widerspiegelt.
Wie kommt man eigentlich auf die 18qm Maße der Terrasse?
Wenn Du konstruktiv-kritisches Feedback wünschst solltest Du Maße nachliefern, auch die der -echten- Möbel.
 
Zuletzt aktualisiert 20.11.2025
Im Forum Grundrissplanung / Grundstücksplanung gibt es 2535 Themen mit insgesamt 87977 Beiträgen


Ähnliche Themen zu Grundrissplanung: wer hat das Elternschlafzimmer im Erdgeschoss?
Nr.ErgebnisBeiträge
1Grundriss Stadtvilla / Anordnung Fenster, Feedback erwünscht - Seite 216
2Neubau einer ca. 8x11 Doppelhaushälfte, Einschätzung Grundriss und Fenster - Seite 235
3OG Stadtville optimieren. Fenster Bodentief - Seite 13104
4Fenster Brüstungshöhe 130 im Schlafzimmer / Arbeitszimmer? - Seite 493
5Geschlossene oder offene Küche ? 11
6Hilfe bei der Anordnung der Fenster benötigt! 32
7Riesiges Problem mit dem Kondenswasser am Fenster 34
8 Küchenplanung mit tiefen Fenster - Seite 343
9Sichere Fenster/Haustüre für Randlage - Seite 534
10Grundriss Neubau Einfamilienhaus: Fenster/Türen/Innenwände Größe/Anordnung ok? 20
11Bestandshaus umbauen - Mehr Platz für Küche und Bad - Ideen? - Seite 220
12Bungalow 135qm: Grundriss + Fenster - Seite 2104
13Wohn-/Essbereich und Küche - Sinnvolle Aufteilung - Seite 336
14Wunschliste für den Architekten 32
15Umbau geschlossene in Offene Küche 15
16Wohnen/Essen/Küche: Wie wohnt ihr oder werdet ihr wohnen? - Seite 552
17Vorplanung mit dem Architekten - eigener Grundriss sinnvoll? 18
18"Grottenschlecht ist diese Planung"... 27
19Kostenschätzung des Architekten - Seite 215
20Kostenplanung Einfamilienhaus inkl. Grundstück, Nebenkosten, Architekten - Seite 332

Oben