Grundrissplanung Stadthaus 150qm mit Satteldach 6 Zimmer

4,80 Stern(e) 11 Votes
Zuletzt aktualisiert 22.12.2025
Sie befinden sich auf der Seite 2 der Diskussion zum Thema: Grundrissplanung Stadthaus 150qm mit Satteldach 6 Zimmer
>> Zum 1. Beitrag <<

H

haydee

Netter Grundriss der eure Anforderungen doch gar nicht entspricht

EG nicht barrierefrei.
Im Arbeitszimmer geht kein Doppelbett geschweige denn das man noch Arbeiten kann.
Die Treppen ins OG ist eine Hühnerleiter wir haben 4 m und es ist steil es fehlt 1 Stufe und wie haben kein höhere Deckenhöhe im EG.
Unter der Treppe geht nicht die Garderobe von 4-6 Personen
Zeichnet mal alle gewünschte Möblierung im Maßstab ein.
Bett unter dem Fenster ist bequem zum Putzen und Lüften

Terrasse und Eingang geht barrierefrei da muss halt der Planer mal mit dem Hausbauer sprechen.
 
H

hanghaus2023

Grundrisse ohne Grundlagen?? 34er sagt zeig mal die Umgebung. Mind. 100 m Radius. Lageplan mit Hausplatzierung sollte als erstes hergestellt sein. Gibt es einen Hang? Wenn Ja Höhenangaben erforderlich. Wo ist Norden?
 
Y

ypg

34er sagt zeig mal die Umgebung. Mind. 100 m Radius.
Positive Bauvoranfrage für zweigeschossige Stadtvilla bis 200qm liegt vor.
Bei einer positiven Bauvoranfrage kann uns die Umgebung für den 34er egal sein.
Für die Lage auf dem Grundstück natürlich nicht.
Dem TE hat es eh die Sprache verschlagen - er hat vieles prächtig gesehen, was hier von einigen kritisiert wird.
ich empfehle immer, sich mal andere Grundrissdiskussionen durchzulesen. Nicht selten ist einem Bauwilligen gar nicht bewusst, dass man auch einen Garderobenschrank nahe am Eingang braucht, barrierefrei nicht bedeutet, dass es ein Bad im EG gibt, egal wie klein und dass Platz für ein Doppelbett nicht 160 x 200 in einem separaten Raum bedeutet, sondern man auch Platz zum Umrunden braucht.
Wir können hier ja weitermachen, wenn denn mal der Lageplan vom Grundstück vorliegt.
 
L

LeFy2023

Guten Abend Zusammen,

anbei sende ich Euch eine erste Skizze eines Lageplans mit grober Platzierung von Haus, Carport und Schuppen. Das Grundstück hat keinen Hang. Norden ist eingezeichnet @hanghaus2023 @ypg


Lageplan: Haus (10,5x9 m) mit Carport (4x6 m) und Schuppen; Nordausrichtung.


Außerdem das Dokument zum Hausquerschnitt nebst Geschosshöhe sowie eine Skizze vom Dachgeschoss @hanse987


Schnitt durch ein mehrstöckiges Gebäude mit Dachkonstruktion, Innenräumen, Treppe und Maße.


Dachplan Zeichnung mit Ziegeln und Maßlinien


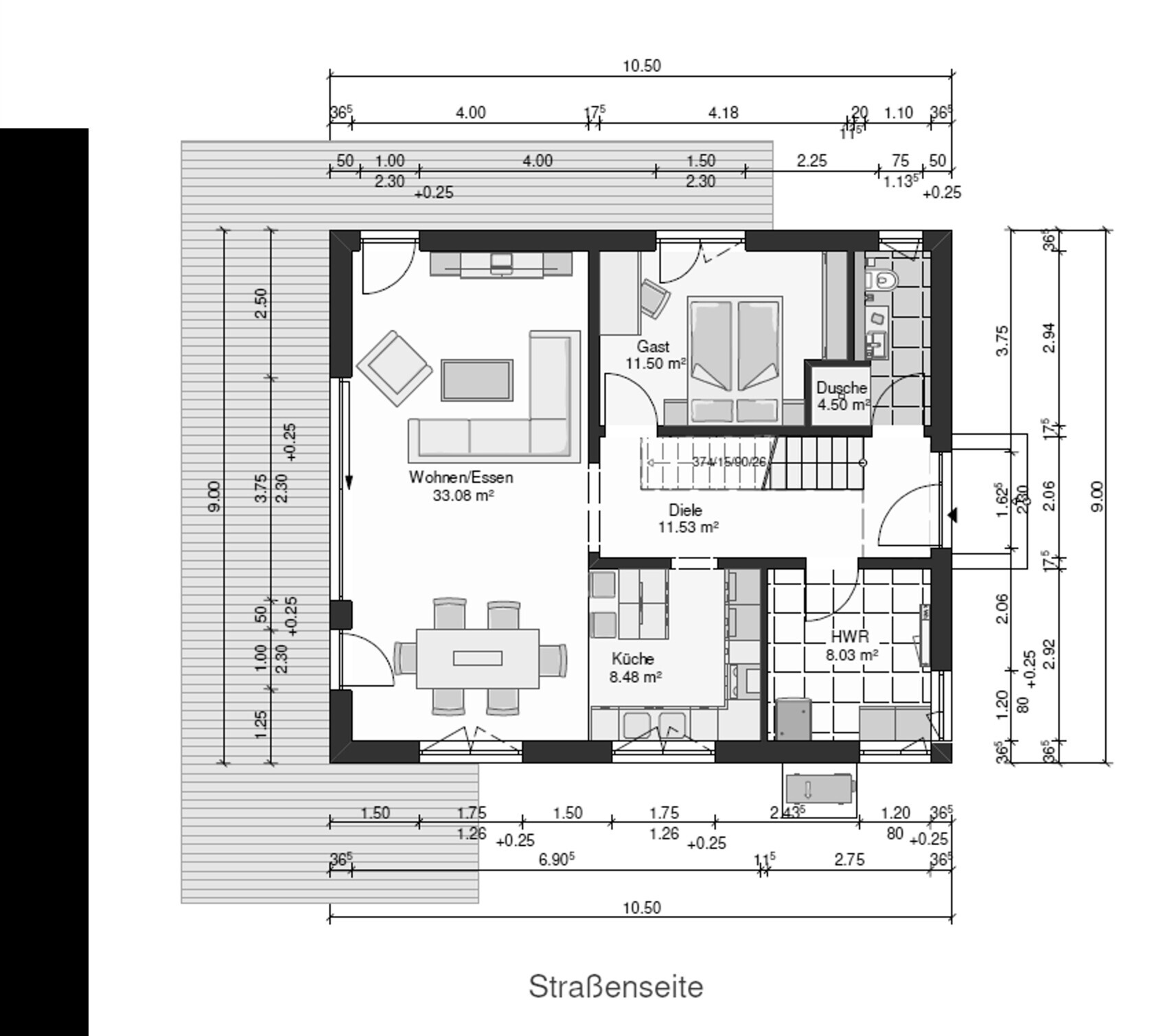
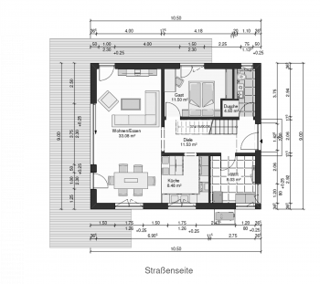
Weiterhin habe ich heute vom Planer, unabhängig von Euren Anmerkungen, nochmal ein Update des Grundrisses bekommen - mit minimalen Änderungen. Anscheinend sind dort auch schon ein bis zwei Kleinigkeiten aufgefallen, die angemerkt worden sind (z. B. Schranktiefe in Kinderzimmer 1, breite Bad OG bzgl. Abstand Wanne und Waschtisch, Hauswirtschaftsraum statt Büro im OG).

Außerdem habe ich die Treppenmaße mal einzeichnen lassen: 374/15/90/26 ohne Beläge.


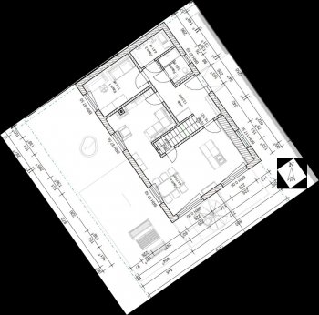
Grundriss eines Hauses mit Wohn/Essen, Küche, Diele, Gastzimmer, Dusche, HWR, Terrasse.


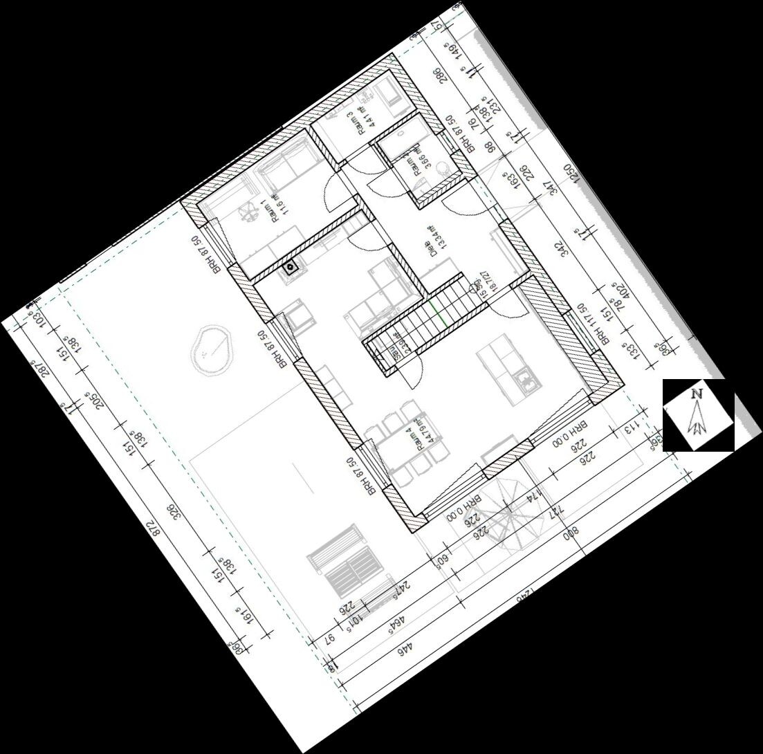
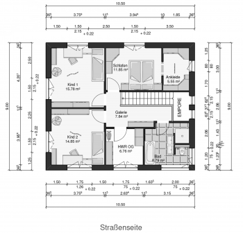
Grundriss Obergeschoss: Schlafzimmer, Ankleide, Galerie, Kind 1, Kind 2, HWR OG, Bad, Empore.


Folgende Themen sind dennoch offen, die hier erwähnt worden sind bzw. durch das Grundriss-Update nun nicht mehr so passen.
  • Schmales Bad EG nicht geeignet als barrierefreies Bad. Hier fand ich den Vorschlag von @ypg gut:
Beim WC frage ich mich, warum man keinen rechteckigen Entwurf plant (das Gästezimmer würde es danken) und die Dusche nach hinten, das Fenster zum Norden plant.​

  • Gästebettsitutaion im EG (könnte durch Änderung des Bads EG besser werden).
  • Küche ist jetz 2,92m RMB das macht keinen Sinn. 3m ist schon schmerzhaft und muss wieder mindestens dahingehend angepasst werden. Hier müssen wir uns noch etwas überlegen, wie wir mit den 3m umgehen. Vielleicht die Hausbreite nach Osten etwas vergrößern, um Raum zu gewinnen. Oder andere Anordnung im Wohn-/Esszimmer und die Küche mehr in den Essbereich integrieren.
  • Garderobe fehlt direkt neben der Tür. Hier wäre die Idee die Wand vom Hauswirtschaftsraum etwas in den Raum zu setzen um Platz für eine kleine Garderobe zu schaffen.
  • Garderobe im OG (wie aktuell eingezeichnet) brauchen wir nicht und wird wieder angepasst.
  • Schrankplanung im Schlafzimmer OG bzw. in der Ankleide, um dann Bett mit Platz zu stellen. Man könnte überlegen die Kinderzimmer zugunsten vom Schlafzimmer zu verkleinern und auf der anderen Seite zugunsten des Bads OG.
Wenn der Grundriss steht, etwaig Anpassung der Fenster und Fassade.
@ypg Was genau gefällt Dir an den Außenansichten, außer die farblichen Akzente. Worin siehst Du die wirre Anordnung?

Zwei Büros brauchen wir nicht, zumal es das zweite Kinderzimmer noch gibt und es aktuell noch sehr unklar ist, ob ein zweites Kind kommen soll.

Grundsätzliche ist es denkbar das Haus Richtung Norden und / oder Osten zu erweitern, um die von Euch angesprochenen Themen zu lösen oder man bekommt es alternativ mit der Verschub von Wände und gewissen Kompromissen ein.

Schönen Abend erstmal an alle!
 
Zuletzt bearbeitet von einem Moderator:
kbt09

kbt09

Ok .. die Treppe hat eine Stufenhöhe von 19 cm ... das ist relativ viel. Probiert es mal so eine Treppe zum Testen zu finden. Sie ist mit 90 cm Breite gezeichnet .. wie soll das Geländer sein?

Eine Krux an allen Räumen im OG ist, dass die Türen so sitzen, dass jeweils die Wand, an die die Tür schlägt nicht sinnvoll für Schränke genutzt werden kann.

Ideal ist es, wenn eine Tür ca. 70 cm von der Wand weg beginnt. Dann kann die ganze Wand für Schrank genutzt werden und man läuft beim Eintreten auch nicht gegen Schrank.

Grundsätzlich sind das jetzt kosmetsiche Korrekturen gewesen. Im Wohnbereich der öffnende Schiebetürenflügel sollte der sein, der am Esstisch ist und nicht der, wo das Sofa/Sessel schon halb davorstehen.
 
kbt09

kbt09

Mal einer meiner Lieblingsgrundrisse mit gerader Treppe ... quer im Haus und nicht längs. Und das mal so gedreht, wie es auf dein Grundstück passen würde.

Ein reiner Technikraum, der zugegebenermaßen ziemlich knapp ist.

Gast/Büro im EG könnte auch Terrassentür haben. Bad liegt günstig zu Gast/Büro.

Speisekammer-Stauraum unter der Treppe und nicht im Technikraum.

Waschen und zusätzlicher Stauraum im OG vorm Badezimmer, dass keine T-Lösung hat. Könnte man ja versuchen.

Eltern mit echter Ankleide und reinem Schlafbereich als Ruhezone, außerdem noch Stauraum im Flur.

Dieser Grundriss erhebt keinen Anspruch eure Bedürfnisse komplett zu erfüllen, er soll nur Anregungen geben, was vielleicht durch einen anderen Ansatz auch möglich wäre.


Grundriss eines Hauses mit Innenräumen, Türen, Treppen und Maßlinien (Architekturplan)


Architektonischer Grundriss eines Hauses mit Zimmern, Türen und Maßangaben.
 
Zuletzt aktualisiert 22.12.2025
Im Forum Grundrissplanung / Grundstücksplanung gibt es 2554 Themen mit insgesamt 88554 Beiträgen


Ähnliche Themen zu Grundrissplanung Stadthaus 150qm mit Satteldach 6 Zimmer
Nr.ErgebnisBeiträge
1Selbsterstellter Grundriss - Meinungen und Feedback erwünscht - Seite 546
2Grundriss Stadtvilla 155qm - eure Meinung ist gefragt - Seite 247
3Grundriss Einfamilienhaus ohne Keller, 3 Kinderzimmer und Büro 18
4Grundstück nicht Rechteckig - Idee für Grundriss gesucht - - Seite 320
5Meinungen zum Grundriss EG 10
6Grundriss. Meinungen, Ideen und konstruktive Kritiken. - Seite 424
7Bungalow120 Meinung Tipps Grundriss 20
8Grundriss - Anregungen & Kritik erwünscht! - Seite 326
9Grundriss - 135qm, 1,5-Geschosse, Satteldach - Seite 2138
10Bitte Meinungen zum Altbau-Grundriss 19
11Grundriss Einfamilienhaus Satteldach 1 Vollgeschoss 140qm - Seite 245
12Grundriss Einfamilienhaus auf schmalem Grundstück 24
13Haus am Hang Grundriss-Feinschliff - Seite 592
14Unser Grundriss-Entwurf für ein günstiges Haus - Seite 12348
15Grundriss Reiheneckhaus in Planung - Änderungsvorschläge? - Seite 8176
16Grundrissfrage, Treppe, Fenster, Ausrichtung 12
17Grundriss Einfamilienhaus mit Flachdach auf 600m² Grundstück - Seite 419
18Grundriss mit Garage auf Grundstück realisierbar? - Seite 429
19Einfamilienhaus 2-Geschossig mit Doppelcarport in Buxdehude - Seite 230
20Grundriss-Planung und Platzierung - Einfamilienhaus ca. 200qm auf 900qm Grundstück - Seite 255

Oben