Grundrissplanung Stadthaus 150qm mit Satteldach 6 Zimmer

4,80 Stern(e) 11 Votes
Zuletzt aktualisiert 22.11.2025
Sie befinden sich auf der Seite 24 der Diskussion zum Thema: Grundrissplanung Stadthaus 150qm mit Satteldach 6 Zimmer
>> Zum 1. Beitrag <<

L

LeFy2023

Hallo Zusammen,

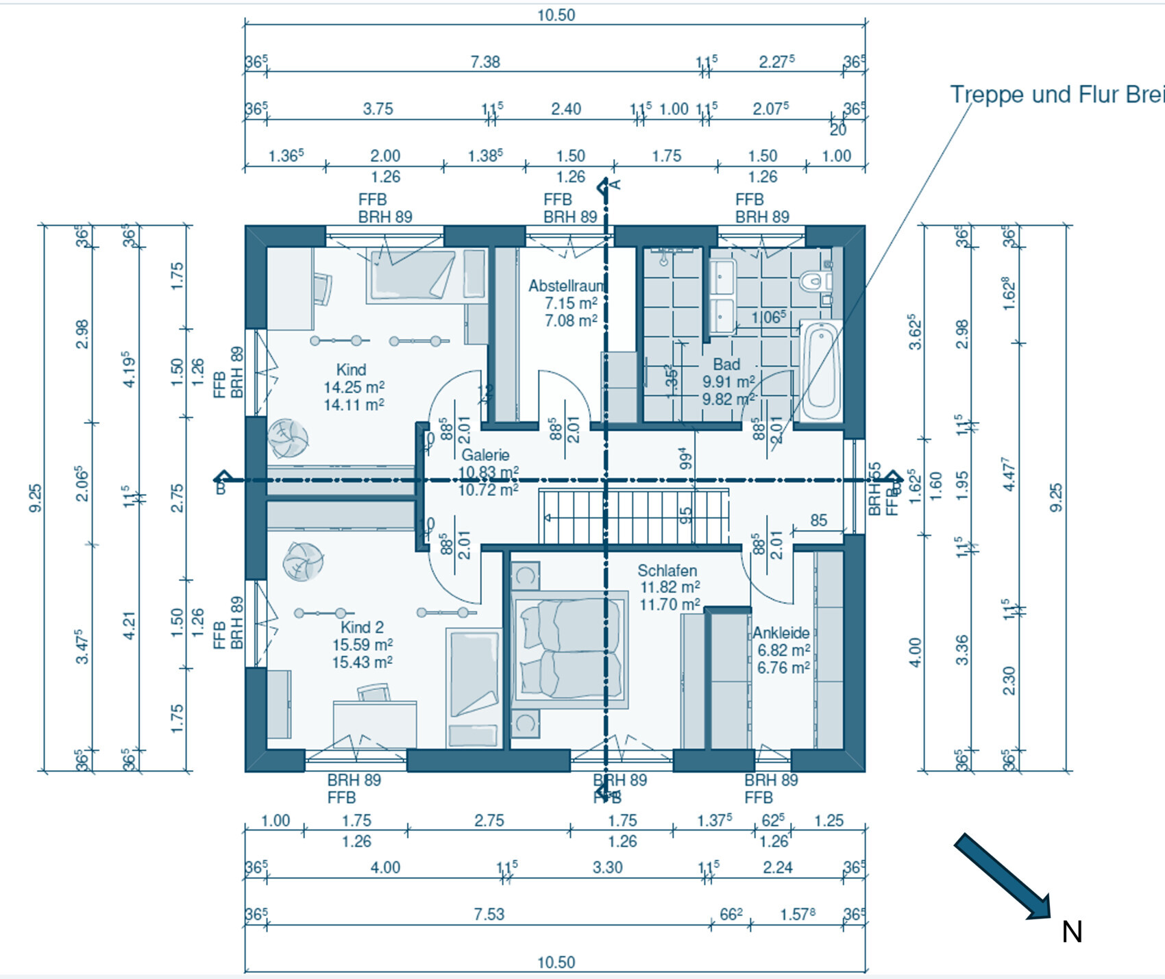
hier der aktuelle Stand der Vorplanung. Wir gehen damit jetzt in das Bauantragsgespräch mit dem Bauunternehmen. Die Details (wie z. B. das Gäste-WC, finale Treppenlänge etc.) klären wir dann anschließend im Rahmen der Ausführungsplanung.

Bei den Fenstern wird es Anfang nächster Woche ebenfalls nochmal Änderungen geben. Ich sende dann den finalen Stand der Vorplanung nochmal.


Blauer Grundriss eines Hauses mit Küche, Wohnen/Essen, Gast, Diele, Bad; Nordpfeil unten rechts.


Grundriss Obergeschoss: Schlafen, 2 Kinder, Abstellraum, Galerie, Bad, Ankleide, Treppe/Flur.


Querschnitt eines zweistöckigen Hauses mit Dachkonstruktion, Treppe und Höhenmaßen.


Schnitt durch mehrstöckiges Wohnhaus mit Innenräumen und 22° Dachneigung.
 
kbt09

kbt09

Ich finde es soweit ganz ok, nur beim Bad oben (Layout gefällt mir), da richte dich darauf ein, die linke Wand zum Hauswirtschaftsraum mind 20 bis 30 cm weiter nach links zu setzen.

Zwischen Dusch- und Außenwand sind 207 cm Rohbau, davon sollen 100-105 cm Durchgang sein. Dann dürfen Waschbecken und Wanne zusammen nur noch gut 100 cm sein und das passt nicht.

Rechne Wanne mit 80 cm und Waschtisch mit 50-55 cm.
 
M

motorradsilke

Ich finde es soweit ganz ok, nur beim Bad oben (Layout gefällt mir), da richte dich darauf ein, die linke Wand zum Hauswirtschaftsraum mind 20 bis 30 cm weiter nach links zu setzen.

Zwischen Dusch- und Außenwand sind 207 cm Rohbau, davon sollen 100-105 cm Durchgang sein. Dann dürfen Waschbecken und Wanne zusammen nur noch gut 100 cm sein und das passt nicht.

Rechne Wanne mit 80 cm und Waschtisch mit 50-55 cm.
Nö, das sind 227 im Rohbau. Guck mal, da sind noch 20 für den Vorbau der Toi.

In der Dusche ist es dann leider sehr dunkel.
 
Y

ypg

Ich würde die kurze Seitenwand in der Ankleide weglassen. Sie braucht man nicht, schränkt nur ein. Übers Gäste-WC kannst Du Dich ja überraschen lassen,
Ansonsten passt doch alles ganz gut.
 
M

motorradsilke

Aber 106 cm zwischen den Mini-Waschbecken und der Wann eingezeichnet auf einer Gesamtstrecke von 207 cm
Ja, das werden sicher keine 106, eher 80 als Durchgang. Aber das würde ja auch gut reichen.
Gefallen würde es mir nicht, Dusche dunkel, hinten gedrängt und vorn links viel Platz. Aber muss es ja auch nicht, ist ja für TE. Funktionieren wird es.
 
Zuletzt aktualisiert 22.11.2025
Im Forum Grundrissplanung / Grundstücksplanung gibt es 2535 Themen mit insgesamt 87984 Beiträgen


Ähnliche Themen zu Grundrissplanung Stadthaus 150qm mit Satteldach 6 Zimmer
Nr.ErgebnisBeiträge
1Nachträglicher Einbau Wanne oder Dusche? 27
2WC-Fenster Gäste-WC neben der Eingangstür - inzwischen nogo? - Seite 744
3Lichtanschluss falsche Stelle Gäste-WC - Seite 529
4Gäste-WC (1,65qm) und Bad (4,88qm) Sanierung 21
5Gäste-WC Anordnung - Tipps? 19
6Planung Gäste-WC im Neubau - Wie groß muss es sein? (DIN?) 107
78,02m Positionierung Waschbecken / Toilette - Seite 1069
8Gäste-WC: Decke abhängen oder Rohr verkleiden? - Seite 216
9Beispiel Kaltwasserhahn für Gäste-WC 12
10Lage Gäste-WC - Eingangsbereich? 28
11Fenster im Gäste-WC/Gästezimmer trotz Garage möglich? - Seite 333
12Rollladen im Gäste-WC ja oder nein? 35
13Planung Gäste-WC, brauche eure Tipps 17
14Entwürfe Gestaltung Fliesen Bad / Gäste-WC - Seite 319
15Ablaufrinne Bodenebene Dusche mit Fußbodenheizung - Seite 544
16Grundrissplanung: Badezimmer Dusche - Seite 347
17Badplanung - Dusche und Badewanne tauschen? - Seite 224
18Brauche hilfe bei Badezimmerplanung 19
19Unser Grundriss, bitte um Kritik 18
20Frage zur Einteilung im Bad 17

Oben