Grundrissplanung für Zweifamilienhaus im Hang

4,00 Stern(e) 23 Votes
Zuletzt aktualisiert 23.11.2025
Sie befinden sich auf der Seite 3 der Diskussion zum Thema: Grundrissplanung für Zweifamilienhaus im Hang
>> Zum 1. Beitrag <<

M

matte

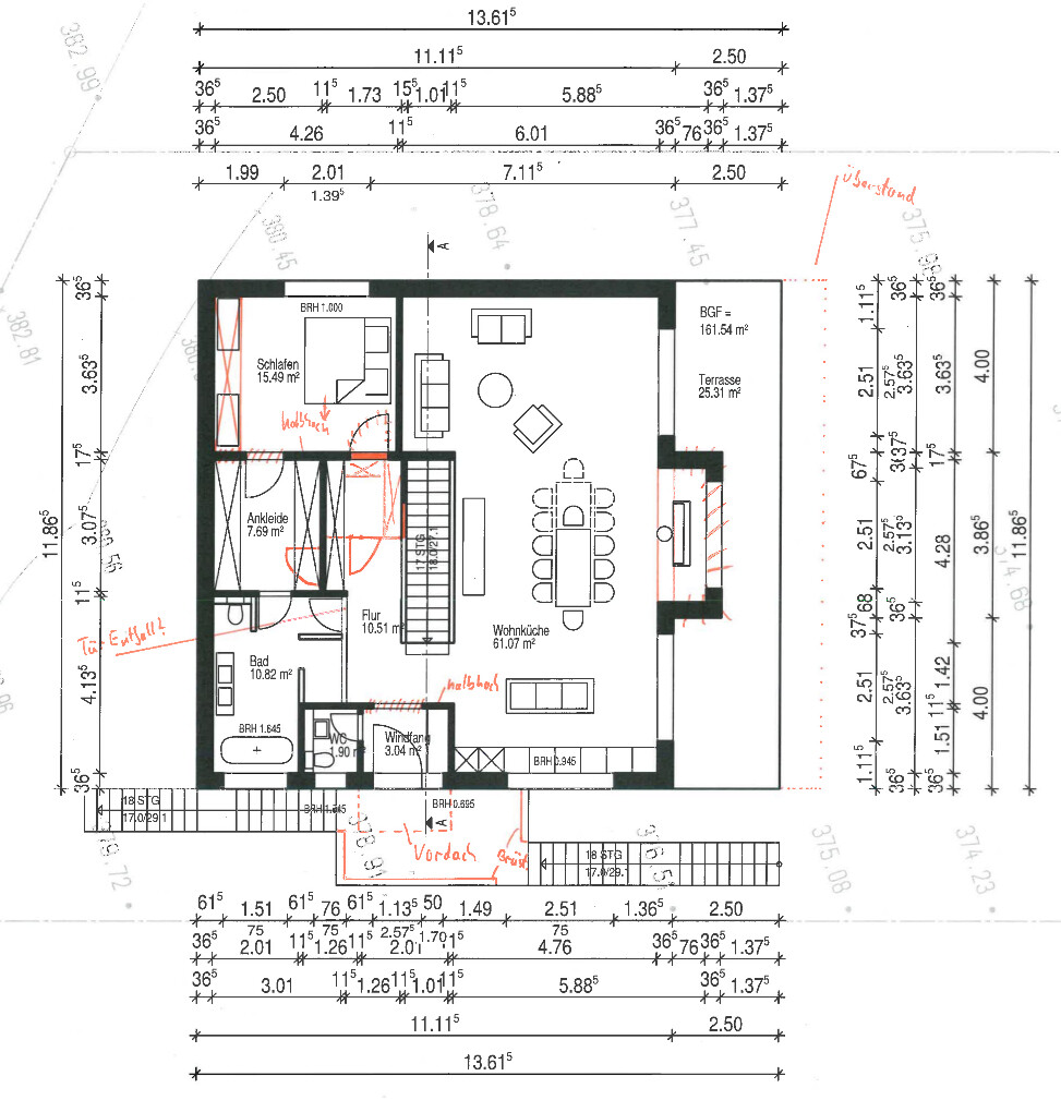
Ich finde den Elternbereich nicht wirklich gelungen.

1. Zwischen Schlafzimmer und Allraum liegt ohne Not nur eine Türe, was Schallschutz-technisch gesehen nicht das Gelbe vom Ei ist.
2. 2 Türen zum Elternbad finde ich auch ungünstig. Wozu? Damit Mann vom Allraum direkt ins Bad kann, um dort auf´s Klo gehen zu können? Ihr habt direkt daneben ein Gäste-WC. Mir wäre das zu Unruhig mit fast immer 2 Türen pro Raum.

Den Zugang zu Schlaf/-Badezimmer würde ich dann aus der Ankleide aus machen und von dem Vorraum in die Ankleide gehen.

€: Alternativ noch mit ner kleinen Abstellkammer.

Grundriss eines Hauses mit Wohnküche, Schlafzimmer, Ankleide, Bad und Terrasse.


Grundriss eines Hauses mit Wohnküche, Schlafzimmer, Ankleide, Bad und Terrasse.
 
sichtbeton82

sichtbeton82

Die zweite Tür war dem Tagesablauf geschuldet. D.h. einer der Elternteile steht früher auf, geht durch die Ankleide ins Bad und kann von da direkt in den Allraum, ohne störend rückkehrend durchs Schlafzimmer zu müssen. Deine Idee mit dem Zugang über die Ankleide in beide Richtungen ist echt gut! Danke dafür! Das wird nachher mal diskutiert.
 
Y

ypg

Auf die Schnelle:
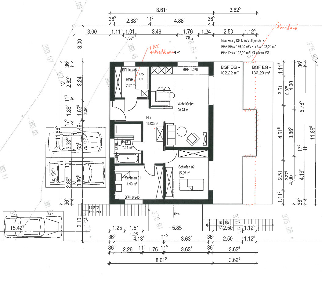
Ich würde im Einliegerwohnung die Mauern weglassen, die Flur vom Allraum trennen: eher einen kleinen Windfang sowie einen gesonderten kleinen Flur, der zu den Schlafzimmer führt.
Dadurch wirkt der Allraum größer ohne großartige Verluste. Ggf. das eine Schlafzimmer kleiner machen, damit ein Garderobenschrank Platz bekommt. Bei einer Einliegerwohnung kann man auch auf eine Wanne verzichten und das Bad kleiner machen.

Fenster-Ansichten sehen mir etwas zu umspannend aus.
 
sichtbeton82

sichtbeton82

Anbei noch mal ein paar Gedankengänge.

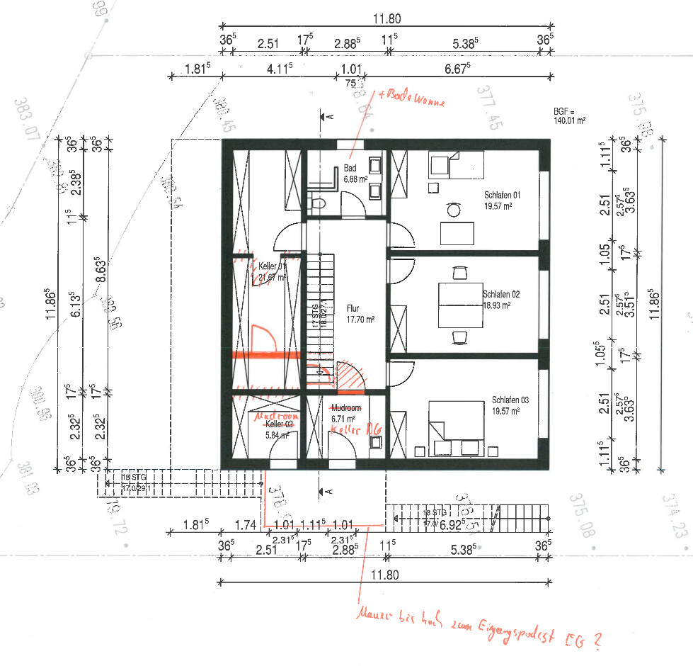
KG: Der Mudroom (Raum in den man die dreckigen bspw. Gartenarbeitsklamotten auszieht) und der Keller 02 (Keller der DG Wohnung) werden getauscht. Der neue Mudroom wird vergrößert, damit direkt die Waschküche auch noch Platz darin findet. Zusätzlich soll auch eine Tür unterhalb der Treppe es ermöglichen direkt in den Flur zu gelangen.

EG: Der Erker entfällt (Juhu! ). Die Ankleide ist nun direkt vom Flur betretbar und man gelangt von da ins Schlafzimmer. Die Idee mit der Abstellkammer soll umgesetzt werden. Die Zwischenwand zwischen Ankleide und Schlafzimmer soll (wenn statisch möglich) im nördlichen Bereich entfallen. Nördlich soll dann eine Grundriss. Schrankwand gesetzt werden (7m über Ankleide bis Schlafzimmer). Dadurch soll alles etwas luftiger werden.
Ganz sicher sind wir uns noch nicht, ob die Tür vom Bad in den Flur entfallen soll.
Der Abstand vom Windfang zur Treppe ist mit 1,4m vielleicht auch etwas zu knapp. Die Treppe kann aber nicht mehr weiter geschoben werden. Daher nun die Idee den Windfang etwas mehr zu öffnen. Auf dem Podest außen (Eingang EG) soll noch eine Brüstung und ein Vordach eingeplant werden.

EG + DG: Die Terrassen des EG und DG sollen jeweils um 1m verlängert werden, so dass diese über die Außenwände des jeweiligen unteren Geschosses 1m hinaus ragen. Dies soll dem Sonnenschutz und Wetterschutz dienen.

Grundriss eines Wohnhauses mit Treppe, Flur, Bad und drei Schlafzimmern sowie Keller.


Grundriss eines Wohnhauses: Wohnküche, Essbereich, Schlafzimmer, Bad und Terrasse.


Grundriss eines Hauses: Wohnküche, Flur, zwei Schlafzimmer, HWR, Bad; Carport/Parkfläche.
 
M

matte

Das Weglassen der Wand zwischen Schlafzimmer und Ankleide würde ich mir gut überlegen. Dann hat man ja doch wieder die Geräusche des Anderen im Schlafzimmer, wenn man zu unterschiedlichen Urzeiten aufsteht.
In dem Fall würde das Schlafzimmer dann sogar noch zum Durchgangszimmer, wenn jemand ins Bad will.
Den luftigeren Eindruck kannst meiner Meinung nach auch knicken, wenn da ne 7m lange Schrankwand steht.
Da so ne Schrankwand eh im Normalfall geteilt wird, wäre die Wand ja kein Hindernis und lediglich die Türöffnung noch ein Thema.
Da würde sich dann Vorlauf ne Schiebetüre anbieten, damit hättet ihr keine Türe im Weg und bei Bedarf lässt sich das Schlafzimmer trotzdem abtrennen, um Ruhe zu haben.
 
Zuletzt aktualisiert 23.11.2025
Im Forum Grundrissplanung / Grundstücksplanung gibt es 2535 Themen mit insgesamt 87992 Beiträgen


Ähnliche Themen zu Grundrissplanung für Zweifamilienhaus im Hang
Nr.ErgebnisBeiträge
1Treppe im Wohnzimmer als Hype - Pro & Contra? - Seite 426
2Verbindung Schlafzimmer / Ankleidezimmer / Bad 16
3Stadtvilla mit gerader Treppe, offene moderne Bauweise, 140m² - Seite 318
4Einfamilienhaus mit 75 qm Einliegerwohnung 47
5Grundriss Haus mit Einliegerwohnung - Verbesserungsvorschläge? - Seite 34221
6Grundrissfrage: Tausch gerader Treppe durch L-Treppe 31
7Grundrissplanung für Einfamilienhaus mit Einliegerwohnung - Seite 251
8Grundriss - Haus mit Einliegerwohnung - Seite 223
9Wohin mit der Treppe? Dachausbau Walmdachbungalow - Seite 219
10Pfiffige Schlafzimmer Idee mit Ankleide gesucht 19
11Einfamilienhaus mit Keller und Doppelgarage 9,2x11m Grundriss-Plan optimieren 20
12Grundriss Schlafzimmer, Ankleide und Bad en Suite - Seite 336
13Grundriss Schlafzimmer mit Bad und Ankleide 62
14Treppe im Flur, Grundriss steht eigentlich schon :o( - Seite 320
15Treppe Grundriss Planung, Auftritt und Unterzug - Seite 221
16Neubau Stadtvilla mit Einliegerwohnung und Doppelgarage - Seite 572
17Einliegerwohnung für Eltern: 210 m² Einfamilienhaus und 80 m² Einliegerwohnung - Seite 6129
18Grundriss Einfamilienhaus mit Einliegerwohnung - Seite 477
19Idee Schlafzimmer - Bett / Schrank Anordnung 32
20Grundriss Einfamilienhaus ohne Keller/Schlafzimmer und Bad im EG - Seite 427

Oben