
sichtbeton82
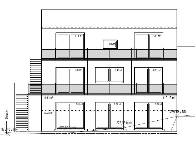
Leider nur etwas kurz ausgeführt: Besten Dank für die Kritik! Bei den Ansichten haben wir sogar etwas getüftelt, damit wir von der Südseite alles symmetrisch haben . Im Gegensatz zu der absoluten Symmetrie und Helligkeit im Süden wollten wir dann einen dunklen Norden und zwei Seiten mit unterschiedlichsten Fenstern. Aber so unterschiedlich sind die Geschmäcker. Nichts desto trotz werden wir noch mal darüber nachdenken.
Ein Zugang des EG über die gegenüberliegende Seite ist so gut wie nicht möglich aufgrund der Geländeform. Vor allem aber die Zugangsmöglichkeit seitlich zum Keller wäre über die Ostseite unmöglich.
Das weitere ziehen der Stufen Richtung Süden wäre auch ein Wunsch unsererseits, ist aber aufgrund der Baugrenze von 14m nicht machbar. Auch der Gedanke mit dem Oberlicht im versetzten Satteldach ist laut Bauamt leider nicht umsetzbar. Ich werde aber dort noch mal nachhaken.
Wir werden eure Gedankengänge aber noch mal sacken lassen und diskutieren.
Ein Zugang des EG über die gegenüberliegende Seite ist so gut wie nicht möglich aufgrund der Geländeform. Vor allem aber die Zugangsmöglichkeit seitlich zum Keller wäre über die Ostseite unmöglich.
Das weitere ziehen der Stufen Richtung Süden wäre auch ein Wunsch unsererseits, ist aber aufgrund der Baugrenze von 14m nicht machbar. Auch der Gedanke mit dem Oberlicht im versetzten Satteldach ist laut Bauamt leider nicht umsetzbar. Ich werde aber dort noch mal nachhaken.
Wir werden eure Gedankengänge aber noch mal sacken lassen und diskutieren.