Grundriss - Haus mit Einliegerwohnung

4,30 Stern(e) 3 Votes
Zuletzt aktualisiert 25.11.2025
Sie befinden sich auf der Seite 2 der Diskussion zum Thema: Grundriss - Haus mit Einliegerwohnung
>> Zum 1. Beitrag <<

S

soleifly

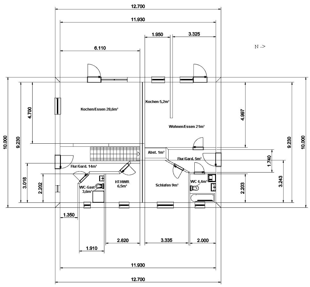
Und noch ein Versuch. Die Maßen sind etwas anders geworden.

OG folgt noch.

Bin gespannt wie das Urteil jetzt ausfällt.

Grundriss mit Raumnamen (Kochen/Essen, Wohnen/Essen, Schlafen, WC, Flur, HWR) und Maßen.


3D-Grundriss eines Wohnhauses mit Innenwänden, Türen, Fenstern und Maßangaben.


3D-Grundriss eines Hauses mit Innenwänden, Türen und Maßlinien.


3D-Architekturzeichnung eines Haus-Grundrisses mit Treppe, Innenwänden und blauem Element


3D-Grundriss eines Hauses mit Innenräumen, Treppe und Maßlinien.
 
P

perlenmann

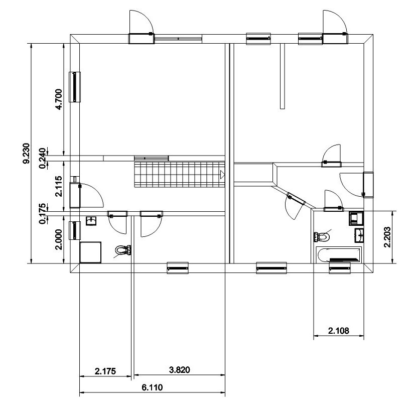
Treppe mitten im Wohnzimmer Durchgang? In den Hauswirtschaftsraum bekommst Du dank schräger Tür vielleicht die Heizung nicht rein, oder baust Du die Wände um die Heizung? an sich der "winkelig"
Ich stell mir gerade 4,4m² Badezimmer mit Dusche und Badewanne vor

Den Tipp gab es schon mal, geh zu jemand der sich damit auskennt!
 
S

soleifly

Danke Perlenmann,

ich denke den Rat mit der fremden Hilfe werde ich noch oft zu hören/lesen bekommen. Ich will aber dennoch noch selber probieren.

Deinen Tipp habe ich befolgt und die Ecken/Winkel raus genommen. Ich wollte anfangs die Garderobe nicht unter der Treppe haben, aber siehe da, es sieht gut aus und WC und Hauswirtschaftsraum/HT sind gleich größer.
Der Durchbruch wird eine Glasschiebetür, soll einen offenen Charakter vermitteln, aber Geruch und Schall in der Küche halten.

Zum Bad in der Einliegerwohnung: Da ist keine Dusche, sondern eine Badewanne und eine Waschmaschine. Wir haben im Moment einen WC in der gleichen Größe und es funktioniert ganz gut.

Grundriss eines Hauses mit mehreren Räumen, Türen, Treppe und Sanitärbereich, Maßangaben.


3D-Grundriss eines Hauses: Erdgeschoss mit Innenräumen, Treppe, Türen und Maßangaben
 
P

perlenmann

Schon etwas besser

Mit dem offen wirken der Glastür würde ich noch mal überlegen. Du schaust halt durch eine Scheibe auf eine Treppe! Wirkt das offen?

OK Waschmaschine, ich würde den Flur (Einliegerwohnung) direkt am Bad enden lassen, dadurch das Schlafzimmer größer. Im Flur kannst Du die m² nicht nutzen, im Schlafzimmer schon eher.

Hast Du noch mal ein Bild vom OG? Seh nichts mehr im Startpost
 
S

soleifly

Bei einer schönen Treppe, denke ich wird es besser auf die Treppe zu schauen als auf eine Wand, aber ich werde mir das mal rendern und schauen.

Das Schlafzimmer habe ich schon mal virtuell möbliert und es hat gut gepasst, der größere Flur bietet dann Platz für Jacken/Schuhe und co.. So ein "Zwischending" ist da wahrscheinlich am besten.

OG folgt erst morgen, habe die Zeichnung zuhause.
 
E

E.Curb

Moin,
mal ganz ehrlich, findest Du das so gut? Da fehlt es meiner Meinung nach doch ein bisschen an Pfiff. Sieht aus wie gewollt und nicht gekonnt.

Entwerfen ist nicht Jedermanns Sache......

Gruß

P.S. Nimm es bitte nicht persönlich, aber es gibt Leute, die haben das studiert
 
Zuletzt aktualisiert 25.11.2025
Im Forum Grundrissplanung / Grundstücksplanung gibt es 2536 Themen mit insgesamt 88016 Beiträgen


Ähnliche Themen zu Grundriss - Haus mit Einliegerwohnung
Nr.ErgebnisBeiträge
1 2 Vollgeschosse, Durchgang Garage, Hauswirtschaftsraum unter Treppe - Seite 225
2Grundriss Haus mit Einliegerwohnung - Verbesserungsvorschläge? - Seite 34221
3Badezimmer Planung 1-Personen Haushalt im Neubau - Seite 426
4Renovierung-Tipps für sehr kleines Bad mit Dusche statt Badewanne - Seite 336
5Grundrissfrage, Garage, Treppe 33
6Neubau Stadtvilla mit Einliegerwohnung und Doppelgarage - Seite 472
7Einliegerwohnung für Eltern: 210 m² Einfamilienhaus und 80 m² Einliegerwohnung - Seite 7129
8Idee Schlafzimmer - Bett / Schrank Anordnung 32
9Grundrissfrage: Tausch gerader Treppe durch L-Treppe 31
10Grundriss, Bauen mit Baum, Einliegerwohnung und Altbestand - Seite 7105
11Treppe im Flur, Grundriss steht eigentlich schon :o( - Seite 320
12Heizung Kinderzimmer,schlafzimmer und Bad 14
13Badewanne im Schlafzimmer - was haltet ihr davon? - Seite 235
14Neubau mit Einliegerwohnung: Photovoltaik - Strom - Heizung 16
15Anschluss Badewanne an Dusche 21
16Fußbodenheizung unter Badewanne und Dusche 13
17Bad-Grundriss 8,7qm, mit Dusche und Badewanne 16
1813.000 für alte Dusche und Badewanne erneuern? 17
19Ankleide/Schlafzimmer Problem - Grundrissdiskussion 25
20Grundrissfrage, Treppe, Fenster, Ausrichtung - Seite 212

Oben