Grundrissplanung für Zweifamilienhaus im Hang

4,00 Stern(e) 23 Votes
Zuletzt aktualisiert 20.11.2025
Sie befinden sich auf der Seite 6 der Diskussion zum Thema: Grundrissplanung für Zweifamilienhaus im Hang
>> Zum 1. Beitrag <<

11ant

11ant

Anhänge nicht sichtbar .. zumindest für den normalen Laptop-Nutzer nicht.
Ich sehe auch nur die Anhänge in #31 - und (@Admin) rückwirkend auch alle anderen Anhänge dieses Beitrages nicht mehr (meinerseits unverändert, Desktop / Opera).

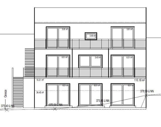
Als wesentliche Änderung sehe ich nur eine Verschlimmbesserung, die ich nicht alpzuträumen gewagt hätte: die alle Fenster gleich-Fassade hat nun ein "U" aus sieben gleichen Fenstern, und an den mittleren oberen beiden Positionen des 3x3-Rastergitters sind nun zwei wie Fehler wirkende Formate platziert. Offenbar kann man wirklich alles noch toppen.

Also bis auf zwei wurden alle Kritikpunkte beibehalten, und diese zwei dann auch noch verschlechternd gelöst.

Das sieht wirklich aus, als sei ein Anhänger des Dadaismus Bauingenieur geworden. Mops kotzt
 
11ant

11ant

Ich sehe auch nur die Anhänge in #31 - und (@Admin) rückwirkend auch alle anderen Anhänge dieses Beitrages nicht mehr (meinerseits unverändert, Desktop / Opera).
Nun sind sie seit wenigen Minuten wieder da.

Als wesentliche Änderung sehe ich nur eine Verschlimmbesserung, die ich nicht alpzuträumen gewagt hätte: die alle Fenster gleich-Fassade hat nun ein "U" aus sieben gleichen Fenstern,
Das Vorher-Bild sieht man in #12, falls jemand vergleichen möchte
 
sichtbeton82

sichtbeton82

Das sieht wirklich aus, als sei ein Anhänger des Dadaismus Bauingenieur geworden. Mops kotzt
Haha! . Wenn die Bude mal fertig ist, werde ich das Liedchen "drei Chinesen mit dem Kontrabass" auf den Beat von "Da da da" zum Besten geben.

Mit der Auflehnung gegen das System kann ich leben. Kurz noch mal angerissen: Wichtig ist uns vor allem das Innere und über den Süden muss halt viel Licht rein. Hätte auch gerne den Süden komplett verglast, aber das wäre statisch zu aufwendig. Es bleibt also dabei, von innen funktioniert es, von außen ist es für den einen katastrophal für den anderen okay (frohlockend wird es bestimmt wirklich nicht... oder doch?). Ich bin selbst gespannt wie es nachher wirkt.

Anbei noch ein paar Bilder vom Grundstück. Ich weiß wäre von vornherein cleverer gewesen.

Ich hoffe, dass ihr bei der weiteren Phase auch weiterhin uns unterstützt mit Kritik, auch wenn wir nicht alles angenommen haben.

Was haltet ihr von Gaswärmepumpen speziell einer Zeolith-Gaswärmepumpe?

Außenansicht mehrerer Einfamilienhäuser in hügeliger Baumsiedlung mit Solarpanelen


Freier Baugrund mit Erde, Bäumen am Rand und sanfter Huegel-Landschaft im Hintergrund.
 
kaho674

kaho674

Als wesentliche Änderung sehe ich nur eine Verschlimmbesserung, die ich nicht alpzuträumen gewagt hätte: die alle Fenster gleich-Fassade hat nun ein "U" aus sieben gleichen Fenstern, und an den mittleren oberen beiden Positionen des 3x3-Rastergitters sind nun zwei wie Fehler wirkende Formate platziert. Offenbar kann man wirklich alles noch toppen.
Naja, schön ist was anderes, das ist wahr. Man kann nur hoffen, dass die Sache durch den Versatz nach hinten etwas gemildert wird.

Ich hab nicht alles gelesen, sorry. Was mir spektakulär scheint, ist die Bad-Wand bei der Dusche. Ist die wegen Lichtmangel aus Glas? Das fänd ich megacool.
 
Zuletzt aktualisiert 20.11.2025
Im Forum Grundrissplanung / Grundstücksplanung gibt es 2535 Themen mit insgesamt 87978 Beiträgen
Oben