Grundrissplanung für Zweifamilienhaus im Hang

4,00 Stern(e) 23 Votes
Zuletzt aktualisiert 20.11.2025
Sie befinden sich auf der Seite 2 der Diskussion zum Thema: Grundrissplanung für Zweifamilienhaus im Hang
>> Zum 1. Beitrag <<

sichtbeton82

sichtbeton82

Stimmt, Brüstung heisst es dann!
Mit der Statik hast du vollkommen Recht! Habe zwei H-Stähle mit eingeplant gem. aktualisiertem Anhang. Optisch gefallen uns blanke Stähle, ob der ausreichend tragend ist, muss man dann noch prüfen. Die Garderobe habe ich nun auch verlegt. Einmal die "Gäste"Garderobe im Eingangsbereich und die "heimische" an der neuen Trennwand von Treppe/Flur. Das mit dem vollen Einblick auf das Schlafzimmer ist auch ein sehr guter Hinweis! Habe es wie beigefügt nun mit zwei hohen Teilwänden anstatt einer komplett durchgehend Brüstung versucht zu umgehen.
Der Abstand der Schränke beträgt 1,15m. Ist schade, dass man die Maße bei dem Tool nicht anzeigen lassen kann. Die Ankleide ist 3,13m*2,35m. Bei 2,35m dann abzgl.. zwei 60er Schränke, blieben 1,15m übrig.
Stimmt, das Bett steht nicht wirklich gut. Auch wenn ich mit Feng-Shui nichts am Hut habe, aber selbst das leuchtet mir ein . Habe das Bett (2m*2m) mal anders platziert und das Fenster verrückt.

3D-Wohnraum mit offener Küche, Esstisch, rotem Sideboard, Sofa-Ecke, stehender Mensch und Hund.


Grundriss einer Wohnung mit Terrasse: Wohn-Es-Küche, Schlafen, Bad; zwei schwarze Figuren markiert.
 
Y

ypg

Ich finde die Treppenbrüstungen nicht passend und würde eher mit Wandscheiben arbeiten.
Schlafzimmer finde ich jetzt besser.

Klavier vor einer Terrassentür ist nicht der Burner.


In aller Kürze Grüsse
 
kbt09

kbt09

Einziges Fenster im Schlafzimmer direkt neben dem Kopfteil vom Bett halte ich wg. Zug etc. auch nicht für gut.

Klavier wollte ich auch erwähnen, das sollte man in keinem Fall in dem Süderker planen ... es sei denn, es ist nur ein Möbelstück und wird nicht gespielt.
 
Y

ypg

Ich würde den biederen Mittelerker eh an die Seite verfrachten. Das könnte ja auch im WZ sein, die Trennwand zum Schlafzimmer begradigt man, sodass dieses etwas größer wird. Dann hätte das Fenster bzw das Bett mehr Platz.


Gruß, Yvonne
 
sichtbeton82

sichtbeton82

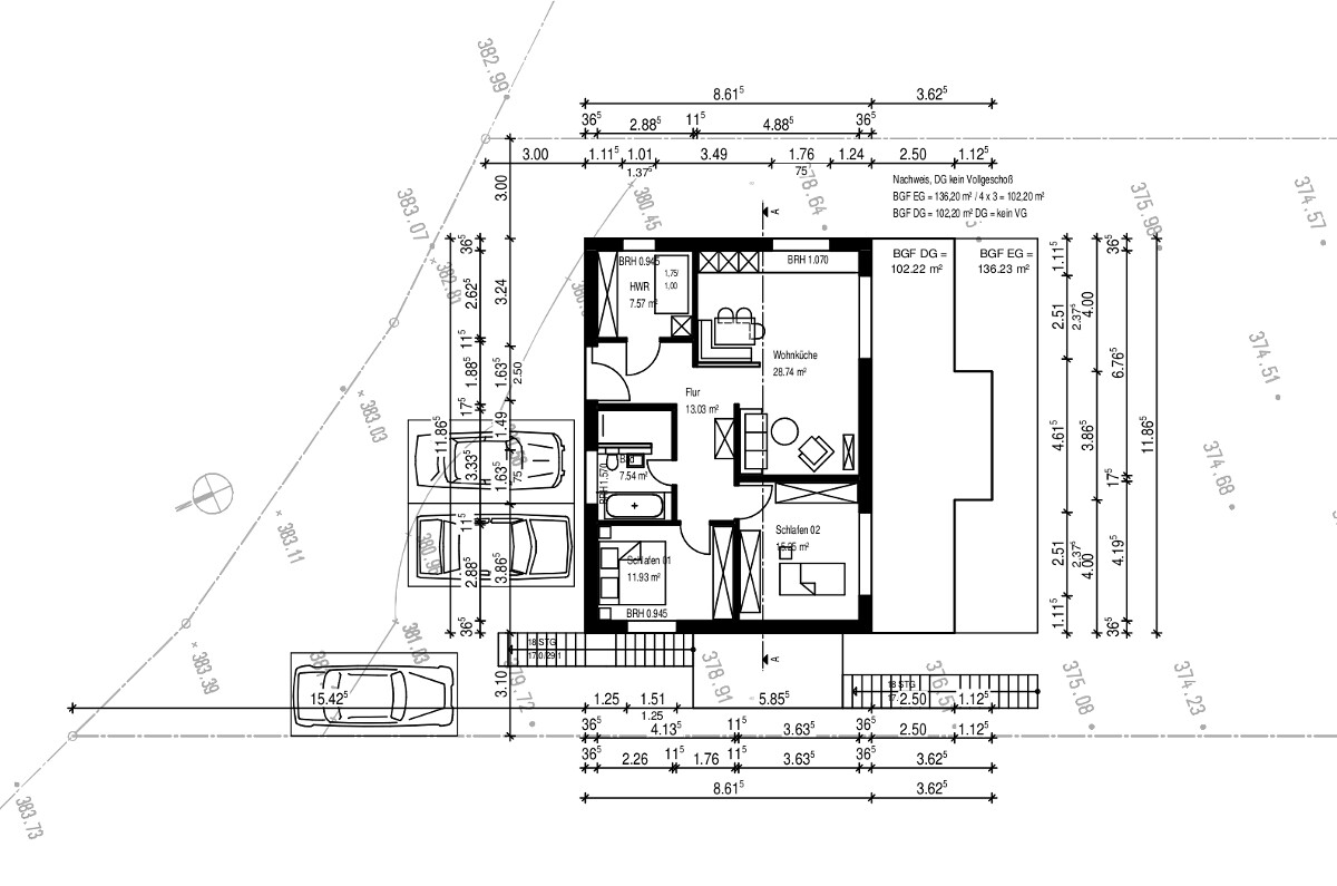
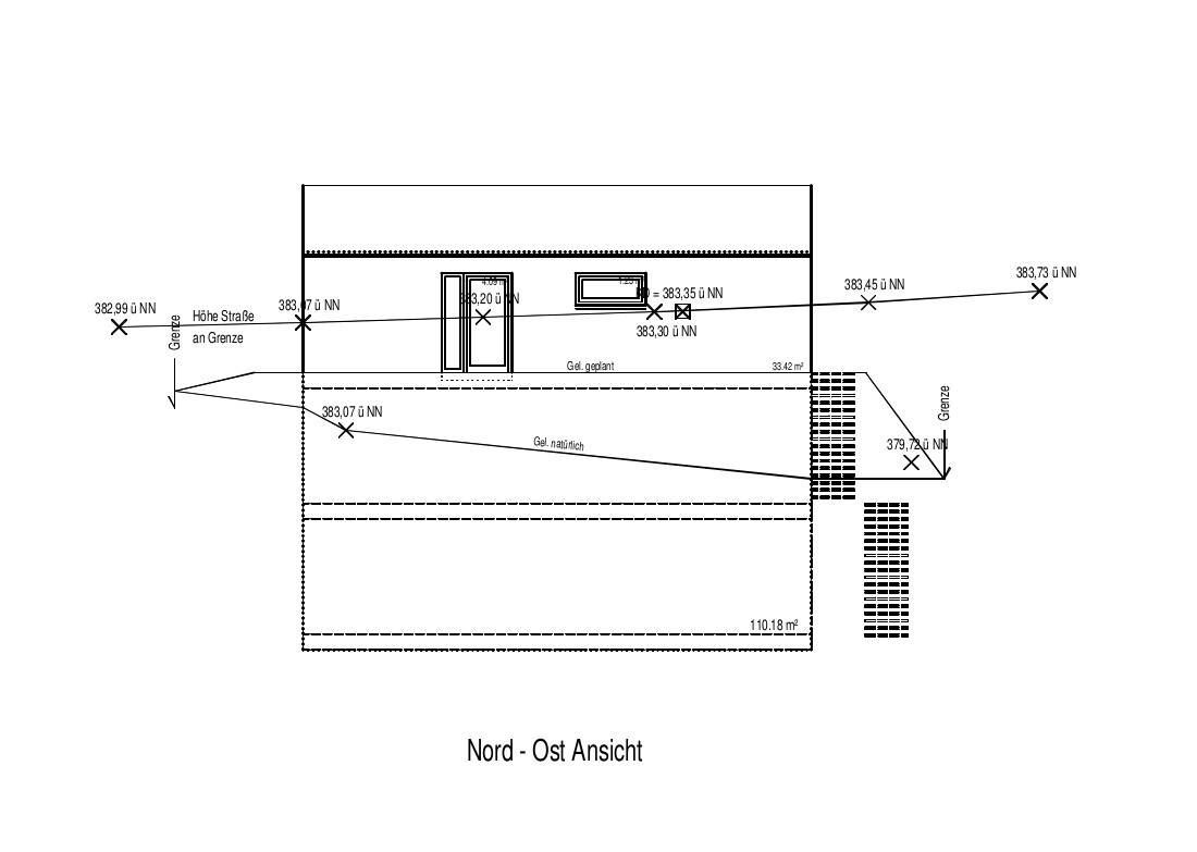
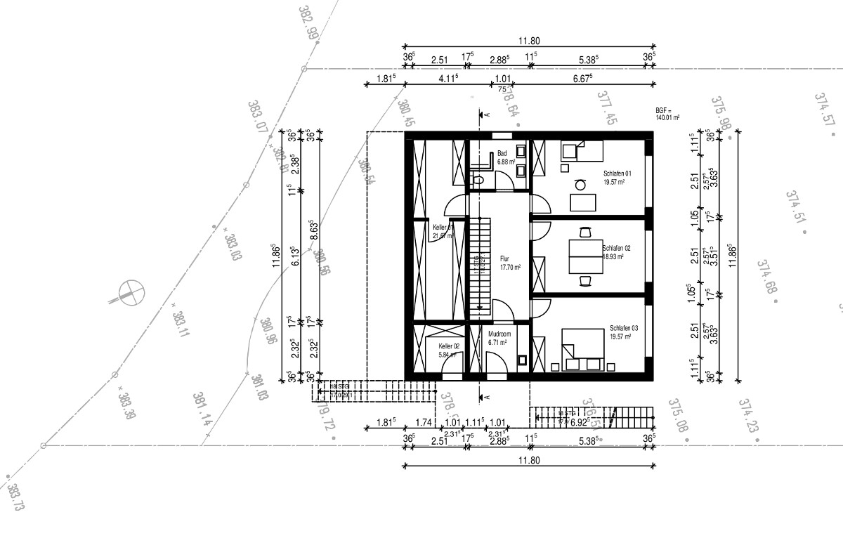
... Zeit vergeht ... Die Thematik Finanzierung war doch etwas zeitaufwendiger als gedacht. Zwar ist noch nichts unterschrieben, aber der Abschluss naht . Folgend mal die Grundrisse, Ansichten und der Schnitt zur Diskussion. Die Möblierung ist noch nicht angepasst, bspw. ist er Kopfteil vom Bett im EG an der Nordwand. Auch der Erker wird im EG vermutlich nicht so kommen. Entweder wird es keinen geben, oder er wird gänzlich Richtung Süden gezogen, damit ein Grundriss. Esstisch dort untergebracht werden kann.

Grundriss eines Wohnhauses mit Treppenhaus, Flur, Bad und mehreren Schlafzimmern.


Grundriss eines Einfamilienhauses: Schlafen, Ankleide, Bad, Flur, Wohnküche und Terrasse.


Grundriss eines Einfamilienhauses mit Wohnküche, Flur, Bad, zwei Schlafzimmern und Garage.
 
Zuletzt aktualisiert 20.11.2025
Im Forum Grundrissplanung / Grundstücksplanung gibt es 2535 Themen mit insgesamt 87977 Beiträgen


Ähnliche Themen zu Grundrissplanung für Zweifamilienhaus im Hang
Nr.ErgebnisBeiträge
1Grundriss Neubau Einfamilienhaus: Fenster/Türen/Innenwände Größe/Anordnung ok? - Seite 220
2Grundrissplanung 2 Geschosse und Walmdach - Seite 759
3Idee Schlafzimmer - Bett / Schrank Anordnung 32
4Fenster Brüstungshöhe 130 im Schlafzimmer / Arbeitszimmer? - Seite 493
5Fenster / Türen / Garderobe 13
6Bodentiefe Fenster im OG ohne Brüstung - Seite 265
7Badewanne vor Fenster, Brüstung zu niedrig, GU stellt sich quer - Seite 448
8Gestaltung Schlafzimmer 35
9Pfiffige Schlafzimmer Idee mit Ankleide gesucht 19
10Grundriss Stadtvilla / Anordnung Fenster, Feedback erwünscht - Seite 216
11Grundriss Einfamilienhaus ohne Keller/Schlafzimmer und Bad im EG - Seite 427
12Dusche direkt am Fenster - kompatibel oder inkompatibel? 22
13Grundriss Schlafzimmer, Ankleide und Bad en Suite 36
14Fensterfläche zu Raumgröße, insbesondere Schlafzimmer 10
15Grundriss Schlafzimmer mit Bad und Ankleide - Seite 362
16Umbau Kinderzimmer - Fenster in zwei Fenster aufteilen? 20
17Grundriss Einfamilienhaus geplant, Fenster gefallen uns - Seite 343
18Größe vom Schlafzimmer und Kinderzimmer - Seite 338
19Neubau einer ca. 8x11 Doppelhaushälfte, Einschätzung Grundriss und Fenster - Seite 235
20was für Farben für das Schlafzimmer ? - Seite 344

Oben