Grundrissplanung für Zweifamilienhaus im Hang

4,00 Stern(e) 23 Votes
Zuletzt aktualisiert 23.11.2025
Sie befinden sich auf der Seite 11 der Diskussion zum Thema: Grundrissplanung für Zweifamilienhaus im Hang
>> Zum 1. Beitrag <<

Climbee

Climbee

Du jammerst wegen 200 Tagen für eine Baugenehmigung???

Wir haben fast 2 Jahre dafür gebraucht...
fühle dich mal bevorzugt behandelt!
 
Y

ypg

Glückwunsch zur Baugenehmigung!

Die Änderung von matte würd ich auch sofort unterstützen.
Was mich aber sehr stören würde, ist die Enge am Eingang. Man stürzt ja fast die Treppe runter, wenn man rein kommt.
Wär es meins, flöge die heilige gerade Treppe und die Kammer raus. Stück vom Keller würde abgeknappst für die 1/2 Gewendelte. Aber das ist natürlich Geschmackssache - zumal dann natürlich der Platz in der Kammer fehlt, wozu auch immer er gedacht war.

Windfang finde ich zu klein. Garderobe entsprechend auch. Das Oberlicht bei der Dusche ist super gedacht, aber eine funktionierende Garderobe wäre mir an der Stelle vermutlich wichtiger.
Anhang anzeigen 22506
Ich les jetzt nicht alles nach, aber so wird es was: mit Katjas Vorschlag, der Windfang noch verlängert um mind. 1 Meter, zur Küche/Essbereich darf dann auch noch ein Stück Mauer, damit es genehmer ist
 
sichtbeton82

sichtbeton82

ENDLICH!
Am Mittwoch kam der Erdbauer mit seinem Bagger! War erst etwas skeptisch, dass der "kleine" Bagger das nicht schafft. Aber Größe ist nun mal nicht alles! Nach 1,5 Tagen war schon etwas von der Baugrube zu erkennen. Die muss zwar noch deutlich tiefer, aber bis jetzt läuft es sehr gut, da der Schiefer noch ziemlich "locker" ist.

Mit dem Start fiel uns ein Riesen Stein vom Herzen. Die Anschlussarbeiten für den Rohbau sehen auch sehr gut aus. Sind nun der großen Hoffnung dass nun alles durchflutscht... Wettertechnisch haben wir leider einen super Sommer für den Bau liegen lassen.

Finanziell drückt auch der Schuh, da wir seit Anfang des Monats das Annuitätendarlehen bedienen müssen (Zins und Tilgung) und oben darauf eine Strafe für nicht abgerufenes Darlehen zahlen dürfen. Aber gut, Vertrag ist Vertrag und es wird zu verkraften sein. Auf der anderen Seite hoffe ich auf das Baukindergeld...

Kleiner Bagger gräbt Erde auf einem Hanggrundstück mit Feldern und Bäumen im Hintergrund


Kleiner Bagger auf Baustelle mit großen Erdmassen und Erdhügeln
 
M

matte

Würdest du Vorlauf finale Pläne einstellen? Vor allem die Situation im Elternbereich+Eingang war ja eigentlich Thema, aber da kam leider keine Rückmeldung mehr...
 
sichtbeton82

sichtbeton82

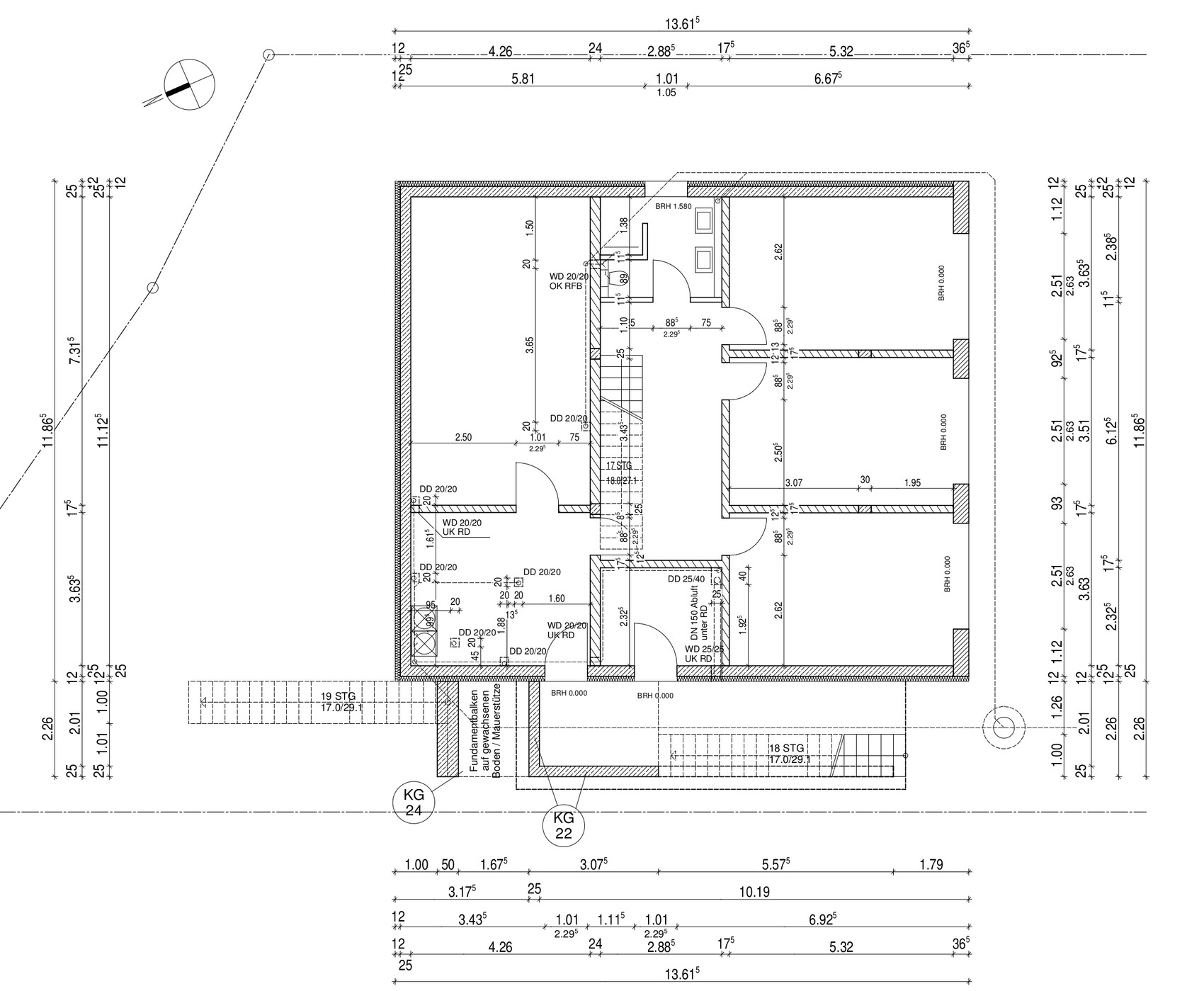
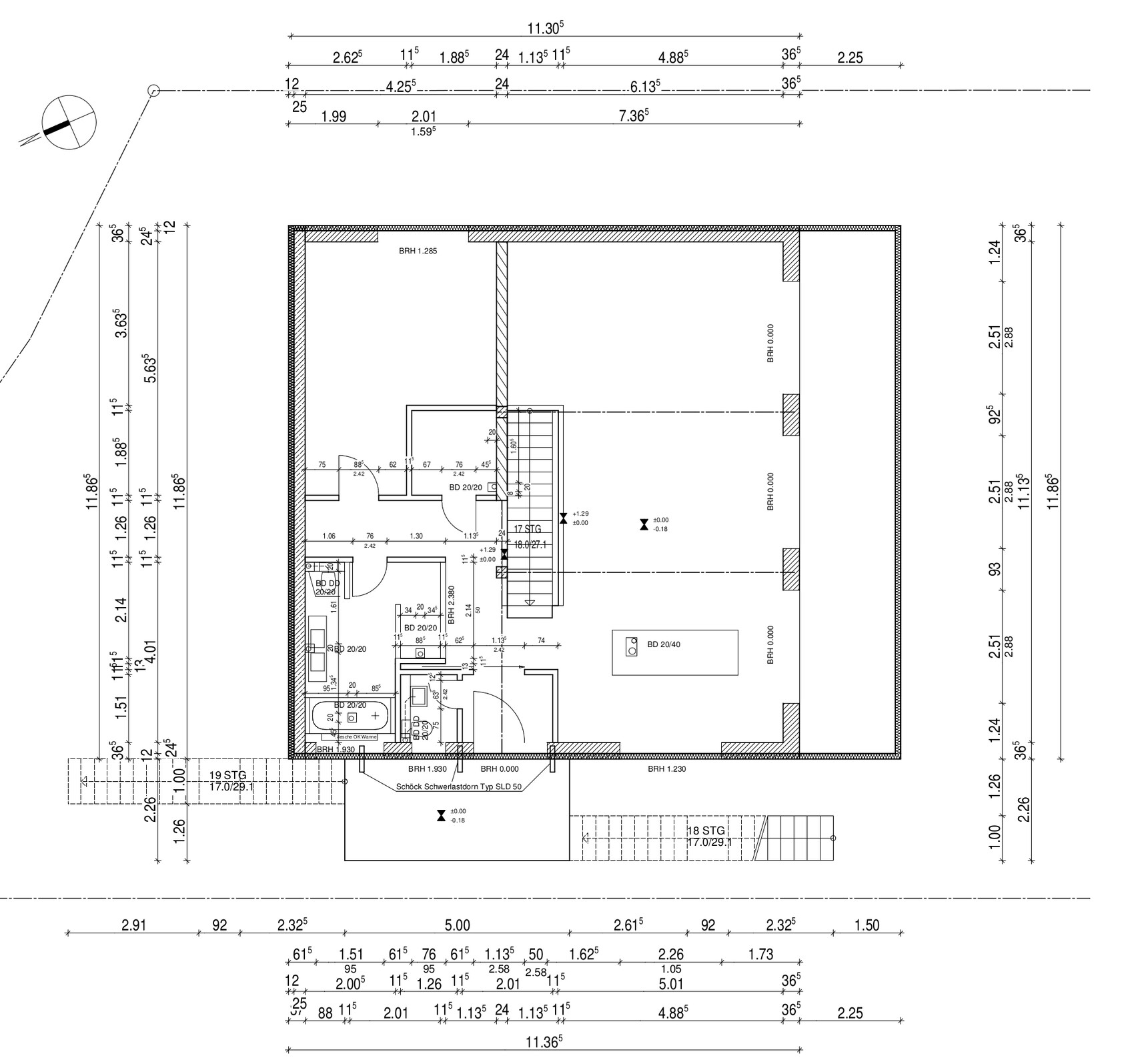
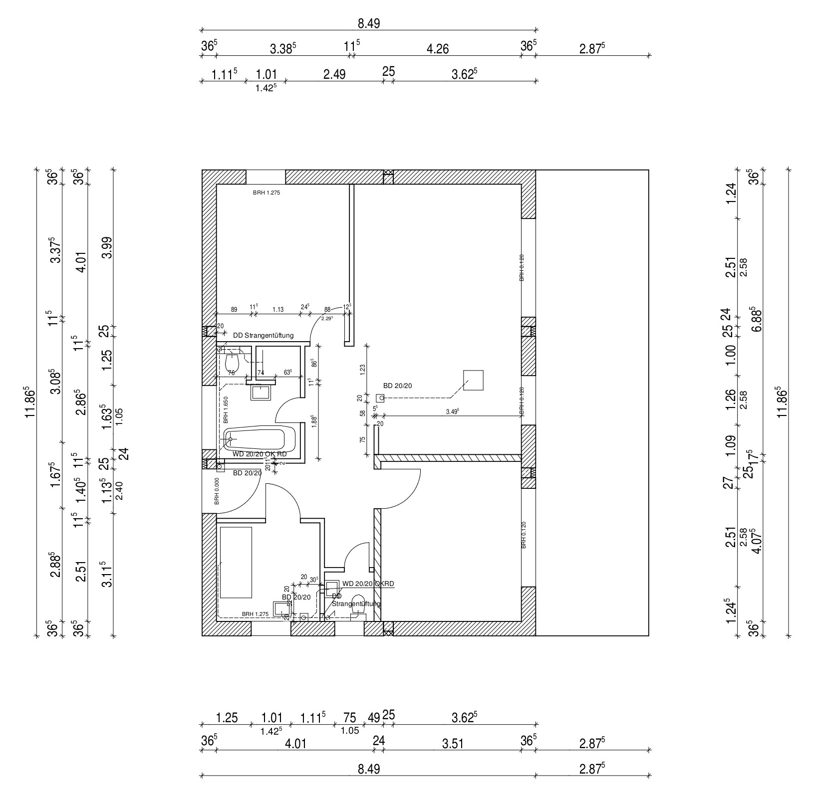
Anbei die Werkpläne. Eine Änderung des Elternbereich haben wir nicht vorgenommen. Dennoch besten Dank für deine/eure Kritik.

Querschnitt durch mehrstöckiges Gebäude mit DG, EG, KG und Dachkonstruktion mit Maßangaben


Grundriss eines Einfamilienhauses mit Innenwänden, Türen und Maßangaben.


Grundriss eines Gebäudes mit Zimmern, Treppenhaus, Türen und Maßangaben.


Grundriss eines Apartments mit Bad, Schlafzimmer und Türen, inklusive Maßlinien.
 
Zuletzt aktualisiert 23.11.2025
Im Forum Grundrissplanung / Grundstücksplanung gibt es 2535 Themen mit insgesamt 87992 Beiträgen


Ähnliche Themen zu Grundrissplanung für Zweifamilienhaus im Hang
Nr.ErgebnisBeiträge
1Bau-Vertrag unter Vorbehalt abschließen? 10
2Fühlen uns zu Vertrag gedrängt, normal? 17
3Bauvorplanung ohne Unterschrift / Vertrag rechtsgültig? 12
4Wer fiel auch auf Vertrag mit Vorbehaltsklausel rein? -Suche 13
5Vertrag unklar: Humus Erdkollektoren 10
6Baufinanzierung mit befristetem Vertrag - Seite 213
7Bauen ohne Vertrag - Bedenken? 39
8Baufinanzierung und Vertrag mit dem Bauträger 24
9Frage zur vorzeitigen Rückzahlung und Klausel im Vertrag - Seite 241
10Riester-Vertrag plündern - für weniger Kreditbedarf? 16
11Tiefbauarbeiten ohne Vertrag - Normal, Erfahrungen? 10
12Heinz von Heiden Bauleistungsbeschreibung + Vertrag veränderbar 10
13Architekt, Vertrag nach HOAI 2013 - verweigert Leistungserbringung - Seite 436
14Fertigstellungstermin bei GÜ-Vertrag - Formulierungshilfe 62
15Vertrag Grundstückskauf - Bauverpflichtung innerhalb 2,5 Jahre 18
16Widerruf von einem Vertrag mit einer Sanitärfirma - Seite 224
17Preisgleitklausel im Vertrag mit GU 18
18Übernahme des Bauernhofs - Vertrag auf meinen Mann 15
19Vertrag mit GU “vorzeitig” abschließen 22
20Hauskauf über Makler, nun Vertrag gekündigt - Seite 218

Oben