Grundrissplanung für Zweifamilienhaus im Hang

4,00 Stern(e) 23 Votes
Zuletzt aktualisiert 06.10.2025
Sie befinden sich auf der Seite 10 der Diskussion zum Thema: Grundrissplanung für Zweifamilienhaus im Hang
>> Zum 1. Beitrag <<

sichtbeton82

sichtbeton82

Lange, lange, zu lange ist hier nichts passiert. Es lag an der noch ausstehenden Baugenehmigung. Mündlich haben wir nun aber endlich eine Zusage, daher geht's hier dann bald weiter. Es war aber auch eine aufreibende Baugenehmigungsphase! Das wünscht man keinem. Sobald die Erlaubnis schriftlich vorliegt, folgen auch dann aktuelle Bilder zum Grundriss.

Es folgt dann auch eine Erklärung in diesem Beitrag: https://www.hausbau-forum.de/threads/Berechnung-mittlere-hoehe-kg-Abzug-stuetzmauer.27212/#post-255433
 
sichtbeton82

sichtbeton82

Der Bauantrag wurde genehmigt. Es kann losgehen. Bevor überhaupt die Arbeiten losgingen, was es bis jetzt schon ein mehr als unangenehmer Prozess... :-( Waren jetzt 201 lange Tage für die Genehmigung.

Mit der Behörde war wirklich nicht gut Kirschen essen. "Geringfügige Abgrabungen" gibt es für die Behörde nicht. Schlussendlich wurde der Bauantrag zurückgezogen und ein neuer eingereicht, der nun genehmigt wurde. Als Ausweg wurde das KG Richtung Norden vergrößert.

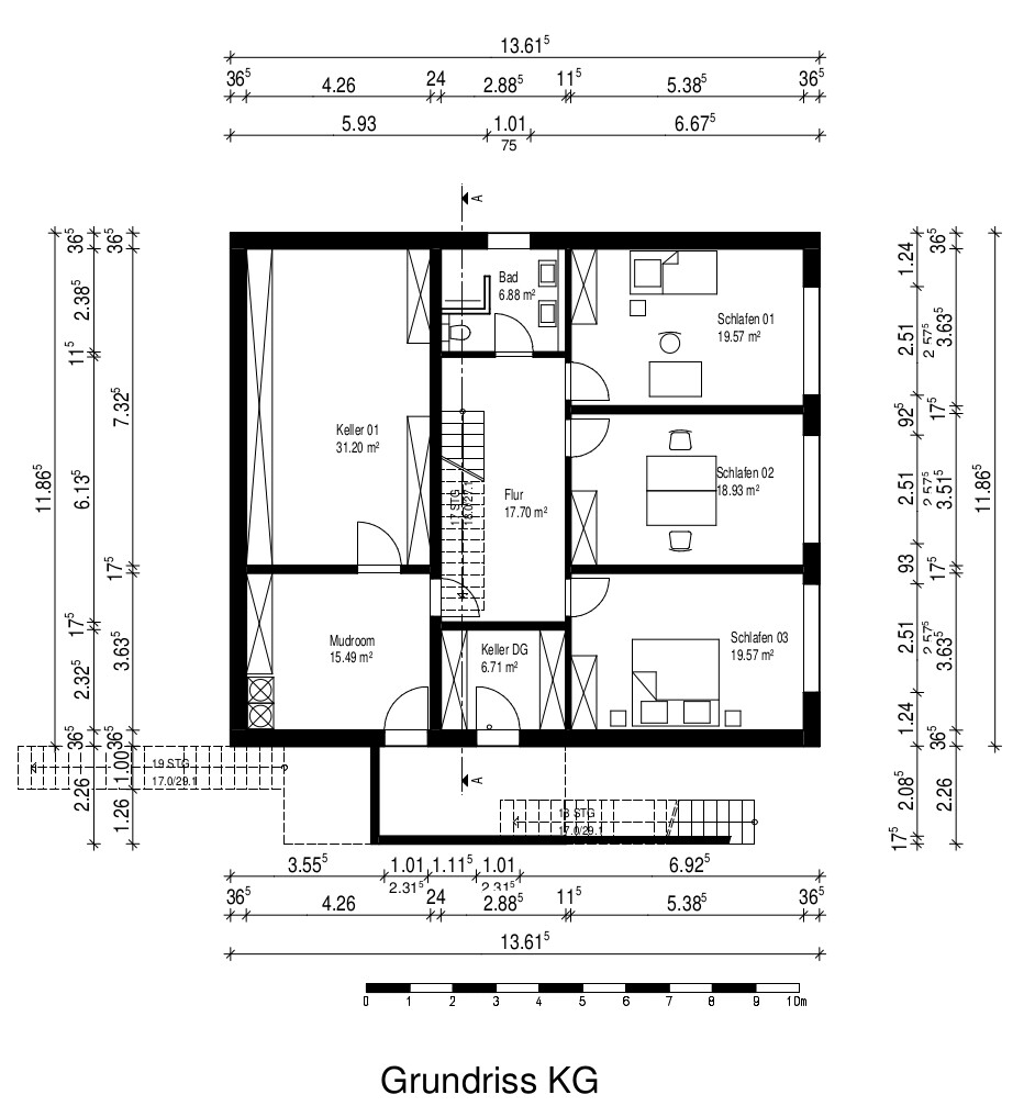
Anbei nun die aktuellen Grundrisse und Ansichten/Schnitt.

Grundriss KG: Kellerräume, Bad, Flur und 3 Schlafzimmer mit Treppe.


Grundriss Erdgeschoss: Wohnküche, Schlafzimmer, Bad, Flur, Windfang, Terrasse.


Grundriss DG Freifläche: Wohnküche, Flur, Bad, zwei Schlafzimmer, Terrasse.


Architekturplan eines Mehrgeschossbaus mit Nord-, Ost-, Süd- und Westansichten und Schnitt.
 
M

matte

Ich erinnere mich...

Verstehe nach wie vor nicht, warum so zwanghaft auf eine Abtrennung des Elternbereichs verzichtet wird?!
Das Hauptbad werden Gäste wohl kaum mitbenutzen, da ja ein Gäste-WC vorhanden ist, Kinder hingegen könnten ja trotzdem rein gehen.
Vorteil wäre halt eine gewisse Privatsphäre.

Ich denk da nur dran, dass der Mann mit Freunden zum Kartenspielen am Esstisch sitzt, die Frau Vorlauf im Schlafzimmer im Nachthemd schon im Bett ist. Muss die aufs Klo, kommt sie da nur über den kleinen, unnützen Flur ins Bad, wo sie dann aufm Präsentierteller steht.

Mit kleinsten Änderungen wäre ohne Nachteile ne Ankleide möglich...

Auch würde ich die Duschwand an die planobere Wand anschließen. So wie momentan ist direkt am Badeingang das nasse Eck, wo man aus der Dusche raus kommt. Für jemanden, der in Socken unterwegs ist, ein unüberwindbares Hindernis.

Wo habt ihr Platz für ne Garderobe? Bei 2 kleinen Kindern (Vorlauf bald 3) stell ich mir das in dem kleinen Windfang ziemlich kuschlig vor.

Grundriss EG: Offenes Wohn-/Küchenbereich mit Terrasse, Schlafzimmer, Bad, Flur und Windfang.
 
sichtbeton82

sichtbeton82

Besten Dank für deine Vorschläge. Die Umgestaltung zur Ankleide werden wir noch mal diskutieren. Bei der Dusche ist es eindeutiger. Ich habe mich stets an den eingezeichneten 2,38 m orientiert. Dachte dass die Wand dann ca. 1,80 m lang ist, aber die ist ja nur 1,20m. Das wird sehr wahrscheinlich gem. deinem Vorschlag korrigiert. Danke!

Zur Zeit geht mir noch das "Energie-Konzept" durch den Kopf. Leider liegen noch keine Daten wie Heizlast oder auch Preise vor. Für mich stehen folgende 3 Alternativen bereit (es ist aber auch sehr schwierig. Zur Zeit gibt es ja eine Fülle von Möglichkeiten).

a) Wärmepumpe die durch Photovoltaik und Solarthermie betrieben/unterstützt wird
b) Wärmepumpe die durch Photovoltaik und Erdwärme betrieben wird
c) Wärmepumpe die lediglich durch Photovoltaik betrieben wird

Unter dem Aspekt so viel wie möglich regenerativ einzubringen finde ich a+b gut. Allerdings ist es deutlich einfacher und ich befürchte auch nicht wirtschaftlicher als c.

Skizze eines Hauses mit Haustechnik: Heizung, Wärmepumpe, Heizkreisverteiler und Rohrführung.


Technische Skizze eines Heizungs- und Solarenergie-Systems im Haus mit Rohren
 
kaho674

kaho674

Glückwunsch zur Baugenehmigung!

Die Änderung von matte würd ich auch sofort unterstützen.
Was mich aber sehr stören würde, ist die Enge am Eingang. Man stürzt ja fast die Treppe runter, wenn man rein kommt.
Wär es meins, flöge die heilige gerade Treppe und die Kammer raus. Stück vom Keller würde abgeknappst für die 1/2 Gewendelte. Aber das ist natürlich Geschmackssache - zumal dann natürlich der Platz in der Kammer fehlt, wozu auch immer er gedacht war.

Windfang finde ich zu klein. Garderobe entsprechend auch. Das Oberlicht bei der Dusche ist super gedacht, aber eine funktionierende Garderobe wäre mir an der Stelle vermutlich wichtiger.

Grundriss Erdgeschoss mit Schlafen, Wohnküche, Bad, Flur, Windfang und Terrasse.
 
Zuletzt aktualisiert 06.10.2025
Im Forum Grundrissplanung / Grundstücksplanung gibt es 2510 Themen mit insgesamt 87171 Beiträgen


Ähnliche Themen zu Grundrissplanung für Zweifamilienhaus im Hang
Nr.ErgebnisBeiträge
1Optimierung Wärmepumpe LWD 70A mit Photovoltaik 16
2Photovoltaik-Anlage, wie Wärmepumpe nutzen Erfahrungen? - Seite 964
3KfW55: Gas oder Luft-Wasser-Wärmepumpe mit/ohne Photovoltaik 17
4Wärmepumpe mit Photovoltaik vs Gas und Solarthermie 52
5Luft-Wasser-Wärmepumpe mit Photovoltaik oder Pellet mit Solar 25
6Vorbereitung für Photovoltaik oder Solarthermie bei Luft-Wasser-Wärmepumpe 18
7Neubau Bungalow - Luft-Wasser-Wärmepumpe, Photovoltaik und Solarthermie? 17
8Luft-Wasser-Wärmepumpe und wassergeführter Pelletofen und Photovoltaik-Anlage 17
9Energieeinsparverordnung 2016 oder KFW 55 für Bungalow mit Luft-Wasser-Wärmepumpe & Kontrollierte-Wohnraumlüftung optional Photovoltaik - Seite 247
10Gas mit Solarthermie oder Wärmepumpe? Und eventuell Photovoltaik? 13
11Zusammenarbeit von Luft-Wasser-Wärmepumpe, Photovoltaik-Anlage und Speicher - Seite 338
12Gas mit Solarthermie? oder Wärmepumpe mit Photovoltaik? Beratung 149
13Wärmepumpe + Photovoltaik-Anlage mit oder ohne Speicher 11
14Photovoltaik und Wärmepumpe - Zählerverwirrung und Kostenfrage 12
15Photovoltaik Anlage/ Wärmepumpe, habt ihr 2 Zähler? 55
16Stromzähler bei Wärmepumpe in Kombination mit BAFA und Photovoltaik 22
17Photovoltaik Anlage Luft-Wasser-Wärmepumpe - Rentabilität Einfamilienhaus KFW55EE - Seite 695
18Umstieg von Gas auf Solar / Photovoltaik mit / ohne Wärmepumpe 31
19Photovoltaik Auslegung Wärmepumpe mit berücksichtigen oder nicht? 20
20Kosten für Wärmepumpe und Photovoltaik 2024 im kleinen Altbau - Seite 220

Oben