ᐅ Grundriss Einfamilienhaus ca. 180 m²
Erstellt am: 27.07.17 13:55
Hallo zusammen!
wir überlegen seit einiger Zeit wie unser perfekter Grundriss aussehen könnte. Wir haben dazu schon viele Grundrisse im Internet überflogen und auch unzählige Beiträge hier im Forum studiert um ein Gefühl zu bekommen, was wichtig ist und worauf man achten muss. Bei unseren Überlegungen ist nun der folgende Grundriss herausgekommen. Unsere Gedanken dazu habe ich weiter unten genauer erläutert.
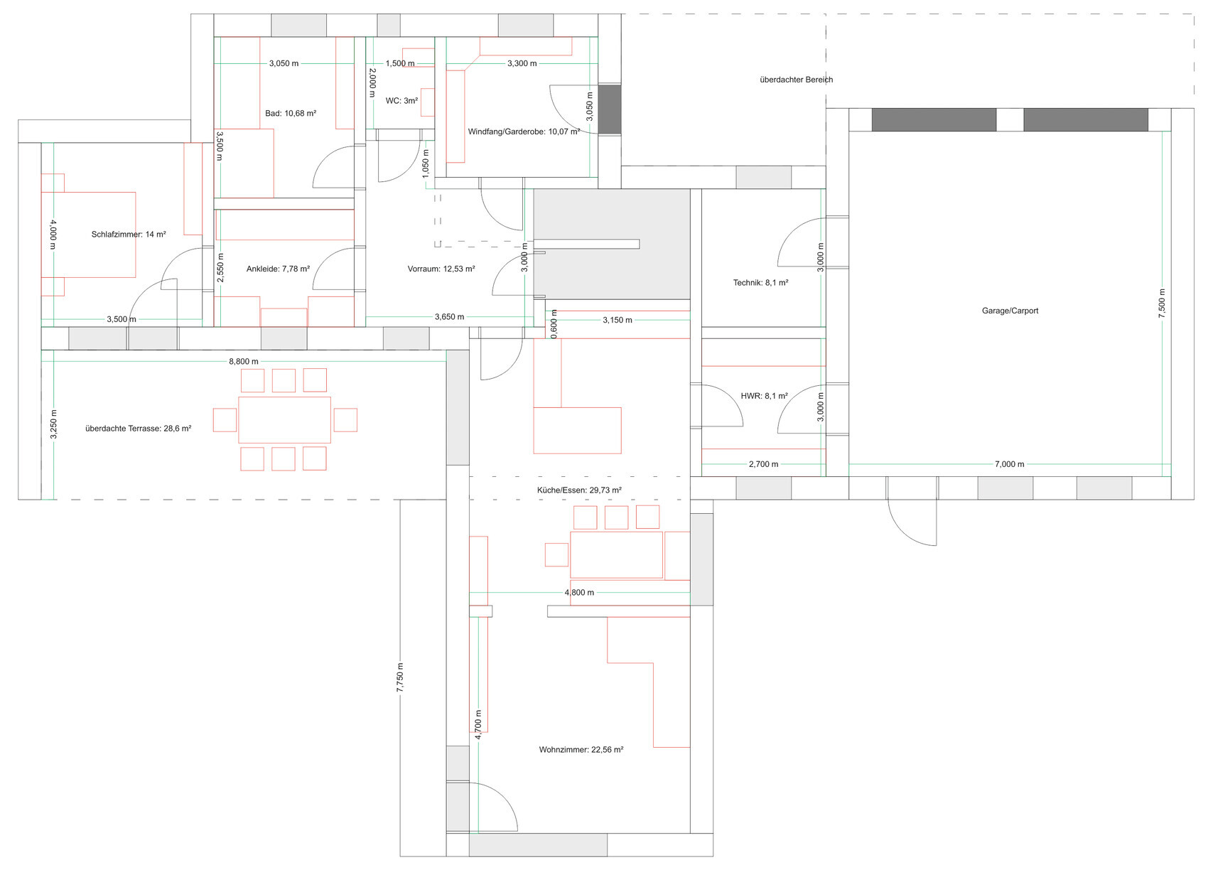
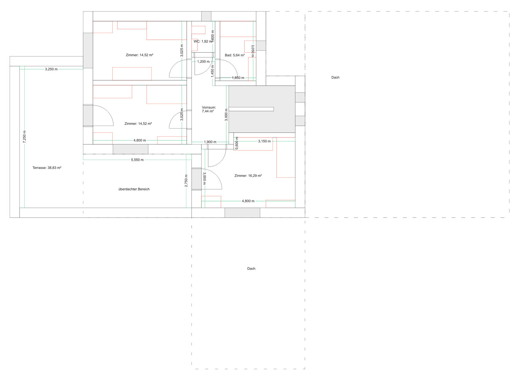
Im Anhang seht ihr unseren Grundrissentwurf, die Ansichten und das Grundstück. Alles von uns erstellt und vor allem dafür da, um uns über unsere Wünsche und Bedürfnisse klar zu werden.
Wir freuen uns über Anregungen und Kritik. Vielen Dank schon mal!!
Bebauungsplan/Einschränkungen
Größe des Grundstücks: ca. 1000 m² geplant, Aufteilung noch frei wählbar
Hang: geringe Neigung nach Süden
Grundflächenzahl: 0,2 – 0,3
Geschossflächenzahl
Baufenster,Baulinieund -grenze
Randbebauung
Anzahl Stellplatz
Geschossigkeit
Dachform: keine Einschränkungen
Stilrichtung: modern
Ausrichtung: siehe Anlage, unten ist Süden
Maximale Höhen/Begrenzungen:
weitere Vorgaben
Anforderungen der Bauherren
Stilrichtung, Dachform, Gebäudetyp: modern, Flachdach oder Walmdach
Keller, Geschosse: 2 Geschosse, Keller noch unklar
Anzahl der Personen, Alter: 4 Personen, 2 Erw. 2 Kinder (2 und 4), 3. Kind nicht ausgeschlossen
Raumbedarf im EG, OG:
Büro: Familiennutzung oder Homeoffice?
Schlafgäste pro Jahr
offene oder geschlossene Architektur
konservativ oder moderne Bauweise
offene Küche, Kochinsel: Kochinsel, Wohn-Essbereich zusammen
Anzahl Essplätze: mind. 6
Kamin: muss nicht sein
Balkon, Dachterrasse: ja
Garage, Carport: entweder oder
weitere Wünsche/Besonderheiten/Tagesablauf, gern auch Begründungen, warum dieses oder das nicht sein soll: wir möchten die Möglichkeit haben Erdgeschoss und Obergeschoss zu trennen. Im Obergeschoss soll es möglich sein, eine kleine Küchenzeile einzubauen und eine Waschmaschine im Bad unterzubringen. Erdgeschoss sollte auch fürs Alter gut nutzbar sein. Überdachte/windgeschützte Terrasse, leichte Zugänglichkeit von der Küche zur Terrasse
Hausentwurf
Von wem stammt die Planung:
-Do-it-Yourself mit Anregungen aus dem Internet
Was gefällt besonders? Warum?: Überdachte Terrasse
Was gefällt nicht? Warum?
Preisschätzung lt Architekt/Planer:
Persönliches Preislimit fürs Haus, inkl Ausstattung: 450000
favorisierte Heiztechnik: Erd- oder Luftwärme
Wenn Ihr verzichten müsst,auf welche Details/Ausbauten
-könnt Ihr verzichten:
-könnt Ihr nicht verzichten:
Warum ist der Entwurf so geworden, wie er jetzt ist?ZB
Ein Gemisch aus vielen Beispielen aus div. Magazinen...
Was ist die grundlegende Frage zum Grundriss in 130 Zeichen zusammengefasst?
Wie gefällt euch der Grundriss? Was sind aus eurer Sicht absolute No-Go’s?







wir überlegen seit einiger Zeit wie unser perfekter Grundriss aussehen könnte. Wir haben dazu schon viele Grundrisse im Internet überflogen und auch unzählige Beiträge hier im Forum studiert um ein Gefühl zu bekommen, was wichtig ist und worauf man achten muss. Bei unseren Überlegungen ist nun der folgende Grundriss herausgekommen. Unsere Gedanken dazu habe ich weiter unten genauer erläutert.
Im Anhang seht ihr unseren Grundrissentwurf, die Ansichten und das Grundstück. Alles von uns erstellt und vor allem dafür da, um uns über unsere Wünsche und Bedürfnisse klar zu werden.
Wir freuen uns über Anregungen und Kritik. Vielen Dank schon mal!!
Bebauungsplan/Einschränkungen
Größe des Grundstücks: ca. 1000 m² geplant, Aufteilung noch frei wählbar
Hang: geringe Neigung nach Süden
Grundflächenzahl: 0,2 – 0,3
Geschossflächenzahl
Baufenster,Baulinieund -grenze
Randbebauung
Anzahl Stellplatz
Geschossigkeit
Dachform: keine Einschränkungen
Stilrichtung: modern
Ausrichtung: siehe Anlage, unten ist Süden
Maximale Höhen/Begrenzungen:
weitere Vorgaben
Anforderungen der Bauherren
Stilrichtung, Dachform, Gebäudetyp: modern, Flachdach oder Walmdach
Keller, Geschosse: 2 Geschosse, Keller noch unklar
Anzahl der Personen, Alter: 4 Personen, 2 Erw. 2 Kinder (2 und 4), 3. Kind nicht ausgeschlossen
Raumbedarf im EG, OG:
Büro: Familiennutzung oder Homeoffice?
Schlafgäste pro Jahr
offene oder geschlossene Architektur
konservativ oder moderne Bauweise
offene Küche, Kochinsel: Kochinsel, Wohn-Essbereich zusammen
Anzahl Essplätze: mind. 6
Kamin: muss nicht sein
Balkon, Dachterrasse: ja
Garage, Carport: entweder oder
weitere Wünsche/Besonderheiten/Tagesablauf, gern auch Begründungen, warum dieses oder das nicht sein soll: wir möchten die Möglichkeit haben Erdgeschoss und Obergeschoss zu trennen. Im Obergeschoss soll es möglich sein, eine kleine Küchenzeile einzubauen und eine Waschmaschine im Bad unterzubringen. Erdgeschoss sollte auch fürs Alter gut nutzbar sein. Überdachte/windgeschützte Terrasse, leichte Zugänglichkeit von der Küche zur Terrasse
Hausentwurf
Von wem stammt die Planung:
-Do-it-Yourself mit Anregungen aus dem Internet
Was gefällt besonders? Warum?: Überdachte Terrasse
Was gefällt nicht? Warum?
Preisschätzung lt Architekt/Planer:
Persönliches Preislimit fürs Haus, inkl Ausstattung: 450000
favorisierte Heiztechnik: Erd- oder Luftwärme
Wenn Ihr verzichten müsst,auf welche Details/Ausbauten
-könnt Ihr verzichten:
-könnt Ihr nicht verzichten:
Warum ist der Entwurf so geworden, wie er jetzt ist?ZB
Ein Gemisch aus vielen Beispielen aus div. Magazinen...
Was ist die grundlegende Frage zum Grundriss in 130 Zeichen zusammengefasst?
Wie gefällt euch der Grundriss? Was sind aus eurer Sicht absolute No-Go’s?
Mir wären das insgesamt gesehen zu viele Türen... Windfang... im Elternbereich sinds gleich vier, die man morgens und abends betätigt... Küche finde ich auch nicht so prickelnd.
Grundsätzlich aber fällt mir auf, dass ich selten ein Haus mit so viel Außenhaut gesehen habe. Kann so etwas nach Energieeinsparverordnung gebaut werden ohne grossartig Kosten in Zusatzdämmung etc verlieren zu müssen?
ich glaube, da stecken auch ordentliche Statikkosten - schliesslich gibt es viele Außenwände im OG, die im EG nicht auf ihrem Pendant stehen.
Grundsätzlich aber fällt mir auf, dass ich selten ein Haus mit so viel Außenhaut gesehen habe. Kann so etwas nach Energieeinsparverordnung gebaut werden ohne grossartig Kosten in Zusatzdämmung etc verlieren zu müssen?
ich glaube, da stecken auch ordentliche Statikkosten - schliesslich gibt es viele Außenwände im OG, die im EG nicht auf ihrem Pendant stehen.
Vielen Dank für die erste Antwort. Zu den Außenwänden im EG: diese stehen (bis auf die im Küchenbereich) immer auf einer Wand im EG (wenn auch Innenwand). Vielleicht ist das im Plan nicht so deutlich zu erkennen.
Sollte möglich sein, die Innenwände im EG so auszuführen, dass das statisch dann kein Problem ist für die Außenwände im OG, oder?
Als Vorlage dient ein Grundriss eines österreichischen Anbieters. Darf man hier Links von solchen Seiten einfügen?
Sollte möglich sein, die Innenwände im EG so auszuführen, dass das statisch dann kein Problem ist für die Außenwände im OG, oder?
Als Vorlage dient ein Grundriss eines österreichischen Anbieters. Darf man hier Links von solchen Seiten einfügen?
Bzgl. der Baubeschreibung dieses Anbieters würden folgende Materialien für die Außenmauern verwendet:
Ziegelmassiv mit hoch wärmedämmendem Fassadensystem • ALTERNATIV sind auch 50er-Ziegel möglich
Was uns bei der Küche ganz gut gefällt, ist die Möglichkeit den Hauswirtschaftsraum als Abstellraum zu nutzen, wenn Besuch da ist etc. Einfach damit alles verschwinden kann. Aber ja die Möblierung ist eventuell nicht so einfach.
Wie gesagt, was uns auch gut gefällt ist die überdachte Terrasse Richtung Süden. Das haben wir jetzt bei unserer Wohnung auch so ähnlich.
Ziegelmassiv mit hoch wärmedämmendem Fassadensystem • ALTERNATIV sind auch 50er-Ziegel möglich
Was uns bei der Küche ganz gut gefällt, ist die Möglichkeit den Hauswirtschaftsraum als Abstellraum zu nutzen, wenn Besuch da ist etc. Einfach damit alles verschwinden kann. Aber ja die Möblierung ist eventuell nicht so einfach.
Wie gesagt, was uns auch gut gefällt ist die überdachte Terrasse Richtung Süden. Das haben wir jetzt bei unserer Wohnung auch so ähnlich.
Interessanter Ansatz, jedoch gefällt mir der Zugang überhaupt nicht.
Man schafft sich sozusagen einerseits mit einem separaten Elternbereich eine gewisse Zurückgezogenheit, andererseits liegt er mit den Zugängen zu Ankleide UND Bad über den Vorraum völlig auf dem Präsentierteller.
Bei solch einer Grundfläche würde ich immer versuchen, die Privaträume auszugliedern und nicht über den Eingangsbereich zu erschließen.
Wieso überhaupt einen Windfang UND Vorraum, wenn beides nacheinander kommt und o.g. Zonen auch nicht geschaffen werden?
Als erste Überlegung mal ein schneller Vorschlag:
- Ankleide und Bad wird getauscht, Erschließung des Elternbades dann über die Ankleide selber, so wird der Elternbereich auch wirklich abgegliedert.
- Zugang wird mit Technik getauscht, dadurch werden die Privaträume abgetrennt.
- Alternativ könnte man die Treppe immer noch an der ursprünglichen Stelle lassen und der Technikraum bleibt komplett planoben, da wo bei deinem Plan Windfang + WC ist.
Da müsste man jetzt schauen, ob man mit den Außenmaßen so hin kommt, Vorlauf wäre das ein oder andere anzupassen, aber da sind bei der Außenhülle ja genügend Ecken, die man ändern könnte...
Grüße

Man schafft sich sozusagen einerseits mit einem separaten Elternbereich eine gewisse Zurückgezogenheit, andererseits liegt er mit den Zugängen zu Ankleide UND Bad über den Vorraum völlig auf dem Präsentierteller.
Bei solch einer Grundfläche würde ich immer versuchen, die Privaträume auszugliedern und nicht über den Eingangsbereich zu erschließen.
Wieso überhaupt einen Windfang UND Vorraum, wenn beides nacheinander kommt und o.g. Zonen auch nicht geschaffen werden?
Als erste Überlegung mal ein schneller Vorschlag:
- Ankleide und Bad wird getauscht, Erschließung des Elternbades dann über die Ankleide selber, so wird der Elternbereich auch wirklich abgegliedert.
- Zugang wird mit Technik getauscht, dadurch werden die Privaträume abgetrennt.
- Alternativ könnte man die Treppe immer noch an der ursprünglichen Stelle lassen und der Technikraum bleibt komplett planoben, da wo bei deinem Plan Windfang + WC ist.
Da müsste man jetzt schauen, ob man mit den Außenmaßen so hin kommt, Vorlauf wäre das ein oder andere anzupassen, aber da sind bei der Außenhülle ja genügend Ecken, die man ändern könnte...
Grüße
Ähnliche Themen