ᐅ Unser anvisierter Grundriss - bitte um Einschätzungen
Erstellt am: 12.05.16 16:57
Sofern wir uns für eine aktuelle Kaufoption eines Grundstücks entscheiden, wäre dieser Haustyp mit den unten angehängten Grundrissen im Moment unsere erste Wahl. Ein Kompromiss aus benötigten Räumen und Preis. So 100% würden wir den Grundriss aber erst mal nicht übernehmen wollen - inwieweit Änderungen dann tatsächlich möglich sind, bestimmt ja auch das Budget gerade vor dem Hintergrund der sowieso schon hier heftigen Quadratmeterpreise. Extrem großzügig wird unser Spielraum für Upgrades also nicht sein...
Bebauungsplan/Einschränkungen
Größe des Grundstücks 550 qm
Hang minimal
Grundflächenzahl
Geschossflächenzahl
Baufenster, Baulinie und -grenze: Haus wäre auf jeden Fall so realisierbar
Randbebauung
Anzahl Stellplatz
Geschossigkeit : wäre alles möglich
Dachform: keine Vorgaben
Stilrichtung
Ausrichtung
Maximale Höhen/Begrenzungen
weitere Vorgaben
Anforderungen der Bauherren
Stilrichtung, Dachform, Gebäudetyp: EFM, Satteldach erst mal anvisiert
Keller, Geschosse: Keller ist noch fraglich, 2 Vollgeschosse wären natürlich toll
Anzahl der Personen, Alter: wir sind 2 Erwachsene, 1 Kind + 1 Baby , Max. 1 kommt noch evtl hinzu
Raumbedarf im EG, OG: mind. 2 Kinderzimmer, Büro absolut notwendig
Büro: Familiennutzung oder Homeoffice? berufsbedingt Büro notwendig, Nutzung als Gästezimmer in der Überlegung
Schlafgäste pro Jahr: durchaus mehrmals vorhanden
offene oder geschlossene Architektur: will eine geschlossene Küche!
konservativ oder moderne Bauweise: hm
offene Küche, Kochinsel: geschlossene Küche
Anzahl Essplätze: Tisch in der Küche mit 4 Stühlen, an Esstisch sollen 6 Stühle
Kamin: nein
Musik/Stereowand: nicht extrem wichtig
Balkon, Dachterrasse: nee
Garage, Carport: Garage soll bei Keller in den Keller integriert werden,
Nutzgarten, Treibhaus: nee
weitere Wünsche/Besonderheiten/Tagesablauf:
Hausentwurf
Von wem stammt die Planung:
-Planer eines Bauunternehmens Planung aus Baureihe eines GU
-Architekt
-Do-it-Yourself von Euch
Was gefällt besonders? ein eventuelles drittes Kind plötzlich möglich
Was gefällt nicht?: Küche ist mir zu klein, zu wenige Fenster?
Preisschätzung lt Architekt/Planer: soll so ohne Maler- und Bodenarbeiten 227.000 Euro kosten
Persönliches Preislimit fürs Haus, inkl Ausstattung:
favorisierte Heiztechnik: jedenfalls keine Erdwärmepumpe
Wenn Ihr verzichten müsst, auf welche Details/Ausbauten
-könnt Ihr verzichten: Bad oben ginge auch kleiner, Gästezimmer nicht unbedingt notwendig
-könnt Ihr nicht verzichten: wir brauchen 2 Duschbäder, ich will die Möglichkeit haben, einen kleinen Tisch in die Küche zu stellen
--- --- --- ---- --- --- --- ---
Vielleicht könnt ihr uns eure Einschätzung zu folgenden Aspekten geben:
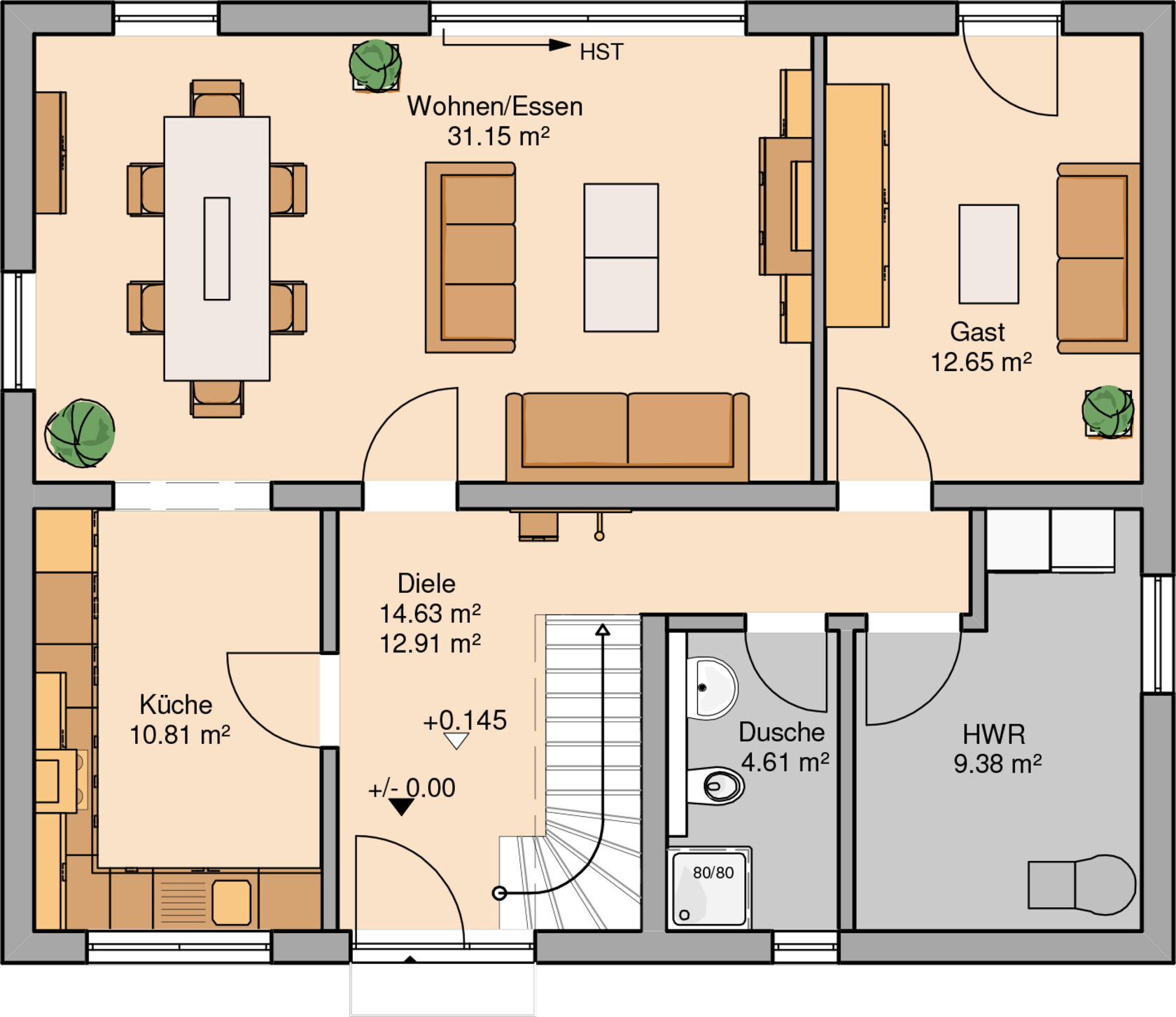
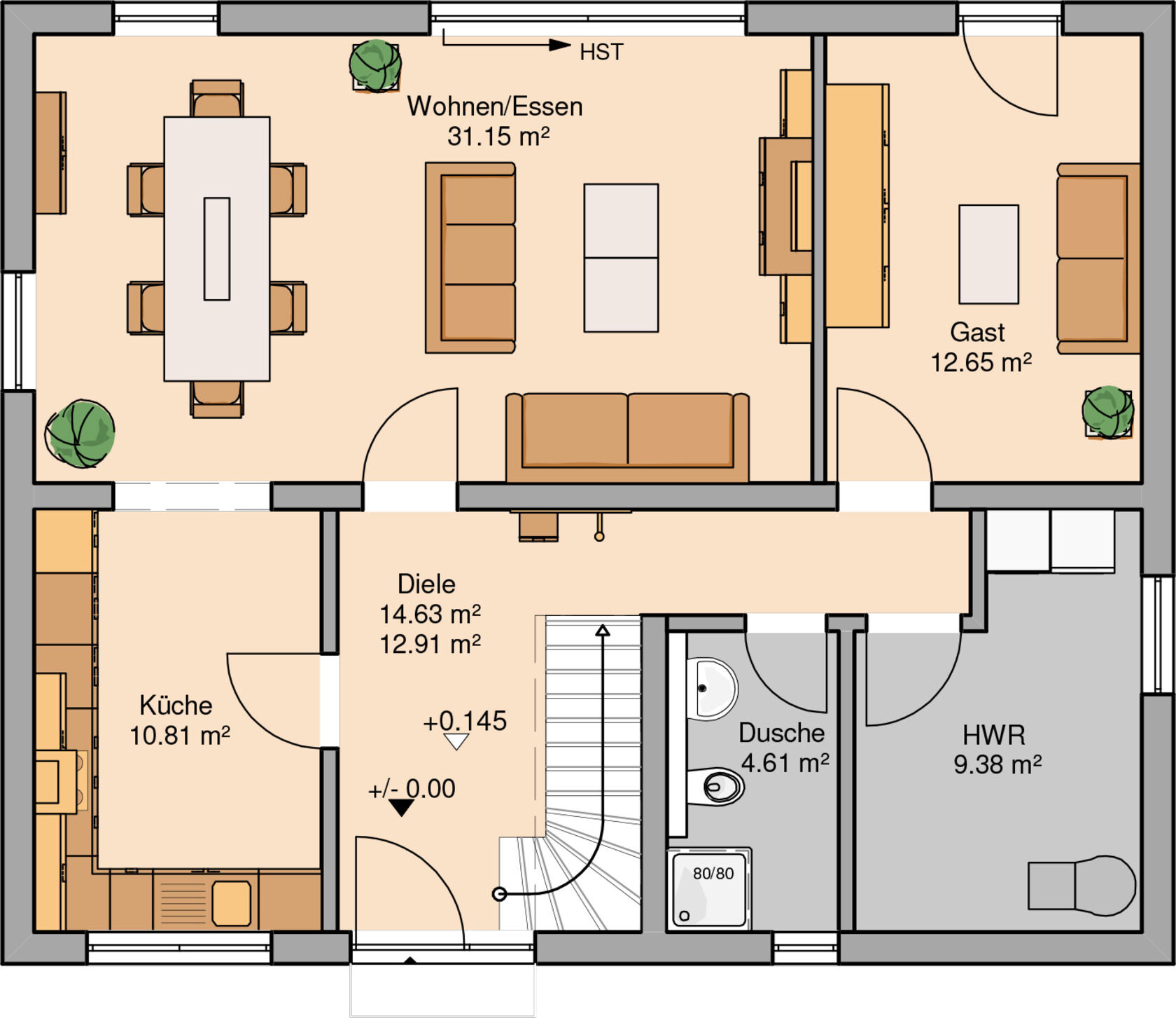
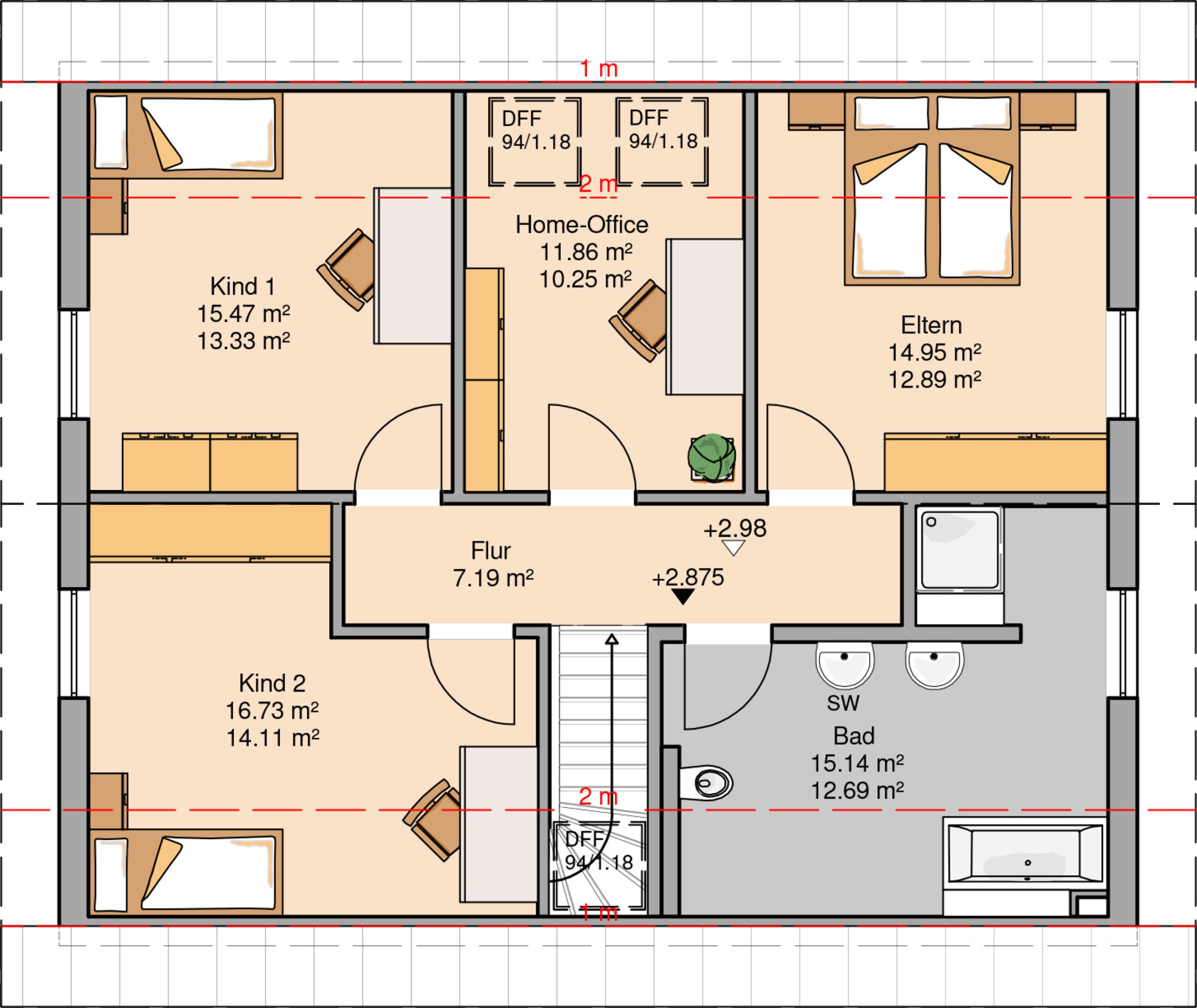
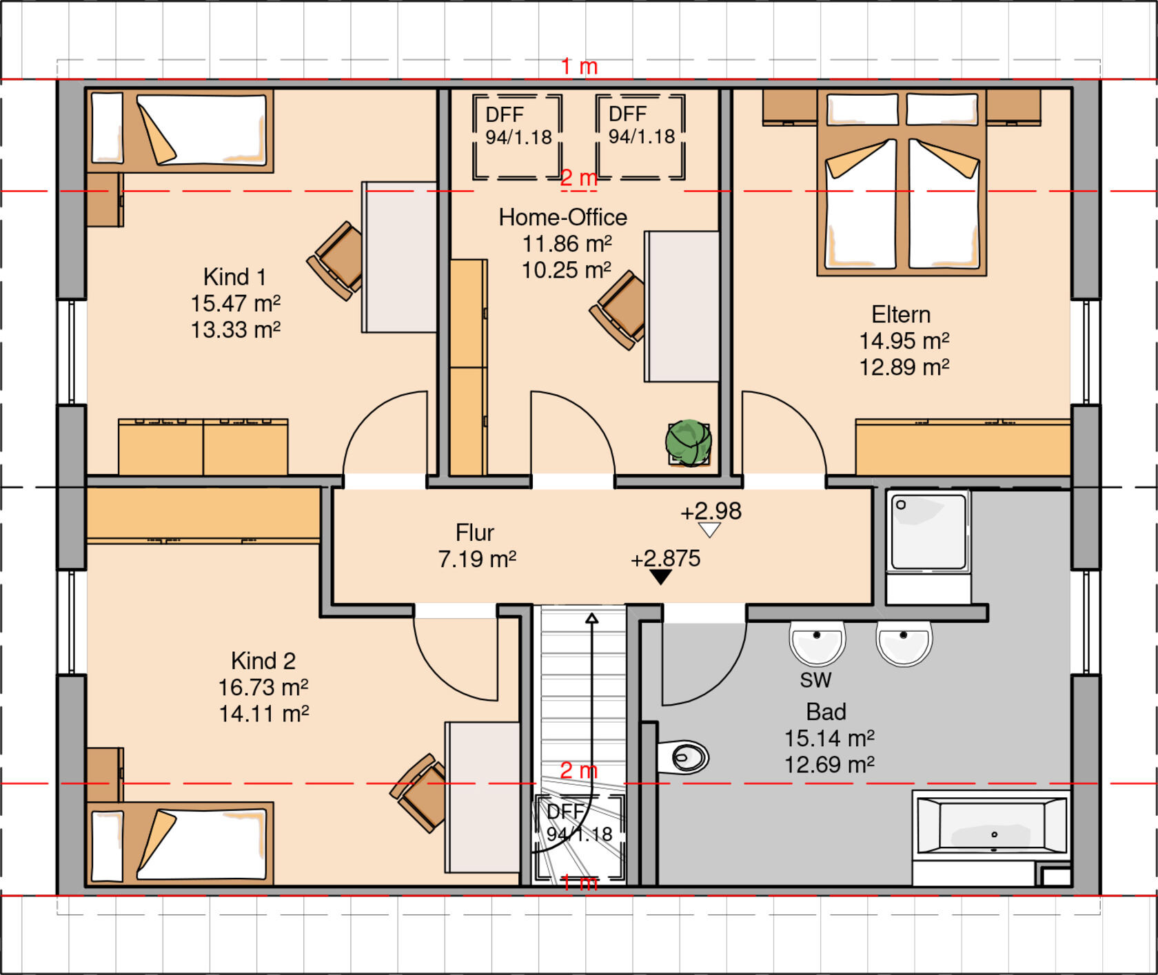
1. Mit 152 qm Grundfläche ist das Haus ja nicht "klein" - dennoch haben wir auch schon Stimmen gehört, dass die Kinderzimmer zu klein wäre, der Wohn-Essbereich auch eher klein ausfällt und für eine Spielecke kaum Platz ist und dass die Küche zu klein ist; auch sei der Eingangsbereich für eine Familie von 4 Leiten und entsprechenden Jacken, Schuhen, Schrankbedarf zu klein. Erscheint euch das auf den ersten Blick auch so?
2. Ich möchte unbedingt eine geschlossene Küche und das wäre laut GU auch hier problemlos möglich. Ich möchte aber auch in der Küche einen kleinen Tisch mit 4 Stühlen haben. Ich will nicht jeden Tag mit den Kindern morgens schon den Essbereich im Wohnzimmer versauen, sondern lieber schnell mal die Küche fegen können. Ich bin bzgl der Küchenplanung noch offen für alles. Ich bin keine Meisterköchin, das ist auch nicht mein Hobby und ich benötige definitiv keine Luxus-Küche mit allen Finessen. Ich möchte aber unbedingt eben diesen kleinen Tisch mit 4 Essplätzen. Aber ob sich das auf knapp 11 qm realisieren lässt?
3. Da ich fürchte, dass die Küche zu klein dafür ist, hatten wir folgende Überlegung: Die 12 qm Gästezimmer werden zum Wohnzimmer gemacht, also die Wand würde einfach wegfallen. Dafür würden wir die Küche Richtung Wohnzimmer verlängern. Macht das Sinn?
4. Einige Stimmen zum Grundriss meinten, dass da zu wenige Fenster drin sind und dass das kein sehr helles Haus sein wird. Helligkeit wäre mir aber schon wichtig. Es dürfte ja rein architektonisch sicher möglich sein, in der Küche noch ein Fenster mehr reinzubauen und auch die Kinderzimmer mit einem Dachfenster zu versehen, oder? Aber habt ihr einen Anhaltspunkt für uns, was solche zusätzlichen Fenster kosten? Reden wir da noch 500 Euro oder eher von 5000 Euro pro Fenster oder ganz was anderes?
Danke für jede Meinung!


Bebauungsplan/Einschränkungen
Größe des Grundstücks 550 qm
Hang minimal
Grundflächenzahl
Geschossflächenzahl
Baufenster, Baulinie und -grenze: Haus wäre auf jeden Fall so realisierbar
Randbebauung
Anzahl Stellplatz
Geschossigkeit : wäre alles möglich
Dachform: keine Vorgaben
Stilrichtung
Ausrichtung
Maximale Höhen/Begrenzungen
weitere Vorgaben
Anforderungen der Bauherren
Stilrichtung, Dachform, Gebäudetyp: EFM, Satteldach erst mal anvisiert
Keller, Geschosse: Keller ist noch fraglich, 2 Vollgeschosse wären natürlich toll
Anzahl der Personen, Alter: wir sind 2 Erwachsene, 1 Kind + 1 Baby , Max. 1 kommt noch evtl hinzu
Raumbedarf im EG, OG: mind. 2 Kinderzimmer, Büro absolut notwendig
Büro: Familiennutzung oder Homeoffice? berufsbedingt Büro notwendig, Nutzung als Gästezimmer in der Überlegung
Schlafgäste pro Jahr: durchaus mehrmals vorhanden
offene oder geschlossene Architektur: will eine geschlossene Küche!
konservativ oder moderne Bauweise: hm
offene Küche, Kochinsel: geschlossene Küche
Anzahl Essplätze: Tisch in der Küche mit 4 Stühlen, an Esstisch sollen 6 Stühle
Kamin: nein
Musik/Stereowand: nicht extrem wichtig
Balkon, Dachterrasse: nee
Garage, Carport: Garage soll bei Keller in den Keller integriert werden,
Nutzgarten, Treibhaus: nee
weitere Wünsche/Besonderheiten/Tagesablauf:
Hausentwurf
Von wem stammt die Planung:
-Planer eines Bauunternehmens Planung aus Baureihe eines GU
-Architekt
-Do-it-Yourself von Euch
Was gefällt besonders? ein eventuelles drittes Kind plötzlich möglich
Was gefällt nicht?: Küche ist mir zu klein, zu wenige Fenster?
Preisschätzung lt Architekt/Planer: soll so ohne Maler- und Bodenarbeiten 227.000 Euro kosten
Persönliches Preislimit fürs Haus, inkl Ausstattung:
favorisierte Heiztechnik: jedenfalls keine Erdwärmepumpe
Wenn Ihr verzichten müsst, auf welche Details/Ausbauten
-könnt Ihr verzichten: Bad oben ginge auch kleiner, Gästezimmer nicht unbedingt notwendig
-könnt Ihr nicht verzichten: wir brauchen 2 Duschbäder, ich will die Möglichkeit haben, einen kleinen Tisch in die Küche zu stellen
--- --- --- ---- --- --- --- ---
Vielleicht könnt ihr uns eure Einschätzung zu folgenden Aspekten geben:
1. Mit 152 qm Grundfläche ist das Haus ja nicht "klein" - dennoch haben wir auch schon Stimmen gehört, dass die Kinderzimmer zu klein wäre, der Wohn-Essbereich auch eher klein ausfällt und für eine Spielecke kaum Platz ist und dass die Küche zu klein ist; auch sei der Eingangsbereich für eine Familie von 4 Leiten und entsprechenden Jacken, Schuhen, Schrankbedarf zu klein. Erscheint euch das auf den ersten Blick auch so?
2. Ich möchte unbedingt eine geschlossene Küche und das wäre laut GU auch hier problemlos möglich. Ich möchte aber auch in der Küche einen kleinen Tisch mit 4 Stühlen haben. Ich will nicht jeden Tag mit den Kindern morgens schon den Essbereich im Wohnzimmer versauen, sondern lieber schnell mal die Küche fegen können. Ich bin bzgl der Küchenplanung noch offen für alles. Ich bin keine Meisterköchin, das ist auch nicht mein Hobby und ich benötige definitiv keine Luxus-Küche mit allen Finessen. Ich möchte aber unbedingt eben diesen kleinen Tisch mit 4 Essplätzen. Aber ob sich das auf knapp 11 qm realisieren lässt?
3. Da ich fürchte, dass die Küche zu klein dafür ist, hatten wir folgende Überlegung: Die 12 qm Gästezimmer werden zum Wohnzimmer gemacht, also die Wand würde einfach wegfallen. Dafür würden wir die Küche Richtung Wohnzimmer verlängern. Macht das Sinn?
4. Einige Stimmen zum Grundriss meinten, dass da zu wenige Fenster drin sind und dass das kein sehr helles Haus sein wird. Helligkeit wäre mir aber schon wichtig. Es dürfte ja rein architektonisch sicher möglich sein, in der Küche noch ein Fenster mehr reinzubauen und auch die Kinderzimmer mit einem Dachfenster zu versehen, oder? Aber habt ihr einen Anhaltspunkt für uns, was solche zusätzlichen Fenster kosten? Reden wir da noch 500 Euro oder eher von 5000 Euro pro Fenster oder ganz was anderes?
Danke für jede Meinung!
D
DragonyxXL12.05.16 17:33Mizit schrieb:
1. Mit 152 qm Grundfläche ist das Haus ja nicht "klein" - dennoch haben wir auch schon Stimmen gehört, dass die Kinderzimmer zu klein wäre, der Wohn-Essbereich auch eher klein ausfällt und für eine Spielecke kaum Platz ist und dass die Küche zu klein ist; auch sei der Eingangsbereich für eine Familie von 4 Leiten und entsprechenden Jacken, Schuhen, Schrankbedarf zu klein. Erscheint euch das auf den ersten Blick auch so?
2. Ich möchte unbedingt eine geschlossene Küche und das wäre laut GU auch hier problemlos möglich. Ich möchte aber auch in der Küche einen kleinen Tisch mit 4 Stühlen haben. Ich will nicht jeden Tag mit den Kindern morgens schon den Essbereich im Wohnzimmer versauen, sondern lieber schnell mal die Küche fegen können. Ich bin bzgl der Küchenplanung noch offen für alles. Ich bin keine Meisterköchin, das ist auch nicht mein Hobby und ich benötige definitiv keine Luxus-Küche mit allen Finessen. Ich möchte aber unbedingt eben diesen kleinen Tisch mit 4 Essplätzen. Aber ob sich das auf knapp 11 qm realisieren lässt?
3. Da ich fürchte, dass die Küche zu klein dafür ist, hatten wir folgende Überlegung: Die 12 qm Gästezimmer werden zum Wohnzimmer gemacht, also die Wand würde einfach wegfallen. Dafür würden wir die Küche Richtung Wohnzimmer verlängern. Macht das Sinn?Die Kinderzimmer sind klein (unsere werden genauso klein), aber nicht ZU klein. Ca. 14m² stellen wohl das Minimum für ein Kinderzimmer dar. 2-3 m² würden sicher nicht schaden, insbesondere da ihr keine weiteren "Kammern" für Kram habt. Wenn man in die Kinderzimmer richtige Betten 1,2-1,6m reinstellt geht noch mal einiges an Platz verloren.
Der Wohn-Essbereich wäre mir fast groß genug, wobei man frontal auf das Sofa darauf läuft. Um etwas Raum zum manövrieren zu bekommen müsste man die Sofaecke enger stellen, was dann aber auch eng werden könnte.
Brauchen eure Kinder eine Spielecke?
Die Küche hat genügend Platz ohne den Tisch. Wenn der Tisch (wenn auch ein Kleiner) noch rein soll, wird es 2-3m² mehr brauchen (allerdings eher in der breite als Richtung Wohnzimmer).
Der Eingangsbereich bietet tatsächlich wenig Möglichkeiten Garderoben zu stellen. Eigentlich ist ja nur unter der Treppe etwas Platz und das ist nicht viel.
Wenn ihr auf das Gästezimmer verzichten könntet, dann tut das auch. Gibt euch mehr Raum für alle benannten Engpässe im EG.
B
Bauexperte12.05.16 19:27DragonyxXL schrieb:
Die Kinderzimmer sind klein (unsere werden genauso klein), aber nicht ZU klein. Ca. 14m² stellen wohl das Minimum für ein Kinderzimmer dar. Oh bitte .... wenn das der Wahrheit entspräche, wären ganze Generationen vor euch ja fürs Leben geschädigt Was hat denn die Größe eines Kinderzimmer mit der Entwicklung eines heranwachenden Menschen zu tun? Nur, weil die Zimmer dieser Tage vermeintlich größer "zu sein haben" bekommen Eltern immer noch nicht mit, was sie interessiert ...
Grüße, Bauexperte
Mizit schrieb:
?..
Preisschätzung lt Architekt/Planer: soll so ohne Maler- und Bodenarbeiten 227.000 Euro ...
4. Einige Stimmen zum Grundriss meinten, dass da zu wenige Fenster drin sind und dass das kein sehr helles Haus sein wird. Helligkeit wäre mir aber schon wichtig. Es dürfte ja rein architektonisch sicher möglich sein, in der Küche noch ein Fenster mehr reinzubauen und auch die Kinderzimmer mit einem Dachfenster zu versehen, oder? Aber habt ihr einen Anhaltspunkt für uns, was solche zusätzlichen Fenster kosten? Reden wir da noch 500 Euro oder eher von 5000 Euro pro Fenster oder ganz was anderes?
Danke für jede Meinung!Habt ihr überhaupt mal einen verbindlichen Termin bei Kern gehabt?
Die Infos, die Du hast bzw nennst, hören sich nach einem unverbindlichen Telefonat an.
Der Preis ist ein Ab-Preis, der steht im Katalog.
Mit Sicherheit bleibt ihr nicht bei den wenigen Steckdosen, obwohl ich nicht weiß, ob Kern mehr anbietet als jeder andere, nämlich den kleinen Standard. Dann kommt dies, jenes... Das müssen noch nicht einmal Highlights sein, aber ich schwöre, der Preis wird es nicht sein.
Allerdings war das nicht Deine Frage, nur kommt es mir vor, dass es schon Euer Limit ist.
Wie viel Änderungen kosten, muss Kern Euch sagen. Bei uns konnten wir alle Fenster kostenlos verbreitern. 3 Fenster zusätzlich waren auch im Budget, das sieht aber bei anderen Hausanbietern ganz anders aus: ob 300 oder 3000, es könnte irgendwo dazwischen liegen.
Kern baut laut Website individuell, insofern sollen die Euch das Haus mit möblierbarer Küche planen.
Und ja, oben sind Defizite bei den Fensterbreiten sowie Platzmangel im Schlafzimmer, dafür ein zu großes Bad.
DAchflächenfenster sind übrigens nicht die günstigste Variante.
Kommt denn nur dieser Hausanbieter in Frage?
Ähnliche Themen