Grundriss unseres Bungalows

4,60 Stern(e) 5 Votes
Zuletzt aktualisiert 22.12.2025
Sie befinden sich auf der Seite 13 der Diskussion zum Thema: Grundriss unseres Bungalows
>> Zum 1. Beitrag <<

sommer2017

sommer2017

Ach so, meine Verlobte bringt gerade vor, dass es schön wäre, wenn das Gäste-/ Nähzimmer mind. 12qm und das Kinderzimmer mind. 14qm hätte.

@kbt09
Die Terrasse hätte in den Abendstunden keine Sonne mehr... ich denke diese sollte auch in SW (gerne über Eck) ausgerichtet sein.
 
kbt09

kbt09

Na ja, Terrassenausrichtungen und über Eck gehen, das ist Feintuning.

Im übrigen hat die Terrasse auch Westsonne .. Lage gedreht:

Luftbild eines Wohnquartiers mit Messpolygon links; daneben Gebäudegrundriss auf grünem Grundstück.




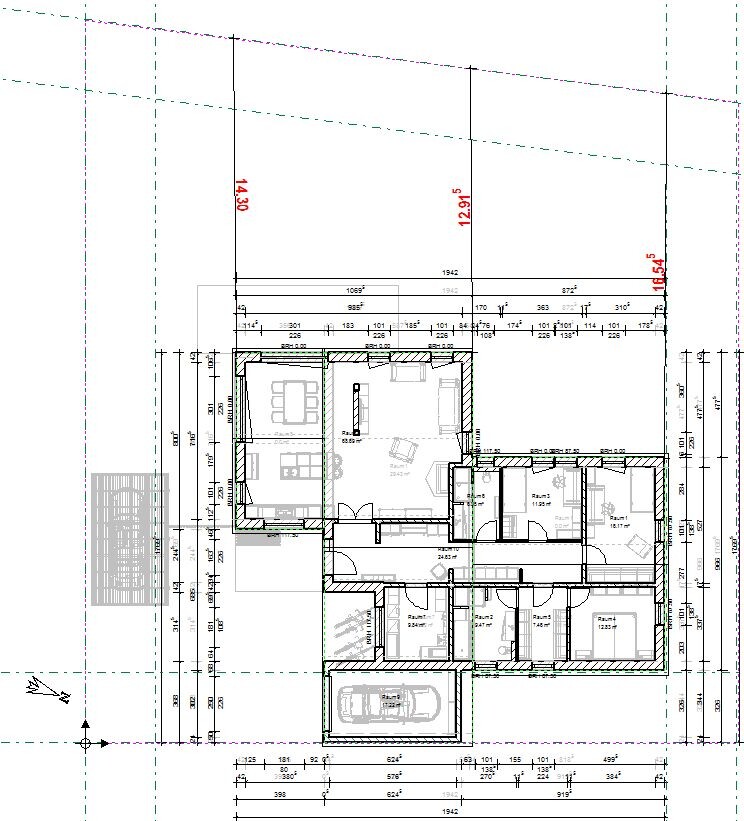
Warum soll eigentlich bei dem Grundstück Südwest die beste Blickrichtung sein. Ich hätte jetzt Nordwest gesagt. Das Grundstück entspricht doch komplett dem weiß umrandetem Teil - oder?

-----------------
Zu den anderen Punkten:

Grundriss eines Hauses mit Küche/Essen/Wohnen, Flur, Diele, HWR, Eltern-/Gästezimmer, Bad, Garage.


Im Wohnzimmerbereich sind genau 2 Türen (so wie in der anderen Planung auch ). Den reinen Wohnzimmerbereich könnte man sogar abtrennen und zur Ruhezone machen.

Genauso könnte man den Eingangsbereich als Windfang ausbilden.

Warum Kinderzimmer nur 14 qm? Jetzt sind es 15,5 qm .. ok, Gastzimmer nur knapp 10 qm. Müsste man halt mal mit den passenden Möbeln möblieren.
 
Y

ypg

@sommer2017
Deine Wünsche und die Deiner Frau sollen gern berücksichtigt werden. Aber manches ist eben nicht mit anderen Dingen umsetzbar.
Du kannst nicht die Grundfläche reduzieren zugunsten eines Gewinnes von einem Meter Tiefe im Garten, und zugleich Mindestmaße einfordern. Heißt:
Es ist nicht möglich, aus drei Ecken ein Quadrat zu zaubern, genauso wie 2+2 nicht gleich 5 ergeben.
Wenn ein brauchbarer Entwurf herauskommt, kann man nicht um ein oder 2 Quadratmeter feilen. Vieles ergibt sich aus den Rahmenbedingungen wie Ausrichtung und Grundstücksgrenzen, Abstände auch. Da fällt dann das ein oder andere mal anders aus als das geträumte Wunschhaus.
Kerstin und ich besitzen aus der Erfahrung heraus viel Emphatie zu anderen Lebensgewohnheiten - ein nicht erwähnter Wunsch von zB 2qm erzielt ein ganz anderes Ergebnis.
 
Y

ypg

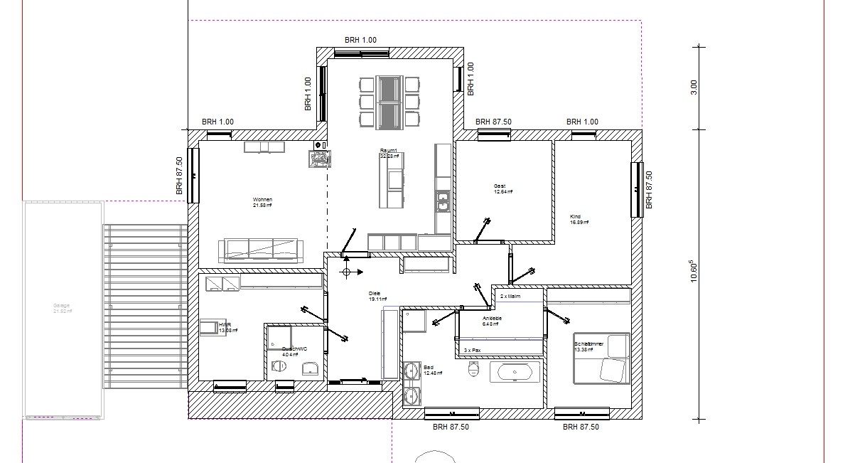
So, ich habe es noch mal versucht, den Flur kurz zu halten. Mit Ruhezone Kind und Ruhezone Schlafzimmer. Flurbreite 1,20 (RBM), zur Not kann man noch eine Tür vor den Gang setzen, wo der Einbauschrank angedeutet ist.
Hauswirtschaftsraum hat Platz für Technik, aber auch eine Wand für Ablageschrank und Regale. Gleiches gilt für die Garderobe (2,5 Meter Breite), 3 x Pax passt in die Ankleide, wie auch ins Gästezimmer und Schlafzimmer. Sogar im WZ würde ein Schrankklotz passen. Gast/Näh ü12qm, Kind ü16qm. Schrankwände alle plus 10/20cm RBM in der Zeichnung.
Fenster fast alle 2 Meter, die kleineren 1,20 bzw 88er Terrassentüren.
Die angezeigten Wohnflächen zeigen die Nettofläche an, das heisst, es ist schon Putz von 1,5cm an jeder Wand abgezogen.
Hausbreite 16,64 m, Länge 10,60 + 3 m Erker.
Möbel: Bett 1,96; Tresen 2,0 x 0,9, Tisch 1 x 2, Sofa 3,3...
Abstand Gebäudeecke links gerade hoch zur Grenze: 16,70 m
überbaute Fläche ohne Garage: 185qm. Garage 3 x 8, Carport 3 x 6.
Wohnfläche ca. 151qm.
Man könnte Tür in den Hauswirtschaftsraum setzen, aber ich würde es nicht empfehlen, da Stellfläche verringert wird und: wer will sich schon durch die Wäsche ins Haus wursteln?
Terrasse kann man planen, wo man will, ob über Eck oder am Nordzipfel...
Haus ist zur Not erweiterbar, entweder planoben, -rechts oder -unten.
Allerdings kann man ja überlegen, die gesparten Kosten in einen geöffneten Giebel + Dreiecksfenster zu investieren

P.s. Kind sind 2 qm kritisch, ich weiss

Einfamilienhaus mit weißer Fassade, dunklem Ziegeldach, Garage links, Kiesweg zur Tür, Baum im Garten

3D-Modell eines weißen Hauses mit braunem Dach und gepflasterte Terrasse auf grünem Rasen.

Einfamilienhaus mit dunklem Ziegeldach, weißen Wänden, Stein-Patio und Carport auf grünem Rasen

Grundriss eines Hauses aus Vogelperspektive: offene Küche mit Insel, Esstisch, blaues Sofa

Top-down Minecraft-Hausgrundriss: mehrere Zimmer, Treppen, Küche, Essbereich, Bad, Wohnzimmer.

Grundriss eines Hauses: Wohnzimmer, Küche, Diele, Bad, Schlaf- und Kinderzimmer, Ankleide.
 
Zuletzt bearbeitet:
kbt09

kbt09

Finde ich ja witzig ... ich habe jetzt auch eine Form mit ein paar mehr Ecken . Leider wird mein Dach nicht sauber dargestellt. Daher keine Ansichten von allen Seiten.

Auch meine Variante ist weiter nach links gerutscht. Ziel war es, das Gästebad näher Richtung Kinder/Gastzimmer zu bringen. Ich finde es nämlich nicht so toll, wenn man vom Kinderzimmer bis zur Haustür muss, wenn man morgens ins Bad will.

Die Diele ist mit 24,6 qm zwar nur knapp 1 qm kleiner als Diele und Kammer in Sommer2017 letzter Variante. Allerdings waren in Sommer2017s letzter Variante diese Elemente nur 125 cm breit und ließen sich schlecht nutzen, außer zum Durchgehen . Auf jeden Fall ist die Flurlänge von ca. 730 auf 490 cm verringert.

Garage, etwas schmaler, wieder planunten. Durch die Linie ergibt sich vorm Hauswirtschaftsraum eine Nische. Da könnten z. B. Fahrräder / Mülltonnen stehen. Evtl. mal mit einer Gittertür verschlossen.

Die Abstände nach planoben habe ich entsprechend eingetragen.

Grundriss eines Einfamilienhauses: Wohnen/Essen/Kochen, Eltern- und Kinderzimmer, Bad, Garage.


@ypg .. hast du dir auch die VA Software zugelegt? Unsere Einrichtungssymbole sehen sich so ähnlich

Modernes weißes Haus mit grauem Dach, Carport mit rotem Auto, grüne Wiese und Himmel.


Weißes Einfamilienhaus mit dunklem Dach, großer grüner Rasen, Terrasse und rotes Auto am Carport


3D-Render einer modernen weißen Villa mit Glasfront, Terrasse und Carport mit rotem Auto.


Lageplan eines Hauses mit Dach, Hof und Grünfläche von oben


3D-Hausgrundriss: Grundriss mit Wohnzimmer, Küche, Flur, Schlafzimmer, Bad, Garage und Garten.


3D-Hausgrundriss: Wohnzimmer, Küche, Essbereich, Schlafzimmer, Bad, Garage mit Autos, Garten.


Durch Glasfront sichtbarer Innenraum: großer Holztisch mit Stühlen rundum, Küchenbereich.


Grundriss eines Hauses mit Wohnzimmer, Küche, Bad, mehreren Schlafzimmern und Garage.
 
Zuletzt bearbeitet:
B

Bieber0815

Aber somit werde ich mir gerade bewusst, dass wir mit diesen Vorstellungen/ Wünschen wohl einen langen Flur in Kauf nehmen müssen... oder wie siehst du das?
Die Anforderung lautet "erhöhter Schallschutz". Ein langer Flur kann eine Lösung sein, ist aber sicher nicht die einzige. Also
- Innenwände Kalksandstein mit Putz (nicht nur Dünnputz, richtiger, herkömmlicher Innenputz)
- Gedämmte/Entkoppelte Sanitärinstallation,
- Schall-Ex-Innentüren mit Absenkdichtung,
- Bodenbeläge, die "leise" sind (Kork, Textil/Auslegware/Teppich),

Das Problem ist jetzt nur noch, einen geeigneten Planer und geeignete Firmen (GU?) zu finden, die sich auskennen und das Ganze mit Euch angehen wollen. Es ist nicht mehr Null-Acht-Fünfzehn ...

Noch mal: Sucht euch den richtigen Baupartner (Architekt, GU, ...) und vereinbart explizit schriftlich "erhöhten Schallschutz". Das sollte dann nicht nur geschrieben stehen, der Partner sollte auch können und wollen.
 
Zuletzt aktualisiert 22.12.2025
Im Forum Grundrissplanung / Grundstücksplanung gibt es 2554 Themen mit insgesamt 88554 Beiträgen


Ähnliche Themen zu Grundriss unseres Bungalows
Nr.ErgebnisBeiträge
1 2 Vollgeschosse, Durchgang Garage, Hauswirtschaftsraum unter Treppe 25
2Grundrissplanung für schmales Grundstück, 2. Versuch. 14
3Einfamilienhaus ~190qm, drei Kinderzimmer, ohne Keller - Feedback wäre mega - Seite 219
4Grundriss 170m2 - Hauswirtschaftsraum zu klein? Verbesserungsvorschläge? - Seite 642
5Bungalow Einfamilienhaus 140qm - Grundrissideen erwünscht - Seite 226
6Terrasse vom Nachbar grenzt an Garage 11
7Haus, Garage / Carport auf dem Grundstück platzieren 93
8Zugang von der Garage in den Hauswirtschaftsraum - Seite 449
9Grundriss mit Garage auf Grundstück realisierbar? 29
10Grundrissentwurf eines Passivhauses 170m² mit Garage - Seite 218
11Grundrissplanung für schmales Grundstück 16
12130 m² Bungalow mit Doppelcarport bei 600m² Grundstück? - Seite 364
13200m2 Einfamilienhaus für 4-5 Personen ohne Keller auf schmalem Grundstück 67
14Neubau Einfamilienhaus 160-170qm, 3 Kinderzimmer 39
15Grundriss 3 Kinderzimmer Einfamilienhaus - Potenziale? 43
16Grundriss Einfamilienhaus 155m², ohne Keller, 3 Kinderzimmer, 1 Büro - Seite 538
17Grundrissplanung mit enger werdendem Grundstück - Seite 223
18Grundrissplanung Einfamilienhaus ca. 170 m² auf schmalem 750m² Grundstück - Seite 559
19Wie würdet ihr das Haus auf dem Grundstück ausrichten? 17
20Grundstück Einfamilienhaus C630 Heinz von Heiden am Standort Sachsen - Seite 364

Oben