Grundriss unseres Bungalows

4,60 Stern(e) 5 Votes
Zuletzt aktualisiert 06.10.2025
Sie befinden sich auf der Seite 11 der Diskussion zum Thema: Grundriss unseres Bungalows
>> Zum 1. Beitrag <<

Y

ypg

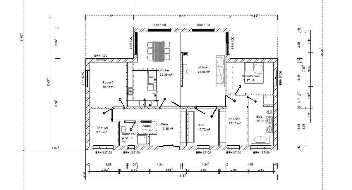
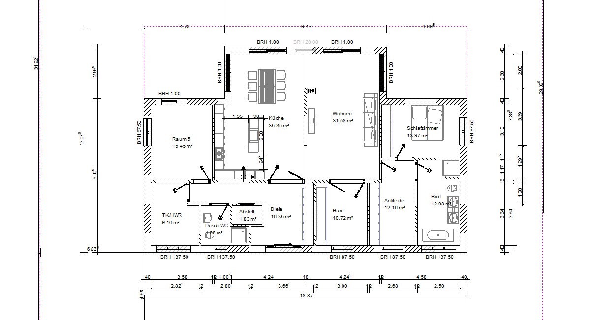
So, ich hab mich dann mal ausgetobt.
Da ich diesen Eingangspost nicht mehr im Kopf hatte, bin ich vom Büro statt Gästezimmer ausgegangen.
Außerdem bin ich mehr auf Eure Ängste eingegangen, dass eventuell der Garten SW zu schmal wird und die gewünschte Großzügigkeit im WZ.
Garage und Carport habe ich jetzt mal vernachlässigt, somit ist mir ein Fehler mit den Fenster im Kinderzimmer passiert, aber das kann man ja auf die SW-Seite legen.
Möbel sind Platzhalter!




Grundriss eines Einfamilienhauses mit Wohnzimmer, Küche, Schlafzimmer, Bad und Möbeln.


Grundriss eines Hauses mit Küche, Wohnzimmer, Schlafzimmer, Bad, Büro, Diele, Ankleide



Modell eines weißen Einfamilienhauses mit grauem Satteldach, Rundfenster und Steinpfad.


3D-Einfamilienhaus-Grundriss mit Wohnzimmer, Küche, Essbereich, Flur und Schlafzimmer.


3D-Hausmodell von oben: Wohnzimmer, Küche, Schlafzimmer, Bad und Gehweg rund ums Haus.


Der Giebel ist bei mir übrigens im WZ und Küche offen.
 
sommer2017

sommer2017

Herzlichsten Dank, für diesen Entwurf, ich weiß das sowas mit einem ordentlichen Zeitaufwand verbunden ist!

Ich finde diesen Entwurf und die Aufteilung der Räume, vor allem WZ + Küche wirklich schön.
Leider gibt es ein großes aber.
In unserer jetzigen Wohnung haben wir die Erfahrung gemacht, dass man im Schlafzimmer die Geräusche aus Bad und Küche auch dann hört, wenn eine gemauerte Wand dazwischen ist.

In diesem Entwurf liegt das Schlafzimmer am WZ und am Bad.
Noch schlafen wir tief und fest vor einer Nachtschicht, im Alter wird der Schlaf allerdings sicher deutlich leichter, so die Erfahrung von älteren Kollegen.
Beim Kinderzimmer ist es ähnlich, da liegen Hauswirtschaftsraum und Küche an.

Aber somit werde ich mir gerade bewusst, dass wir mit diesen Vorstellungen/ Wünschen wohl einen langen Flur in Kauf nehmen müssen... oder wie siehst du das?

Einen offenen Giebel hatten wir auch schon bei unserem Grundriss in Betracht gezogen, allerdings riet uns der Architekt zu einem Kaltdach (kostengründe).
 
L

Legurit

Wenn die Dinge ordentlich ausgeführt werden und entkoppelt sind hört man nichts... verstehe allerdings eure Gedanken. Habe auch in vielen Wohnungen gewohnt wo gar nichts entkoppelt war.
 
Y

ypg

Ja, ich kann das Problem auch nachvollziehen, ich weiß auch nicht, inwiefern die Wanddicke das vermindern kann. Und wenn, dann wird man als Geschädigter sich dennoch dem nicht aussetzen, gerade auch bei Schichtdienst.
Mal schauen, ob ich noch ne Idee habe. Für mich ist die Zeit, die ich darin investiere, gleichzusetzen mit der Zeit, die man für ein Sudoku-Rätsel braucht - ein Rätsel, welches zu knacken gilt
Es muss ja eine gute Lösung geben!
 
Y

ypg

Hallo Yvonne,


Vorne rechts ist doch eine einfache Lösung möglich. Lege die Ankleide als Durchgangszimmer an; damit bildet sie einen Puffer zwischen Schlafen und Bad


Bauexperte
Das war der Ursprung: wenig oder keine guten Schrankstellplätze in der Ankleide durch die Türpositionen
Hier hätten wir ü6 Meter!

Edit: wäre allerdings eine Alternative: dann hätten wir noch die Zwischenwand WZ/Schlafzimmer und das Kinderzimmer
 
Zuletzt aktualisiert 06.10.2025
Im Forum Grundrissplanung / Grundstücksplanung gibt es 2510 Themen mit insgesamt 87171 Beiträgen


Ähnliche Themen zu Grundriss unseres Bungalows
Nr.ErgebnisBeiträge
1Neubau Einfamilienhaus ca.220qm, 2. Entwurf Stadtvilla - Seite 259
2Kinderzimmer und Schlafzimmer - Welche Größe ist zu empfehlen? - Seite 256
3Grundriss erster Entwurf - Meinungen erwünscht - Seite 321
4Grundrissplanung 4-Giebel Haus Herrengiebel Doppelgarage - Seite 212
5Grundrissplanung Hanghaus mit 5 Kinderzimmer - Seite 26370
6Grundriss Bungalow 150qm geschlossene Küche, überdachte Terrasse 40
7Einfamilienhaus, ~160m², Bauhausstil; Erster Entwurf nach unseren Wünschen 420
8Neubau Einfamilienhaus 160-170qm, 3 Kinderzimmer 39
9Unser Grundriss-Entwurf für ein günstiges Haus 348
10Entwurf Einfamilienhaus mit ca. 168m² Feedback - Seite 537
11Grundriss Einfamilienhaus ca. 140m² - Abtrennbares Treppenhaus - Seite 335
12Größe vom Schlafzimmer und Kinderzimmer - Seite 238
13Schallschutztür Schlafzimmer / Kinderzimmer 23
14Pfiffige Schlafzimmer Idee mit Ankleide gesucht 19
15Grundriss Schlafzimmer, Ankleide und Bad en Suite - Seite 336
16Grundriss Schlafzimmer mit Bad und Ankleide 62
17Ankleide/Schlafzimmer Problem - Grundrissdiskussion 25
18Grundriss-Entwurf Stadtvilla Feedback - Seite 213
19Planung unseres Einfamilienhaus - Was meint ihr zum Entwurf? - Seite 656
20Haus-Entwurf Einfamilienhaus - Zukünftig als Zweifamilienhaus trennbar - Seite 572

Oben