Grundriss unseres Bungalows

4,60 Stern(e) 5 Votes
Zuletzt aktualisiert 23.11.2025
Sie befinden sich auf der Seite 12 der Diskussion zum Thema: Grundriss unseres Bungalows
>> Zum 1. Beitrag <<

sommer2017

sommer2017

Mal schauen, ob ich noch ne Idee habe. Für mich ist die Zeit, die ich darin investiere, gleichzusetzen mit der Zeit, die man für ein Sudoku-Rätsel braucht - ein Rätsel, welches zu knacken gilt
Schöner Vergleich

Wenn bei der neuen Planung das Bad wieder näher an den Hauswirtschaftsraum herankommen würde, wäre das auch schön.
War ja eine hilfreiche Anmerkung in diesem Thread.
 
kbt09

kbt09

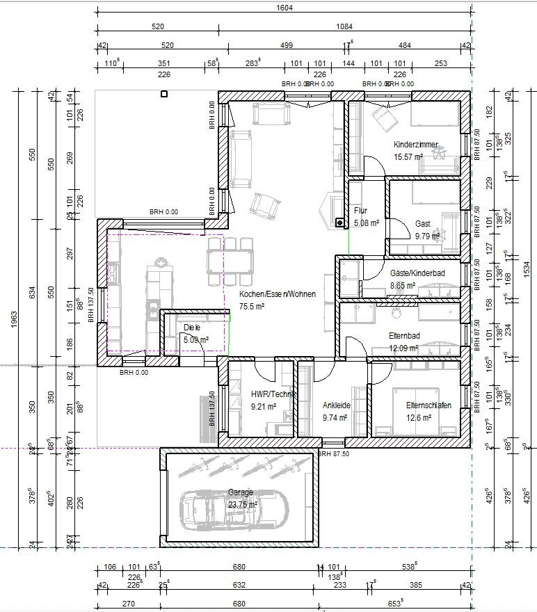
YYvonne sagt es ... Tetris .. bei mir hat meine Variante 5 zu einem vorzeigbaren Plan geführt. Da habe ich mich auch gleich von Y
Yvonne anregen lassen und bei mir ist der Bereich über der Küche sozusagen dachhoch ohne Zwischendecke. Dadurch kann man im oberen Bereich vielleicht noch ein Dreiecksfenster setzen und das volle Südlicht/Wärme einfangen.

Garage und Carport habe ich getrennt und die Garage planunten ans Haus gesetzt. Gestrichen ist dafür der direkte Zugang Hauswirtschaftsraum/Garage ... könnte man aber sogar realisieren.

Flure vermeiden heißt bei den gewünschten Räumlichkeiten, die Randbereiche von Wohnen/Essen/Kochen als Verteiler mit zu nutzen.

Auch ich habe Eltern und Kind/Gast getrennt. Die Eltern planunten rechts, Kind/Gast planoben rechts.

Im Flurbereich Kind/Gast noch Stauraummöglichkeit, könnte auch für Staubsauger/Wischer etc. genutzt werden.

Zufällig sind es genau 163 qm geworden.

Grundriss eines Hauses mit Küche, Wohnzimmer, Flur, Eltern- und Kinderzimmer, Bad und Garage.


Modernes Einfamilienhaus mit Garage, Carport und gepflasterter Zufahrt auf grünem Grundstück.


Modernes, einstöckiges Haus mit Terrasse, Carport, rotem Auto und grünem Garten.


Grundriss: Wohnzimmer, Küche, Essbereich, Schlafzimmer, Bad, Garten, Carport mit Autos.


Isometrischer Wohnhaus-Plan: Wohnzimmer, Küche, Schlafzimmer, Badezimmer, Garage und Garten.


Vogelperspektive: Haus mit dunklem Dach, beigem Zufahrtsweg, roter Wagen, grüne Rasenflächen.
 
Y

ypg

Ah, Du hast das Haus gedreht... sehr schön! Hab ich aus irgendeinem Grund wieder verworfen.
Dreiecksfenster war bei mir auch geplant, dafür steht mein Bullauge

Wie viel Meter Garten sind bis zur Grundstücksgrenze oben?
 
kbt09

kbt09

Ja, die Idee fand ich gut. Ich wollte möglichst Ost, Süd- und Westsonne in den Raum bekommen.

Entfernung Hauskante - obere Grundstücksgrenze:
rechte Hauskante ca. 990 cm
linke Hauskante bevor die Terrasse anfängt ca. 1130 cm
linke obere Ecke von der Terrasse ca. 1190 cm

Garage planunten eben ca. 430 cm. Wenn man die Garage doch eher links setzt, dann könnte man mit dem Haus noch rund 120 cm nach planunten.
 
Y

ypg

@kbt09
Leider wissen wir nicht, wie die Nachbarumgebung bebaut ist. Sommer sprach davon, dass die SW Richtung die einzig Wahre ist. Wir wissen nicht, warum bzw ob es unbegründete Ängste sind, 12 Meter empfindet er als grenzwertig.
Bevor ich meine Idee noch zeitintensiv umsetze, sie könnte eventuell auch gedreht werden, sollte @sommer2017 etwas dazu sagen.
Ich finde die Ausrichtung auch ansprechender, zumal man das Haus von seiner schönen Seite beim Ankommen sehen kann, aber auch, um etwas Ostrichtung zu gewinnen.
Ansonsten setze ich bei @BeHaElJa s erstem Vorschlag mit getricktem Flur an, da ja als Akustikpuffer Gast und Ankleide dienen kann.
 
sommer2017

sommer2017

Wieder mal vielen Dank! Ich freu mich jedes Mal ordentlich, wenn ich hier einen neuen Grundriss sehe
Leider habe ich wie bereits erwähnt gerade nicht so viel Zeit, was ich allerdings schon mal sagen kann ist, dass ich den WZ Bereich nicht so gerne als Verteiler habe, da ich finde, dass viele Türen den Raum "unruhig" wirken lassen. Auch der kurze offene ?amerikanische? Eingangsbereich entspricht nicht unserem Geschmack.
Die Ausrichtung des Hauses und die Umpositionierung der Garage+ Carport finde ich jedoch eine gute Idee, kann jetzt aber noch nicht genau abschätzen, ob mir das dann mit Ausrichtung und Garten gefällt.

Ich hänge noch schnell eine Karte der Umgebungsbebauung ran.
SW war mir wichtig weil dort der Garten am größten ist, denn die SW Grenze verläuft schräg und somit ist das Grundstück "ganz links" am tiefsten.
 
Zuletzt aktualisiert 23.11.2025
Im Forum Grundrissplanung / Grundstücksplanung gibt es 2535 Themen mit insgesamt 87993 Beiträgen


Ähnliche Themen zu Grundriss unseres Bungalows
Nr.ErgebnisBeiträge
1Garage, Carport oder beides? 12
2Haus und Garage, Carport Platzierung auf Hinterliegergrundstück 12
3Bebaute Fläche: Gehören Garage / Carport zur bebauten Fläche? 19
4Hang-Grundstück, Carport abfangen - Seite 222
5 2 Vollgeschosse, Durchgang Garage, Hauswirtschaftsraum unter Treppe - Seite 325
6Garage genehmigt, aber Carport gebaut 23
7Unser Grundriss steht zur Diskussion - Seite 639
8Terrasse vom Nachbar grenzt an Garage 11
9Haus, Garage / Carport auf dem Grundstück platzieren - Seite 493
10Carport/Garage Breite - Reichen 2.50m oder ist das eher zu schmal 29
11Bauen ohne Keller - Carport, Garage? - Seite 318
12Garage im Haus oder Carport daneben 10
13Zugang von der Garage in den Hauswirtschaftsraum 49
14Wie Gebäude platzieren? Haus Terrasse Garage Werkstatt 24
15Carport oder Garage, was macht mehr Sinn? - Seite 244
16Grundriss: 150qm Einfamilienhaus+Einliegerwohnung - Carport / Garage + Schuppen / Werkstatt - Seite 245
17Nebeneingangstür Garage / Haus, Hauswirtschaftsraum Garagenverordnung Niedersachsen - Seite 314
18Garage, Carport mit Fahrradschuppen - Grundstücksplanung - Seite 222
19Hausanschlusssäule im Garten vs. Hausanschluss direkt im Hauswirtschaftsraum 35
20Grundriss Einfamilienhaus mit Doppelgarage und Terrasse 19

Oben