Kalkulation Einfamilienhaus mit 175m² Wohnfläche, Keller und Doppelgarage

4,40 Stern(e) 5 Votes
Zuletzt aktualisiert 21.12.2025
Sie befinden sich auf der Seite 9 der Diskussion zum Thema: Kalkulation Einfamilienhaus mit 175m² Wohnfläche, Keller und Doppelgarage
>> Zum 1. Beitrag <<

W

Wormser1989

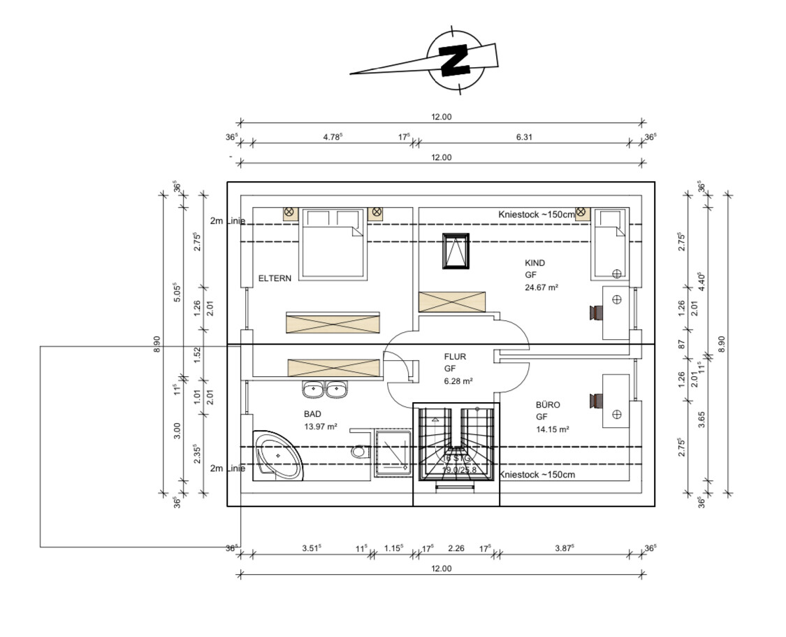
So - Die Hürde, die keine war (60 cm Kniestock) ist genommen. Nochmals vielen Dank für die Rückmeldungen. Wir sind derweil ein Schritt weiter. Jetzt haben wir Entwürfe des Architekten bekommen (Kniestock 1,5 Meter). Ertsmal grob zur Orientierung. Mir gefällt das schon ganz gut, Die Frau hat noch eins, zwei Dinge, die ich noch nicht ganz gut gefallen. (Anordnung Bad). Nach meinem Dafürhalten könnte das Schlafzimmer auch noch ein Dachfenster vertragen. Der Architekt hat uns gefragt ob wir eine Speisekammer wollen. Eigentlich nicht, aber er hat jetzt einen Entwurf mit und einen Entwurf ohne Speisekammer fertig gemacht. Mir gefällt die Variante mit Speisekammer dann doch besser, da sonst die Küche überdimensioniert ist. Ggf. hat hier aber auch noch jemand bessere vorschläge, wie man den Platz nutzen könnte

Ich stelle die Entwürfe mal ein und hoffe auf konstruktive Vorschläge

Grundriss Kellergeschoss mit KELLER, ABSTELL, FLUR, WC, HWR, TECHNIK.


Schnitt durch ein zweigeschossiges Haus mit Innentreppe, Möbeln, Bäumen und Auto davor


Grundriss eines Hauses mit Küche, Essen, Wohnen, Diele, WC und Garage.


Grundriss EG: Küche, Essen, Wohnen, Diele, WC; Garderobe, Garage, Terrasse und Garten.


Grundriss eines Obergeschosses mit Elternzimmer, Kindzimmer, Büro, Bad und Flur.
 
face26

face26

Bin nur kurz drüber geflogen. Das mit der überdimensionierten Küche wirkt so, weil die vom Planer eingezeichnete Küche voll blöd ist .
Mit den Maßen würde ich zwei Zeilen machen. Eine Wandzeile und nen fetten 3m x 1,2m Block.
Mir kommt der Esstisch etwas klein vor. Miss den mal und zeichne eine maßstabsgetreuen ein. Überprüfe auch die anderen Möbel.
Bad gefällt mir auch nicht, wird ja aber noch geändert.
Würde auch nicht diese abgetrennten Kleiderschränke im Schlafzimmer wollen. Da kannst auch eine richtige Ankleide machen.
 
A

Alessandro

gefällt mir definitv auch besser mit Speisekammer.
Die Tür vom Schlafzimmer ins Bad finde ich total unnötig und verhindert einen breiteren schrank.
Ich würde den Schrank planunten über die gesamte Breite durchziehen und an der Wand vis a vis einen Schminktisch für die Frau platzieren oder eine Kommode zum Ablegen für die Uhr, Armbänder, Ohrringe etc.

Ich würde Badewanne mit Dusche tauschen. Aber nur aus dem Grund dass das Fenster dann näher zur Dusche ist und die Feuchtigkeit schneller abzieht.
Es gibt nichts hässlicheres als schimmelige Silikonfugen
 
Zuletzt bearbeitet:
A

Alessandro

Büro und Bad ggf. tauschen, dann liegen die Anschlüsse zum Gäste-WC im EG auch übereinander
 
face26

face26

...man beachte aber, dass die Küche in der Speisekammer-Version der planungstechnische Supergau ist!
Da Du die Möglichkeit hast würde ich meine Wunschküche schon berücksichtigen.
Anstatt der Speisekammer machst drei Hochschränke mehr, feddisch.
 
face26

face26

Ich würde Badewanne mit Dusche tauschen. Aber nur aus dem Grund dass das Fenster dann näher zur Dusche ist und die Feuchtigkeit schneller abzieht.
Es gibt nichts hässlicheres als schimmelige Silikonfugen
Mit Kontrollierte-Wohnraumlüftung brauchst Dir da (fast) keine Sorgen machen.
Die Dusche geht doch eh nicht, guck mal wo die 2-Meter-Linie ist. Wo soll der Duschkopf denn da hin? Oder sehe ich da was nicht?
Meiner Meinung auch zu kleines Fenster im Bad. Ein Dachfenster oder sogar Zwillingsdachfenster würde da auch mehr Stehhöche ermöglichen

Büro und Bad ggf. tauschen, dann liegen die Anschlüsse zum Gäste-WC im EG auch übereinander
Da bin ich auch dabei, sofern der TE nicht auf den direkten Durchgang Schlafzimmer-Ankleide-Bad besteht.
 
Zuletzt aktualisiert 21.12.2025
Im Forum Bau-Förderung / KfW-Förderung / Zuschüsse Hausbau gibt es 871 Themen mit insgesamt 17387 Beiträgen


Ähnliche Themen zu Kalkulation Einfamilienhaus mit 175m² Wohnfläche, Keller und Doppelgarage
Nr.ErgebnisBeiträge
1Hausplanung 135m2 in Österreich - Seite 3131
2Speisekammer vs. größere Küche vs. Hauswirtschaftsraum - Seite 213
3Pfiffige Schlafzimmer Idee mit Ankleide gesucht 19
4Idee Schlafzimmer - Bett / Schrank Anordnung 32
5Grundriss Schlafzimmer mit Bad und Ankleide 62
6Grundriss erster Entwurf - Meinungen erwünscht - Seite 321
7Erster Entwurf Grundriss Einfamilienhaus (ca. 200qm) - Bitte um Feedback - Seite 646
8Grundrissplanung: Badezimmer Dusche 47
9Entwurf Einfamilienhaus mit ca. 168m² Feedback - Seite 537
10Neubau Einfamilienhaus ca.220qm, 2. Entwurf Stadtvilla - Seite 259
11Einfamilienhaus, ~160m², Bauhausstil; Erster Entwurf nach unseren Wünschen - Seite 13420
12Grundriss: Speisekammer oder größere Küche? Erfahrungen? - Seite 214
13Dachfenster im Schlafzimmer? 13
14Grundriss Schlafzimmer, Ankleide und Bad en Suite - Seite 336
15Erster Entwurf Einfamilienhaus 150m² mit Keller 38
16Bitte schaut kritisch über unseren Grundriss-Entwurf 13
17Grundrissplanung / Entwurf Einfamilienhaus Flachdach mit Doppelgarage - Seite 787
18Grundriss Einfamilienhaus ohne Keller/Schlafzimmer und Bad im EG - Seite 327
19Grundriss-Entwurf: Einfamilienhaus mit Keller; 560qm Grundstück - Seite 765
20Ankleide/Schlafzimmer Problem - Grundrissdiskussion 25

Oben