ᐅ Grundriss für eine Stadtvilla mit Satteldach 140qm2
Erstellt am: 19.06.21 13:24
E
Einfachmachen19.06.21 13:24Hallo Zusammen,
ich bin stiller Leser seit einiger Zeit und mittlerweile planen wir unseren Grundriss. Gerne würde ich eure Meinung dazu hören.
In meinen Augen ist es ein Standard Entwurf mit ein paar kleinen Besonderheiten. Er gefällt uns bisher super und würden es nach aktuellem Stand so umsetzen.
Vielleicht fällt euch irgendwas auf was besonders schlecht gelöst ist.
Vielen Dank!!
Bebauungsplan/Einschränkungen
Größe des Grundstücks; 420qm2
Hang; Ja
Grundflächenzahl; 140qm2
Geschossflächenzahl; 2 volle Geschosse
Anzahl Stellplatz; 2 inkl Garage
Geschossigkeit_; 2
Dachform: Satteldach 25 Grad
Stilrichtung: Stadtvilla
Ausrichtung: Süd/Ost
Anforderungen der Bauherren
Keller: Ohne Keller
Anzahl der Personen, Alter: 3x 32/32/4; Planung abgeschlossen
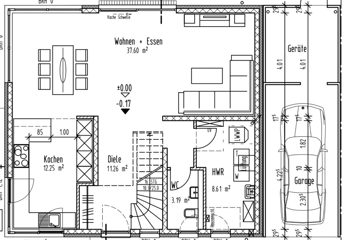
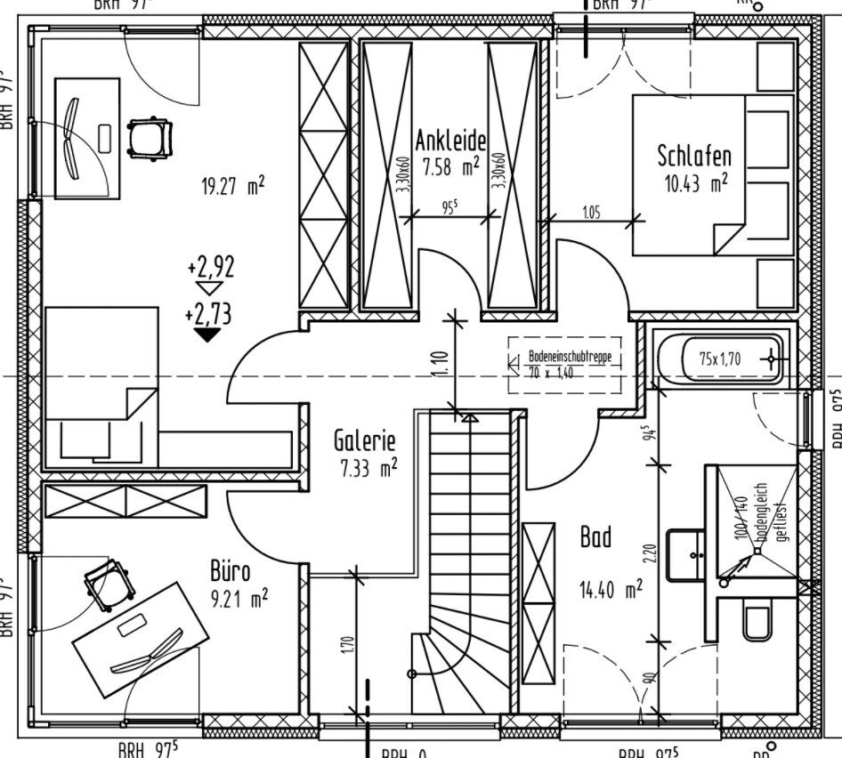
Raumbedarf im EG, OG: Siehe Grundriss
Büro: Familiennutzung oder Homeoffice? Beides
Schlafgäste pro Jahr: Keine
offene oder geschlossene Architektur: Offen
konservativ oder moderne Bauweise: Modern
offene Küche, Kochinsel: Offen
Anzahl Essplätze: min. 6
Kamin: Nein
Musik/Stereowand: Nein
Balkon, Dachterrasse: Nein
Garage, Carport: Ja
Nutzgarten, Treibhaus: Nein
weitere Wünsche/Besonderheiten/Tagesablauf, gern auch Begründungen, warum dieses oder das nicht sein soll
Hausentwurf
Von wem stammt die Planung:
-Planer eines Bauunternehmens : JA
Was gefällt besonders? Warum? : Luftraum, große und viele Fenster, Optimaler Raumbedarf
Was gefällt nicht? Warum?: bisher nichts
favorisierte Heiztechnik: Luft-Wasser-Wärmepumpe
Bebauungsplan/Einschränkungen
Größe des Grundstücks
Hang
Grundflächenzahl
Geschossflächenzahl
Baufenster, Baulinie und -grenze
Randbebauung
Anzahl Stellplatz
Geschossigkeit
Dachform
Stilrichtung
Ausrichtung
Maximale Höhen/Begrenzungen
weitere Vorgaben
Anforderungen der Bauherren
Stilrichtung, Dachform, Gebäudetyp
Keller, Geschosse
Anzahl der Personen, Alter
Raumbedarf im EG, OG
Büro: Familiennutzung oder Homeoffice?
Schlafgäste pro Jahr
offene oder geschlossene Architektur
konservativ oder moderne Bauweise
offene Küche, Kochinsel
Anzahl Essplätze
Kamin
Musik/Stereowand
Balkon, Dachterrasse
Garage, Carport
Nutzgarten, Treibhaus
weitere Wünsche/Besonderheiten/Tagesablauf, gern auch Begründungen, warum dieses oder das nicht sein soll
Hausentwurf
Von wem stammt die Planung:
-Planer eines Bauunternehmens
-Architekt
-Do-it-Yourself
Was gefällt besonders? Warum?
Was gefällt nicht? Warum?
Preisschätzung lt Architekt/Planer:
Persönliches Preislimit fürs Haus, inkl Ausstattung:
favorisierte Heiztechnik:


ich bin stiller Leser seit einiger Zeit und mittlerweile planen wir unseren Grundriss. Gerne würde ich eure Meinung dazu hören.
In meinen Augen ist es ein Standard Entwurf mit ein paar kleinen Besonderheiten. Er gefällt uns bisher super und würden es nach aktuellem Stand so umsetzen.
Vielleicht fällt euch irgendwas auf was besonders schlecht gelöst ist.
Vielen Dank!!
Bebauungsplan/Einschränkungen
Größe des Grundstücks; 420qm2
Hang; Ja
Grundflächenzahl; 140qm2
Geschossflächenzahl; 2 volle Geschosse
Anzahl Stellplatz; 2 inkl Garage
Geschossigkeit_; 2
Dachform: Satteldach 25 Grad
Stilrichtung: Stadtvilla
Ausrichtung: Süd/Ost
Anforderungen der Bauherren
Keller: Ohne Keller
Anzahl der Personen, Alter: 3x 32/32/4; Planung abgeschlossen
Raumbedarf im EG, OG: Siehe Grundriss
Büro: Familiennutzung oder Homeoffice? Beides
Schlafgäste pro Jahr: Keine
offene oder geschlossene Architektur: Offen
konservativ oder moderne Bauweise: Modern
offene Küche, Kochinsel: Offen
Anzahl Essplätze: min. 6
Kamin: Nein
Musik/Stereowand: Nein
Balkon, Dachterrasse: Nein
Garage, Carport: Ja
Nutzgarten, Treibhaus: Nein
weitere Wünsche/Besonderheiten/Tagesablauf, gern auch Begründungen, warum dieses oder das nicht sein soll
Hausentwurf
Von wem stammt die Planung:
-Planer eines Bauunternehmens : JA
Was gefällt besonders? Warum? : Luftraum, große und viele Fenster, Optimaler Raumbedarf
Was gefällt nicht? Warum?: bisher nichts
favorisierte Heiztechnik: Luft-Wasser-Wärmepumpe
Bebauungsplan/Einschränkungen
Größe des Grundstücks
Hang
Grundflächenzahl
Geschossflächenzahl
Baufenster, Baulinie und -grenze
Randbebauung
Anzahl Stellplatz
Geschossigkeit
Dachform
Stilrichtung
Ausrichtung
Maximale Höhen/Begrenzungen
weitere Vorgaben
Anforderungen der Bauherren
Stilrichtung, Dachform, Gebäudetyp
Keller, Geschosse
Anzahl der Personen, Alter
Raumbedarf im EG, OG
Büro: Familiennutzung oder Homeoffice?
Schlafgäste pro Jahr
offene oder geschlossene Architektur
konservativ oder moderne Bauweise
offene Küche, Kochinsel
Anzahl Essplätze
Kamin
Musik/Stereowand
Balkon, Dachterrasse
Garage, Carport
Nutzgarten, Treibhaus
weitere Wünsche/Besonderheiten/Tagesablauf, gern auch Begründungen, warum dieses oder das nicht sein soll
Hausentwurf
Von wem stammt die Planung:
-Planer eines Bauunternehmens
-Architekt
-Do-it-Yourself
Was gefällt besonders? Warum?
Was gefällt nicht? Warum?
Preisschätzung lt Architekt/Planer:
Persönliches Preislimit fürs Haus, inkl Ausstattung:
favorisierte Heiztechnik:
Glückwunsch schon mal dazu, daß die Anstattvilla nicht quadratisch ist. Jetzt noch die dösigen Eckfenster weg, dann kann das ein schönes Haus werden. Was ist der tiefere Sinn der inhomogenen Innenwände ?
https://www.instagram.com/11antgmxde/
https://www.linkedin.com/company/bauen-jetzt/
https://www.instagram.com/11antgmxde/
https://www.linkedin.com/company/bauen-jetzt/
H
Hausbauer202119.06.21 17:0711ant schrieb:
Glückwunsch schon mal dazu, daß die Anstattvilla nicht quadratisch ist. Jetzt noch die dösigen Eckfenster weg, dann kann das ein schönes Haus werden. Was ist der tiefere Sinn der inhomogenen Innenwände ?Vielen Dank. Was meinst du mit den inhomogenen Innenwänden? Stehe da irgendwie auf dem Schlauch. Eckfenster findet meine Frau ganz toll. Ich glaube nicht das wir da was ändern 😀H
Hausbauer202119.06.21 17:08ypg schrieb:
Hast Du auch Außenansichten?
Meiner Meinung nach müsste das Haus etwas abgeknabbert aussehen mit den Eckfenstern.
Wo ist Norden.Ja Außenansichten habe ich ebenfalls. Werde diese heute Abend mal nachreichen. Norden liegt in etwa genau an der Ecke des Küchen Fensters.Hausbauer2021 schrieb:
Was meinst du mit den inhomogenen Innenwänden?Ich sehe unterschiedliche Schraffierungen.Hausbauer2021 schrieb:
Eckfenster findet meine Frau ganz toll.Im Grundriss und von innen vielleicht, aber auch die abgebissenen Hausecken in den Ansichten ???Hausbauer2021 schrieb:
Norden liegt in etwa genau an der Ecke des Küchen Fensters.Von der Mitte gesehen oder wie ?https://www.instagram.com/11antgmxde/
https://www.linkedin.com/company/bauen-jetzt/
Ähnliche Themen