ᐅ Kurvengrundstück, Einfamilienhaus 50m², Hang, Garagenoptimierung
Erstellt am: 10.02.20 20:38
T
Tobbster77T
Tobbster7710.02.20 20:38Hallo liebes Forum,
wir als künftige Bauherren bitten um Eure Unterstützung bei der Planung unseres Hauses.
Bebauungsplan/Einschränkungen
Größe des Grundstücks -> 597 m²
Hang -> ja ( ca. Gefälle 3,7 Meter langes Ende / 2,9 Meter kurzes Ende) gemäß Anlage
( nach 8 Metern -möglicher Hausbeginn - ca. 80 cm / nach 17 Metern ca. 1,8 Meter )
Grundflächenzahl -> siehe Anlage
Geschossflächenzahl -> siehe Anlage
Baufenster, Baulinie und –grenze -> siehe Anlage
Randbebauung -> siehe Anlage
Anzahl Stellplatz -> 2
Stellplatz/Garage -> außerhalb der Baufensters planbar
Geschossigkeit -> 1, 5
Dachform -> Satteldach
Stilrichtung -> Klassisch
Dachneigung 38 bis 52 Grad
Ausrichtung -> Garten Süd / West
Maximale Höhen/Begrenzungen -> 8 Meter Firsthöhe
Kniestock -> 1 Meter
Anforderungen der Bauherren
Stilrichtung, Dachform, Gebäudetyp -> Einfamilienhaus in Holzständerbauweise mit Satteldach ( 40 Grad) und Erker / WG oder Übereckerker mit Flachdach
Keller, Geschosse -> ja ( Nutzkeller / Wohnkeller ist noch offen. Hoffen auf Input)
Anzahl der Personen, Alter -> 3 bis 4 Personen - junge Familie
Raumbedarf im EG, OG -> Haus mit ca. 150/160 m² Nutzfläche ( ca. 80 m² Wohnfläche im EG / 50 – 60 Wohnfläche im OG je nach Kniestockmaß)
Büro: Familiennutzung oder Homeoffice? -> Homeoffice eher selten bis nie / soll evtl. später als Schlafzimmer dienen
Schlafgäste pro Jahr -> wenig, daher kein klassisches Gästezimmer geplant
offene oder geschlossene Architektur -> offene Architektur
konservativ oder moderne Bauweise -> konservativ mit ein –bis zwei Stilelementen (Erker/ Übereckerker / Wintergarten) gewünscht
offene Küche, Kochinsel -> offene Küche
Anzahl Essplätze -> 4-6
Kamin -> nein
Musik/Stereowand -> noch offen
Balkon, Dachterrasse -> eher nein
Garage, Carport -> Garage und Carport ( hier gibt es eine Herausforderung, da wir nicht wissen, wie wir das optimal stellen, damit das Haus soweit wie möglich nach vorn gezogen werden kann, um genug Gartenanteil zu bekommen.
Nutzgarten, Treibhaus -> Nutzgarten
weitere Wünsche/Besonderheiten/Tagesablauf, gern auch Begründungen, warum dieses oder das nicht sein soll
Hausart: Kfw 40 Plus
Hausentwurf
Von wem stammt die Planung:
-Planer eines Bauunternehmens -> Hausbaufirma
-Architekt -> wollen wir nun separat beauftragen, da wir nicht weiter kommen
-Do-it-Yourself -> Der Grundriss selbst entspricht eigentlich schon sehr stark unseren Wünschen und Vorstellungen und ist eigentlich auf Basis unserer Anregungen entstanden
Preisschätzung lt Architekt/Planer: ca. 420 T€
Persönliches Preislimit fürs Haus, inkl Ausstattung: 460 T€
favorisierte Heiztechnik: Luftwasserwärmepumpe
Wenn Ihr verzichten müsst, auf welche Details/Ausbauten
-könnt Ihr verzichten: Doppelgarage / zusammenhängender Stellplatz
-könnt Ihr nicht verzichten: den Rest
Warum ist der Entwurf so geworden, wie er jetzt ist? ZB
Wie es nun mal so ist, fängt man als Bauherr ja in der Regel bei Null an. Wir waren zunächst in Fertighausparks und haben uns dann mit den Hausangeboten von Anbietern beschäftigt. Da es grundlegende Übereinstimmung mit einigen Haustypen gab, haben wir uns Angebote eingeholt. Der Grundriss selbst ist auf Basis der Musterhausbesuche und unseren Ideen und Wünschen entstanden. Wir können uns grundsätzlich vorstellen so zu leben. Aber es gibt sicherlich andere Meinungen und Optimierungsbedarf. Da die Planung, um es mit den oft genannten Worten zu zitieren, mit„Zeichenknechten“ erfolgt ist oder erfolgen würde und wir einfach noch keine ideale Antwort auf unsere Fragestellungen erhalten haben, suchen wir nun euren Rat.
Was ist die wichtigste/grundlegende Frage zum Grundriss in 130 Zeichen zusammengefasst?
Wie können wir Garage und Carport so platzieren, dass das Haus mit ca. 10 Metern Breite bzw. das Haus in der gewünschten Grundfläche möglichst weit in Richtung Straße gezogen wird. Unser Wunsch ist die größtmögliche Gartenfläche nach hinten raus. Beziehungsweise verfangen wir uns gerade im Thema Garage oder sollte das Haus irgendwie anders aussehen, um das Haus vorzuziehen?
Wir haben bei der Gemeinde auch schon angefragt, ob man die Garage drehen und die Einfahrt anders setzen kann (siehe Anlage). Laut Sichtprüfung der Gem. spricht aktuell nichts dagegen. Ich selbst bin jedoch eher skeptisch (Stichwort Kurve). Es handelt sich um eine Sackgasse mit Tempolimit 30.
Weiterhin stellen wir uns noch die Frage, ob es Sinn ergibt, auf Grund der Hanglage einen Wohnkeller zu errichten bzw. das Kapital dafür zu investieren. Vermietung ist nicht geplant, jedoch evtl. für die Kinder später oder Freizeitkeller.
Wir wären für Anregungen und Tipps ausgesprochen dankbar.






wir als künftige Bauherren bitten um Eure Unterstützung bei der Planung unseres Hauses.
Bebauungsplan/Einschränkungen
Größe des Grundstücks -> 597 m²
Hang -> ja ( ca. Gefälle 3,7 Meter langes Ende / 2,9 Meter kurzes Ende) gemäß Anlage
( nach 8 Metern -möglicher Hausbeginn - ca. 80 cm / nach 17 Metern ca. 1,8 Meter )
Grundflächenzahl -> siehe Anlage
Geschossflächenzahl -> siehe Anlage
Baufenster, Baulinie und –grenze -> siehe Anlage
Randbebauung -> siehe Anlage
Anzahl Stellplatz -> 2
Stellplatz/Garage -> außerhalb der Baufensters planbar
Geschossigkeit -> 1, 5
Dachform -> Satteldach
Stilrichtung -> Klassisch
Dachneigung 38 bis 52 Grad
Ausrichtung -> Garten Süd / West
Maximale Höhen/Begrenzungen -> 8 Meter Firsthöhe
Kniestock -> 1 Meter
Anforderungen der Bauherren
Stilrichtung, Dachform, Gebäudetyp -> Einfamilienhaus in Holzständerbauweise mit Satteldach ( 40 Grad) und Erker / WG oder Übereckerker mit Flachdach
Keller, Geschosse -> ja ( Nutzkeller / Wohnkeller ist noch offen. Hoffen auf Input)
Anzahl der Personen, Alter -> 3 bis 4 Personen - junge Familie
Raumbedarf im EG, OG -> Haus mit ca. 150/160 m² Nutzfläche ( ca. 80 m² Wohnfläche im EG / 50 – 60 Wohnfläche im OG je nach Kniestockmaß)
Büro: Familiennutzung oder Homeoffice? -> Homeoffice eher selten bis nie / soll evtl. später als Schlafzimmer dienen
Schlafgäste pro Jahr -> wenig, daher kein klassisches Gästezimmer geplant
offene oder geschlossene Architektur -> offene Architektur
konservativ oder moderne Bauweise -> konservativ mit ein –bis zwei Stilelementen (Erker/ Übereckerker / Wintergarten) gewünscht
offene Küche, Kochinsel -> offene Küche
Anzahl Essplätze -> 4-6
Kamin -> nein
Musik/Stereowand -> noch offen
Balkon, Dachterrasse -> eher nein
Garage, Carport -> Garage und Carport ( hier gibt es eine Herausforderung, da wir nicht wissen, wie wir das optimal stellen, damit das Haus soweit wie möglich nach vorn gezogen werden kann, um genug Gartenanteil zu bekommen.
Nutzgarten, Treibhaus -> Nutzgarten
weitere Wünsche/Besonderheiten/Tagesablauf, gern auch Begründungen, warum dieses oder das nicht sein soll
Hausart: Kfw 40 Plus
Hausentwurf
Von wem stammt die Planung:
-Planer eines Bauunternehmens -> Hausbaufirma
-Architekt -> wollen wir nun separat beauftragen, da wir nicht weiter kommen
-Do-it-Yourself -> Der Grundriss selbst entspricht eigentlich schon sehr stark unseren Wünschen und Vorstellungen und ist eigentlich auf Basis unserer Anregungen entstanden
Preisschätzung lt Architekt/Planer: ca. 420 T€
Persönliches Preislimit fürs Haus, inkl Ausstattung: 460 T€
favorisierte Heiztechnik: Luftwasserwärmepumpe
Wenn Ihr verzichten müsst, auf welche Details/Ausbauten
-könnt Ihr verzichten: Doppelgarage / zusammenhängender Stellplatz
-könnt Ihr nicht verzichten: den Rest
Warum ist der Entwurf so geworden, wie er jetzt ist? ZB
Wie es nun mal so ist, fängt man als Bauherr ja in der Regel bei Null an. Wir waren zunächst in Fertighausparks und haben uns dann mit den Hausangeboten von Anbietern beschäftigt. Da es grundlegende Übereinstimmung mit einigen Haustypen gab, haben wir uns Angebote eingeholt. Der Grundriss selbst ist auf Basis der Musterhausbesuche und unseren Ideen und Wünschen entstanden. Wir können uns grundsätzlich vorstellen so zu leben. Aber es gibt sicherlich andere Meinungen und Optimierungsbedarf. Da die Planung, um es mit den oft genannten Worten zu zitieren, mit„Zeichenknechten“ erfolgt ist oder erfolgen würde und wir einfach noch keine ideale Antwort auf unsere Fragestellungen erhalten haben, suchen wir nun euren Rat.
Was ist die wichtigste/grundlegende Frage zum Grundriss in 130 Zeichen zusammengefasst?
Wie können wir Garage und Carport so platzieren, dass das Haus mit ca. 10 Metern Breite bzw. das Haus in der gewünschten Grundfläche möglichst weit in Richtung Straße gezogen wird. Unser Wunsch ist die größtmögliche Gartenfläche nach hinten raus. Beziehungsweise verfangen wir uns gerade im Thema Garage oder sollte das Haus irgendwie anders aussehen, um das Haus vorzuziehen?
Wir haben bei der Gemeinde auch schon angefragt, ob man die Garage drehen und die Einfahrt anders setzen kann (siehe Anlage). Laut Sichtprüfung der Gem. spricht aktuell nichts dagegen. Ich selbst bin jedoch eher skeptisch (Stichwort Kurve). Es handelt sich um eine Sackgasse mit Tempolimit 30.
Weiterhin stellen wir uns noch die Frage, ob es Sinn ergibt, auf Grund der Hanglage einen Wohnkeller zu errichten bzw. das Kapital dafür zu investieren. Vermietung ist nicht geplant, jedoch evtl. für die Kinder später oder Freizeitkeller.
Wir wären für Anregungen und Tipps ausgesprochen dankbar.
Hallo,
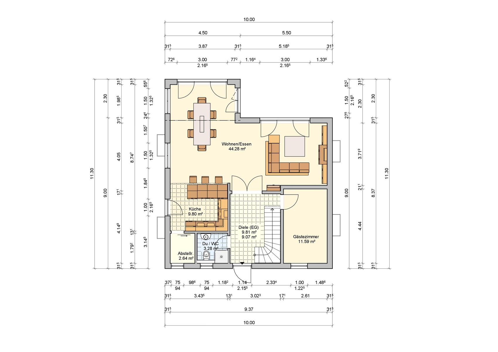
die Küche wird sehr klein werden, dh, wenig Abstellfläche. Man müsste sie in den Wohnraum verlängern. Die Wand planunten, 343cm, reicht für 2 hochschränke plus Eck.
Man muss erst jedes mal die Insel umkreisen, um an den Kühlschrank zu gelangen. Besser wäre einen Zugang vom Flur, bzw die Insel an der Außenwand angedockt. Trotzdem ist die Küche dann immer noch zu klein.
die Küche wird sehr klein werden, dh, wenig Abstellfläche. Man müsste sie in den Wohnraum verlängern. Die Wand planunten, 343cm, reicht für 2 hochschränke plus Eck.
Man muss erst jedes mal die Insel umkreisen, um an den Kühlschrank zu gelangen. Besser wäre einen Zugang vom Flur, bzw die Insel an der Außenwand angedockt. Trotzdem ist die Küche dann immer noch zu klein.
In welche Richtung geht der Hang? Geht es von der Auffahrt bergauf?
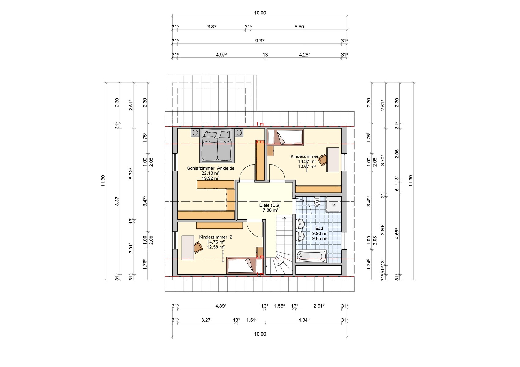
Wenn nach 8 Metern auf 9 Metern (Ca-Hausbreite) noch 1,80 Hang verbleiben, würde ich statt Keller ein UG mit Wohnräumen errichten. Auf das 2. OG ggf verzichten bzw auf versetztes Pult gehen und aus dem 2ten OG ein halbes Geschoss machen.
Das wäre dann eine Sache eines erfahrenen Architekten.
Zum derzeitigen Entwurf: wo soll die Garderobe hin?
Lange Wege zum Abstellraum (hinter Küche und in den Keller), außerdem auch in die Ankleide. Besser wäre es, diese Umkreisung von Wänden zu umgehen durch direkte Zugänge vom Flur aus oder aber die Zugänge direkt an den Innenwänden zu platzieren.
Die 3,70 im Wohnzimmer reichen für ein derartiges sofa bzw eine derartige Platzierung des Sofas ungenügend aus.
Küche kratzt auch an der Grössengrenze für 4 Personen.
Wenn nach 8 Metern auf 9 Metern (Ca-Hausbreite) noch 1,80 Hang verbleiben, würde ich statt Keller ein UG mit Wohnräumen errichten. Auf das 2. OG ggf verzichten bzw auf versetztes Pult gehen und aus dem 2ten OG ein halbes Geschoss machen.
Das wäre dann eine Sache eines erfahrenen Architekten.
Zum derzeitigen Entwurf: wo soll die Garderobe hin?
Lange Wege zum Abstellraum (hinter Küche und in den Keller), außerdem auch in die Ankleide. Besser wäre es, diese Umkreisung von Wänden zu umgehen durch direkte Zugänge vom Flur aus oder aber die Zugänge direkt an den Innenwänden zu platzieren.
Die 3,70 im Wohnzimmer reichen für ein derartiges sofa bzw eine derartige Platzierung des Sofas ungenügend aus.
Küche kratzt auch an der Grössengrenze für 4 Personen.
Ist der Hauseingang im Nordosten?
Mir gefallen Größe und Lichtsituation der Kinderzimmer nicht. Ein Kind hat ein kleines Südostfenster, das andere ein kleines Nordwestfenster. Sonnenstrahlen im Zimmer wird letzteres selten erleben. Würde entweder Gauben oder Dachfenster reinmachen für besseres Licht von 2 Seiten. Kinderzimmer 1 auch an die Südostseite legen für mehr Tageslicht. Außerdem den Kindern 1-2 qm mehr gönnen und diese bei der "Elternschlafhalle" abknapsen.
Die Riesencouch passt - wie Yvonne schrieb - nicht mitten ins Wohnzimmer. Wenn Raumgröße und Couchgröße nicht veränderbar sind, würde ich sie direkt an eine Wand (oder direkt an 2 Wände) stellen, um an einer Seite noch vernünftig vorbeilaufen zu können.
Mir gefallen Größe und Lichtsituation der Kinderzimmer nicht. Ein Kind hat ein kleines Südostfenster, das andere ein kleines Nordwestfenster. Sonnenstrahlen im Zimmer wird letzteres selten erleben. Würde entweder Gauben oder Dachfenster reinmachen für besseres Licht von 2 Seiten. Kinderzimmer 1 auch an die Südostseite legen für mehr Tageslicht. Außerdem den Kindern 1-2 qm mehr gönnen und diese bei der "Elternschlafhalle" abknapsen.
Die Riesencouch passt - wie Yvonne schrieb - nicht mitten ins Wohnzimmer. Wenn Raumgröße und Couchgröße nicht veränderbar sind, würde ich sie direkt an eine Wand (oder direkt an 2 Wände) stellen, um an einer Seite noch vernünftig vorbeilaufen zu können.
Tobbster77 schrieb:
Wir haben bei der Gemeinde auch schon angefragt, ob man die Garage drehen und die Einfahrt anders setzen kann (siehe Anlage). Laut Sichtprüfung der Gem. spricht aktuell nichts dagegen. Ich selbst bin jedoch eher skeptisch (Stichwort Kurve). Es handelt sich um eine Sackgasse mit Tempolimit 30.Und Ihr dürft Euer Haus dann auch nach vorne ziehen?
Dann würde ich das so machen und die Einfahrt so anlegen, dass man gerade auf die Garage zufährt. Gäb sonst vermutlich Probleme mit dem Wendekreis der Autos. Dann kommen hinter Eurer Einfahrt in der Sackgasse nur noch 3 andere Häuser, also ziemlich wenig Verkehr. Wenn da keine Sichtbehinderungen im Weg stehen, sehe ich das als unproblematisch an, solange die Halsgelenke einem erlauben, den Verkehr aus beiden Richtungen zu erfassen.
Tobbster77 schrieb:
Stellplatz/Garage -> außerhalb der Baufensters planbarEin Indiz für diese Hoffnung sehe ich im Plan gerade nicht.https://www.instagram.com/11antgmxde/
https://www.linkedin.com/company/bauen-jetzt/
Ähnliche Themen