Einliegerwohnung für Eltern: 210 m² Einfamilienhaus und 80 m² Einliegerwohnung

4,70 Stern(e) 9 Votes
Zuletzt aktualisiert 18.11.2025
Sie befinden sich auf der Seite 4 der Diskussion zum Thema: Einliegerwohnung für Eltern: 210 m² Einfamilienhaus und 80 m² Einliegerwohnung
>> Zum 1. Beitrag <<

Y

ypg

Ich wäre auch sehr dankbar wenn ihr mir Eure Idee verraten würdet wie Ihr sowas Planen würdet.
Nicht mit Deinen Vorstellungen und Wünschen, die sich wie ein Korsett um eine vernünftige Planung legen.

Es ist sehr wohl verständlich, dass man Wünsche hat. Aber sie müssen auch umsetzbar sein wie auch wirklich Sinn haben.
Manchmal hat man Wünsche, die man auch wieder vergisst,w enn es anders sehr gut funktioniert.

Grundsätzlich habt Ihr schon ein zwar nicht grosses Problem mit der Ausrichtung, aber das ist machbar. Schwieriger wird es, eine adäquate Einliegerwohnung (ob mit Durchgang oder ohne) inklusive Stellplätze zu einer Stadtvilla zu integrieren.
Da würde ich die Durchgangsmöglichkeit zwischen den Einheiten schon einmal als Nice-to-have, aber nicht wichtig einstufen. Wichtiger, wenn man abwägt, ist die Privatsphäre und je ein Eingang, als wenn man irgendwann die Einliegerwohnung durch das WZ des Hamburg betreten muss, weil es anders nicht geht Auch der Außenbereich gehört privatisiert.

Weiter sollte man überdenken, ob die Garage, die hier bei Euch zum zentralen Punkt genommen wird (Zugang zum Hamburg, Zugang zum WC, Flur zum Garten, Sauna... ) überhaupt noch eine Garage sein darf und nicht zusätzlicher zweiter Flur wird.

Garage ist für ein Pkw da. Es mag zwar witzig und manchmal auch praktisch sein, vom Garten aus auf eine Toilette gehen zu können, aber völlig unnötig. Ich glaube, Du überbewertest den Schmutz, den man sich im Garten einfängt. Das mag vlt in den ersten zwei Jahren so sein, aber ansonsten benimmt man sich auch im heimischen Garten sehr zivil. Dazu kommt ja nach dem Duschen, dass man gern saubere Kleidung anziehen mag, und dann muss man durch Garage, Garten oder das ganze Haus, um sich anziehen zu können.
In 5 Jahren mag auf die Toilette keiner mehr draufgehen, weil sie im alltäglichen Hausputz vergessen wird und vegetiert mit der Sauna ihres teuren Daseins.
Auch was Freunde haben, muss nicht praktisch sein - das mag als Besucher alles nett sein, aber man sollte überdenken, ob es zu seinem eigenen Alltag passt - und zum Budget.

Ich schweife jetzt mal zu Eurem Budget ab, welches wir nicht kennen.
Bei Einfamilienhaus ca 180-220 qm , Einliegerwohnung 70-80qm, Dachterrasse, Podesttreppe, Eingangstür vorne am Haus MITTIG mit seitlichen kleinen rausbauten und die Tür darin nach hinten im Haus versetzt, also Kanten, Nischen oder Erker, Sauna, wahrscheinlich Kinderbad bei 3 Kindern, Einliegerwohnung sicherlich gern auch Tendenz zur Barrierefreiheit... da bewegen wir uns irgendwo bei 600-650000. Dazu kommen die Außenanlagen, Garage und die Malerarbeiten sowie Bodenbeläge dazu. Ich weiss jetzt nicht, ob die Baunebenkosten noch dazu kommen oder in der Pauschalrechnung mit drin sind.
Haupthaus ist mit 2 Vollgeschosse und einen Walmdach und um die kosten etwas zu drücken auf der Einliegerwohnung und der Garage ein Flachdach.
ops:
Bei der Summe, aber auch bei einer Planung einer integrierten Einliegerwohnung geht man zum Architekt!

Ich weiss jetzt nicht, ob Du in diese Richtung kalkulierst, aber ich denke, da sollte man mit einer gradlinigen und praktischen Planung etwas Kosten einsparen, um auch später eventuell die zwei Wohnbereiche zu trennen, wenn irgendwann mal (eine Einheit oder beide) verkauft werden soll.
Das muss nicht bedeuten, dass Ihr auf Sauna mit Außenbereich, Dachterrasse (wer braucht eine Dachterrasse, wenn er einen Garten zu bewirtschaften hat????), 3. Dusche, etc. verzichten müsst, aber der Fokus sollte als allererstes auf den Hauptwohnraum liegen und nicht auf den Durchgang von Garage zur Sauna. Das kommt, ehrlich gesagt, als letztes.

Vorschläge zu Deinen Wünschen:

wenn es sich ergibt, kann man Sauna mit Dusch-WC und Gästezimmer im EG zusammenlegen. Man muss auch nicht aus der Sauna heraus gehen, sondern kann, wenn alles an einem Flurzipfel liegt, dort oder aus dem Gästezimmer rausgehen. Wenn Du allerdings glaubst, nach dem Hausbau wird es Masse an Schnee geben, dass sich diese Überlegungen überhaupt lohnen, dann überleg mal bitte selbst, wie oft wir hier oben Schnee haben. man kann aber auch, wenn sich die Dachterrasse wirklich planen lässt, hier die Sauna im OG legen, eventuell vom Bad aus zu begehen?!
Zu dem Spielzimmer: habt Ihr das jetzt auch? Ich muss mich wundern: bei uns gehen die Eltern noch nicht einmal mehr auf dem Spielplatz, sondern lassen die Kids im WZ spielen, damit sie in dieser Zeit in der Küche oder am Bügelbrett etwas schaffen. Kinder sind entweder zu jung, um sie allein im Zimmer zu lassen oder zu alt, weil sie dann nicht mehr wollen. Schöne Kinderzimmer hast Du geplant, und die sollten auch genutzt werden.
Wenn Du überhaupt noch Zeit für EBV hast, beneide ich Dich: ich ohne Kinder habe kaum noch Zeit neben meinem Job, Haus und Garten, überhaupt noch etwas mit zeitraubender EBV zu machen - aber Du hast Recht: ein Büro brauchts und ein Gästezimmer brauchts bei bis zu 20 Gästen im Jahr. Eventuell kann man doch einen grossen Spiel- und Computerraum planen? Nur eine Idee
Dann wäre er auch für ein Schlafzimmer geeignet...

Insofern: lass mal Deinen Rechner aus und kauf Dir einen 100er Karo-Block. damit machst Du Skizzen, wo was liegen könnte. Ein Raster sollte man aber immer im Kopf haben, Wasserleitungen und Heizung relativ zentral, Treppe nach dem Skizzenraster als nächstes.

Greif mal @kbt09 s Vorschlag auf und setz zwei Garagen als Trennung ein. Dahinter könnte die Versorgung liegen. Diesen Komplex würde ich ziemlich in den Osten verfrachten, dass vor den Garage ein Vorplatz entsteht, wovon planoben eine Ebene für die Eltern, planunten der Zugang zu Eurer Stadtvilla entsteht. An Eurer Garage könnt Ihr dann im Haus Hauswirtschaftsraum, Sauna und Dusch-WC legen, Büro/Gast SO, etc...

Man kann grundsätzlich in die Planung eines DH gehen, wo aber die eine Partei kein OG hat, die andere diese Fläche im OG mit bekommt.

Raumprogramm Einfamilienhaus für Architekt:
Küche, Ess und WZ, Küche mit Schiebetür
Abstellraum, Hauswirtschaftsraum im OG, Möglichkeit Durchgang Garage/Wohnhaus
Sauna
Gast/Büro oder Spiel/Büro
Schlafzimmer mit Ankleide (nicht gefangen)
3 Kinderzimmern
Bad
nach Möglichkeit Dachterrasse
lichtoffen zum SW

Viel Glück
 
Y

ypg

Ich hab da noch mal was vorbereitet

Handgezeichneter Grundriss eines Gebäudes auf kariertem Papier mit mehreren Räumen.

... habe aber auf halber Strecke aufgehört
Es wäre schön, wenn Du das auch mal kommentieren würdest, auch wenn Du Dir "mehr" Haus oder etwas anderes vorstellst.
 
11ant

11ant

Ein Raster sollte man aber immer im Kopf haben,
Das muß keine Hilfe sein, und ist m.E. beim überwiegend selbstgenutzten Wohnbau auch nicht angebracht. Erst Raumanordnungen komponieren. Dann Punkte identifizieren, die Maße vorgeben (die Treppe, oder der Platz, wo ein bestimmtes Lieblings-Möbel hinpassen soll). Wenn sich daraus ein Planungsraster ableiten läßt, gut. Wenn nicht: auch gut - wir sind ja beim Einfamilienhaus (ob mit oder ohne Einlieger).

Auf ganze Schritte im Baurichtmaß runden kann man später - in Einheiten "denken" muß man hier nicht. Was viel wichtiger ist - und man in diesem Thread schön sehen kann - ist: "aufräumen". Im Entwurf Räume mit sechs Ecken mit Fragezeichen versehen und solche mit acht Ecken dick durchstreichen - zum Beispiel. Je mehr es an Gefühl für Dimension und Proportion mangelt, desto mehr verzettelt man sich in Verschachtelungen und Verwinkelungen (die gleich doppelt "böse" sind: Möblierbarkeit störend und Preis treibend).
 
Y

ypg

Dann Punkte identifizieren, die Maße vorgeben (die Treppe, oder der Platz, wo ein bestimmtes Lieblings-Möbel hinpassen soll). Wenn sich daraus ein Planungsraster ableiten läßt, gut. Wenn nicht: auch gut - wir sind ja beim Einfamilienhaus (ob mit oder ohne Einlieger).
Nööööö!
Ohne gedanklichem Raster landet die Treppe oben im Nirgendwo, ist die Küche zu schmal, und eine sachliche Zimmeranordnung kann nur durch Glück funktionieren.
Und mal ehrlich: das Lieblings-Möbel ist nach drei Jahren zerschlissen und/oder austauschbar. Grundsätzlich sollte man Stellfläche für möglichst viel und breite Möbel planen - dann klappt es eh mit dem Lieblings-Möbel
 
kbt09

kbt09

Ja, das mit Spielzimmer für Kinder sehe ich ähnlich ... eher Elternschlafen im EG und dann im OG ein Gästezimmer und ein gesondertes Büro und 3 richtig große Kinderzimmer

Elternschlafen habe ich jetzt mal in beiden Etagen simuliert.

Sauna in ein EG-Bad mit Gartenzugang integriert.

Garage ... halt eine mittendrin .. finde ich nicht so zufriedenstellend. Man könnte dann noch im Norden einen Carport setzen.

Eingangsbereich der Einliegerwohnung mit viel Stauraum für Garderobe aber evtl. auch Staubsauger etc. im Zwischenbau.

Das alles mal als Idee .. ich bin schlecht mit Stift und Papier und komme mit so einem Zeichenprogramm schneller, zumal mein Ziel auch immer gute Stauraumnischen sind. Im EG z. B. noch unter der Treppe ... man könnte dort sicherlich zwischendrin ein Podest einplanen, das gibt mein Programm nicht her, daher mal eine sehr große Auftrittstiefe damit der Platz halbwegs zur Verfügung steht.

Grundriss eines Hauses von oben mit Garage, zwei Autos, Wohnzimmer, Küche, Schlafzimmern und Garten.

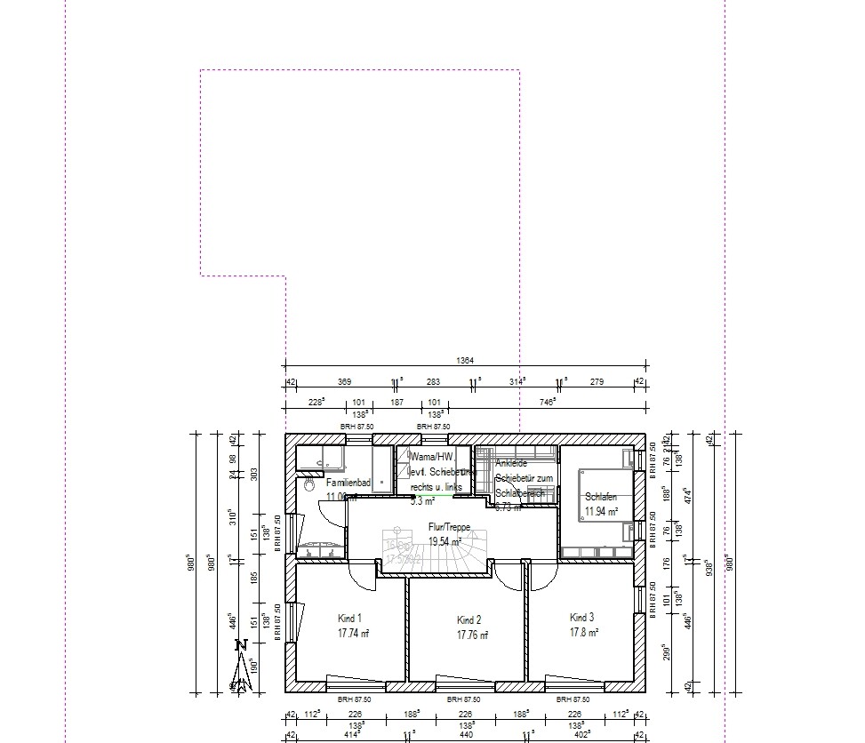
Grundriss eines Hauses mit Schlafraum, drei Kinderzimmer, Flur/Treppe und Bad; Maßlinien am Rand.

Detaillierter Grundriss eines Hauses mit Küche, Wohnbereich, Bad, Garage und Sauna.


Ich hoffe man kann nach anklicken halbwegs etwas erkennen.

P.S: ... Garage ist immer Grunde so schon zu kurz, wenn man ein großes Auto reinstellt .

P.S2: Kaminöfen an Außenwänden sind bei Walmdächern auch nicht so toll.
 
Zuletzt aktualisiert 18.11.2025
Im Forum Grundrissplanung / Grundstücksplanung gibt es 2536 Themen mit insgesamt 87966 Beiträgen


Ähnliche Themen zu Einliegerwohnung für Eltern: 210 m² Einfamilienhaus und 80 m² Einliegerwohnung
Nr.ErgebnisBeiträge
1 2 Vollgeschosse, Durchgang Garage, Hauswirtschaftsraum unter Treppe 25
2Einfamilienhaus 172qm mit Garage und Sauna - Seite 654
3Grundriss Haus mit Einliegerwohnung - Verbesserungsvorschläge? - Seite 2221
4Grundriss Einfamilienhaus mit 240m² mit Einliegerwohnung 75m² und Garage 39
5Grundrissplanung Einfamilienhaus mit Garage und Dachterrasse 29
6Stadtvilla 190m² mit Einfahrt & Garten zur Südseite 30
7Detailplanung Grundriss Einfamilienhaus mit Keller und Einliegerwohnung 28
8Einfamilienhaus Stadtvilla ca. 180qm + Einliegerwohnung 70qm - offene Bauweise - Seite 323
9Grundriss Einfamilienhaus mit Einliegerwohnung am Südhang oberhalb der Straße 14
10Grundriss-Diskussion: Einfamilienhaus + Einliegerwohnung als Mehrgenerationenhaus am Nordhang 26
11Grundriss Einfamilienhaus 240 m² mit teilüberbauter Garage - Seite 296
12Eckgrundstück mit Einliegerwohnung - Seite 16119
13Grundriss, Hausanordnung EFW 150m2, Keller + Einliegerwohnung - Feedback erwünscht - Seite 467
14Einfamilienhaus mit Einliegerwohnung, 120 qm plus Wohnkeller am Hang - Seite 324
15Grundriss Einfamilienhaus mit Einliegerwohnung - Seite 577
16Grundrissplanung Einfamilienhaus 160qm - Eure Meinungen sind erwünscht 18
17Grundriss für Einfamilienhaus mit 200m² mit Einliegerwohnung 75 +Keller 140m² +Garage 56m² 59
18Bodenbelag für Dachterrasse festlegen Garten-Landschaftsbauer oder Dachdecker? 10
19Grundriss Einfamilienhaus Stadtvilla mit Einliegerwohnung - Was meint ihr? 17
20Entwurf Einfamilienhaus mit Garage/Carport - bitte um Bewertung 22

Oben