Einliegerwohnung für Eltern: 210 m² Einfamilienhaus und 80 m² Einliegerwohnung

4,70 Stern(e) 9 Votes
Zuletzt aktualisiert 18.11.2025
Sie befinden sich auf der Seite 7 der Diskussion zum Thema: Einliegerwohnung für Eltern: 210 m² Einfamilienhaus und 80 m² Einliegerwohnung
>> Zum 1. Beitrag <<

S

schustrik

@kbt09 , hast du eventuell noch ein Bild mit der Vorderansicht und könntest es posten?

Je länger ich mir den Plan anschaue desto mehr gefällt er mir, nur muss es ja uns allen gefallen

Ich habe ihn Angeschaut und überlagt ob man es so machen könnte:
Garage 1 Meter verlängern nach hinten so das der Sauna/WC Bereich, dort die Außenwand ca da langläuft wo innen die rechte wand des Zimmers ist. Dann ist die Garage länger und man könnte dort eventuell die Heizung unterbringen und wo jetzt die Heizung gezeichnet ist dort dann einen Abstellraum machen mit dem Durchgang zur Garage.

Ich sehe das die Einliegerwohnung nach vorne ca 3 Meter rausgezeichnet ist, wenn man nun die Garage um 1 Meter nach hinten verlängert und dann die Einliegerwohnung auch ca 1,5 -2 Meter nach hinten versetzt so das sie nur 1-1,5 Meter nach vorne rausgeht, dann könnte man ja so ein schönen langen Vordach vorne machen der von der Einliegerwohnung über den Bereich des garagentores geht und dann nach dem Haus Eingang endet, also dann mittig vor dem Haus wäre das.
ZB so:

oder so mit Dachpfannen und dan auch über der Einliegerwohnung und mittig darauf dan ein Balkon:

Zweistöckiges weißes Haus mit dunklem Dach, gepflegtem Vorgarten und gepflastertem Weg.


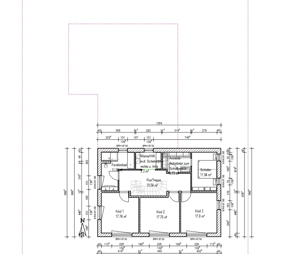
Um das Schlafzimmer oben größer zu machen könnte man doch auch die linke Wand ca 1 Meter nach links in den Flur verschieben, die Tür von Kind Zimmer 3 und 2 Müsste man dann 1 Meter versetzten, also ca 1 Meter die Tür von Zimmer 2 nach unten schieben so das dann rechts die Tür von Kind Zimmer 3 hinkommt.

Dann wäre das Schlafzimmer ca 14 qm groß und die Ankleide könnte man eventuell als Büro verwenden.

Nochmal was zu der Treppe, habe geschaut sie ist ca 1,5 x 3,8 Meter, wenn man sie doch einfach gerade machen würde mit mittig einem Podest ? Uns geht es bei dem Podest darum das es keine schmalen Eckstufen auf der Treppe geben soll. Die Treppe wurde dann auch statt 1,5 Meter dann 1,1 oder 1 Meter breit so das man diese kleinen Ecken in der Wand nicht machen müsste. Der Podest solle auch da sein damit Kinder wenn sie ausrutschen nicht bis ganz nach unten rutschen und sich verletzen sondern dann wären es "nur" 7-8 Stufen. Oder ist für sowas ein podest total unnötig?


PS: Mit welchem Programm hast du es gezeichnet?
 
kbt09

kbt09

Ansichten ... halt ohne Dach .. Garagentor habe ich hier mal 300 cm verbreitert.

Trennwände sollten im Wohn/Ess/Kochbereich gesetzt werden können. Ich würde immer Wohnen abtrennbar machen und Essen/Kochen zusammenlassen. Das spart große Sonderessplätze.

Weißes modernes Haus auf grünem Rasen unter blauem Himmel, flache Dächer und rechteckige Fenster.


Moderne weiße Villa mit großen Fenstern auf grünem Rasen unter blauem Himmel; dunkelblaues Auto.


Weiße moderne Einfamilienhausfront mit Garage, Auto in Einfahrt, große Glasfenster, grüner Rasen
 
kbt09

kbt09

Druck dir die Grundrisse aus, versetze die Mauern mit dem Stift, scanne es ein und stelle es als Ansicht hier zur Verfügung.

Für gerade Treppe mit Zwischenpodest ist die Treppe nicht lang genug gezeichnet und wirft dann im OG neue Probleme auf. Das ist halt generell immer so ein Knackpunkt, man muss die Sachen immer im Zusammenhang sehen. Die jetzt gezeichnete Treppe wäre allerdings auch als Wendeltreppe sehr großzügig und die Ecken nicht mit kleinen schmalen Treppen, die man so als abschreckende Beispiele kennt, vergleichbar.

Dass die Einliegerwohnung nach Westen ca. 300 cm vorsteht, dient der Tatsache, dass so mit dem Küchenfenster für den Allraum noch Südsonne eingefangen werden kann.

Aber wie gesagt, skizziere das mal.
 
kbt09

kbt09

In dem verlinktem Beitrag siehst du auch, dass eine gerade bequeme Treppe schon ungefähr 400 cm lang ist. Mit Podest dazwischen wird sie auf 500 cm Länge anwachsen und braucht davor und danach je mind. 100 cm Aus-/Antrittsfläche.

Die eingezeichnete Treppe braucht zwischen den Mauern aktuell ca. 399x162 cm.
 
Zuletzt aktualisiert 18.11.2025
Im Forum Grundrissplanung / Grundstücksplanung gibt es 2536 Themen mit insgesamt 87965 Beiträgen


Ähnliche Themen zu Einliegerwohnung für Eltern: 210 m² Einfamilienhaus und 80 m² Einliegerwohnung
Nr.ErgebnisBeiträge
1 2 Vollgeschosse, Durchgang Garage, Hauswirtschaftsraum unter Treppe 25
2Grundriss: 150qm Einfamilienhaus+Einliegerwohnung - Carport / Garage + Schuppen / Werkstatt - Seite 745
3Grundriss Haus mit Einliegerwohnung - Verbesserungsvorschläge? - Seite 34221
4Grundriss - Haus mit Einliegerwohnung - Seite 223
5Werkplanung Einfamilienhaus 180qm Flachdach mit Keller & Doppelgarage - Seite 3142
6Grundriss für Einfamilienhaus mit 200m² mit Einliegerwohnung 75 +Keller 140m² +Garage 56m² 59
7Neubau mit Einliegerwohnung: Photovoltaik - Strom - Heizung 16
8Grundriss Einfamilienhaus mit 240m² mit Einliegerwohnung 75m² und Garage 39
9Heizung Kinderzimmer,schlafzimmer und Bad 14
10Tür Haus/Garage: Nebeneingangstür als Brandschutztür? - Seite 327
11Hörmann T30 Tür zwischen Wohnhaus & Garage - U-Wert - Seite 211
12Ankleide/Schlafzimmer Problem - Grundrissdiskussion 25
13Dusche auf Podest und Schubfach 13
14Grundriss Einfamilienhaus mit Einliegerwohnung - Seite 577
15Grundriss, längliches Einfamilienhaus, integrierte Garage kein Keller 16
16Einfamilienhaus Stadtvilla ca. 180qm + Einliegerwohnung 70qm - offene Bauweise - Seite 323
17Grundriss Einfamilienhaus mit Einliegerwohnung am Südhang oberhalb der Straße 14
18Grundriss Einfamilienhaus mit Einliegerwohnung in Bayern mit starken Hang 26
19Grundrisse Einfamilienhaus mit Einliegerwohnung 280 m2 auf 320m2 sympathisch kleinen Grundstück - Seite 386
20Grundriss-Diskussion: Einfamilienhaus + Einliegerwohnung als Mehrgenerationenhaus am Nordhang 26

Oben