Bau eines 144 qm Bungalows in Fichtenwalde (nähe Potsdam)

5,00 Stern(e) 44 Votes
Zuletzt aktualisiert 21.11.2025
Sie befinden sich auf der Seite 22 der Diskussion zum Thema: Bau eines 144 qm Bungalows in Fichtenwalde (nähe Potsdam)
>> Zum 1. Beitrag <<

A

Acof1978

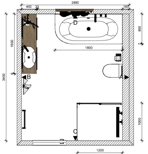
So sieht es aus. Da läuft ja das Rohr für die Kopfbrause. Könnt Ihr die Ablage nicht in die seitliche Wand machen? Die ist so jedenfalls unnötig hoch.
Würde etwas merkwürdig aussehen, da dort dann auch Trockenwand hin muss. Geht eine schmalere aber lange Ablage bei 18cm Trockenbau? Ich packe noch die Abstände rein.
Badezimmer-Grundriss: oben ovale Badewanne, links Waschbecken, rechts Toilette, Tür.
 
Y

ypg

Wenn ich etwas sagen darf? :D
Waschbereich bekommt ja auch eine Vorwand… insofern würde ich die Wanne drehen zur Wand und die Toi dann ans Fenster neben den Waschbereich. Optisch von den Schränken geschützt… und ne Ablage für die Wanne wäre platztechnisch auch noch drin :)
 
A

Acof1978

Wenn ich etwas sagen darf? :D
Waschbereich bekommt ja auch eine Vorwand… insofern würde ich die Wanne drehen zur Wand und die Toi dann ans Fenster neben den Waschbereich. Optisch von den Schränken geschützt… und ne Ablage für die Wanne wäre platztechnisch auch noch drin :)
Wir überlegen noch. Danke :) (fünf und sechs)
 
A

Acof1978

Wenn ich etwas sagen darf? :D
Waschbereich bekommt ja auch eine Vorwand… insofern würde ich die Wanne drehen zur Wand und die Toi dann ans Fenster neben den Waschbereich. Optisch von den Schränken geschützt… und ne Ablage für die Wanne wäre platztechnisch auch noch drin :)
Wir haben es genauso ungesetzt und die Planerin passt es an.

Also:
- WC unter das Fenster
- Badewanne an die rechte Wand
- Ablage etwas über die Höhe der Badewanne
- Unterschrank wird verlängert
- Über dem Unterschrank sehr grosser Spiegel.

Noch eine Frage. Außenfensterbänke. Werden die am Ende eingebaut und können wir die extern holen oder wichtig das die vom gleichen Unternehmen kommt der Fenster auch einbaut?
 
Tolentino

Tolentino

Da die Außenfensterbänke maßgeblich zur Schlagregendichtigkeit beitragen nicht selber und auch nicht nachträglich einbauen und aus Gewährleistungsgründen nach Möglichkeit vom Fensterbauer, der auch die Fenster einbaut, einbauen lassen.
 
Zuletzt aktualisiert 21.11.2025
Im Forum Bauplanung gibt es 5072 Themen mit insgesamt 100818 Beiträgen


Ähnliche Themen zu Bau eines 144 qm Bungalows in Fichtenwalde (nähe Potsdam)
Nr.ErgebnisBeiträge
1Badewanne vs Dusche 11
2Ebenerdiger Pool anstatt Badewanne? 19
3Eckbadewanne oder normale Badewanne - Seite 217
4Anschluss Badewanne an Dusche 21
5Welche Höhe Badewanne? 17
6Eingemauerte Badewanne - Armatur 11
7Reichen 85cm Abstand vom Waschbeckenrand bis zur Badewanne? 12
8Badewanne Körperkontur, 2 Personen, Massagedüsen, gibt es sowas? 10
9Badewanne .... und nun? 21
10Badewanne vor Fenster - Brüstungshöhe? 14
11Position der Badewanne unter Dachschräge 22
12Badewanne unter Dachfenster unterbringen sinnvoll? 13
13Eingelassene Badewanne Pro Contra 28
14Renovierung-Tipps für sehr kleines Bad mit Dusche statt Badewanne - Seite 336
15Fußbodenheizung Abstand, fehlende Stelle und Badewanne 26
16Planung Badezimmer, Dusche ohne Badewanne 14
17Badewanne im Schlafzimmer - was haltet ihr davon? - Seite 235
18Ablaufventil Badewanne - schließt nicht 10
19Fußbodenheizung unter Badewanne und Dusche 13
20Badewanne falsch ausgerichtet - Mangel? 15

Oben