ᐅ Grundriss Einfamilienhaus, leichte Hanglage, NW-Ausrichtung
Erstellt am: 23.05.25 18:30
K
kronos21525.06.25 12:3111ant schrieb:
Dem Hüftspeck ist es egal, ob die Nachbarn die Sahne auf dem Kuchen gesehen haben. Meine Einschätzung hier eher pro Keller hat sich bestätigt. Steigt das Gelände denn nur in der Tiefe, also seitlich gerade ?
Mir sind auf der Terrasse primär trockene Füße wichtig. Wer Gelände modelliert, zieht sich den Schuh der Drainageverantwortung an.Danke für die Antwort. Der seitliche Geländeverlauf ist gerade bis sehr leicht abfallend nach planrechts. Deutlich geringer als nach planoben. Wurde nicht extra bemessen
kronos215 schrieb:
Der seitliche Geländeverlauf ist gerade bis sehr leicht abfallend nach planrechts. Deutlich geringer als nach planoben. Wurde nicht extra bemessenAlso vernachlässigbar, quer nicht mehr als 0,2 m schwankend ?https://www.instagram.com/11antgmxde/
https://www.linkedin.com/company/bauen-jetzt/
K
kronos21525.06.25 12:5011ant schrieb:
Also vernachlässigbar, quer nicht mehr als 0,2 m schwankend ?Ich messe die Tage mal nach zur Sicherheit, aber ja Über das Baufenster ist (scheint) das Grundstück - quer - nicht abfallendK
kronos21529.06.25 16:46Das Grundstück fällt zur Seite nicht ab. Ich habe hier auf Basis einer anderen Architektenplanung einen weiteren groben Grundriss (ohne Keller) entwickelt und bitte um Kritik. Ich überlege aus dem Hauswirtschaftsraum im OG einen Luftraum zu machen und den Raum in die angrenzende Garage zu setzen. Mir gefällt die Ausrichtung der Räume. Das Schlafzimmer ist noch etwas groß. Die Küche könnte etwas klein sein (?). Bei 40 Grad Dachneigung müsste die Deckenhöhe auf Höhe der Drempelwand bei 1,50m liegen. Laut Bebauungsplan könnten wir bis 48 Grad gehen. Es bleiben 4m Abstand zum Nachbarn. Die Terrasse wäre im Nordwesten, da sich dort auch der Garten öffnet. Was ist eure Meinung zum Grundriss?
Sollte mit Keller gebaut werden würde der Eingang rechts sein und Hauswirtschaftsraum, Garage, Vorräte und Technik in den Keller wandern.


Sollte mit Keller gebaut werden würde der Eingang rechts sein und Hauswirtschaftsraum, Garage, Vorräte und Technik in den Keller wandern.
K
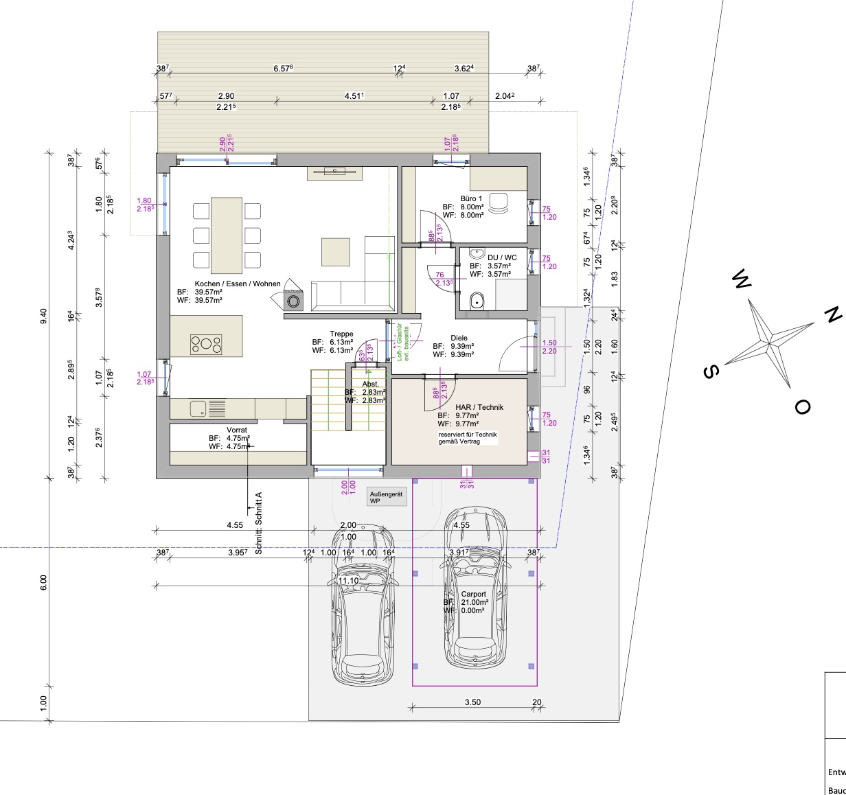
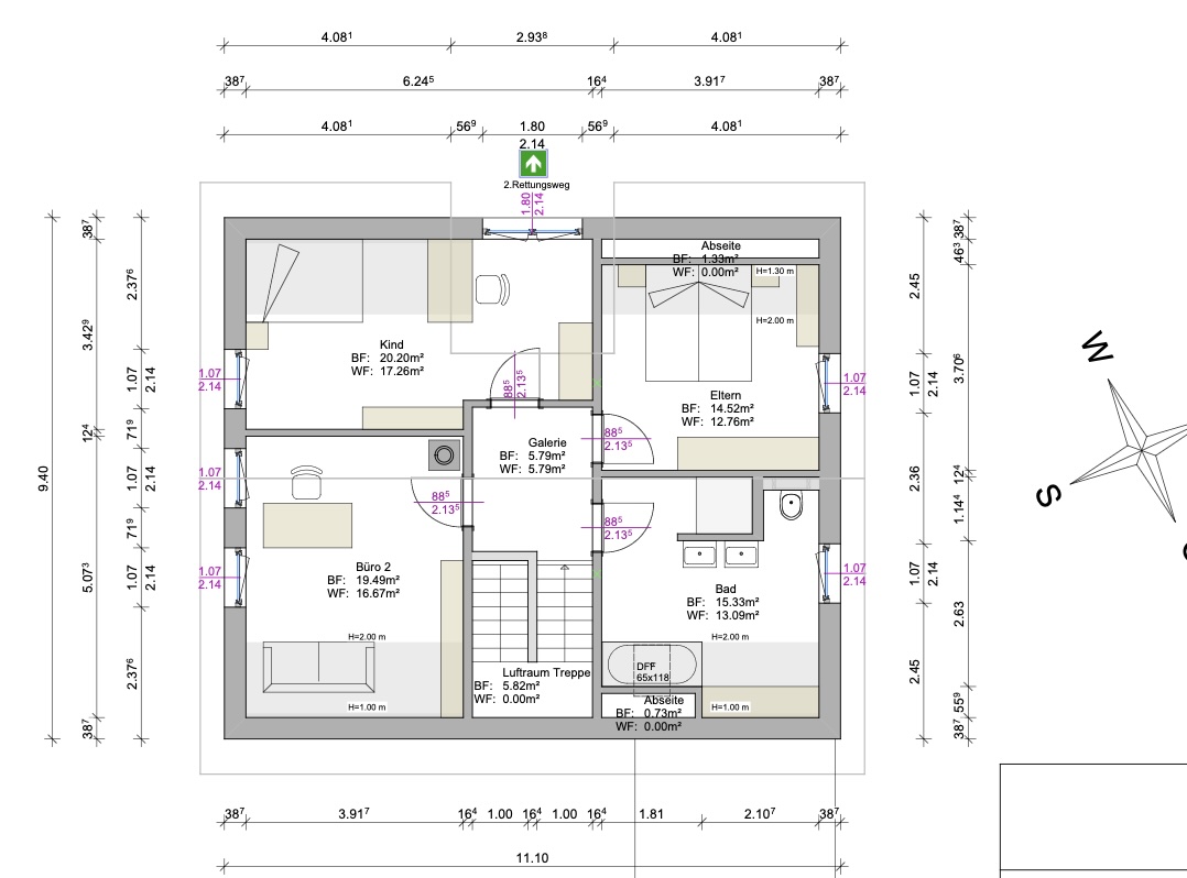
kronos21517.03.26 17:47Ich möchte dieses Thema noch mal wiederbeleben und die aktuelle Planung beifügen mit der Bitte um Kritik.
Wir haben ein paar der Vorschläge aus dem letzten Jahr einfließen lassen. Der Kamin wird evtl. noch wegfallen, da er zu nah an der Couch stehen müsste. Evtl. wird auch die Vorratskammer wegfallen, damit die Küche mehr Raum gewinnt und ein Fenster platziert werden kann, damit auch die Ansicht des Hauses von der Straße aus ansehnlicher wird. Ist die Vorratskammer notwendig oder wäre die Küche groß genug? Mein Empfinden ist, dass wir aktuell noch zu wenig Stauraum haben.
Über die Platzierung des Carports sind wir noch etwas unglücklich aber laut Planer wäre es neben dem Haus ggf. zu steil. Hinsichtlich Höhen habe ich auch die Höhenmessung angehängt. Ein zwar steiler Anstieg zum Haus würde wiederum bedeuten, dass der Anstieg hinter der Terrasse weniger steil wird.
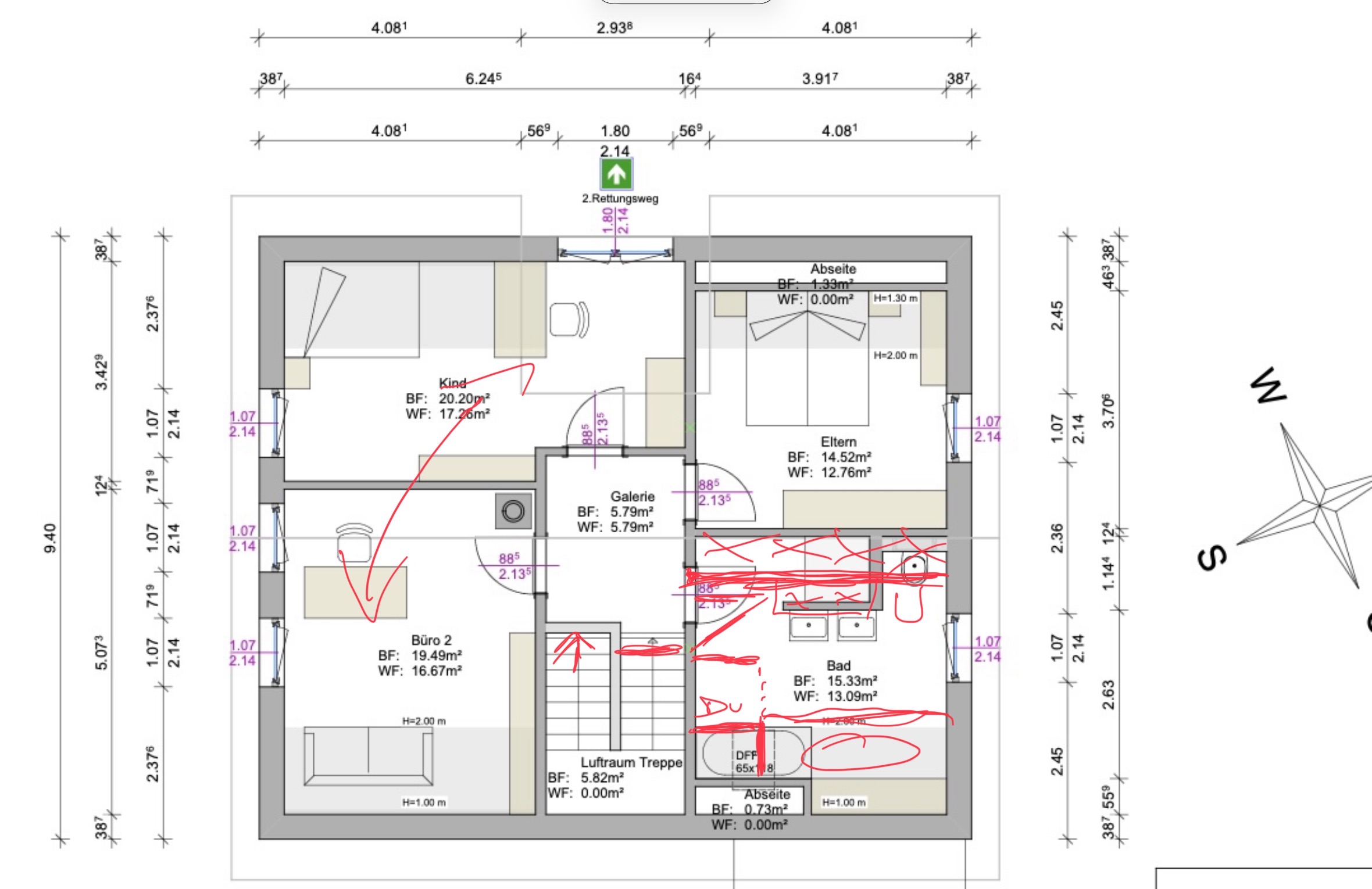
Die Anordnung im Bad werden wir evtl. noch überdenken. Gewünscht war eine T-Lösung die hier aber viel Licht raubt und die Dusche gezwungenermaßen gegenüber der Tür platziert. Das Elternschlafzimmer evtl. etwas zu klein, das Büro im OG dafür zu groß.
Wir sind maßgeblich eingeschränkt durch einen Kniestock von ca. 1m.
EG:

OG:







Wir haben ein paar der Vorschläge aus dem letzten Jahr einfließen lassen. Der Kamin wird evtl. noch wegfallen, da er zu nah an der Couch stehen müsste. Evtl. wird auch die Vorratskammer wegfallen, damit die Küche mehr Raum gewinnt und ein Fenster platziert werden kann, damit auch die Ansicht des Hauses von der Straße aus ansehnlicher wird. Ist die Vorratskammer notwendig oder wäre die Küche groß genug? Mein Empfinden ist, dass wir aktuell noch zu wenig Stauraum haben.
Über die Platzierung des Carports sind wir noch etwas unglücklich aber laut Planer wäre es neben dem Haus ggf. zu steil. Hinsichtlich Höhen habe ich auch die Höhenmessung angehängt. Ein zwar steiler Anstieg zum Haus würde wiederum bedeuten, dass der Anstieg hinter der Terrasse weniger steil wird.
Die Anordnung im Bad werden wir evtl. noch überdenken. Gewünscht war eine T-Lösung die hier aber viel Licht raubt und die Dusche gezwungenermaßen gegenüber der Tür platziert. Das Elternschlafzimmer evtl. etwas zu klein, das Büro im OG dafür zu groß.
Wir sind maßgeblich eingeschränkt durch einen Kniestock von ca. 1m.
EG:
OG:
Sieht doch schon ganz nett aus.
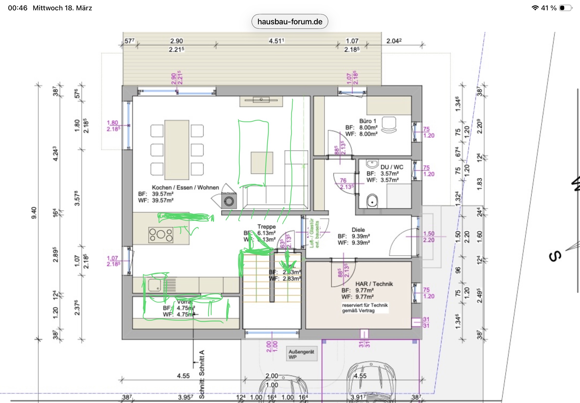
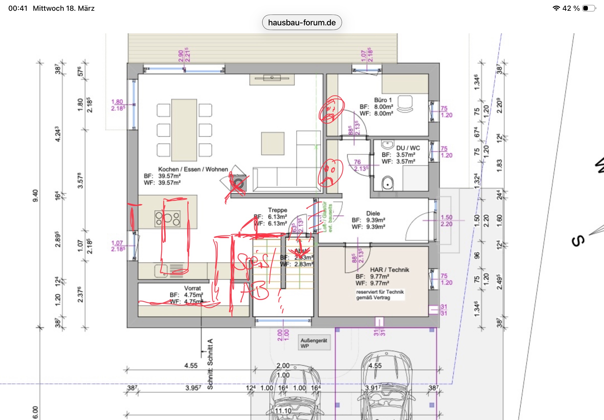
Ich würde den Treppenantritt wechseln und die Speis mit unter die Treppe verlegen oder Küche und WZ wechseln, da es wohl etwas entspannter für das WZ/Ess wird.


Der Garderoben- und der Büroschrank sind keine 60er Schränke, haben somit keine Kleiderschrankqualität! Mehrere Jacken auf Bügek werden da kaum Platz haben.
Im OG würde ich Büro und Kind tauschen. Kind verdient die Südseite, Büro darf sich eine Wand mit dem Schlafzimmer teilen.
Bad ist die Dusche vor der Tür. Könnte dort ständig feucht sein. Muss man wissen. Man könnte umplanen, siehe Skizzen.
Dachschrägenbäder eigenen sich nicht für ein T, und meist eh nicht für irgendwelche Wände, die irgendetwas abgrenzen, was nicht abgegrenzt werden muss.
Bei Antrittswechsel der Treppe kann man die Badtpr verschieben und zugunsten des Schlafzimmer die Mittelwand verschieben. Dann passt auch ein gängiger Schrank ins Schlafzimmer.
Darauf müsst Ihr achten: derzeit habt Ihr kaum Platz für Kleiderstangen, nicht in der Garderobe, nicht im Schlafzimmer. 2 Meter Schranklänge ist ok im Schlafzimmer, aber nicht üppig. Viele greifen auf den Schrankplatz im Büro, allerdings ist im EG eben auch kein Platz. Das Büro im OG wird wohl eher Hobby und Basteln beherbergen.


So etwas rumfrickeln sollte der Architekt schon noch, denn nur mit dem wieder zurückverschieben der Trennwand ist es nicht getan denn sie ist nicht ohne Grund dort, wo sie jetzt ist.
Wenn mit Speis, also größerer Speis geplant wird, dann macht daraus einen Hauswirtschaftsraum, auch für die Wäsche und nischt im Hauptflur Platz für einen ordentlichen Garderobenschrank von 2 Meter Länge. Das kann dann der TK-Raum platzmässig vertragen.
Was ich persönlich nicht gut finde: 3 Flure, Platzfresser Podesttreppe, im Westen fehlt noch ein Fenster im Allraum. Im Erker muss auf jeden Fall im EG ein Fenster!!!. Ich würde dort die Küche an die Terrasse planen (da gehört sie hin), ansonsten wird es bei Euch nämlich auf die 6,57 relativ kuschlig, wenn ein größeres Sofa, Kamin oder oft viele Gäste am Tisch Platz finden sollen.
Ich persönlich bin gar kein Freund von bodentiefen Fenstern im OG, die mehr schlitzartig nur für wenige Stunden die Sonne ins Haus lassen und die Privatssphäre stören. Ich würde auf breitere Brüstungsfenster gehen.
Ich würde den Treppenantritt wechseln und die Speis mit unter die Treppe verlegen oder Küche und WZ wechseln, da es wohl etwas entspannter für das WZ/Ess wird.
Der Garderoben- und der Büroschrank sind keine 60er Schränke, haben somit keine Kleiderschrankqualität! Mehrere Jacken auf Bügek werden da kaum Platz haben.
Im OG würde ich Büro und Kind tauschen. Kind verdient die Südseite, Büro darf sich eine Wand mit dem Schlafzimmer teilen.
Bad ist die Dusche vor der Tür. Könnte dort ständig feucht sein. Muss man wissen. Man könnte umplanen, siehe Skizzen.
Dachschrägenbäder eigenen sich nicht für ein T, und meist eh nicht für irgendwelche Wände, die irgendetwas abgrenzen, was nicht abgegrenzt werden muss.
Bei Antrittswechsel der Treppe kann man die Badtpr verschieben und zugunsten des Schlafzimmer die Mittelwand verschieben. Dann passt auch ein gängiger Schrank ins Schlafzimmer.
Darauf müsst Ihr achten: derzeit habt Ihr kaum Platz für Kleiderstangen, nicht in der Garderobe, nicht im Schlafzimmer. 2 Meter Schranklänge ist ok im Schlafzimmer, aber nicht üppig. Viele greifen auf den Schrankplatz im Büro, allerdings ist im EG eben auch kein Platz. Das Büro im OG wird wohl eher Hobby und Basteln beherbergen.
So etwas rumfrickeln sollte der Architekt schon noch, denn nur mit dem wieder zurückverschieben der Trennwand ist es nicht getan denn sie ist nicht ohne Grund dort, wo sie jetzt ist.
Wenn mit Speis, also größerer Speis geplant wird, dann macht daraus einen Hauswirtschaftsraum, auch für die Wäsche und nischt im Hauptflur Platz für einen ordentlichen Garderobenschrank von 2 Meter Länge. Das kann dann der TK-Raum platzmässig vertragen.
Was ich persönlich nicht gut finde: 3 Flure, Platzfresser Podesttreppe, im Westen fehlt noch ein Fenster im Allraum. Im Erker muss auf jeden Fall im EG ein Fenster!!!. Ich würde dort die Küche an die Terrasse planen (da gehört sie hin), ansonsten wird es bei Euch nämlich auf die 6,57 relativ kuschlig, wenn ein größeres Sofa, Kamin oder oft viele Gäste am Tisch Platz finden sollen.
Ich persönlich bin gar kein Freund von bodentiefen Fenstern im OG, die mehr schlitzartig nur für wenige Stunden die Sonne ins Haus lassen und die Privatssphäre stören. Ich würde auf breitere Brüstungsfenster gehen.
Ähnliche Themen