Hausbau - Ratgeber
Bauherrenhilfe
- Bauherrenhilfe vor Vertragsabschluss
-- Warum einen unabhängigen Baubetreuer?
-- Vertragsgrundlagen
-- Bausumme
-- Zahlungsplan zur Kostenkontrolle
-- Pflichten des Bauherren vor Vertragsabschluss
-- Unterlagen beim Hausbau vor Vertragsabschluss
- Bauherrenhilfe nach Vertragsabschluss
-- Bauantrag bei Behörden
-- Bau-Genehmigungsverfahren bei Baubehörden
-- Bauspezifische Versicherungen
-- Bauzeitenplan
-- Baubeginn - die Letzten Pflichten der Bauherrschaft
- Bauherrenhilfe während der Bauzeit
- Gewährleistungsansprüche
- Bauabnahme
Baufinanzierung
- Baufinanzierung - Allgemeine Fragen
- Kreditarten
- Kredit-Konditionen
- Bausparen
- Staatliche Förderungen
- Verkehrswert
- Haushaltsrechnung und Bonität
Hausbau Planung
- Haustypen
- Hausbau Vorbereitungsarbeiten
- Das Baugrundstück
- Baugrund beim Hausbau
- Baurecht
- Gebäudeschutz
- Erdarbeiten und Wasserhaltung
- Stützmauern
- Einfriedung
- Untergeschoss
- Kanalisation
- Tragende Elemente
- Nichttragende Innenwände
- Fundation / Fundament
- Deckenkonstruktionen
- Dächer
- Kaminanlagen
- Treppen Rampen Leitern
- Dachbeläge und Spengler
- Fenster
- Sonnen und Wetterschutz
- Aussenputze
- Einbauten, Küchen, Türen
- Bodenbeläge und Unterlagsböden
- Parkett
- Gips, Wand, Decke
Haustechnik und Energie
- Heiztechnik
- Lüftung und Klimatechnik
- Sanitärtechnik
- Elektrotechnik
- Erneuerbare Energie
Whirlpools / Jacuzzi
Hausbau Magazin
- Baufinanzierung trotz Krise?
- Das Blockhaus
- Moderne Dämmstoffe im Vergleich
- Erker Vor- und Nachteile
- Glasflächen beim Hausbau
- Günstig ein Haus Bauen
- Mediterraner Hausbaustil
- Mehrgenerationenhaus
- Moderne Architektur
- Gartengestaltung leicht gemacht
- Traditioneller Ziegelbau
- Villa als höchster Traum
- Im Eigenheim Ruhestand geniessen
- Altbau sanieren
- Kauf einer Holzgarage
- Immobilienmakler
- Arbeitshandschuhe für den Winter
- Zuhause verschönern
- Outdoor-Plissees
- Schlafzimmer planen
- Terrassenüberdachung
- Wohngebäudeversicherung
- Zaunarten und Eigenschaften
- Hauseingang gestalten
- Der perfekte Grundriss
- Sparsamer heizen im Altbau
- Einfamilienhaus smart finanzieren
- Planung einer PV-Anlage
- Neues Haus
- Immobilienfinanzierung
- Installation einer Photovoltaikanlage
- Asbest erkennen und entfernen
- Gartenpflege im Frühling – worauf achten
- Sauna im Fokus - Wellness zuhause
- Erfolgreich vermieten
- Die perfekte Winterbekleidung
- Das Niedrigenergiehaus
- Der April und seine Stürme
- Architektonische Vielfalt
- Ökologisch und nachhaltig bauen
- Das perfekte Schlafzimmer
- Nachhaltige Energieversorgung
- Zukunftsorientiert bauen
- Nachhaltigkeit beim Hausbau
- Tiny Houses
- Wärmepumpen als nachhaltige Heizvariante
- Maßgeschneiderten Kleiderschrank
- Der richtige Baukredit
- Ratgeber für erfolgreichen Hausbau
- Haus als Altersvorsorge
Do-it-yourself Anleitungen
- Verlegeanleitung für Bodenbeläge und Parkett
- Bodenbeläge und Parkett reinigen und pflegen
- Malerarbeiten am Haus
- Garten Tipps
- Umzug und Reinigung

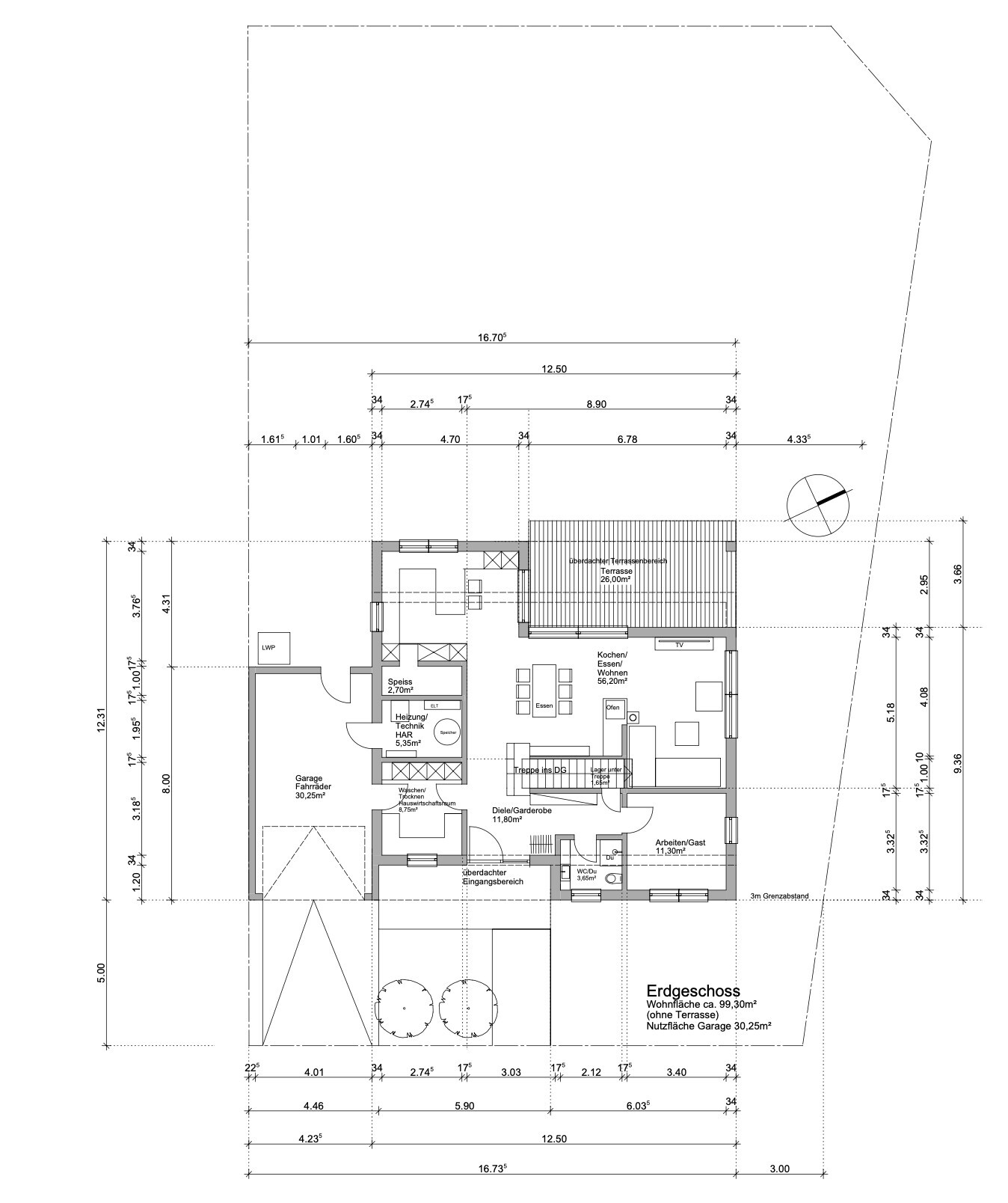
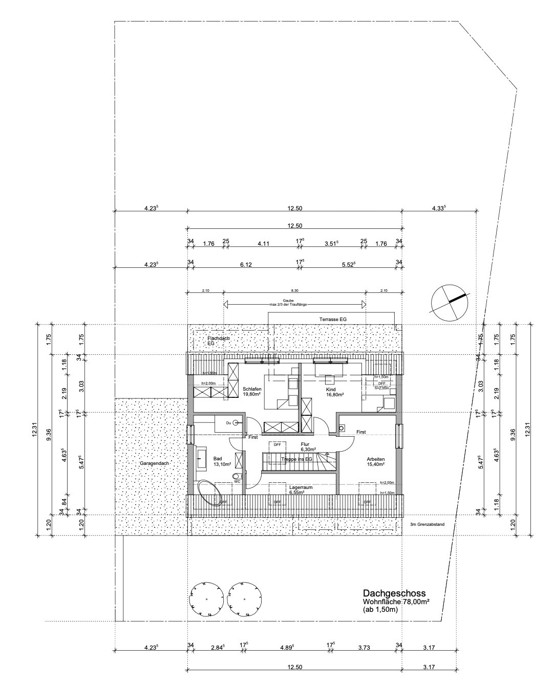
ᐅ Grundriss Einfamilienhaus, leichte Hanglage, NW-Ausrichtung

Erstellt am: 23.05.25 18:30
K
kronos215
K
kronos215
23.05.25 18:30
Hallo zusammen,

wir haben unsere Planung mit dem Architekten fast abgeschlossen und würden euch bitten ebenfalls einen kritischen Blick auf den Grundriss zu werfen.
Anschließend möchten wir in die Ausschreibung gehen.
Das EG gefällt uns grundsätzlich sehr gut. Wir überlegen allerdings das Haus zu spiegeln und noch Änderungen am OG vorzunehmen. Die Garage, Hauswirtschaftsraum und Technik würde nach rechts wandern und das gesamte Haus näher an die Nachbarhecke (links, 3m Abstand) rücken. Das Wohnzimmer sitzt dann links. Fraglich ob der Blick auf die Nachbarhecke in 3m Abstand schöner ist. Positiv: das Haus ist besser nach Süden ausgerichtet und lässt mehr Sonne rein. Die Küche sitzt dann rechts und bietet einen Windschutz vom offenen Feld auf der Terrasse. Gleichzeitig erreicht die Sonne auch die Terrasse.

Eckgrundstück, ein Nachbar links, oben und rechts nur Feld
Fläche EG: 99m2 (ohne Terrasse), Garage 30m2
Fläche OG: 78m2 (ab 1,5m)

Bebauungsplan/Einschränkungen
Größe des Grundstücks
ca. 750m2

Hang
ja, bergseitig. Es liegt ein Kanaldeckel auf der Straße vor dem Grundstück und hinter dem Grundstück. Der Höhenunterschied der Deckel beträgt ca. 3m. Das Grundstück steigt zunächst ca. 1m ab Bürgersteig an und

Randbebauung
ja, es handelt sich um ein Eckgrundstück. Es gibt einen Nachbarn auf der linken Seite. Hinter dem Haus und rechts davon befindet sich ein Feldweg und Felder.

Anzahl Stellplatz
die anliegende Straße sollte genügend Stellplätze bereitstellen. Eine Garage ist zudem vorgesehen.

Geschossigkeit
laut Bebauungsplan sind 1,5-geschossige Häuser zulässig

Dachform
laut Bebauungsplan sind nur Satteldächer erlaubt

Ausrichtung
Nordwest

Maximale Höhen/Begrenzungen
laut Bebauungsplan muss das Haus genauer in dieser Flucht gebaut werden

Anforderungen der Bauherren
Stilrichtung, Dachform, Gebäudetyp
Landhausstil, Satteldach (traufseitig zur Straße), Einfamilienhaus

Keller, Geschosse
Keller anfänglich geplant, wurde aber aus Budgetgründen verworfen. 1,5 Geschosse laut Bebauungsplan erlaubt und geplant

Anzahl der Personen, Alter
zwei Erwachsene, Anfang 30, (noch) kein Kind aber ein Kinderzimmer vorgesehen

Raumbedarf im EG, OG
EG: Garage, Diele, Büro 1, Küche, Wohnzimmer, Esszimmer, Speisekammer, Technik, Hauswirtschaftsraum, Gästebad mit Dusche
OG: Schlafzimmer, Kinderzimmer, Büro 2, Badezimmer, Lagerraum (wurde mal so geplant wegen fehlendem Keller)

Büro: Familiennutzung oder Homeoffice?
beide Büros werden aktuell aufgrund des Jobs benötigt

Schlafgäste pro Jahr
sehr selten bis gar keine

laut Bebauungsplan sind 1,5-geschossige Häuser zulässig
eher offen

konservativ oder moderne Bauweise
modern (?)

offene Küche, Kochinsel
offene Küche geplant, Kochinsel gewünscht aber aufgrund von Platzmangel verworfen

Anzahl Essplätze
6, möglichst erweiterbar auf 10

Kamin
gewünscht und geplant als Trennbereich zwischen Ess- und Wohnzimmer

Musik/Stereowand
gewünscht, Nische im Wohnzimmer eignet sich gut

Balkon, Dachterrasse
gewünscht aber aus Budgetgründen verworfen

Garage, Carport
vorgesehen, fraglich, ob Garage nicht lieber rechts angeordnet werden sollte, um die Südseite nicht zu versperren

Hausentwurf
Von wem stammt die Planung:
Architekt

Was gefällt besonders? Warum?
Der offene Wohn- und Essbereich. Der offene Blick auf die Felder
Die Gaube im OG

Was gefällt nicht? Warum?
Der Flur im OG wirkt dunkel. Viele Dachfenster sind geplant (Kniestock 80cm laut Bebauungsplan, Satteldach Traufseitig zur Straße)
Auch das EG könnte dunkel sein. Die Garage ist im Süden platziert. Die offenen Fenster zu den Feldern liegen im Nordosten.
Dachfenster versperren die Möglichkeit für Photovoltaik und Spitzboden
Lagerraum wirkt deplatziert
Da früher ein Keller geplant war sollte auch ein Hobbyraum vorgesehen werden, dieser fällt weg
Das Elternbett liegt direkt am Kinderzimmer an. Das Schlafzimmer muss aber dort geplant sein

Preisschätzung laut Architekt:
540.000€ (finden wir sportlich, wir rechnen mit mehr und würden daher auch gerne den Grundriss kompakter gestalten)

Persönliches Preislimit fürs Haus, inkl. Ausstattung:
550.000€ (all-in)

favorisierte Heiztechnik:
Wärmepumpe

Wenn Ihr verzichten müsst, auf welche Details/Ausbauten
-könnt Ihr verzichten: ein Luftraum war geplant, wurde bereits entfernt, Lagerraum im OG (wirklich notwendig?), EG könnte allgemein wahrscheinlich kleiner werden um Kosten zu sparen
-könnt Ihr nicht verzichten: große Fenster im EG, offener Wohn-Essbereich, Zugang zum Haus über Garage und Hauswirtschaftsraum, Kamin, Speisekammer

Warum ist der Entwurf so geworden, wie er jetzt ist? ZB
Entsprechende/Welche Wünsche wurden vom Architekten umgesetzt? Der Architekt hat das Raumkonzept gut umgesetzt und hat viele eigene Ideen einfließen lassen die wir großteils als stimmig erachten.
Was macht ihn in Euren Augen besonders gut oder schlecht? Das EG gefällt uns sehr gut, im OG gibt es noch Änderungspotenial. Über der Eingangstür hätten wir gerne ebenfalls eine weitere Gaube, das scheint aber durch den Bebauungsplan nicht möglich zu sein (OG wird zum Vollgeschoss, wenn zu viel Fläche durch Gaube(n) betroffen.) Das Arbeitszimmer könnte dann dort sitzen wo aktuell der Lagerraum ist. Der Lagerraum könnte zu einer Art Lager- und Hobbyraum werden.


Wir sind für jeglichen Input und Anregung dankbar. Vor allem zu denken macht uns die Ausrichtung nach Süden. Wir möchten nicht, dass die Räume zu dunkel werden.
Grundriss Dachgeschoss: Schlafzimmer, Kind, Arbeitszimmer, Bad, Flur und Terrasse.

Architektur-Querschnitt eines Hauses: Erdgeschoss (EG) und Dachgeschoss (DG) mit Dachgiebel.

Grundriss Erdgeschoss eines Hauses mit Küche, Wohnzimmer und Garage
11ant23.05.25 19:20
Diese Planung solltet Ihr verwerfen, und wohl am besten den Planer gleich mit. Unter viel schlechteren Vorzeichen kann ein Hausentwurf wohl kaum stehen: Ihr selbst findet ihn schon von den Himmelsrichtungen her umkrempelungsbedürftig, und hättet ihn aus Preisgründen gerne kleiner. Um den kompletten Keller (und einen - allerdings ist es um diesen nicht schade - Luftraum) ist der Entwurf bereits verkleinert worden, ohne daß dies vor der Konzeption geschehen wäre. Da glaubt Ihr doch selbst nicht wirklich, wenn hier noch Vorschläge ein Fenster zu verschieben und eine Tür zu drehen gemacht würden, dann wäre der Murks plötzlich sauber baureif. Im übrigen habe ich den Eindruck, die Hauseinführungen wären überbaut. Der "Architekt" ist wohl eher ein Plänemacher eines Hausherstellers (welcher wäre das hier ?).
https://www.instagram.com/11antgmxde/
https://www.linkedin.com/company/bauen-jetzt/
K
kronos215
23.05.25 19:29
11ant schrieb:

Diese Planung solltet Ihr verwerfen, und wohl am besten den Planer gleich mit. Unter viel schlechteren Vorzeichen kann ein Hausentwurf wohl kaum stehen: Ihr selbst findet ihn schon von den Himmelsrichtungen her umkrempelungsbedürftig, und hättet ihn aus Preisgründen gerne kleiner. Um den kompletten Keller (und einen - allerdings ist es um diesen nicht schade - Luftraum) ist der Entwurf bereits verkleinert worden, ohne daß dies vor der Konzeption geschehen wäre. Da glaubt Ihr doch selbst nicht wirklich, wenn hier noch Vorschläge ein Fenster zu verschieben und eine Tür zu drehen gemacht würden, dann wäre der Murks plötzlich sauber baureif. Im übrigen habe ich den Eindruck, die Hauseinführungen wären überbaut. Der "Architekt" ist wohl eher ein Plänemacher eines Hausherstellers (welcher wäre das hier ?).

Der Plan hat sicher seine Schattenseiten (wortwörtlich) aber so kritisch haben wir es bisher noch nicht empfunden.
Ist eine grundlegende Neuplanung wirklich notwendig und überhaupt umsetzbar? Die Ausrichtung des Grundstücks ist ja nun mal wie sie ist, das Baufenster ist auch fix vorgegeben, eine Garage ist ein Muss und das Grundstück ist im unteren Bereich leider etwas schmal und läuft konisch breiter aus.

Der Architekt ist von keiner Baufirma sondern wurde frei beauftragt um einen Plan zu entwickeln auf dessen Basis wir ausschreiben. Diese Vorgehensweise wird oftmals empfohlen
11ant23.05.25 20:37
kronos215 schrieb:

Ist eine grundlegende Neuplanung wirklich notwendig und überhaupt umsetzbar? Die Ausrichtung des Grundstücks ist ja nun mal wie sie ist, das Baufenster ist auch fix vorgegeben,
Das Baufenster ist in der Zeichnung nicht erkennbar - mir ist aber auch nicht klar, weshalb es von einer Neuplanung gesprengt werden sollte. Ja, natürlich sollte diese grundlegend sein - offenbar im Gegensatz zur bisherigen.
kronos215 schrieb:

Der Architekt ist von keiner Baufirma sondern wurde frei beauftragt
Wenn die merkwürdigen Maße nicht von einem System eines Hausherstellers herrühren, dann sind es bedenkliche Phantasiemaße, die mich noch weiter an der Qualifikation des Planers zweifeln lassen. Belese Dich über die Forensuche mit dem Stichwort "Pfuschertaschen".
kronos215 schrieb:

um einen Plan zu entwickeln auf dessen Basis wir ausschreiben. Diese Vorgehensweise wird oftmals empfohlen
Auf Basis einer Entwurfszeichnung auszuschreiben, wäre ein teurer Fehler. Wo soll ein solcher Weg denn empfohlen werden ?
Schaue auf "Bauen jetzt" in meinen Hausbau-Fahrplan. Absolviere dann mit einem (tauglichen !) Architekten das "Modul A" und in der Teigruhe die Weichenstellung. Aus deren Ergebnis kannst Du ableiten, ob mit dem Architekten dann hölzern oder steinern entweder nur die Leistungsphase 3 weitergeplant werden soll und ein Hausanbieter ab der Leistungsphase 4 übernimmt oder ob der Architekt als nächste Tranche das gesamte "Modul B" erledigen soll. Ausgeschrieben wird erst im "Modul C", da man dafür als Grundlage die Detailplanung benötigt. Mit einer Ausschreibung auf Basis der Bauantragszeichnungen kann man ein Vielfaches des Geldes verbrennen, das eine weitere Planung "gekostet" hätte (oder besser gesagt: in der es gut angelegt gewesen wäre). Eine unerfahrene Ausschreibung potenziert jeden Planungsmangel. Und in der Weichenstellung findet man erst einmal kostengünstig heraus, ob man überhaupt eine Individualplanung bauen "muß".
https://www.instagram.com/11antgmxde/
https://www.linkedin.com/company/bauen-jetzt/
Y
ypg
23.05.25 20:46
Ehrlich, Ihr Beiden?
Ich habe den Thread als Beobachtung gesetzt, mir die beiden Geschosse separat aufgerufen, den Eingangsbeitrag nur die ersten Zeilen durchgelesen, den Beitrag von @11ant gelesen und mir mal das EG angeschaut, hinsichtlich der Ansage des einen, das spiegeln zu können - des anderen, dass der Entwurf Mist sein soll.
Ich habe ihn für machbar gehalten (zur so einer mikrigen Speis von einem Meter Tiefe oder einer Schmutzschleuse, die durch frisch gewaschene Wäsche führt, komme ich eh erst später), aber erst einmal einen ersten Eindruck und war nur verwundert wegen der Treppe, die da quer steht. Dann natürich fehlende Sichtachsen (ich erwarte da etwas mehr bei einem Architektenentwurf).. aber alles gut: modifizieren kann man ja bei einem guten Entwurf.
Dann rufe ich das Dachgeschoss auf und stelle den Fehler fest: die quer verlaufende Treppe schiesst doch wortwörtlich quer und macht aus dem DG eine Flickarbeit. Schlafen ist recht unsortiert und für sich eine Flickarbeit mit den Schränken. Der Abstellraum nur mit geducktem Kopf begehbar.

Die Garage im SW hätte ich nicht so gemacht. Das ist die Schokoladenseite für Licht im Allraum. Mir fallen die 34er Wände auf. Unter 40 würde ich schon gar nicht mehr amateurhaft planen wollen, den sie werden eh 42 oder dicker.
Unten ist viel Fläche, oben irgendiwe gar nicht.

Sodenn lese ich mal die Wünsche und den Beitrag, warum es so ist wie es ist (Aussicht planoben und planrechts habe ich drauf).

.. und muss dann so etwas lesen:
kronos215 schrieb:

Das Schlafzimmer muss aber dort geplant sein
.. als ob ein Gesetz so eine Raumlage vorschlägt. Das Schlafzimmer ist der schlechteste geplante Raum in diesem Forum 2025. Dennoch ist er nicht der Grund, dass es unten zwar viel Fläche gibt, aber irgendwie alles beengt wirkt, und der Entwurf oben eigentlich verloren hat.
K
kronos215
23.05.25 20:56
ypg schrieb:


.. als ob ein Gesetz so eine Raumlage vorschlägt. Das Schlafzimmer ist der schlechteste geplante Raum in diesem Forum 2025. Dennoch ist er nicht der Grund, dass es unten zwar viel Fläche gibt, aber irgendwie alles beengt wirkt, und der Entwurf oben eigentlich verloren hat.

ich wollte zu dieser Entscheidung noch mehr schreiben. Leider kann man einen Beitrag nur für 4 Minuten editieren.
Das Schlafzimmer sollte in dieser Ecke geplant werden, weil hinter dem Feld auf der rechten Seite in ca. 500m eine Bundesstraße verläuft, die je nach Windrichtung und Luftfeuchtigkeit deutlich hörbar ist. Ich bin in der Straße in der Nähe aufgewachsen. Als Kind stört das nicht, später schon. Daher wurde das Schlafzimmer auf die andere Seite geplant.

Die Sichtachse im Wohn-Essbereich finde ich eigentlich nicht schlecht. Ich höre sehr viel Kritik, kann diese auch nachvollziehen, lese aber leider keine Ansätze wie es besser gelöst werden könnte.

Das OG gefällt uns auch nicht, daher die Bitte um Input in diesem Forum und nicht der direkte Schritt Richtung Bauträger. Ehrlich gesagt ist man aber doch etwas gehemmt, auf gut Glück eine neue Planung anzugehen, die ein weiteres mal eine mittlere vierstellige Summe kosten wird ohne zu Wissen, ob diese unter den gegebenen Bedingungen wirklich besser wird.
architektengaragebebauungsplanhausentwurfeckgrundstückkellerschlafzimmerlagerraumdachfensterwohnzimmer