ᐅ 200m2 Einfamilienhaus für 4-5 Personen ohne Keller auf schmalem Grundstück
Erstellt am: 07.09.19 18:07
hausbauer07.09.19 18:07
Hallo,
bin schon gespannt auf eure Meinungen zu dem Entwurf
Danke vorab für eure Anregungen!
Bebauungsplan/Einschränkungen
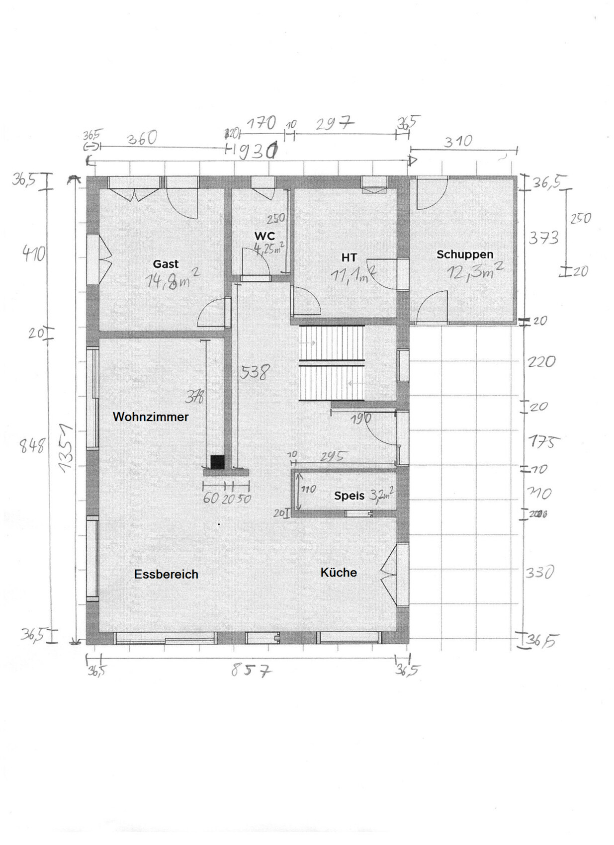
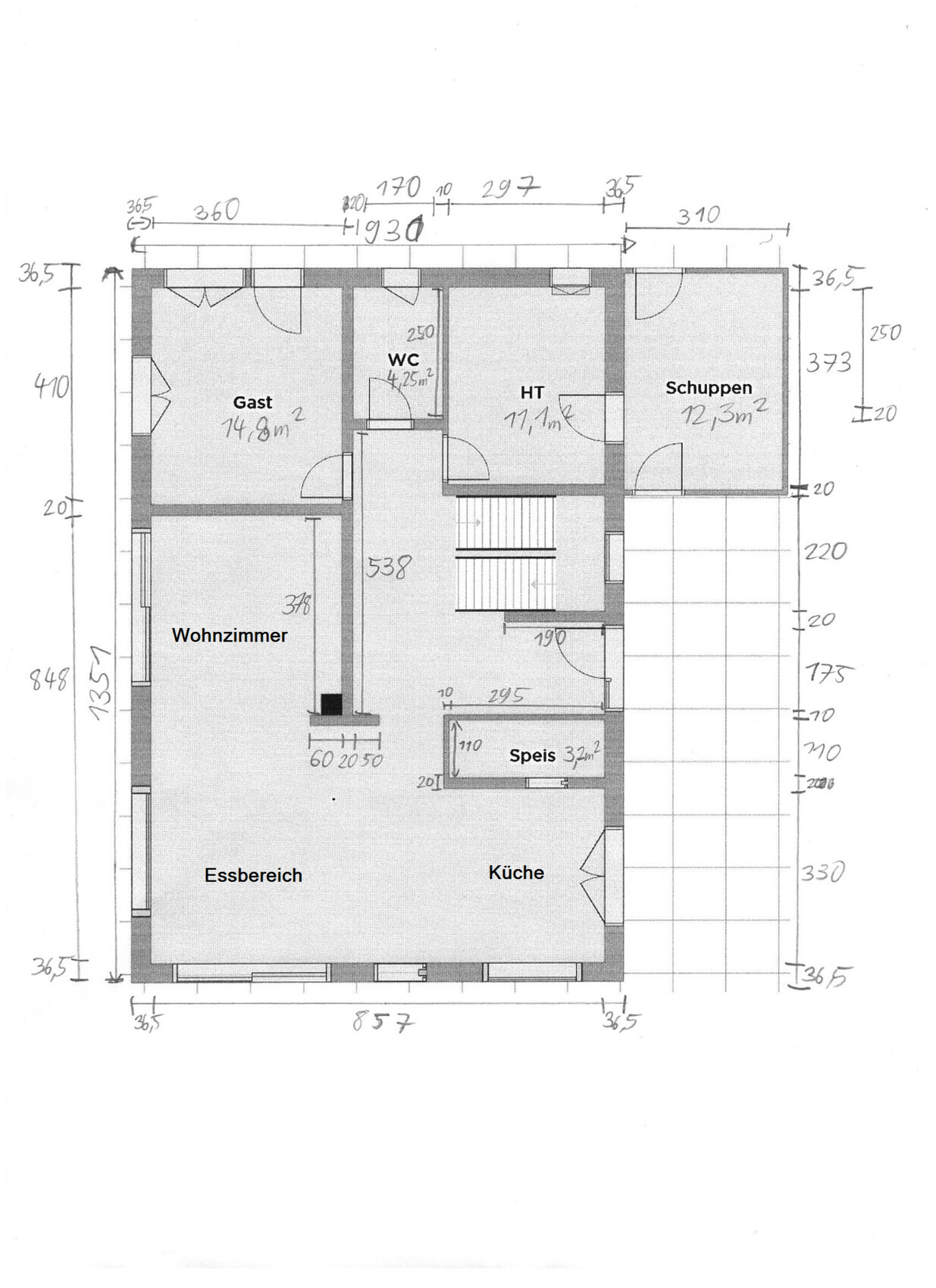
Größe des Grundstücks 525m^2, 17 m schmal entlang Straße unten im Süden x 31m lang in Nord-Süd Richtung
Hang komplett eben
Grundflächenzahl 0,4
Geschossflächenzahl 0,8
Baufenster, Baulinie und –grenze jeweils 5m von Straße im Süden und von der Nordgrenze
Randbebauung
Anzahl Stellplatz 2
Maximale Höhen/Begrenzungen 8m Gesamthöhe (Dachboden wird recht niedrig)
Anforderungen der Bauherren
Keller, Geschosse 2 Vollgeschosse ohne Keller
Anzahl der Personen, Alter 2 Erwachsene + 2 Kinder (derzeit noch klein) + möglicherweise ein drittes Kind
Raumbedarf im EG, OG 2 Kinderzimmer, 1 Büro/Gästezimmer das groß genug für ein weiteres Kinderzimmer wäre, 1 zusätzlicher kleiner Büroraum, Gästebad mit Dusche, offener Wohn-Essbereich
Büro: Familiennutzung oder Homeoffice? Nur für Arbeit nach Feierabend und am Wochenende, sowie für Steuern etc.
Schlafgäste pro Jahr wenige
offene oder geschlossene Architektur
Balkon, Dachterrasse nein
Garage, Carport Doppelgarage wäre gut, wird aber wohl nicht hinpassen?
Nutzgarten, Treibhaus nein
weitere Wünsche/Besonderheiten/Tagesablauf, gern auch Begründungen, warum dieses oder das nicht sein soll
Schlafzimmer im Norden wegen freiem Ausblick; kein Nordgarten, da es uns wegen Abschattung durch umliegende Häuser dort im Herbst/Winter zu dunkel wäre; Allgemein ist uns viel Licht wichtig in den Wohnräumen
Genug Nutzfläche/Stellfläche innerhalb des Hauses (großer Haustechnik- und Hauswirtschaftsraum), da uns der Keller fehlt und auf dem Grundstück Platz fehlt für allzu große Gartenschuppen
Hausentwurf
Von wem stammt die Planung: Selbst auf Basis einer Vorlage
Was gefällt besonders? Warum? Anordnung im OG (schöne Kinderzimmer mit Süd- bzw. Südwestausrichtung, Schlafzimmer nach Norden, großer Hauswirtschaftsraum), Möglichkeit für zweite Terrasse im Norden beim Gästezimmer für Schatten und Ausblick nach Norden im Hochsommer
Was gefällt nicht? Warum? Etwas schmaler Eingangsbereich im EG, ansonsten sind wir einfach recht unerfahren was gut oder schlecht sein könnte im Alltag.
Wenn Ihr verzichten müsst, auf welche Details/Ausbauten
-könnt Ihr verzichten: große Flurflächen, notfalls Podesttreppe (stattdessen platzsparendere Treppe), notfalls Speis neben der Küche (könnte durch Raum unter Treppe ersetzt werden), Womöglich muss aus Statik-Gründen noch eine zusätzliche Trennwand in den Hauswirtschaftsraum eingezogen werden (könnte man als Raumtrenner für mehr Stellfläche aber ganz gut verwenden)
-könnt Ihr nicht verzichten: Südausrichtung von Wohn-Essbereich, ausreichend Platz für Fahrräder etc. auf dem Grundstück (wird aktuell etwas eng)
Fragen zum Grundriss:
- Ist das Grundstück gut ausgenutzt?
- Ist der Eingangsbereich mit 175cm zu schmal?
- Sind die Räume so praktisch für eine 4 bis 5-Köpfige Familie angeordnet?
- Haben wir genug Stauraum, da uns der Keller fehlt und der Dachboden recht niedrig ist?
- Ist es ein großer Nachteil wegen Schallübertragung, dass die beiden Kinderzimmer direkt Wand an Wand sind?
Anmerkung: Das Ganze wird noch mal von einem Profi überarbeitet, sobald uns die Anordnung grundsätzlich passt. Dann werden die Maße nicht mehr so krumm sein, die Zeichnungen schöner und die Statik belastbar. Ich wäre nur schon vorab an Rückmeldungen interessiert, wo die Schwachpunkte liegen könnten und was gute Alternativen wären.



bin schon gespannt auf eure Meinungen zu dem Entwurf
Danke vorab für eure Anregungen!
Bebauungsplan/Einschränkungen
Größe des Grundstücks 525m^2, 17 m schmal entlang Straße unten im Süden x 31m lang in Nord-Süd Richtung
Hang komplett eben
Grundflächenzahl 0,4
Geschossflächenzahl 0,8
Baufenster, Baulinie und –grenze jeweils 5m von Straße im Süden und von der Nordgrenze
Randbebauung
Anzahl Stellplatz 2
Maximale Höhen/Begrenzungen 8m Gesamthöhe (Dachboden wird recht niedrig)
Anforderungen der Bauherren
Keller, Geschosse 2 Vollgeschosse ohne Keller
Anzahl der Personen, Alter 2 Erwachsene + 2 Kinder (derzeit noch klein) + möglicherweise ein drittes Kind
Raumbedarf im EG, OG 2 Kinderzimmer, 1 Büro/Gästezimmer das groß genug für ein weiteres Kinderzimmer wäre, 1 zusätzlicher kleiner Büroraum, Gästebad mit Dusche, offener Wohn-Essbereich
Büro: Familiennutzung oder Homeoffice? Nur für Arbeit nach Feierabend und am Wochenende, sowie für Steuern etc.
Schlafgäste pro Jahr wenige
offene oder geschlossene Architektur
Balkon, Dachterrasse nein
Garage, Carport Doppelgarage wäre gut, wird aber wohl nicht hinpassen?
Nutzgarten, Treibhaus nein
weitere Wünsche/Besonderheiten/Tagesablauf, gern auch Begründungen, warum dieses oder das nicht sein soll
Schlafzimmer im Norden wegen freiem Ausblick; kein Nordgarten, da es uns wegen Abschattung durch umliegende Häuser dort im Herbst/Winter zu dunkel wäre; Allgemein ist uns viel Licht wichtig in den Wohnräumen
Genug Nutzfläche/Stellfläche innerhalb des Hauses (großer Haustechnik- und Hauswirtschaftsraum), da uns der Keller fehlt und auf dem Grundstück Platz fehlt für allzu große Gartenschuppen
Hausentwurf
Von wem stammt die Planung: Selbst auf Basis einer Vorlage
Was gefällt besonders? Warum? Anordnung im OG (schöne Kinderzimmer mit Süd- bzw. Südwestausrichtung, Schlafzimmer nach Norden, großer Hauswirtschaftsraum), Möglichkeit für zweite Terrasse im Norden beim Gästezimmer für Schatten und Ausblick nach Norden im Hochsommer
Was gefällt nicht? Warum? Etwas schmaler Eingangsbereich im EG, ansonsten sind wir einfach recht unerfahren was gut oder schlecht sein könnte im Alltag.
Wenn Ihr verzichten müsst, auf welche Details/Ausbauten
-könnt Ihr verzichten: große Flurflächen, notfalls Podesttreppe (stattdessen platzsparendere Treppe), notfalls Speis neben der Küche (könnte durch Raum unter Treppe ersetzt werden), Womöglich muss aus Statik-Gründen noch eine zusätzliche Trennwand in den Hauswirtschaftsraum eingezogen werden (könnte man als Raumtrenner für mehr Stellfläche aber ganz gut verwenden)
-könnt Ihr nicht verzichten: Südausrichtung von Wohn-Essbereich, ausreichend Platz für Fahrräder etc. auf dem Grundstück (wird aktuell etwas eng)
Fragen zum Grundriss:
- Ist das Grundstück gut ausgenutzt?
- Ist der Eingangsbereich mit 175cm zu schmal?
- Sind die Räume so praktisch für eine 4 bis 5-Köpfige Familie angeordnet?
- Haben wir genug Stauraum, da uns der Keller fehlt und der Dachboden recht niedrig ist?
- Ist es ein großer Nachteil wegen Schallübertragung, dass die beiden Kinderzimmer direkt Wand an Wand sind?
Anmerkung: Das Ganze wird noch mal von einem Profi überarbeitet, sobald uns die Anordnung grundsätzlich passt. Dann werden die Maße nicht mehr so krumm sein, die Zeichnungen schöner und die Statik belastbar. Ich wäre nur schon vorab an Rückmeldungen interessiert, wo die Schwachpunkte liegen könnten und was gute Alternativen wären.
haydee07.09.19 18:32
Hast du schon einmal Möbel im Maßstab eingezeichnet?
hausbauer07.09.19 18:49
Ja, hab das schon mal probiert, die gängigen Möbel sollten reinpassen. Ich muss mir mal eine ordentliche Planungssoftware besorgen. Vielleicht sitzt man im 3,60m breiten Wohnzimmer etwas zu nahe am Fernseher?
haydee07.09.19 19:57
Das musst du entscheiden
Mache bei solchen Fragen den Meter zu deinem Besten Freund.
Kritik höflich verpacken. Du musst ja nicht sagen dass die Gästetoilette ein besseres Dixi ist. Wir planen und ihr habt ein Gäste-WC ohne Dusche. Wie sind die Abmessungen ?
Messe bei dir zu Hause, bei deinen Eltern oder guten Freunden nach.
Messe doch deinen Abstand zu Hause. Passt er? Zu weit? Zu viel?
Ist für mich sehr knapp der Abstand
Nimm nicht nur gängige Möbel sondern eure gewünschten. XXL Sofa, größer Tisch, breiteres oder längeres Bett
Mache bei solchen Fragen den Meter zu deinem Besten Freund.
Kritik höflich verpacken. Du musst ja nicht sagen dass die Gästetoilette ein besseres Dixi ist. Wir planen und ihr habt ein Gäste-WC ohne Dusche. Wie sind die Abmessungen ?
Messe bei dir zu Hause, bei deinen Eltern oder guten Freunden nach.
Messe doch deinen Abstand zu Hause. Passt er? Zu weit? Zu viel?
Ist für mich sehr knapp der Abstand
Nimm nicht nur gängige Möbel sondern eure gewünschten. XXL Sofa, größer Tisch, breiteres oder längeres Bett
haydee07.09.19 20:42
Kannst du einen Lageplan mit eingereichten Haus einstellen?
Mir gefällt die Anordnung Haus, Garage, Fahrradraum, lange Zuwegung nicht
Kopie und Bleistift reicht.
HT so weit hinten, geht richtig ins Geld. Du zahlst für jeden Meter den die Leitungen vergraben werden müssen
Müssen die Fahrräder da hinten sein?
EG
Dusche paßt nicht ins WC
Garderobe paßt nicht in den Eingang
Speis wie soll der Gefrierschrank gestellt werden? Beachte das der ganz schön Platz beim Öffnen braucht
OG
Den Mini-Abstellraum durch einen Einbauschrank ersetzen
Dann die Badtür 60 cm nach Norden schieben, dann passt dort ein Schrank hinter die Türe
Dem OG würde es gut tun Hauswirtschaftsraum und Treppe zu tauschen.
Der Flur ist sehr schlauchig
Mir gefällt die Anordnung Haus, Garage, Fahrradraum, lange Zuwegung nicht
Kopie und Bleistift reicht.
HT so weit hinten, geht richtig ins Geld. Du zahlst für jeden Meter den die Leitungen vergraben werden müssen
Müssen die Fahrräder da hinten sein?
EG
Dusche paßt nicht ins WC
Garderobe paßt nicht in den Eingang
Speis wie soll der Gefrierschrank gestellt werden? Beachte das der ganz schön Platz beim Öffnen braucht
OG
Den Mini-Abstellraum durch einen Einbauschrank ersetzen
Dann die Badtür 60 cm nach Norden schieben, dann passt dort ein Schrank hinter die Türe
Dem OG würde es gut tun Hauswirtschaftsraum und Treppe zu tauschen.
Der Flur ist sehr schlauchig
hausbauer07.09.19 20:54
haydee schrieb:
Kannst du einen Lageplan mit eingereichten Haus einstellen?Wie meinst du? Nachbarbebauung?Mir gefällt die Anordnung Haus, Garage, Fahrradraum, lange Zuwegung nicht
-> Was wäre denn eine sinnvollere Variante, wenn man einen Südgarten bzw. zumindest eine Südausrichtung der Wohnräume will? Am liebsten hätten wir Doppelcarport direkt an der Straße, das wird aber wohl nicht genehmigt.
Kopie und Bleistift reicht.
HT so weit hinten, geht richtig ins Geld. Du zahlst für jeden Meter den die Leitungen vergraben werden müssen
Müssen die Fahrräder da hinten sein?
-> nein, ich weiß nur nicht, wohin damit.
EG
Dusche paßt nicht ins WC -> Danke für den Hinweis, das Gästebad muss wohl einige 10cm in den HT-Raum hinein verbreitert werden.
Garderobe paßt nicht in den Eingang -> das war auch eines meiner Bedenken, weiß nicht wie Manns lösen soll, evtl. gegenüber vom Eingang?
Speis wie soll der Gefrierschrank gestellt werden? Beachte das der ganz schön Platz beim Öffnen braucht -> der steht vermutlich in der Küche, auch aus Abwärme-Gründen
OG
Den Mini-Abstellraum durch einen Einbauschrank ersetzen
Dann die Badtür 60 cm nach Norden schieben, dann passt dort ein Schrank hinter die Türe -> gute Idee
Dem OG würde es gut tun Hauswirtschaftsraum und Treppe zu tauschen. -> das war vorher so, und dann hab ich es vertauscht, damit der Weg bis zur Eingangstür nicht noch weiter wird (im EG wandert dann der Eingang noch weiter nach Norden)
Der Flur ist sehr schlauchig -> mir sind schöne Wohnräume wichtiger als ein allzu breiter Flur im OG. Aber vielleicht sollte das Haus noch 10-20 cm breiter werden, um hier etwas Platz zu bekommen
[/QUOTE]
Jedenfalls danke für die vielen Hinweise, ist echt wertvoll!
Ähnliche Themen