Hallo,
wir haben ein Grundstück gekauft, dass als Baulücke in einem Baugebiet aus den 90er Jahren steht. Es ist ein Eckgrundstück und hat zu zwei Seiten Wald. Wir möchten nun ein Einfamilienhaus bauen.
Bebauungsplan/Einschränkungen
Größe des Grundstücks: 1022 qm
Hang: ganz leicht zur Straße abfallend
Grundflächenzahl: 0,3
Geschossflächenzahl: 0,3
Baufenster, Baulinie und -grenze
Randbebauung: nein
Anzahl Stellplatz: 1
Geschossigkeit:1
Dachform:Satteldach 35°
Stilrichtung:Verklinkert
Ausrichtung: Straße im Süden
Maximale Höhen/Begrenzungen: 4m Traufhöhe
weitere Vorgaben:
-
Anforderungen der Bauherren
Stilrichtung, Dachform, Gebäudetyp: Massivbauweise ohne Keller
Keller nein, Geschosse EG oder DG
Anzahl der Personen, Alter: 2 Personen; 28 Jahre, 29 Jahre,1 Kind geplant
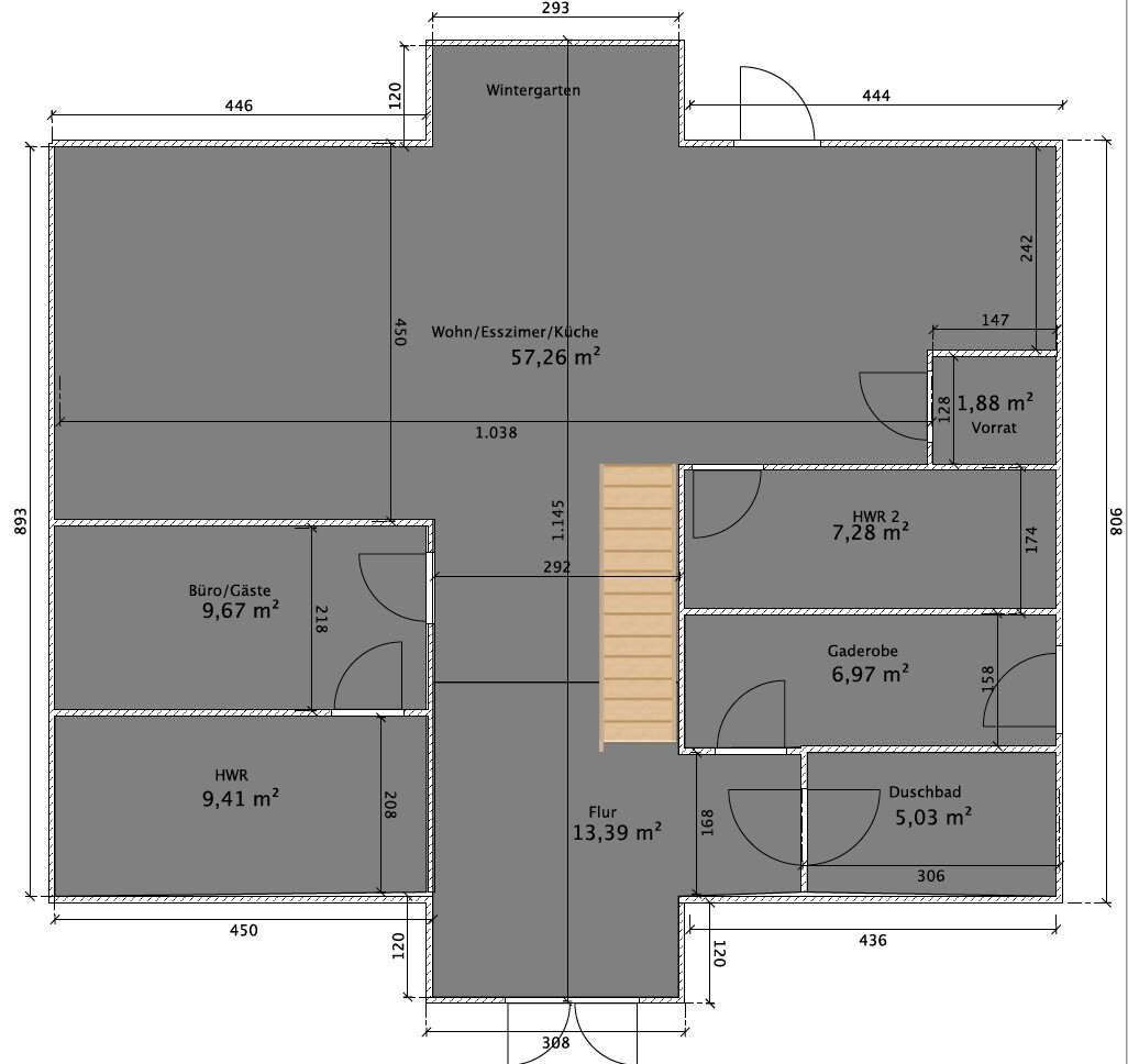
Raumbedarf im EG: offener Wohn-Essbereich, Arbeitszimmer, Hauswirtschaftsraum, Speise, Dusch-WC
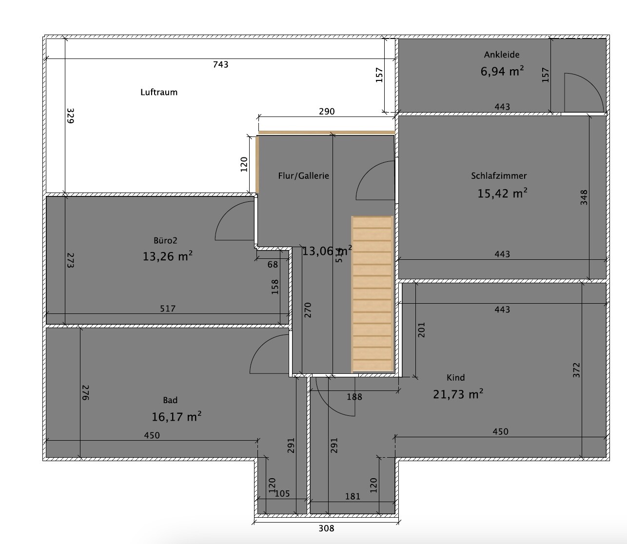
OG: Elternschlafzimmer + Ankleide, 1 Kinderzimmer, Bad mit Wanne und Dusche und 2 Waschbecken, Büro 2
Büro: Familiennutzung oder Homeoffice?: Homeoffice, es werden zwei benötigt
Schlafgäste pro Jahr: 1-2
offene oder geschlossene Architektur: offen
konservativ oder moderne Bauweise: modern
offene Küche, Kochinsel: ja, Insel
Anzahl Essplätze: 6
Kamin: nein
Musik/Stereowand: nein
Balkon, Dachterrasse: nein
Garage, Carport: Doppelgarage mit Abstellraum
Nutzgarten, Treibhaus: vielleicht
weitere Wünsche/Besonderheiten/Tagesablauf, gern auch Begründungen, warum dieses oder das nicht sein soll
Hausentwurf
Von wem stammt die Planung: Von mir selbst mit SweetHome 3D und wurde mit GU durchgesprochen und kalkuliert
Was gefällt besonders? Warum? Die Galerie und die Garderobe mit Durchgang zur Garage
Was gefällt nicht? Warum?: Stauraum könnte knapp werden, Hauswirtschaftsraum evtl zu klein
Preisschätzung lt Architekt/Planer: noch nicht bekannt: 430 TEUR
Persönliches Preislimit fürs Haus, inkl Ausstattung: -
favorisierte Heiztechnik: Luft-Wasser-Wärme-Pumpe
Wenn Ihr verzichten müsst, auf welche Details/Ausbauten
-könnt Ihr verzichten: KFW 55, T-Lösung im Bad, Kücheninsel, bei guten Argumenten: gute Frage
-könnt Ihr nicht verzichten: die offene Galerie soll bleiben
Warum ist der Entwurf so geworden, wie er jetzt ist? ZB
Was macht ihn in Euren Augen besonders gut oder schlecht? Uns gefällt die Aufteilung, eventuell muss die Ankleide noch getauscht werden, je nach Höhe des Kniestock
Was ist die wichtigste/grundlegende Frage zum Grundriss in 130 Zeichen zusammengefasst?
Wir haben im Wohnzimmer viel Licht durch den Wintergarten und die hohen Raumhöhen. Es wird natürlich effektiv Platz verschenkt durch die Bauweise aber das nehmen wir bewusst in Kauf.


wir haben ein Grundstück gekauft, dass als Baulücke in einem Baugebiet aus den 90er Jahren steht. Es ist ein Eckgrundstück und hat zu zwei Seiten Wald. Wir möchten nun ein Einfamilienhaus bauen.
Bebauungsplan/Einschränkungen
Größe des Grundstücks: 1022 qm
Hang: ganz leicht zur Straße abfallend
Grundflächenzahl: 0,3
Geschossflächenzahl: 0,3
Baufenster, Baulinie und -grenze
Randbebauung: nein
Anzahl Stellplatz: 1
Geschossigkeit:1
Dachform:Satteldach 35°
Stilrichtung:Verklinkert
Ausrichtung: Straße im Süden
Maximale Höhen/Begrenzungen: 4m Traufhöhe
weitere Vorgaben:
-
Anforderungen der Bauherren
Stilrichtung, Dachform, Gebäudetyp: Massivbauweise ohne Keller
Keller nein, Geschosse EG oder DG
Anzahl der Personen, Alter: 2 Personen; 28 Jahre, 29 Jahre,1 Kind geplant
Raumbedarf im EG: offener Wohn-Essbereich, Arbeitszimmer, Hauswirtschaftsraum, Speise, Dusch-WC
OG: Elternschlafzimmer + Ankleide, 1 Kinderzimmer, Bad mit Wanne und Dusche und 2 Waschbecken, Büro 2
Büro: Familiennutzung oder Homeoffice?: Homeoffice, es werden zwei benötigt
Schlafgäste pro Jahr: 1-2
offene oder geschlossene Architektur: offen
konservativ oder moderne Bauweise: modern
offene Küche, Kochinsel: ja, Insel
Anzahl Essplätze: 6
Kamin: nein
Musik/Stereowand: nein
Balkon, Dachterrasse: nein
Garage, Carport: Doppelgarage mit Abstellraum
Nutzgarten, Treibhaus: vielleicht
weitere Wünsche/Besonderheiten/Tagesablauf, gern auch Begründungen, warum dieses oder das nicht sein soll
Hausentwurf
Von wem stammt die Planung: Von mir selbst mit SweetHome 3D und wurde mit GU durchgesprochen und kalkuliert
Was gefällt besonders? Warum? Die Galerie und die Garderobe mit Durchgang zur Garage
Was gefällt nicht? Warum?: Stauraum könnte knapp werden, Hauswirtschaftsraum evtl zu klein
Preisschätzung lt Architekt/Planer: noch nicht bekannt: 430 TEUR
Persönliches Preislimit fürs Haus, inkl Ausstattung: -
favorisierte Heiztechnik: Luft-Wasser-Wärme-Pumpe
Wenn Ihr verzichten müsst, auf welche Details/Ausbauten
-könnt Ihr verzichten: KFW 55, T-Lösung im Bad, Kücheninsel, bei guten Argumenten: gute Frage
-könnt Ihr nicht verzichten: die offene Galerie soll bleiben
Warum ist der Entwurf so geworden, wie er jetzt ist? ZB
Was macht ihn in Euren Augen besonders gut oder schlecht? Uns gefällt die Aufteilung, eventuell muss die Ankleide noch getauscht werden, je nach Höhe des Kniestock
Was ist die wichtigste/grundlegende Frage zum Grundriss in 130 Zeichen zusammengefasst?
Wir haben im Wohnzimmer viel Licht durch den Wintergarten und die hohen Raumhöhen. Es wird natürlich effektiv Platz verschenkt durch die Bauweise aber das nehmen wir bewusst in Kauf.
M
Myrna_Loy22.12.21 09:56Deine ganzen Nebenräume sind viel zu schmal und daher nicht nutzbar. Hast Du Dir vorher mal Grundrisse von Fertighausanbietern angeschaut? Das hilft, um ein Gefühl für Flächen zu bekommen, wenn man das nicht durch eigene Erfahrung über das Leben in Häusern (mit Kind) hat.
Deine Garderobe von der Garage ist z.B. nur eine lichtlose Schleuse, in der man aufgrund der Türen und der schmalen Form nichts unterbringen kann.
Und bei gut 220 qm Fläche ist das Budget vermutlich auch zu knapp.
Deine Garderobe von der Garage ist z.B. nur eine lichtlose Schleuse, in der man aufgrund der Türen und der schmalen Form nichts unterbringen kann.
Und bei gut 220 qm Fläche ist das Budget vermutlich auch zu knapp.
„Rechteckfetischist“? 😀
Sorry, aber du bist hier gewaltig auf dem Holzweg. Man weiß auch gar nicht wo man anfangen soll.
- Außenwände?
- Möblierung?
- Garderobe dunkel
- Treppe viel zu kurz
- 2 „Warzen“ am Haus?
- Luftraum der nur sinnlos Platz verschwendet und Geld kostet
-….
- Qm und Budget sind nicht kongruent
Und gleich mal den GU wechseln, wenn er solche Pläne mit euch durchspricht!
(Bin jetzt erstmal offline, muss bis Heilig Abend noch den elektrischen Rollladen im Wohnzimmer instandsetzen…) 😉
Sorry, aber du bist hier gewaltig auf dem Holzweg. Man weiß auch gar nicht wo man anfangen soll.
- Außenwände?
- Möblierung?
- Garderobe dunkel
- Treppe viel zu kurz
- 2 „Warzen“ am Haus?
- Luftraum der nur sinnlos Platz verschwendet und Geld kostet
-….
- Qm und Budget sind nicht kongruent
Und gleich mal den GU wechseln, wenn er solche Pläne mit euch durchspricht!
(Bin jetzt erstmal offline, muss bis Heilig Abend noch den elektrischen Rollladen im Wohnzimmer instandsetzen…) 😉
M
Myrna_Loy22.12.21 10:10Statt Hauswirtschaftsraum 2 und Garderobe getrennt zu planen würde ich Z.B. die Trennwand rausnehmen und einen "mudroom" daraus machen. Wenn es schon der Durchgang zur Garage sein muss. Dann kommt man auch mit einem Kasten Bier ins Haus. Oder großen Koffern.
Möbliert das ganze mal mit realistischen Größen und Abstandsflächen. Dann wedret Ihr sehen, warum der Grundriss so nicht klappen kann.
Überlegt Euch, wie die Abläufe sind. Und falls Ihr in einer kleinen Wohnung aktuell lebt und deshalb denkt, das passt, das muss nicht größer, haben wir jetzt ja auch nicht... dann schaut Euch die Häuser anderer Menschen an und schaut, warum man gerade in den Nebenräumen PLATZ braucht.
Möbliert das ganze mal mit realistischen Größen und Abstandsflächen. Dann wedret Ihr sehen, warum der Grundriss so nicht klappen kann.
Überlegt Euch, wie die Abläufe sind. Und falls Ihr in einer kleinen Wohnung aktuell lebt und deshalb denkt, das passt, das muss nicht größer, haben wir jetzt ja auch nicht... dann schaut Euch die Häuser anderer Menschen an und schaut, warum man gerade in den Nebenräumen PLATZ braucht.
Ähnliche Themen