Suche Vorschläge für Grundriss Doppelhaushälfte

4,40 Stern(e) 5 Votes
Zuletzt aktualisiert 18.11.2025
Sie befinden sich auf der Seite 7 der Diskussion zum Thema: Suche Vorschläge für Grundriss Doppelhaushälfte
>> Zum 1. Beitrag <<

Y

ypg

OG

Draufsicht eines Einfamilienhauses Grundriss: Treppenhaus, drei Schlafzimmer, Bad und Flur mit Moebel.


Vlt hat ja noch jemand anderes einen Verbesserungsvorschlag?

Gruss Yvonne

P.s. Ausrichtung habe ich vernachlässigt... Südlicht kommt hier von Nord, ausserdem habe ich die Fenster im Norden bei V6 vertauscht...
 
L

Legurit

Bei kleinen Bädern würde ich keine Mauern ziehen - das macht die in der Wirkung noch kleiner - lieber Glaswand.
Ansonsten gefallen mir V5 und V6 am besten... oder V1, wobei da die Eingangssituation etwas verkrüppelt wirkt.
 
Y

ypg

Bei kleinen Bädern würde ich keine Mauern ziehen - das macht die in der Wirkung noch kleiner - lieber Glaswand.
Ansonsten gefallen mir V5 und V6 am besten... oder V1, wobei da die Eingangssituation etwas verkrüppelt wirkt.
Mir war so, als ob tichu unbedingt noch eine T-Wand haben wollte, deshalb das Feature mit der Wand

Die eleganteren Lösungen sind mit Eingang von vorn
 
T

Tichu78

Endlich mal finde ich Zeit zu antworten Wir haben endlich mal ein Angebot von Helma. 400.000 EUR all.incl.
Vielen, vielen Dank für deine Mühen! Hier ein paar erste Gedanken:

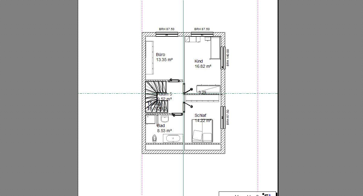
V1: Stört mich die Ecke zum Hauswirtschaftsraum (der zu klein ist), das WC und die Garderobe ist zu klein,Sichtwinkel Sofa-TV ist auch nicht ideal. Unbefriedigende Raumausnutzung. OG ist das Bad größer als das Schlafzimmer. Im Bad bin ich mehrmals am Tag und bewege mich dort mehr als im Schlafzimmer. Dir scheint ein großes Schlafzimmer wichtig zu sein
V2+V3: kommt nicht in Frage weil wir Wohnbereich und den Treppenbereich getrennt haben möchten.
V5+V6: Eingang nicht seitlich. Wäre aber eine Alternative.

Ich denke der Bereich Wohnen, Essen, Kochen + Treppe gefällt uns sehr gut, ebenso das OG. Daher gibt es nur noch Verbesserungsmöglichkeiten im Bereich Hauswirtschaftsraum, Diele, Garderobe und Eingangsbereich (wie gehabt).
Da ist mein Problem, daß ich mir nicht vorstellen kann wie der Eingangsbereich bei den versch. Lösungen wirkt.

Werde demnächst mal versch. Lösungen einstellen (so wie du das gemacht hast) und hoffen konstruktive Antworten zu bekommen welche Vor und Nachteile es gibt.
 
Y

ypg

OG ist das Bad größer als das Schlafzimmer. Im Bad bin ich mehrmals am Tag und bewege mich dort mehr als im Schlafzimmer. Dir scheint ein großes Schlafzimmer wichtig zu sein
Hallo tichu,
Du verwechselst hier etwas: ich habe die Doppelhaushälfte nicht für mich geplant, sondern nach Deinen Vorgaben!

Ich habe Dir versucht, klar zu machen, dass Deine Anforderungen sich widersprechen bzw es einfach nicht funktioniert, wenn man an die Anforderungen an eine Doppelhaushälfte so einengt wie Du...

hmm, ehrlich gesagt möchte ich damit nicht leben. Es gibt Kompromisse die ich eingehe, aber ein Dachfenster im Schlafzimmer möchte ich nicht ... dann lieber ganz ohne Fenster
Damit legst Du die Zimmeranordnung im OG fest; auch eine Zimmertür zum Flur braucht ein Schlafzimmer, somit kann nur diese Anordnung herauskommen, da Du auch kein Südschlafzimmer willst.
Irgendwelche Nischen oder winzige Zimmereckchen, die keiner begehen kann, das entwerfe ich nicht. und hoffentlich auch nicht der Architekt, der für Euch zuständig wird.

Da Du so absolut auf den Seiteneingang bestanden hast, und hier doch ersichtlich ist, dass die Aufteilung der Qm und Wohnqualität durch Seitenfenster besser ist mit Eintritt von vorn, solltest Du doch noch mal Eure Anforderungen und Bedingungen an das Haus überdenken!!!
Ich habe Dich gebeten, mir die Anforderungen aufzuschreiben (so, wie man es bei einem Architekten macht), dennoch fehlte zB die Information, dass Treppe getrennt vom Wohnen ...

Zu Deinen Anforderungen, das WC aus der Erinnerung "klein aber fein", bei 2 qm kritisierst Du die Größe (unser letztes WC hatte 1,2qm...), für eine geschlossene Garderobe reichen definitiv 1 Qm (ohne Saisonjacken, mit dann geschätzte 2,5)

Du solltest Dir Deinen Post mit der Wohnzimmergröße (Parallelthema) mal selbst beherzigen, sinngemäss: manchmal sind weniger Qm mehr, wenn die Aufteilung stimmt

Ich habe bei den Entwürfen bestimmt nicht das Rad neu erfunden, irgendwie und irgendwo gibt es diese oder ähnliche Entwürfe schon gebaut. Aber sie funktionieren, funktionieren meiner Meinung nach besser als Deine Varianten!

Grundsätzlich ist zu sagen, dass die Treppenlage (und -Form) dort schon am besten aufgehoben ist, wo sie ist.
Du solltest Dir ein Haus ausrechnen lassen mit DG-Ausbau bzw schon mit einer festen Treppe nach oben. Das wäre ein schönes Kinderzimmer - eventuell jetzt schon einplanen, damit das OG entsprechend geplant werden kann (obwohl Du natürlich durch die Lage des Schlafzimmer das Bad selbst dann einengst, wenn Du nach oben oder überhaupt mehr Möglichkeiten hättest.)
Um das Haus hell zu bekommen, sind Fenster in Westlage wichtig, wovon das Haus Nutzen hat.

Und Deine Nachfrage, ob ich ein grosses Schlafzimmer brauche: nein, wir haben radikal verkleinert (obwohl aus einem Endreihenhaus in ein Einfamilienhaus), dennoch:

Man braucht Platz zum Bügeln, und wo funktioniert das besser als im Schlafzimmer?!
Und nichts ist schlimmer, als sich jeden Morgen den Kopf oder den Fuß zu stossen

Gruss Yvonne
 
Zuletzt bearbeitet:
Zuletzt aktualisiert 18.11.2025
Im Forum Grundrissplanung / Grundstücksplanung gibt es 2536 Themen mit insgesamt 87966 Beiträgen


Ähnliche Themen zu Suche Vorschläge für Grundriss Doppelhaushälfte
Nr.ErgebnisBeiträge
1Grundriss EG + OG für Doppelhaushälfte - Seite 229
2Ankleide/Schlafzimmer Problem - Grundrissdiskussion 25
3Grundriss Stadtvilla / Anordnung Fenster, Feedback erwünscht - Seite 216
4OG Stadtville optimieren. Fenster Bodentief - Seite 13104
5Grundriss Einfamilienhaus ohne Keller/Schlafzimmer und Bad im EG - Seite 427
6Dusche direkt am Fenster - kompatibel oder inkompatibel? 22
7Meinungen und Tipps für Einfamilienhaus 220qm erwünscht - Seite 325
8Fenster Brüstungshöhe 130 im Schlafzimmer / Arbeitszimmer? - Seite 493
9Grundrissfrage, Treppe, Fenster, Ausrichtung 12
10 2 Vollgeschosse, Durchgang Garage, Hauswirtschaftsraum unter Treppe 25
11Fenster / Türen / Garderobe 13
12Kleinstmögliches Fenster für Lüftung Hauswirtschaftsraum 22
13Hauswirtschaftsraum Raum ohne Fenster - Lüftungsanlage ausreichend? 26
14DIY Grundriss EG von Doppelhaushälfte - Seite 227
15Grundrissplanung Doppelhaushälfte (150qm): Eure Meinung? 16
16Grundriss Neubau Einfamilienhaus: Fenster/Türen/Innenwände Größe/Anordnung ok? - Seite 220
17Bungalow 135qm: Grundriss + Fenster - Seite 7104
18Grundrissoptimierung Doppelhaushälfte auf 380qm Handtuch 13
19Grundriss Schlafzimmer, Ankleide und Bad en Suite 36
20Kaufentscheidung kleine Doppelhaushälfte 100 qm aus 1930 205

Oben